Maison à construire à Plaudren (56420)
Images
Description
Plaudren : maison de 5 pièces (100 m²) en vente
MAISON 5 PIÈCES NEUVE - PROCHE DE VANNES
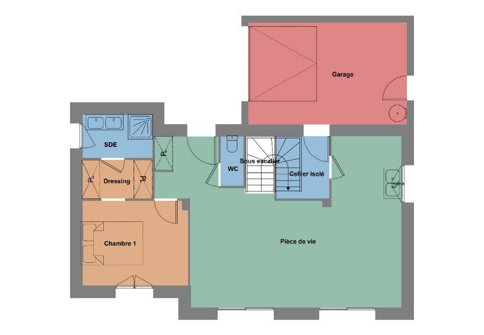
En vente : située à 16 km de la côte atlantique et à deux pas de Vannes, ayez le coup de coeur pour cette maison de 5 pièces de 100 m² et de 389 m² de terrain à Plaudren (56420). Elle offre quatre chambres, une cuisine et deux salles de bains.
Il s'agit d'une maison de 2 niveaux.
Elle est à vendre pour la somme de 308 500 €.
Contactez Anne-Sophie LAPART (tél : (Numéro supprimé)) pour obtenir de plus amples renseignements sur la maison. Maisons de l'Avenir Lorient est là pour vous accompagner à toutes les étapes de l'achat.
Logement susceptibles de vous intéresser
Nous vous proposons de découvrir aussi cette sélection de logements situés à moins de 10km de Plaudren et qui seraient susceptibles de vous intéresser.
Monterblanc
TERRAINTerrain viabilisé de 525 m² en lotissement (25 lots) situé à MONTERBLANC. Commune rurale du Morbihan proche de SAINT-AVÉ (7/8 min en voiture), située sur l’axe VANNES – PLAUDREN. Idéal pour la construction de votre future maison, ce terrain offre une belle exposition SUD/OUEST et le confort de toutes commodités à proximité (écoles, services, commerces). Belle opportunité à saisir !. // Réf. : T213505. Prix terrain : 103 000 €, hors frais d'agence et de notaire à la charge de l'acquéreur. Ce terrain vous est proposé, par nos partenaires fonciers, dans le cadre d'un projet de construction avec nous. Les informations sur les risques auxquels ce bien est exposé sont disponibles sur le site Géorisques (www.georisques.gouv.fr).
Monterblanc
TERRAINTerrain viabilisé de 525 m² en lotissement (25 lots) situé à MONTERBLANC. Commune rurale du Morbihan proche de SAINT-AVÉ (7/8 min en voiture), située sur l’axe VANNES – PLAUDREN. Idéal pour la construction de votre future maison, ce terrain offre une belle exposition SUD/OUEST et le confort de toutes commodités à proximité (écoles, services, commerces). Belle opportunité à saisir !. // Réf. : T213505. Prix terrain : 103 000 €, hors frais d'agence et de notaire à la charge de l'acquéreur. Ce terrain vous est proposé, par nos partenaires fonciers, dans le cadre d'un projet de construction avec nous. Les informations sur les risques auxquels ce bien est exposé sont disponibles sur le site Géorisques (www.georisques.gouv.fr).
Monterblanc
TERRAIN ET MAISONTerrain viabilisé de 525 m² en lotissement (25 lots) situé à MONTERBLANC. Commune rurale du Morbihan proche de SAINT-AVÉ (7/8 min en voiture), située sur l’axe VANNES – PLAUDREN. Idéal pour la construction de votre future maison, ce terrain offre une belle exposition SUD/OUEST et le confort de toutes commodités à proximité (écoles, services, commerces). Belle opportunité à saisir !. Le modèle MAJORQUE est une maison de plain-pied fonctionnelle et lumineuse qui vous accueille dans un bel espace de vie avec cuisine ouverte avec accès direct au cellier. Du côté de l'espace nuit, 3 chambres, une salle de bains et wc indépendant. Vous pourrez choisir vos jeux d’enduits afin de personnaliser votre maison pour qu’elle corresponde à votre stylePour vous assurer un confort de vie et conformément à la RE2025, nous avons choisi un mode de chauffage par PAC + plancher chauffant, volets roulants électriques. Prix hors fourniture et pose : des appareils sanitaires (sauf système de chauffage et d'eau chaude sanitaire), du carrelage et de la faïence, des revêtements de sol dans les chambres. Hors décoration et aménagement intérieur et peinture. Hors raccordements, frais de notaire et dommage ouvrage. // Réf. : 1033-213505-TOB. Prix terrain : 103 000 €, hors frais d'agence à la charge de l'acquéreur. Ce terrain vous est proposé, par nos partenaires fonciers, dans le cadre d'un projet de construction avec nous. Les informations sur les risques auxquels ce bien est exposé sont disponibles sur le site Géorisques (www.georisques.gouv.fr). Prix maison : 117 258 €.
Plaudren
TERRAIN ET MAISONTerrain viabilisé de 344 m² en lotissement (13 lots) situé à deux pas du centre bourg de PLAUDREN, commune rurale du Morbihan proche de MONTERBLANC, située sur l’axe PLUMELEC – SAINT-AVÉ. Idéal pour la construction de votre future maison, ce terrain offre une belle exposition SUD et le confort de toutes commodités à proximité (écoles, services, commerces). Belle opportunité à saisir !. Le modèle MAJORQUE est une maison de plain-pied fonctionnelle et lumineuse qui vous accueille dans un bel espace de vie avec cuisine ouverte avec accès direct au cellier. Du côté de l'espace nuit, 3 chambres, une salle de bains et wc indépendant. Vous pourrez choisir vos jeux d’enduits afin de personnaliser votre maison pour qu’elle corresponde à votre stylePour vous assurer un confort de vie et conformément à la RE2025, nous avons choisi un mode de chauffage par PAC + plancher chauffant, volets roulants électriques. Prix hors fourniture et pose : des appareils sanitaires (sauf système de chauffage et d'eau chaude sanitaire), du carrelage et de la faïence, des revêtements de sol dans les chambres. Hors décoration et aménagement intérieur et peinture. Hors raccordements, frais de notaire et dommage ouvrage. // Réf. : 1033-213506-TOB. Prix terrain : 55 000 €, hors frais d'agence à la charge de l'acquéreur. Ce terrain vous est proposé, par nos partenaires fonciers, dans le cadre d'un projet de construction avec nous. Les informations sur les risques auxquels ce bien est exposé sont disponibles sur le site Géorisques (www.georisques.gouv.fr). Prix maison : 117 258 €.
Monterblanc
TERRAIN ET MAISONTerrain viabilisé de 525 m² en lotissement (25 lots) situé à MONTERBLANC. Commune rurale du Morbihan proche de SAINT-AVÉ (7/8 min en voiture), située sur l’axe VANNES – PLAUDREN. Idéal pour la construction de votre future maison, ce terrain offre une belle exposition SUD/OUEST et le confort de toutes commodités à proximité (écoles, services, commerces). Belle opportunité à saisir !. Découvrez EVOLIA, la maison évolutive qui s'adapte à chaque étape de votre vie. Transformez facilement une maison de 2 chambres en une maison de 3 chambres grâce à un garage aménageable de 15 m². Flexible et personnalisable, EVOLIA évolue avec vous, que vous soyez une jeune famille, un couple ou une personne seule. Ne laissez plus vos besoins en logement vous limiter. Contactez nos experts conseillers dès aujourd’hui et faites de EVOLIA la maison de vos rêves. Prix hors fourniture et pose : des appareils sanitaires (sauf système de chauffage et d'eau chaude sanitaire), du carrelage, de la faïence, de la cuisine aménagée, des revêtements de sol dans les chambres. Hors décoration, aménagement intérieur, peinture, raccordements, frais de notaire et dommage ouvrage. (Surface habitable 49 m²+garage 15 m²). // Réf. : 2585-213505-TOB. Prix terrain : 103 000 €, hors frais d'agence à la charge de l'acquéreur. Ce terrain vous est proposé, par nos partenaires fonciers, dans le cadre d'un projet de construction avec nous. Les informations sur les risques auxquels ce bien est exposé sont disponibles sur le site Géorisques (www.georisques.gouv.fr). Prix maison : 94 943 €.
Plaudren
TERRAINTerrain viabilisé de 344 m² en lotissement (13 lots) situé à deux pas du centre bourg de PLAUDREN, commune rurale du Morbihan proche de MONTERBLANC, située sur l’axe PLUMELEC – SAINT-AVÉ. Idéal pour la construction de votre future maison, ce terrain offre une belle exposition SUD et le confort de toutes commodités à proximité (écoles, services, commerces). Belle opportunité à saisir !. // Réf. : T213506. Prix terrain : 55 000 €, hors frais d'agence et de notaire à la charge de l'acquéreur. Ce terrain vous est proposé, par nos partenaires fonciers, dans le cadre d'un projet de construction avec nous. Les informations sur les risques auxquels ce bien est exposé sont disponibles sur le site Géorisques (www.georisques.gouv.fr).
Plaudren
TERRAINTerrain viabilisé de 344 m² en lotissement (13 lots) situé à deux pas du centre bourg de PLAUDREN, commune rurale du Morbihan proche de MONTERBLANC, située sur l’axe PLUMELEC – SAINT-AVÉ. Idéal pour la construction de votre future maison, ce terrain offre une belle exposition SUD et le confort de toutes commodités à proximité (écoles, services, commerces). Belle opportunité à saisir !. // Réf. : T213506. Prix terrain : 55 000 €, hors frais d'agence et de notaire à la charge de l'acquéreur. Ce terrain vous est proposé, par nos partenaires fonciers, dans le cadre d'un projet de construction avec nous. Les informations sur les risques auxquels ce bien est exposé sont disponibles sur le site Géorisques (www.georisques.gouv.fr).
Monterblanc
TERRAIN ET MAISONTerrain viabilisé de 525 m² en lotissement (25 lots) situé à MONTERBLANC. Commune rurale du Morbihan proche de SAINT-AVÉ (7/8 min en voiture), située sur l’axe VANNES – PLAUDREN. Idéal pour la construction de votre future maison, ce terrain offre une belle exposition SUD/OUEST et le confort de toutes commodités à proximité (écoles, services, commerces). Belle opportunité à saisir !. Une maison spacieuse et fonctionnelle, idéale pour toute la famille ! Avec son grand espace de vie lumineux, cette maison allie confort et convivialité. Le rez-de-chaussée accueille un salon, une salle à manger et une cuisine ouverte, accompagnés d’un cellier pratique, d’une salle d’eau et d’un WC indépendant. Une chambre supplémentaire offre flexibilité et confort. À l’étage, trois chambres généreuses, une salle de bain moderne et un second WC garantissent bien-être et praticité au quotidien. Un design moderne et optimisé pour un cadre de vie agréable !. Pour vous assurer un confort de vie optimal et en conformité avec la RE2025, nous avons opté pour un système de chauffage par pompe à chaleur (PAC) avec plancher chauffant au rez-de-chaussée et radiateurs à l’étage. Le logement est également équipé de volets roulants électriques. Prix hors fourniture et pose : des appareils sanitaires (sauf système de chauffage et d'eau chaude sanitaire), du carrelage et de la faïence, des revêtements de sol dans les chambres. Hors décoration et aménagement intérieur et peinture. Hors raccordements, frais de notaire et dommage ouvrage. // Réf. : 2500-213505-TOB. Prix terrain : 103 000 €, hors frais d'agence à la charge de l'acquéreur. Ce terrain vous est proposé, par nos partenaires fonciers, dans le cadre d'un projet de construction avec nous. Les informations sur les risques auxquels ce bien est exposé sont disponibles sur le site Géorisques (www.georisques.gouv.fr). Prix maison : 153 753 €.
Plaudren
TERRAIN ET MAISONTerrain viabilisé de 344 m² en lotissement (13 lots) situé à deux pas du centre bourg de PLAUDREN, commune rurale du Morbihan proche de MONTERBLANC, située sur l’axe PLUMELEC – SAINT-AVÉ. Idéal pour la construction de votre future maison, ce terrain offre une belle exposition SUD et le confort de toutes commodités à proximité (écoles, services, commerces). Belle opportunité à saisir !. Fonctionnelle et lumineuse, cette maison de plain-pied vous propose un espace de vie de plus de 42 m²ouvert sur le jardin et sa cuisine ouverte aménagée avec un accès direct au cellier et à son garage intégré. La partie nuit est composée de trois chambres avec rangement, une salle de bain et wc indépendantPour vous assurer un confort de vie et conformément à la RE2025, nous avons choisi un mode de chauffage par PAC + plancher chauffant, volets roulants électriques. Prix hors fourniture et pose : des appareils sanitaires (sauf système de chauffage et d'eau chaude sanitaire), du carrelage et de la faïence, des revêtements de sol dans les chambres. Hors décoration et aménagement intérieur et peinture. Hors raccordements, frais de notaire et dommage ouvrage. // Réf. : 1213-213506-TOB. Prix terrain : 55 000 €, hors frais d'agence à la charge de l'acquéreur. Ce terrain vous est proposé, par nos partenaires fonciers, dans le cadre d'un projet de construction avec nous. Les informations sur les risques auxquels ce bien est exposé sont disponibles sur le site Géorisques (www.georisques.gouv.fr). Prix maison : 138 955 €.
L’actualité immobilière à Plaudren
27/11/2023
02/11/2023
30/10/2023
20/10/2023
16/10/2023
16/10/2023