Maison à construire à Ploemeur (56270)
Images
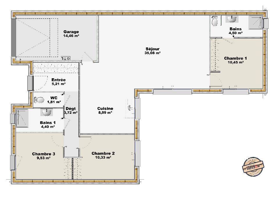
Description
🏡 Maison neuve ossature bois 4 pièces à Ploemeur - 94 m²
Emplacement privilégié entre Lorient et les plages !
Découvrez cette maison bois de plain-pied de 94 m², sur un terrain de 439 m².
Elle offre 3 chambres, 2 salles de bains et une cuisine ouverte baignée de lumière.
Située dans un quartier recherché, à proximité des écoles, commerces et axes rapides, cette maison allie confort moderne et cadre de vie idéal 🌿
💰 550 000 €
📞 Anne-Sophie LAPART - Maisons de l'Avenir Lorient : (Numéro supprimé)
N'hésitez pas à prendre contact avec notre agence (Anne-Sophie LAPART : (Numéro supprimé)) pour tout renseignement sur la propriété, sur les modalités de vente ou sur les démarches à suivre. Faites de vos projets immobiliers une réalité avec Maisons de l'Avenir Lorient.
Logement susceptibles de vous intéresser
Nous vous proposons de découvrir aussi cette sélection de logements situés à moins de 10km de Ploemeur et qui seraient susceptibles de vous intéresser.
Locmiquélic
TERRAINTerrains viabilisés de 228 m² à 459 m², libres de constructeur sur la commune de Locmiquélic, dans le Morbihan.Découvrez notre nouvelle opération « Le Hameau de Prad Er Loeiz » située rue des Alouettes.La commune de Locmiquélic, est située à 23 minutes de Lorient. Elle jouxte les communes de Port-Louis, Riantec et Kervignac.Bordée par la mer, Locmiquélic offre des vues pittoresques et un accès facile aux plages préservées de la région. La commune bénéficie d’une atmosphère tranquille et d’une qualité de vie appréciable.La commune dispose de 2 écoles, d’une maison médicale, de lieu d’accueil polyvalent pour toutes formes de culture et d’acteurs culturels.Retrouvez l’ensemble de nos lots disponibles sur notre site internet.
Lorient
TERRAINBelle opportunité à saisir sur la commune. Terrain non viabilisé de m², bénéficiant d’une exposition optimale et d’un emplacement privilégié à proximité immédiate des commodités. Idéal pour concrétiser votre projet de construction sur mesure dans un environnement agréable et recherché. // Réf. : T210433. Prix terrain : 171 150 €, hors frais d'agence et de notaire à la charge de l'acquéreur. Ce terrain vous est proposé, par nos partenaires fonciers, dans le cadre d'un projet de construction avec nous. Les informations sur les risques auxquels ce bien est exposé sont disponibles sur le site Géorisques (www.georisques.gouv.fr).
Locmiquélic
TERRAINBelle opportunité à saisir sur la commune. Terrain viabilisé de 464 m², bénéficiant d’une exposition optimale et d’un emplacement privilégié à proximité immédiate des commodités. Idéal pour concrétiser votre projet de construction sur mesure dans un environnement agréable et recherché. // Réf. : T210422. Prix terrain : 159 250 €, hors frais d'agence et de notaire à la charge de l'acquéreur. Ce terrain vous est proposé, par nos partenaires fonciers, dans le cadre d'un projet de construction avec nous. Les informations sur les risques auxquels ce bien est exposé sont disponibles sur le site Géorisques (www.georisques.gouv.fr).
Locmiquélic
TERRAINBelle opportunité à saisir sur la commune. Terrain viabilisé de 405 m², bénéficiant d’une exposition optimale et d’un emplacement privilégié à proximité immédiate des commodités. Idéal pour concrétiser votre projet de construction sur mesure dans un environnement agréable et recherché. // Réf. : T210425. Prix terrain : 141 750 €, hors frais d'agence et de notaire à la charge de l'acquéreur. Ce terrain vous est proposé, par nos partenaires fonciers, dans le cadre d'un projet de construction avec nous. Les informations sur les risques auxquels ce bien est exposé sont disponibles sur le site Géorisques (www.georisques.gouv.fr).
Lorient
TERRAIN ET MAISONBelle opportunité à saisir sur la commune. Terrain non viabilisé de m², bénéficiant d’une exposition optimale et d’un emplacement privilégié à proximité immédiate des commodités. Idéal pour concrétiser votre projet de construction sur mesure dans un environnement agréable et recherché. Un cadre de vie pensé pour toute la famille. Confort, modernité et praticité se rencontrent dans cette maison à l’architecture affirmée. Ici, chaque espace est conçu pour s’adapter aux rythmes du quotidien : un vaste séjour baigné de lumière, une cuisine ouverte propice aux échanges et une belle harmonie entre pièces de vie et espaces privés. Avec 4 chambres, dont une suite parentale avec salle d’eau, cette maison offre à chacun son cocon tout en favorisant les moments de partage. Son aménagement astucieux, intégrant un garage et des rangements bien pensés, simplifie la vie et s’adapte à vos envies. Pour un confort optimal et conforme à la RE2025, cette maison dispose d’une PAC avec plancher chauffant au rez-de-chaussée, radiateurs à l’étage et volets roulants électriques. À noter : Le prix indiqué exclut les revêtements de sol des chambres, la cuisine aménagée, la peinture, la décoration, les raccordements, les frais de notaire et l’assurance dommages-ouvrage. // Réf. : 1309-210433-RER. Prix terrain : 171 150 €, hors frais d'agence à la charge de l'acquéreur. Ce terrain vous est proposé, par nos partenaires fonciers, dans le cadre d'un projet de construction avec nous. Les informations sur les risques auxquels ce bien est exposé sont disponibles sur le site Géorisques (www.georisques.gouv.fr). Prix maison : 269 730 €.
Lorient
TERRAIN ET MAISONBelle opportunité à saisir sur la commune. Terrain non viabilisé de m², bénéficiant d’une exposition optimale et d’un emplacement privilégié à proximité immédiate des commodités. Idéal pour concrétiser votre projet de construction sur mesure dans un environnement agréable et recherché. Laissez-vous séduire par cette maison où l’espace et la lumière s’unissent pour créer un cadre de vie chaleureux et fonctionnel. Son vaste espace de vie, véritable cœur du foyer, invite à la convivialité et au partage, tout en offrant un confort optimal au quotidien. Avec trois chambres spacieuses, une salle de bain élégante, un cellier pratique et un garage intégré, cette maison a été pensée pour répondre aux besoins d’une vie moderne et organisée. Chaque détail a été étudié pour conjuguer praticité et esthétisme, offrant ainsi un lieu où il fait bon vivre en toute saison. Son architecture contemporaine et épurée, associée à un système de chauffage performant, garantit un cadre de vie agréable et éco-responsable. Une maison qui allie confort, modernité et sérénité – il ne manque plus que vous . Pour vous assurer un confort de vie et conformément à la RE2025, nous avons choisi un mode de chauffage par PAC + plancher chauffant, volets roulants électriques. Prix hors peinture, décoration, revêtements de sol dans les chambres, cuisine équipée, frais de notaire, raccordements, dommage ouvrage. // Réf. : 2649-210433-RER. Prix terrain : 171 150 €, hors frais d'agence à la charge de l'acquéreur. Ce terrain vous est proposé, par nos partenaires fonciers, dans le cadre d'un projet de construction avec nous. Les informations sur les risques auxquels ce bien est exposé sont disponibles sur le site Géorisques (www.georisques.gouv.fr). Prix maison : 175 253 €.
Lorient
TERRAIN ET MAISONBelle opportunité à saisir sur la commune. Terrain non viabilisé de m², bénéficiant d’une exposition optimale et d’un emplacement privilégié à proximité immédiate des commodités. Idéal pour concrétiser votre projet de construction sur mesure dans un environnement agréable et recherché. Un cocon familial où il fait bon vivre – Un cadre moderne et accueillant, prêt à accueillir vos plus beaux projets. Laissez-vous séduire par cette maison moderne et chaleureuse, où chaque espace a été pensé pour s’adapter à votre quotidien. Son séjour lumineux de plus de 44 m² vous offre un cadre convivial et ouvert, idéal pour les moments en famille. Avec quatre chambres spacieuses, dont une au rez-de-chaussée, cette maison allie confort et praticité. Son étage parfaitement agencé assure à chacun son espace privé, tout en conservant une belle harmonie de vie. Un garage attenant, une arrière-cuisine fonctionnelle et des espaces optimisés viennent compléter ce bien conçu pour le bien-être de toute la famille. Pour un confort optimal et conforme à la RE2025, cette maison dispose d’une PAC avec plancher chauffant au rez-de-chaussée, radiateurs à l’étage et volets roulants électriques. À noter : Le prix indiqué exclut les revêtements de sol des chambres, la cuisine aménagée, la peinture, la décoration, les raccordements, les frais de notaire et l’assurance dommages-ouvrage. // Réf. : 387-210433-RER. Prix terrain : 171 150 €, hors frais d'agence à la charge de l'acquéreur. Ce terrain vous est proposé, par nos partenaires fonciers, dans le cadre d'un projet de construction avec nous. Les informations sur les risques auxquels ce bien est exposé sont disponibles sur le site Géorisques (www.georisques.gouv.fr). Prix maison : 245 444 €.
Locmiquélic
TERRAIN ET MAISONBelle opportunité à saisir sur la commune. Terrain viabilisé de 405 m², bénéficiant d’une exposition optimale et d’un emplacement privilégié à proximité immédiate des commodités. Idéal pour concrétiser votre projet de construction sur mesure dans un environnement agréable et recherché. Cette maison au design soigné allie modernité et fonctionnalité pour s’adapter à votre mode de vie. Son architecture contemporaine et ses beaux volumes offrent un cadre lumineux et chaleureux, pensé pour le bien-être au quotidien. Avec 4 chambres, dont une suite parentale avec dressing et salle d’eau, elle conjugue espaces privatifs et lieux de partage. Un garage pratique, des rangements optimisés et une conception fluide font de cette maison un projet personnalisable, en parfaite harmonie avec vos envies. Faites le premier pas vers votre futur chez-vous. Contactez-nous !. Pour un confort optimal et conforme à la RE2025, cette maison dispose d’une PAC avec plancher chauffant au rez-de-chaussée, radiateurs à l’étage et volets roulants électriques. À noter : Le prix indiqué exclut les revêtements de sol des chambres, la cuisine aménagée, la peinture, la décoration, les raccordements, les frais de notaire et l’assurance dommages-ouvrage. // Réf. : 2451-210425-RER. Prix terrain : 141 750 €, hors frais d'agence à la charge de l'acquéreur. Ce terrain vous est proposé, par nos partenaires fonciers, dans le cadre d'un projet de construction avec nous. Les informations sur les risques auxquels ce bien est exposé sont disponibles sur le site Géorisques (www.georisques.gouv.fr). Prix maison : 338 496 €.
Locmiquélic
TERRAIN ET MAISONBelle opportunité à saisir sur la commune. Terrain viabilisé de 405 m², bénéficiant d’une exposition optimale et d’un emplacement privilégié à proximité immédiate des commodités. Idéal pour concrétiser votre projet de construction sur mesure dans un environnement agréable et recherché. Une maison moderne et astucieuse, prête à accueillir vos projets de vie !. Laissez-vous séduire par cette charmante maison à étage conçue pour allier confort et fonctionnalité. Son vaste espace de vie de plus de 42 m², baigné de lumière, s’ouvre sur l’extérieur pour des moments de convivialité en famille. Profitez du confort d’une suite parentale avec dressing et salle d’eau au rez-de-chaussée, offrant intimité et praticité. À l’étage, deux belles chambres et une salle de bains complètent cet espace pensé pour toute la famille. Un garage de plus de 23 m² vient parfaire ce bien, idéal pour allier rangement et stationnement. Une maison moderne et astucieuse, prête à accueillir vos projets de vie !. Pour un confort optimal et conforme à la RE2025, cette maison dispose d’une PAC avec plancher chauffant au rez-de-chaussée, radiateurs à l’étage et volets roulants électriques. À noter : Le prix indiqué exclut les revêtements de sol des chambres, la cuisine aménagée, la peinture, la décoration, les raccordements, les frais de notaire et l’assurance dommages-ouvrage. (Carport non contractuel, non compris dans le prix). // Réf. : 2428-210425-RER. Prix terrain : 141 750 €, hors frais d'agence à la charge de l'acquéreur. Ce terrain vous est proposé, par nos partenaires fonciers, dans le cadre d'un projet de construction avec nous. Les informations sur les risques auxquels ce bien est exposé sont disponibles sur le site Géorisques (www.georisques.gouv.fr). Prix maison : 239 582 €.
L’actualité immobilière à Ploemeur
27/11/2023
02/11/2023
30/10/2023
20/10/2023
16/10/2023
16/10/2023