Maison à construire à Ploeren (56880)
Images
Description
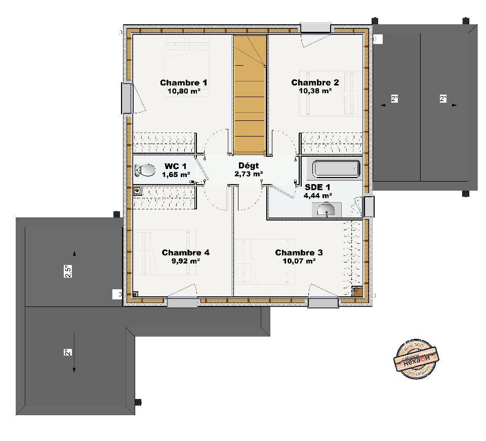
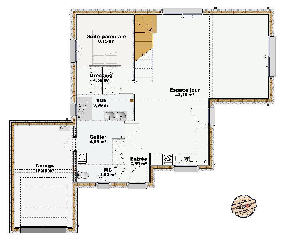
VENTE d'une maison OSSATURE BOIS T6 (155 m²) à Ploeren
PROCHE DE VANNES - MAISON 6 PIÈCES NEUVE
À vendre : située sur le littoral atlantique et à quelques kilomètres de Vannes, votre agence Maisons de l'Avenir Lorient est ravie de vous présenter cette maison de 6 pièces de 155 m² et de 203 m² de terrain à Ploeren (56880).
Il s'agit d'une maison de 2 niveaux. Son intérieur compte cinq chambres, une cuisine et deux salles de bains.
Elle est à vendre pour la somme de 562 950 €.
Prenez contact avec notre constructeur (Anne-Sophie LAPART : (Numéro supprimé)) pour toute question sur la maison, sur les démarches à suivre ou sur les modalités de vente. Maisons de l'Avenir Lorient est là pour vous accompagner à toutes les étapes de votre projet.
Logement susceptibles de vous intéresser
Nous vous proposons de découvrir aussi cette sélection de logements situés à moins de 10km de Ploeren et qui seraient susceptibles de vous intéresser.
Plougoumelen
TERRAINBelle opportunité à saisir sur la commune. Terrain bientot viabilisé de 467m², bénéficiant d’une exposition optimale et d’un emplacement privilégié à proximité immédiate des commodités. Idéal pour concrétiser votre projet de construction sur mesure dans un environnement agréable et recherché. // Réf. : T210405. Prix terrain : 149 000 €, hors frais d'agence et de notaire à la charge de l'acquéreur. Ce terrain vous est proposé, par nos partenaires fonciers, dans le cadre d'un projet de construction avec nous. Les informations sur les risques auxquels ce bien est exposé sont disponibles sur le site Géorisques (www.georisques.gouv.fr).
Plougoumelen
TERRAIN ET MAISONBelle opportunité à saisir sur la commune. Terrain bientot viabilisé de 467m², bénéficiant d’une exposition optimale et d’un emplacement privilégié à proximité immédiate des commodités. Idéal pour concrétiser votre projet de construction sur mesure dans un environnement agréable et recherché. Offrez-vous une maison spacieuse et lumineuse, pensée pour répondre aux exigences de la vie moderne. Son architecture élégante et ses volumes optimisés créent un cadre de vie agréable, alliant convivialité et intimité. Avec 4 chambres, dont une suite parentale au rez-de-chaussée, cette maison est idéale pour une famille en quête d’espace et de confort. Son vaste espace de vie baigné de lumière et ouvert sur l’extérieur invite à la détente et aux moments de partage. Afin de vous garantir un confort optimal et de répondre aux exigences de la RE2025, cette maison est équipée d’un système de chauffage par pompe à chaleur (PAC), avec un plancher chauffant au rez-de-chaussée et des radiateurs à l’étage. Des volets roulants électriques complètent les prestations pour plus de praticité. À noter :Le prix indiqué ne comprend pas la fourniture et la pose des revêtements de sol dans les chambres, la cuisine aménagée, ainsi que la peinture et la décoration intérieure. Il exclut également les raccordements, les frais de notaire et l’assurance dommages-ouvrage. (Piscine non contractuelle, non comprise dans le prix). // Réf. : 1671-210405-RER. Prix terrain : 149 000 €, hors frais d'agence à la charge de l'acquéreur. Ce terrain vous est proposé, par nos partenaires fonciers, dans le cadre d'un projet de construction avec nous. Les informations sur les risques auxquels ce bien est exposé sont disponibles sur le site Géorisques (www.georisques.gouv.fr). Prix maison : 349 453 €.
Plougoumelen
TERRAIN ET MAISONBelle opportunité à saisir sur la commune. Terrain bientot viabilisé de 467m², bénéficiant d’une exposition optimale et d’un emplacement privilégié à proximité immédiate des commodités. Idéal pour concrétiser votre projet de construction sur mesure dans un environnement agréable et recherché. Lignes élégantes, volumes généreux et espaces optimisés : cette maison contemporaine est une invitation au confort et à la modernité. Avec ses 4 chambres, dont une suite parentale avec dressing et salle d’eau, elle s’adapte parfaitement à votre mode de vie. Sa pièce de vie de 70 m², baignée de lumière, promet des moments chaleureux en famille ou entre amis. Besoin d’un espace dédié au travail ou à vos passions ? Un bureau indépendant complète l’ensemble. À l’extérieur, profitez d’une terrasse couverte, d’un garage spacieux et d’un carport pratique. Pensée pour être 100% personnalisable, cette maison devient celle de vos envies. Pour un confort optimal et conforme à la RE2025, cette maison dispose d’une PAC avec plancher chauffant et volets roulants électriques. À noter : Le prix indiqué exclut les revêtements de sol des chambres, la cuisine aménagée, la peinture, la décoration, les raccordements, les frais de notaire et l’assurance dommages-ouvrage. (Piscine non contractuelle, non comprise dans le prix). Contactez-nous pour en savoir plus et imaginez votre futur chez-vous !. . // Réf. : 1685-210405-RER. Prix terrain : 149 000 €, hors frais d'agence à la charge de l'acquéreur. Ce terrain vous est proposé, par nos partenaires fonciers, dans le cadre d'un projet de construction avec nous. Les informations sur les risques auxquels ce bien est exposé sont disponibles sur le site Géorisques (www.georisques.gouv.fr). Prix maison : 639 243 €.
Plougoumelen
TERRAIN ET MAISONBelle opportunité à saisir sur la commune. Terrain bientot viabilisé de 467m², bénéficiant d’une exposition optimale et d’un emplacement privilégié à proximité immédiate des commodités. Idéal pour concrétiser votre projet de construction sur mesure dans un environnement agréable et recherché. Une maison adaptable, parfaite pour concilier vie familiale et espace de travail. Une conception moderne et lumineuse avec des espaces bien pensés pour un quotidien agréable. Un vaste séjour ouvert, une suite parentale au rez-de-chaussée et 3 chambres à l’étage, accompagnées d’un bureau, offrent un cadre idéal pour toute la famille. De belles ouvertures sur l’extérieur, un aménagement fluide et des prestations de qualité pour un intérieur chaleureux et fonctionnel. Garage, cellier et nombreux rangements pour plus de praticité. Pour un confort optimal et conforme à la RE2025, cette maison dispose d’une PAC avec plancher chauffant au rez-de-chaussée, radiateurs à l’étage et volets roulants électriques. À noter : Le prix indiqué exclut les revêtements de sol des chambres, la cuisine aménagée, la peinture, la décoration, les raccordements, les frais de notaire et l’assurance dommages-ouvrage. (Piscine non contractuelle, non comprise dans le prix). // Réf. : 1672-210405-RER. Prix terrain : 149 000 €, hors frais d'agence à la charge de l'acquéreur. Ce terrain vous est proposé, par nos partenaires fonciers, dans le cadre d'un projet de construction avec nous. Les informations sur les risques auxquels ce bien est exposé sont disponibles sur le site Géorisques (www.georisques.gouv.fr). Prix maison : 342 789 €.
Plougoumelen
TERRAINBelle opportunité à saisir sur la commune. Terrain bientot viabilisé de 467m², bénéficiant d’une exposition optimale et d’un emplacement privilégié à proximité immédiate des commodités. Idéal pour concrétiser votre projet de construction sur mesure dans un environnement agréable et recherché. // Réf. : T210405. Prix terrain : 149 000 €, hors frais d'agence et de notaire à la charge de l'acquéreur. Ce terrain vous est proposé, par nos partenaires fonciers, dans le cadre d'un projet de construction avec nous. Les informations sur les risques auxquels ce bien est exposé sont disponibles sur le site Géorisques (www.georisques.gouv.fr).
Séné
TERRAINSENE BOURG – A deux pas du bourg de Séné et à seulement quelques minutes du port de Vannes, Claire FOUREAU vous propose ce terrain de 372 m² qui offre un cadre de vie recherché, entre calme résidentiel et commodités à proximité.Situé dans le secteur Uba du PLU avec un CES de 60%, il bénéficie d’une excellente orientation Sud et Ouest, idéale pour une maison lumineuse et ouverte sur un jardin bien exposé.Un emplacement rare pour concrétiser votre projet de construction dans un environnement agréable.Pour visiter et vous accompagner dans votre projet, contactez Claire FOUREAU, au (Numéro supprimé) ou, par courriel à (Email supprimé).———————————————————-Prix de vente 198000 euros dont 7% honoraires TTC inclus à la charge de l’acquéreur soit prix net vendeur 185000 euros.———————————————————-Selon l’article L.561.5 du Code Monétaire et Financier, pour l’organisation de la visite, la présentation d’une pièce d’identité vous sera demandée.Cette présente annonce a été rédigée sous la responsabilité éditoriale de Claire FOUREAU agissant sous le statut d’agent commercial immatriculé au RSAC nantes 828 890 871 auprès de SAS PROPRIETES PRIVEES, au capital de 44 920 euros, ZAC LE CHÊNE FERRÉ – 44 ALLÉE DES CINQ CONTINENTS 44120 VERTOU; SIRET 487 624 777 00040, RCS Nantes. Carte Professionnelle Transactions sur immeubles et fonds de commerce (T) et Gestion immobilière (G) n°CPI 4401 2016 000 010 388 délivrée par la CCI Nantes – Saint Nazaire. Compte séquestre n(Numéro supprimé)67 BPA SAINT-SEBASTIEN-SUR-LOIRE (44230). Garantie GALIAN-SMABTP – 89 rue de la Boétie, 75008 Paris – n°28137 J pour 2 000 000 euros pour T et 120 000 euros pour G. Assurance responsabilité civile professionnelle par GALIAN-SMABTP n° de police 28137.JMandat réf : 426737CLAF – Le professionnel garantit et sécurise votre projet immobilier. (7.03 % honoraires TTC à la charge de l’acquéreur.) Claire FOUREAU (EI) Agent Commercial – Numéro RSAC : nantes 828 890 871 – .Les informations sur les risques auxquels ce bien est exposé sont disponibles sur le site Géorisques : www. georisques. gouv. fr
Baden
TERRAINExclusivité 3 %.Com Immobilier Julie & Romain BRIFFAUT Implantée à 2 kms du bourg dans un secteur proche de commodités, bus, commerces, pistes cyclable à proximité venez découvrir ce terrain issue d’une division parcellaire en retrait de la route au calme, sentiers côtiers à 3 kms. Terrain vendu libre de constructeur Idéal pour construire une maison de plain pied ou à étage de plus de 150m2, piscinable, avec une belle exposition Sud et une entrée au nord. Contactez-nous pour échanger et disposer des informations sur ce terrain Superficie de 648m2, il est vendu borné et la viabilisation sera à la charge de l’acquéreur. Il dispose d’une emprise au sol de 50 %, située en Zone Ub du PLU de Baden. Prix de vente frais d’agence inclus de 257 500 EUR dont 3 % de frais d’agence à la charge de l’acquéreur. Prix de vente hors frais d’agence de 250 000 EUR Contactez Romain BRIFFAUT au (Numéro supprimé)-RSAC de Vannes 820 039 162 Agent Commercial en immobilier. – Annonce rédigée et publiée par un Agent Mandataire –
Plougoumelen
TERRAIN ET MAISONTerrain viabilisé de 350 m² en lotissement (19 lots) situé à deux pas du centre bourg de PLOUGOUMELEN. Commune dynamique du Morbihan proche du Golfe du Morbihan et proche de VANNES (10 min en voiture), située sur l’axe AURAY – VANNES. . Idéal pour la construction de votre future maison, ce terrain offre une belle exposition SUD/OUEST et le confort de toutes commodités à proximité (écoles, services, commerces). Belle opportunité à saisir !. Une maison idéale pour les petits terrains, sans compromis sur l’espace ! Grâce à son agencement optimisé, cette maison s’adapte parfaitement aux terrains de taille réduite tout en offrant des volumes généreux et un confort absolu. Le rez-de-chaussée accueille une pièce de vie ouverte et lumineuse, pensée pour favoriser la convivialité. Son agencement fluide entre le salon, la salle à manger et la cuisine permet un cadre chaleureux et moderne. Un cellier discret ajoute une solution de rangement pratique au quotidien. À l’étage, trois chambres confortables assurent à chacun son propre espace, tandis qu’une salle de bain fonctionnelle et des WC indépendants garantissent un confort optimal pour toute la famille. Un design contemporain et intelligent, parfait pour maximiser l’espace même sur une petite parcelle !. Pour vous assurer un confort de vie optimal et en conformité avec la RE2025, nous avons opté pour un système de chauffage par pompe à chaleur (PAC) avec plancher chauffant au rez-de-chaussée et radiateurs à l’étage. Le logement est également équipé de volets roulants électriques. Prix hors fourniture et pose : des appareils sanitaires (sauf système de chauffage et d'eau chaude sanitaire), du carrelage et de la faïence, des revêtements de sol dans les chambres. Hors décoration et aménagement intérieur et peinture. Hors raccordements, frais de notaire et dommage ouvrage. // Réf. : 2493-210173-TOB. Prix terrain : 115 000 €, hors frais d'agence à la charge de l'acquéreur. Ce terrain vous est proposé, par nos partenaires fonciers, dans le cadre d'un projet de construction avec nous. Les informations sur les risques auxquels ce bien est exposé sont disponibles sur le site Géorisques (www.georisques.gouv.fr). Prix maison : 181 503 €.
Plougoumelen
TERRAIN ET MAISONTerrain viabilisé de 350 m² en lotissement (19 lots) situé à deux pas du centre bourg de PLOUGOUMELEN. Commune dynamique du Morbihan proche du Golfe du Morbihan et proche de VANNES (10 min en voiture), située sur l’axe AURAY – VANNES. . Idéal pour la construction de votre future maison, ce terrain offre une belle exposition SUD/OUEST et le confort de toutes commodités à proximité (écoles, services, commerces). Belle opportunité à saisir !. Devenez Propriétaire de votre Maison Evolutive avec EVOLIA . Bienvenue dans l'ère de la maison évolutive avec EVOLIÂ. Spécialement conçue pour s'adapter à chaque étape de votre vie, la maison EVOLIÂ vous offre une flexibilité inégalée et une transformation facile pour répondre à vos besoins changeants. Que vous soyez une jeune famille, un couple ou une personne seule, EVOLIÂ évolue avec vous. Agrandissez, réduisez ou modifiez vos espaces de vie au gré de vos besoins et de vos envies. Ne laissez plus vos besoins en logement vous limiter. Avec EVOLIÂ, votre maison s’adapte à vous, et non l’inverse. Contactez nos experts conseillers en construction dès aujourd’hui pour découvrir comment EVOLIÂ peut devenir la maison de vos rêves. Prix hors fourniture et pose : des appareils sanitaires (sauf système de chauffage et d'eau chaude sanitaire), du carrelage, de la faïence, de la cuisine aménagée, des revêtements de sol dans les chambres. Hors décoration et aménagement intérieur et peinture. Hors raccordements, frais de notaire et dommage ouvrage. // Réf. : 2459-210173-TOB. Prix terrain : 115 000 €, hors frais d'agence à la charge de l'acquéreur. Ce terrain vous est proposé, par nos partenaires fonciers, dans le cadre d'un projet de construction avec nous. Les informations sur les risques auxquels ce bien est exposé sont disponibles sur le site Géorisques (www.georisques.gouv.fr). Prix maison : 77 896 €.
L’actualité immobilière à Ploeren
27/11/2023
02/11/2023
30/10/2023
20/10/2023
16/10/2023
16/10/2023