Maison à construire à Plouay (56240)
Images
Description
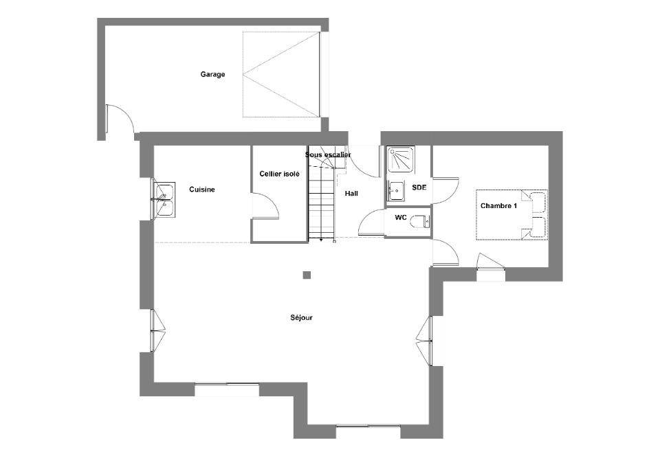
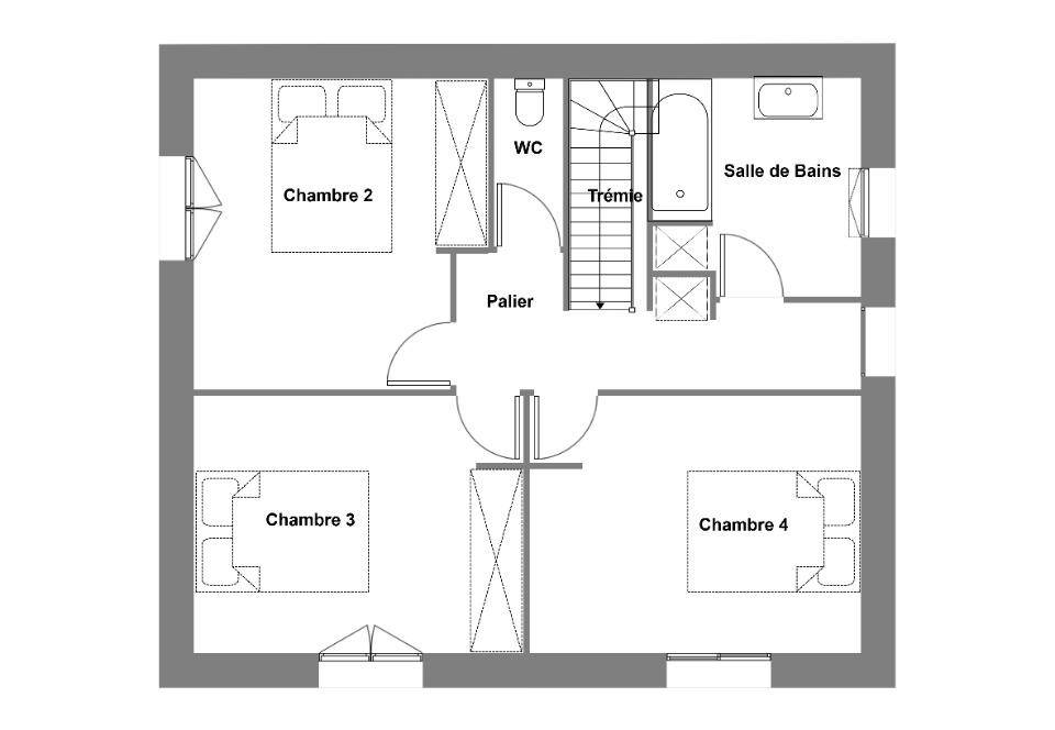
VENTE d'une maison F5 (105 m²) à Plouay
MAISON 5 PIÈCES NEUVE - PROCHE DE LORIENT
À vendre à 26 km de la côte atlantique et à deux pas de Lorient, venez découvrir cette maison de 5 pièces de 105 m² et de 295 m² de terrain à Plouay (56240). Son intérieur dispose de quatre chambres, d'une cuisine et de deux salles de bains.
C'est une maison de 2 niveaux.
Elle est à vendre pour la somme de 312 900 €.
Prenez contact avec notre agence (LAPART Anne-Sophie : (Numéro supprimé)) pour tout renseignement sur cette maison. Maisons de l'Avenir Lorient vous accompagne dans tous vos projets immobiliers et dans toutes vos démarches.
Logement susceptibles de vous intéresser
Nous vous proposons de découvrir aussi cette sélection de logements situés à moins de 10km de Plouay et qui seraient susceptibles de vous intéresser.
Lanvaudan
TERRAINVENTE : terrain de 400 m² à LanvaudanEMPLACEMENT PRIVILÉGIÉ – PROCHE DE LORIENTÀ 28 km de l’océan Atlantique et à quelques kilomètres de Lorient à Lanvaudan (56240), terrain de 400 m². Il est prêt à accueillir la maison de vos rêves pour toute la famille. Dans un secteur attractif, ce terrain bénéficiant d’un emplacement privilégié est proche des écoles et des commerces. Il y a l’École Primaire Publique les Chaumières à moins de 10 minutes à pied. Il y a un accès à la nationale N24 à 10 km. On trouve un tennis à quelques minutes du terrain.Ce terrain est à vendre pour la somme de 35 500 €. N’hésitez pas à prendre contact avec Christophe COLLOCH ((Numéro supprimé)) pour toute information sur le terrain, sur les modalités de vente ou sur les démarches à suivre. Maisons de l’Avenir Lorient vous accompagne à toutes les étapes de l’achat et dans tous vos projets immobiliers.
Lanvaudan
TERRAIN ET MAISONMaison de 4 pièces (70 m²) en vente à LanvaudanQUARTIER RECHERCHÉ – MAISON 4 PIÈCES NEUVEÀ vendre à 28 km de la côte atlantique et à 18 km de Lorient, votre agence Maisons de l’Avenir Lorient est heureuse de vous présenter, située dans un quartier attractif de Lanvaudan (56240), cette maison de 4 pièces de plain-pied de 70 m².Son intérieur inclut trois chambres, une cuisine et une salle de bains. Cette maison est neuve.Le terrain du bien est de 360 m².Cette maison se situe dans un secteur convoité. Il y a l’École Primaire Publique les Chaumières à moins de 10 minutes à pied. Il y a un accès à la nationale N24 à 10 km. On trouve un tennis à proximité.Elle est proposée à l’achat pour 199 000 €.Prenez contact avec notre agence (Christophe COLLOCH : (Numéro supprimé)) pour plus de renseignements sur la maison.
Lanvaudan
TERRAINVENTE d’un terrain de 440 m² à LanvaudanEMPLACEMENT PRIVILÉGIÉ – PROCHE DE LORIENTÀ Lanvaudan (56240) à vendre à 28 km de l’océan Atlantique et à 18 km de Lorient, projetez la maison de vos rêves sur ce terrain de 440 m². Dans un secteur attractif, ce terrain bénéficiant d’un emplacement privilégié est proche des écoles et des commerces. L’École Primaire Publique les Chaumières se trouve à moins de 10 minutes à pied. La nationale N24 est accessible à 10 km. Il y a un tennis dans les environs.Son prix de vente est de 45 000 €. N’hésitez pas à prendre contact avec notre agence (COLLOCH Christophe : (Numéro supprimé)) pour tout renseignement sur ce terrain ou sur les démarches à suivre.
Lanvaudan
TERRAIN ET MAISONVENTE d’une maison T5 (131 m²) à LanvaudanEMPLACEMENT PRIVILÉGIÉ – MAISON 5 PIÈCES NEUVEÀ vendre : située à 28 km de l’océan Atlantique et à deux pas de Lorient, Maisons de l’Avenir Lorient vous propose cette maison de 5 pièces de plain-pied de 131 m², bénéficiant d’un emplacement d’exception dans Lanvaudan (56240).Conçue de plain-pied, elle comporte quatre chambres, une cuisine et deux salles de bains. Cette maison est neuve.Le terrain de la propriété est de 440 m².Cette maison se situe dans un secteur recherché. Il y a l’École Primaire Publique les Chaumières à moins de 10 minutes à pied. Il y a un accès à la nationale N24 à 10 km. On trouve un tennis dans les environs.Elle est à vendre pour la somme de 358 500 €.N’hésitez pas à prendre contact avec Christophe COLLOCH ((Numéro supprimé)) pour obtenir de plus amples informations sur la maison ou sur les démarches à suivre. Concrétisez vos projets immobiliers avec Maisons de l’Avenir Lorient.
Lanvaudan
TERRAIN ET MAISONVENTE d’une maison T4 (75 m²) à LanvaudanEMPLACEMENT PRIVILÉGIÉ – MAISON 4 PIÈCES NEUVEÀ vendre à 28 km de la côte atlantique et à deux pas de Lorient, nous sommes ravis de vous proposer cette maison de 4 pièces de 75 m² et de 400 m² de terrain bénéficiant d’un emplacement privilégié dans Lanvaudan (56240).Il s’agit d’une maison de 2 niveaux. Elle propose trois chambres, une cuisine et une salle de bains. La maison est neuve.Ce bien se situe dans un quartier convoité. Il y a l’École Primaire Publique les Chaumières à moins de 10 minutes à pied. Il y a un accès à la nationale N24 à 10 km. On trouve un tennis à quelques minutes du bien.Il est proposé à l’achat pour 195 500 €.Prenez contact avec notre agence (COLLOCH Christophe : (Numéro supprimé)) pour obtenir de plus amples renseignements sur la maison ou sur les modalités de vente. Maisons de l’Avenir Lorient vous accompagne dans toutes vos démarches et dans tous vos projets immobiliers.
Lanvaudan
TERRAIN ET MAISONVENTE d’une maison F5 (87 m²) à LanvaudanEMPLACEMENT PRIVILÉGIÉ – MAISON 5 PIÈCES NEUVEEn vente : à 28 km de la côte atlantique et à 18 km de Lorient, nous sommes heureux de vous proposer cette maison de 5 pièces de 87 m² et de 400 m² de terrain bénéficiant d’un emplacement privilégié dans Lanvaudan (56240). Son intérieur inclut quatre chambres, une cuisine et une salle de bains.Cette maison comporte 2 niveaux. Elle est neuve.La maison se situe dans un secteur attractif. On trouve l’École Primaire Publique les Chaumières à moins de 10 minutes à pied. La nationale N24 est accessible à 10 km. Il y a un tennis dans les environs.Elle est à vendre pour la somme de 249 500 €.Prenez contact avec Christophe COLLOCH ((Numéro supprimé)) pour toute information sur la maison. Donnez vie à vos projets immobiliers avec Maisons de l’Avenir Lorient.
Lanvaudan
TERRAINLanvaudan : terrain de 360 m² à vendreQUARTIER RECHERCHÉ – PROCHE DE LORIENTTerrain de 360 m² à 28 km de la côte atlantique et à quelques kilomètres de Lorient. Ce terrain se situe situé dans un quartier attractif de Lanvaudan (56240). Dans un secteur convoité, le terrain est proche des écoles et des commerces. Il y a l’École Primaire Publique les Chaumières à moins de 10 minutes à pied. La nationale N24 est accessible à 10 km. On trouve un tennis à proximité.Son prix de vente est de 26 000 €. Contactez Christophe COLLOCH (tél : (Numéro supprimé)) pour plus de renseignements sur le terrain, sur les modalités de vente ou sur les démarches à suivre.
Lanvaudan
TERRAIN ET MAISONMaison de 5 pièces (102 m²) à vendre à LanvaudanEMPLACEMENT PRIVILÉGIÉ – MAISON 5 PIÈCES NEUVEÀ vendre à 28 km de la côte atlantique et à quelques kilomètres de Lorient, venez découvrir cette maison de 5 pièces de 102 m² bénéficiant d’un emplacement privilégié dans Lanvaudan (56240).Cette maison possède 2 niveaux. Elle comporte quatre chambres, une cuisine et deux salles de bains. Cette maison est neuve.Le terrain de la propriété s’étend sur 400 m².La propriété se trouve dans un quartier recherché. L’École Primaire Publique les Chaumières est implantée à moins de 10 minutes à pied. La nationale N24 est accessible à 10 km. On trouve un tennis à proximité.Elle est à vendre pour la somme de 243 800 €.N’hésitez pas à prendre contact avec Christophe COLLOCH ((Numéro supprimé)) pour tout renseignement sur la maison. Concrétisez vos projets immobiliers avec Maisons de l’Avenir Lorient.
Lanvaudan
TERRAIN ET MAISONMaison T4 (70 m²) à vendre à LanvaudanEMPLACEMENT PRIVILÉGIÉ – MAISON 4 PIÈCES NEUVEÀ 28 km de la côte atlantique et à 18 km de Lorient, à vendre bénéficiant d’un emplacement d’exception dans Lanvaudan (56240), nous vous présentons cette maison de 4 pièces de plain-pied de 70 m². Elle offre trois chambres, une cuisine et une salle de bains.Le terrain de la maison est de 400 m².Cette maison est neuve.Cette maison se situe dans un quartier prisé. Il y a l’École Primaire Publique les Chaumières à moins de 10 minutes à pied. On trouve un accès à la nationale N24 à 10 km. On trouve un tennis dans les environs.Elle est proposée à l’achat pour 209 500 €.N’hésitez pas à prendre contact avec notre agence (COLLOCH Christophe : (Numéro supprimé)) pour obtenir de plus amples informations sur le bien. Maisons de l’Avenir Lorient vous accompagne à toutes les étapes de l’achat et dans tous vos projets immobiliers.
L’actualité immobilière à Plouay
27/11/2023
02/11/2023
30/10/2023
20/10/2023
16/10/2023
16/10/2023