Maison à construire à Pluvigner (56330)
Images
Description
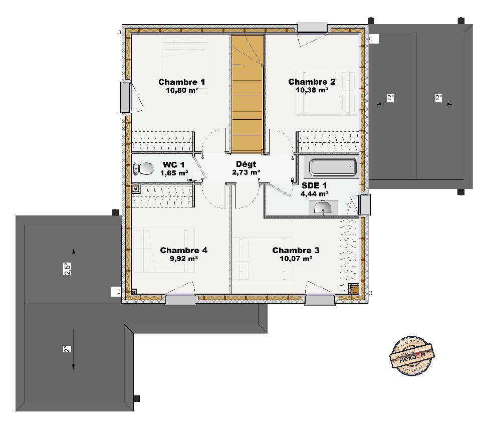
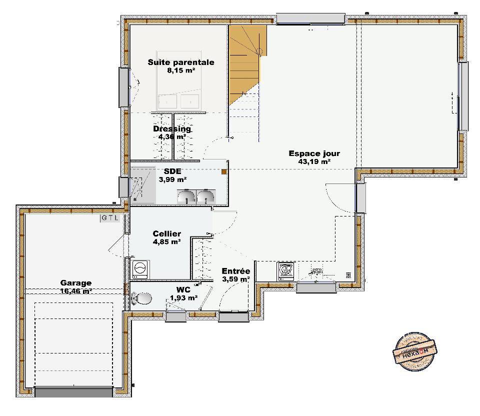
VENTE d'une maison ossature bois de 6 pièces (140 m²) à Pluvigner
PROCHE DE LORIENT - MAISON 6 PIÈCES NEUVE
En vente : à 23 km de la côte atlantique et à deux pas de Lorient, nous vous présentons cette maison de 6 pièces de 140 m² à Pluvigner (56330).
Il s'agit d'une maison de 2 niveaux. Son intérieur comporte cinq chambres, une cuisine et deux salles de bains.
Le terrain du bien s'étend sur 582 m².
Elle est à vendre pour la somme de 437 900 €.
Contactez Anne-Sophie LAPART (tél : (Numéro supprimé)) pour tout renseignement sur cette maison. Maisons de l'Avenir Lorient est là pour vous accompagner dans toutes vos démarches.
Logement susceptibles de vous intéresser
Nous vous proposons de découvrir aussi cette sélection de logements situés à moins de 10km de Pluvigner et qui seraient susceptibles de vous intéresser.
Camors
TERRAINTerrain d’env. 900 m² à bâtir et à viabiliser, idéalement situé et bien exposé à CAMORSLes informations sur les risques auxquels ce bien est exposé sont disponibles sur le site Géorisques : www.georisques.gouv.fr (8.27 % honoraires TTC à la charge de l’acquéreur.)
Landévant
TERRAINBelle opportunité à saisir sur la commune. Terrain viabilisé de 735 m², bénéficiant d’une exposition optimale et d’un emplacement privilégié à proximité immédiate des commodités. Idéal pour concrétiser votre projet de construction sur mesure dans un environnement agréable et recherché. // Réf. : T210415. Prix terrain : 105 000 €, hors frais d'agence et de notaire à la charge de l'acquéreur. Ce terrain vous est proposé, par nos partenaires fonciers, dans le cadre d'un projet de construction avec nous. Les informations sur les risques auxquels ce bien est exposé sont disponibles sur le site Géorisques (www.georisques.gouv.fr).
Landévant
TERRAIN ET MAISONBelle opportunité à saisir sur la commune. Terrain viabilisé de 735 m², bénéficiant d’une exposition optimale et d’un emplacement privilégié à proximité immédiate des commodités. Idéal pour concrétiser votre projet de construction sur mesure dans un environnement agréable et recherché. Offrez-vous un espace de vie généreux et baigné de lumière, conçu pour allier esthétique et confort. Avec ses 3 chambres, dont une suite parentale avec dressing et salle d’eau, ainsi qu’un bureau idéal pour le télétravail, cette maison s’adapte à tous vos projets. Son architecture fluide et moderne met en valeur des volumes spacieux et bien pensés, créant un intérieur chaleureux et fonctionnel. Chaque détail peut être personnalisé pour correspondre à votre style de vie. Faites de cette maison votre futur cocon, adaptée à votre terrain et à vos envies. Besoin d’inspiration ? Contactez-nous pour en discuter !. Pour un confort optimal et conforme à la RE2025, cette maison dispose d’une PAC avec plancher chauffant au rez-de-chaussée, radiateurs à l’étage et volets roulants électriques. À noter : Le prix indiqué exclut les revêtements de sol des chambres, la cuisine aménagée, la peinture, la décoration, les raccordements, les frais de notaire et l’assurance dommages-ouvrage. // Réf. : 390-210415-RER. Prix terrain : 105 000 €, hors frais d'agence à la charge de l'acquéreur. Ce terrain vous est proposé, par nos partenaires fonciers, dans le cadre d'un projet de construction avec nous. Les informations sur les risques auxquels ce bien est exposé sont disponibles sur le site Géorisques (www.georisques.gouv.fr). Prix maison : 252 960 €.
Landévant
TERRAIN ET MAISONBelle opportunité à saisir sur la commune. Terrain viabilisé de 735 m², bénéficiant d’une exposition optimale et d’un emplacement privilégié à proximité immédiate des commodités. Idéal pour concrétiser votre projet de construction sur mesure dans un environnement agréable et recherché. Un agencement intelligent et des espaces lumineux pour cette maison de plus de 110 m² habitables. Son grand séjour ouvert invite à la convivialité, tandis que ses 4 chambres bien réparties, dont une au rez-de-chaussée, assurent confort et intimité pour toute la famille. Un cadre de vie agréable, avec de belles ouvertures sur l’extérieur et des volumes optimisés pour un maximum de praticité. Garage et espaces de rangement intégrés, pensés pour s’adapter à votre quotidien. Une maison qui conjugue modernité, confort et adaptabilité. Pour un confort optimal et conforme à la RE2025, cette maison dispose d’une PAC avec plancher chauffant au rez-de-chaussée, radiateurs à l’étage et volets roulants électriques. À noter : Le prix indiqué exclut les revêtements de sol des chambres, la cuisine aménagée, la peinture, la décoration, les raccordements, les frais de notaire et l’assurance dommages-ouvrage. . // Réf. : 369-210415-RER. Prix terrain : 105 000 €, hors frais d'agence à la charge de l'acquéreur. Ce terrain vous est proposé, par nos partenaires fonciers, dans le cadre d'un projet de construction avec nous. Les informations sur les risques auxquels ce bien est exposé sont disponibles sur le site Géorisques (www.georisques.gouv.fr). Prix maison : 243 012 €.
Landévant
TERRAIN ET MAISONBelle opportunité à saisir sur la commune. Terrain viabilisé de 735 m², bénéficiant d’une exposition optimale et d’un emplacement privilégié à proximité immédiate des commodités. Idéal pour concrétiser votre projet de construction sur mesure dans un environnement agréable et recherché. Une maison qui a tout pour plaire !. Laissez-vous séduire par cette maison à l’architecture élégante, où chaque espace est conçu pour répondre à vos envies de lumière, de confort et de modernité. Son espace de vie généreux, baigné de lumière naturelle grâce à de larges ouvertures, invite à la convivialité et au bien-être. L’étage réserve un univers cosy avec deux grandes chambres, un dressing spacieux et une salle d’eau moderne, créant un véritable cocon d’intimité. Pratique et fonctionnelle, cette maison dispose aussi d’un garage intégré et d’un cellier pour un quotidien simplifié. Un cadre de vie unique, où élégance et praticité se rencontrent. Contactez-nous pour en savoir plus !. Pour un confort optimal et conforme à la RE2025, cette maison dispose d’une PAC avec plancher chauffant au rez-de-chaussée, radiateurs à l’étage et volets roulants électriques. À noter : Le prix indiqué exclut les revêtements de sol des chambres, la cuisine aménagée, la peinture, la décoration, les raccordements, les frais de notaire et l’assurance dommages-ouvrage. (Piscine non contractuelle, non comprise dans le prix). // Réf. : 1718-210415-RER. Prix terrain : 105 000 €, hors frais d'agence à la charge de l'acquéreur. Ce terrain vous est proposé, par nos partenaires fonciers, dans le cadre d'un projet de construction avec nous. Les informations sur les risques auxquels ce bien est exposé sont disponibles sur le site Géorisques (www.georisques.gouv.fr). Prix maison : 272 146 €.
Landévant
TERRAINBelle opportunité à saisir sur la commune. Terrain viabilisé de 735 m², bénéficiant d’une exposition optimale et d’un emplacement privilégié à proximité immédiate des commodités. Idéal pour concrétiser votre projet de construction sur mesure dans un environnement agréable et recherché. // Réf. : T210415. Prix terrain : 105 000 €, hors frais d'agence et de notaire à la charge de l'acquéreur. Ce terrain vous est proposé, par nos partenaires fonciers, dans le cadre d'un projet de construction avec nous. Les informations sur les risques auxquels ce bien est exposé sont disponibles sur le site Géorisques (www.georisques.gouv.fr).
Landévant
TERRAINTerrain de 269 m² à vendre à LandévantEMPLACEMENT PRIVILÉGIÉ – PROCHE DE LORIENTTerrain de 269 m² à 16 km de l’océan Atlantique et à 20 km de Lorient. Ce terrain se situe bénéficiant d’un emplacement privilégié dans Landévant (56690). Dans un secteur recherché, ce terrain est proche des commerces et des écoles. L’École Primaire Publique l’Encre Bleue et l’École Primaire Privée Sainte Marie sont implantées à moins de 10 minutes à pied. Niveau transports en commun, on trouve la gare Landévant dans les environs. La nationale N165 est accessible à 1 km. Il y a un tennis, deux boulangeries, un supermarché, deux commerces, un bureau de poste et une boucherie-charcuterie à proximité.Ce terrain est à vendre pour la somme de 65 000 €. Contactez Christophe COLLOCH ((Numéro supprimé)) pour toute question sur le terrain ou sur les modalités de vente.
Landévant
TERRAIN ET MAISONLandévant : maison T5 (87 m²) en venteEMPLACEMENT PRIVILÉGIÉ – MAISON 5 PIÈCES NEUVEÀ vendre : localisée à 16 km de la côte atlantique et à deux pas de Lorient, bénéficiant d’un emplacement privilégié dans Landévant (56690), Maisons de l’Avenir Lorient vous propose cette maison de 5 pièces de 87 m² et de 269 m² de terrain.C’est une maison de 2 niveaux. Son intérieur compte quatre chambres, une cuisine et une salle de bains. La maison est neuve.Ce bien est situé dans un quartier recherché. On trouve l’École Primaire Publique l’Encre Bleue et l’École Primaire Privée Sainte Marie à moins de 10 minutes à pied. Niveau transports en commun, il y a la gare Landévant à quelques pas de la maison. La nationale N165 est accessible à 1 km. On trouve un tennis, deux boulangeries, un supermarché, deux commerces, un bureau de poste et une boucherie-charcuterie dans les environs.Son prix de vente est de 294 000 €.Contactez notre agence (Christophe COLLOCH : (Numéro supprimé)) pour plus de renseignements sur la maison ou sur les démarches à suivre.
Landévant
TERRAIN ET MAISONVENTE d’une maison T4 (70 m²) à LandévantEMPLACEMENT PRIVILÉGIÉ – MAISON 4 PIÈCES NEUVEÀ 16 km de l’océan Atlantique et à 20 km de Lorient, découvrez cette maison de 4 pièces de plain-pied de 70 m² et de 269 m² de terrain à vendre, bénéficiant d’un emplacement d’exception dans Landévant (56690).Son intérieur offre trois chambres, une cuisine et une salle de bains. La maison est neuve.Ce bien se situe dans un secteur prisé. L’École Primaire Publique l’Encre Bleue et l’École Primaire Privée Sainte Marie sont implantées à moins de 10 minutes à pied. Niveau transports en commun, il y a la gare Landévant dans les alentours. La nationale N165 est accessible à 1 km. On trouve un tennis, deux boulangeries, un supermarché, deux commerces, un bureau de poste et une boucherie-charcuterie à proximité du bien.Son prix de vente est de 235 000 €.N’hésitez pas à prendre contact avec Christophe COLLOCH ((Numéro supprimé)) pour tout renseignement sur la maison, sur les démarches à suivre ou sur les modalités de vente.
L’actualité immobilière à Pluvigner
27/11/2023
02/11/2023
30/10/2023
20/10/2023
16/10/2023
16/10/2023