Maison à construire à Pluvigner (56330)
Images
Description
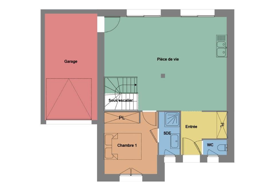
VENTE d'une maison de 5 pièces (100 m²) à Pluvigner
MAISON 5 PIÈCES NEUVE - PROCHE DE LORIENT
À vendre : à 23 km de l'océan Atlantique et à 27 km de Lorient, notre agence Maisons de l'Avenir Lorient est heureuse de vous proposer à Pluvigner (56330), cette maison de 5 pièces de 100 m². Elle propose quatre chambres, une cuisine et deux salles de bains.
Le terrain du bien est de 411 m².
C'est une maison de 2 niveaux.
Elle est à vendre pour la somme de 300 760 €.
N'hésitez pas à prendre contact avec notre agence (Anne-Sophie LAPART : (Numéro supprimé)) pour tout renseignement sur la maison. Maisons de l'Avenir Lorient vous accompagne à toutes les étapes de votre projet et dans toutes vos démarches.
Logement susceptibles de vous intéresser
Nous vous proposons de découvrir aussi cette sélection de logements situés à moins de 10km de Pluvigner et qui seraient susceptibles de vous intéresser.
Pluvigner
TERRAIN ET MAISONVENTE d’une maison de 5 pièces (100 m²) à PluvignerMAISON 5 PIÈCES NEUVE – PROCHE DE LORIENTÀ vendre : à 23 km de l’océan Atlantique et à 27 km de Lorient, notre agence Maisons de l’Avenir Lorient est heureuse de vous proposer à Pluvigner (56330), cette maison de 5 pièces de 100 m². Elle propose quatre chambres, une cuisine et deux salles de bains.Le terrain du bien est de 411 m².C’est une maison de 2 niveaux.Elle est à vendre pour la somme de 300 760 €.N’hésitez pas à prendre contact avec notre agence (Anne-Sophie LAPART : (Numéro supprimé)) pour tout renseignement sur la maison. Maisons de l’Avenir Lorient vous accompagne à toutes les étapes de votre projet et dans toutes vos démarches.
Pluvigner
TERRAIN ET MAISONPluvigner : maison F4 (80 m²) en ventePROCHE DE LORIENT – MAISON 4 PIÈCES NEUVEÀ vendre à 23 km de l’océan Atlantique et à quelques kilomètres de Lorient, Maisons de l’Avenir Lorient vous propose cette maison de 4 pièces de plain-pied de 80 m² et de 411 m² de terrain à Pluvigner (56330).Elle offre trois chambres, une cuisine et une salle de bains. Elle est proposée à l’achat pour 256 760 €.Contactez notre agence (Anne-Sophie LAPART : (Numéro supprimé)) pour tout renseignement sur la maison, sur les modalités de vente ou sur les démarches à suivre. Faites de vos projets immobiliers une réalité avec Maisons de l’Avenir Lorient.
Pluvigner
TERRAIN ET MAISONVENTE : maison F5 (100 m²) à PluvignerPROCHE DE LORIENT – MAISON 5 PIÈCES OSSATURE BOISEn vente : à 23 km de la côte atlantique et à 27 km de Lorient, ayez le coup de coeur pour cette maison de 5 pièces de 100 m² à Pluvigner (56330). Son intérieur dispose de quatre chambres, d’une cuisine et de deux salles de bains.Le terrain du bien s’étend sur 411 m².C’est une maison de 2 niveaux. Elle est proposée à l’achat pour 300 760 €.Prenez contact avec Anne-Sophie LAPART (tél : (Numéro supprimé)) pour toute information sur la maison, sur les modalités de vente et sur les démarches à suivre.
Pluvigner
TERRAIN ET MAISONPluvigner : maison de 4 pièces (95 m²) à vendreMAISON 4 PIÈCES NEUVE – PROCHE DE LORIENTÀ vendre : située à 23 km de la côte atlantique et à quelques kilomètres de Lorient, notre agence Maisons de l’Avenir Lorient est ravie de vous présenter cette maison de 4 pièces de 95 m² et de 411 m² de terrain à Pluvigner (56330). Elle propose trois chambres, une cuisine et deux salles de bains.Cette maison possède 2 niveaux.Elle est à vendre pour la somme de 289 760 €.N’hésitez pas à prendre contact avec notre constructeur (Anne-Sophie LAPART : (Numéro supprimé)) pour plus d’informations sur cette propriété.
Pluvigner
TERRAIN ET MAISONMaison de 5 pièces (150 m²) en vente à PluvignerMAISON 5 PIÈCES NEUVE – PROCHE DE LORIENTÀ vendre : à 23 km de l’océan Atlantique et à deux pas de Lorient, Maisons de l’Avenir Lorient vous propose cette maison de 5 pièces de 150 m² à Pluvigner (56330).C’est une maison de 2 niveaux. Son intérieur compte quatre chambres, une cuisine et deux salles de bains. Elle est proposée à l’achat pour 410 760 €.Contactez Anne-Sophie LAPART ((Numéro supprimé)) pour toute question sur cette maison ou sur les modalités de vente. Maisons de l’Avenir Lorient est là pour vous accompagner dans tous vos projets immobiliers.
Pluvigner
TERRAINTerrain de 411 m² à vendre à PluvignerPROCHE DE LORIENTEn vente à 23 km de la côte atlantique et à 27 km de Lorient à Pluvigner (56330), terrain de 411 m². Son prix de vente est de 65 760 €. Prenez contact avec Anne-Sophie LAPART ((Numéro supprimé)) pour toute question sur ce terrain. Concrétisez vos projets immobiliers avec Maisons de l’Avenir Lorient.
Pluvigner
TERRAIN ET MAISONVENTE d’une maison de 4 pièces (90 m²) à PluvignerPROCHE DE LORIENT – MAISON 4 PIÈCES NEUVEÀ 23 km de la côte atlantique et à deux pas de Lorient, nous sommes heureux de vous proposer cette maison de 4 pièces de 90 m² et de 351 m² de terrain à Pluvigner (56330). Elle se divise en trois chambres, une cuisine et deux salles de bains.C’est une maison de 2 niveaux. Elle est à vendre pour la somme de 282 900 €.N’hésitez pas à prendre contact avec notre agence (Anne-Sophie LAPART : (Numéro supprimé)) pour toute question sur la maison, sur les démarches à suivre ou sur les modalités de vente. Maisons de l’Avenir Lorient est là pour vous accompagner à toutes les étapes de l’achat.
Landévant
TERRAINVENTE d’un terrain de 270 m² à LandévantIDÉALEMENT SITUÉ – PROCHE DE LORIENTÀ Landévant (56690) à 16 km de la côte atlantique et à deux pas de Lorient, imaginez la maison de vos rêves sur ce terrain de 270 m². Dans un quartier convoité, ce terrain idéalement situé est proche des écoles et des commerces. Il y a l’École Primaire Publique l’Encre Bleue et l’École Primaire Privée Sainte Marie à moins de 10 minutes à pied. Niveau transports, on trouve la gare Landévant dans les alentours. Il y a un accès à la nationale N165 à 1 km. Il y a un tennis, deux boulangeries, un supermarché, deux commerces, un bureau de poste et une boucherie-charcuterie à quelques minutes à peine.Il est à vendre pour la somme de 65 000 €. Contactez Christophe COLLOCH ((Numéro supprimé)) pour plus de renseignements sur ce terrain ou sur les démarches à suivre.
Pluvigner
TERRAIN ET MAISONMaison de 5 pièces (115 m²) en vente à PluvignerMAISON 5 PIÈCES ossature bois – PROCHE DE LORIENTÀ vendre : à 23 km de la côte atlantique et à quelques kilomètres de Lorient, nous vous présentons cette maison de 5 pièces de 115 m² à Pluvigner (56330).Cette maison possède 2 niveaux. Elle offre quatre chambres, une cuisine et une salle de bains. Elle est proposée à l’achat pour 342 100 €.Contactez Anne-Sophie LAPART ((Numéro supprimé)) pour plus de renseignements sur la maison ou sur les modalités de vente. Concrétisez vos projets immobiliers avec Maisons de l’Avenir Lorient.
L’actualité immobilière à Pluvigner
27/11/2023
02/11/2023
30/10/2023
20/10/2023
16/10/2023
16/10/2023