Maison à construire à Riantec (56670)
Images
Description
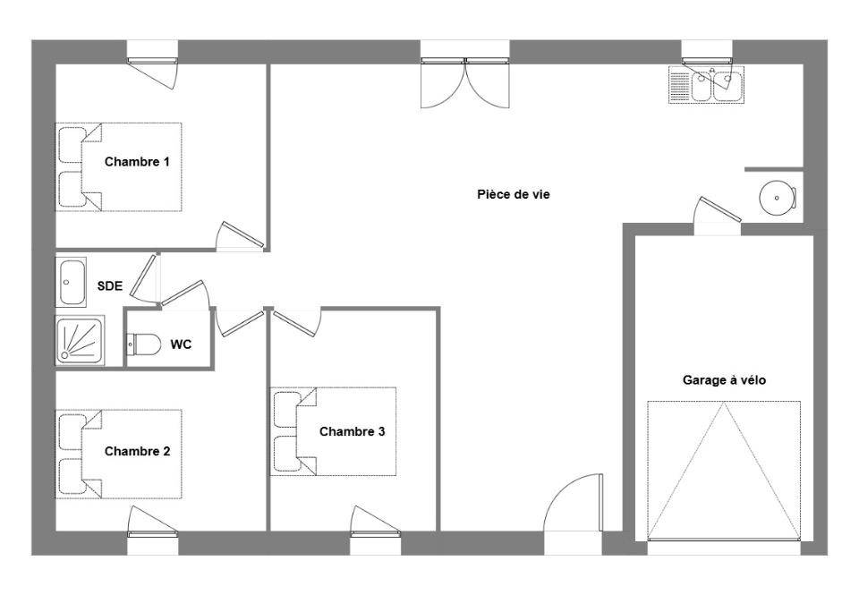
VENTE : maison de 4 pièces (80 m²) à Riantec
MAISON 4 PIÈCES NEUVE - PROCHE DE LORIENT
En vente : située à 13 km de la côte atlantique et à quelques kilomètres de Lorient, à Riantec (56670), nous vous présentons cette maison de 4 pièces de plain-pied de 80 m².
Conçue de plain-pied, elle compte trois chambres, une cuisine et une salle de bains.
Elle est proposée à l'achat pour 289 000 €.
Contactez Anne-Sophie LAPART ((Numéro supprimé)) pour obtenir de plus amples informations sur cette maison ou sur les modalités de vente. Maisons de l'Avenir Lorient est là pour vous accompagner dans toutes vos démarches.
Logement susceptibles de vous intéresser
Nous vous proposons de découvrir aussi cette sélection de logements situés à moins de 10km de Riantec et qui seraient susceptibles de vous intéresser.
Riantec
TERRAINTerrain de 499 m² à vendre à RiantecQUARTIER RECHERCHÉ – PROCHE DE LORIENTÀ Riantec (56670) à 13 km de l’océan Atlantique et à 6 km de Lorient, imaginez la maison de vos rêves sur ce terrain de 499 m². Dans un secteur convoité, ce terrain situé dans un quartier attractif est proche des écoles et des commerces. L’École Primaire Privée Saint Joseph est implantée à moins de 10 minutes à pied. Niveau transports en commun, il y a deux gares (Lorient Bretagne Sud et Hennebont) à moins de 10 minutes en voiture. Les nationales N165 et N24 sont accessibles à moins de 10 km. On trouve une bibliothèque et un bassin de natation dans les environs.Son prix de vente est de 145 000 €. Prenez contact avec Christophe COLLOCH (tél : (Numéro supprimé)) pour toute question sur ce terrain, sur les modalités de vente ou sur les démarches à suivre. Concrétisez vos projets immobiliers avec Maisons de l’Avenir Lorient.
Riantec
TERRAIN ET MAISONRiantec : maison T4 (95 m²) en venteQUARTIER RECHERCHÉ – MAISON 4 PIÈCES NEUVEÀ vendre à 13 km de la côte atlantique et à 6 km de Lorient, située dans un secteur recherché de Riantec (56670), nous vous proposons cette maison de 4 pièces de 95 m². Son intérieur inclut trois chambres, une cuisine et deux salles de bains.Le terrain de la propriété s’étend sur 499 m².Cette maison comporte 2 niveaux. Elle est neuve.Cette maison se situe dans un quartier attractif. On trouve l’École Primaire Privée Saint Joseph à moins de 10 minutes à pied. Côté transports en commun, il y a les gares Lorient Bretagne Sud et Hennebont à moins de 10 minutes en voiture. Les nationales N165 et N24 sont accessibles à moins de 10 km. On trouve une bibliothèque et un bassin de natation à quelques minutes du logement.Son prix de vente est de 402 000 €.Contactez Christophe COLLOCH (tél : (Numéro supprimé)) pour toute question sur la maison ou sur les modalités de vente.
Riantec
TERRAIN ET MAISONRiantec : maison T5 (91 m²) en venteQUARTIER RECHERCHÉ – MAISON 5 PIÈCES NEUVEEn vente : à 13 km de la côte atlantique et à deux pas de Lorient, Maisons de l’Avenir Lorient vous propose cette maison de 5 pièces de 91 m² nichée dans un quartier attractif de Riantec (56670). Son intérieur dispose de quatre chambres, d’une cuisine et de deux salles de bains.Le terrain de la maison s’étend sur 499 m².Cette maison comporte 2 niveaux. Elle est neuve.Cette maison se situe dans un secteur recherché. On trouve l’École Primaire Privée Saint Joseph à moins de 10 minutes à pied. Côté transports en commun, il y a les gares Lorient Bretagne Sud et Hennebont à moins de 10 minutes en voiture. Les nationales N165 et N24 sont accessibles à moins de 10 km. On trouve une bibliothèque et un bassin de natation à proximité.Elle est à vendre pour la somme de 395 000 €.N’hésitez pas à prendre contact avec notre agence (COLLOCH Christophe : (Numéro supprimé)) pour tout renseignement sur la maison ou sur les démarches à suivre.
Riantec
TERRAIN ET MAISONRiantec : maison de 5 pièces (110 m²) à vendreQUARTIER RECHERCHÉ – MAISON 5 PIÈCES NEUVEEn vente : à 13 km de l’océan Atlantique et à 6 km de Lorient, nichée dans un quartier prisé de Riantec (56670), nous vous proposons cette maison de 5 pièces de 110 m². Elle compte quatre chambres, une cuisine et deux salles de bains.Le terrain de la propriété est de 499 m².Cette maison comporte 2 niveaux. Elle est neuve.Cette maison se situe dans un secteur recherché. L’École Primaire Privée Saint Joseph se trouve à moins de 10 minutes à pied. Côté transports, il y a les gares Lorient Bretagne Sud et Hennebont à moins de 10 minutes en voiture. Les nationales N165 et N24 sont accessibles à moins de 10 km. On trouve une bibliothèque et un bassin de natation dans les environs.Elle est à vendre pour la somme de 434 000 €.Prenez contact avec Christophe COLLOCH ((Numéro supprimé)) pour tout renseignement sur la maison. Maisons de l’Avenir Lorient vous accompagne dans tous vos projets immobiliers et dans toutes vos démarches.
Riantec
TERRAIN ET MAISONMaison T5 (125 m²) à vendre à RiantecQUARTIER RECHERCHÉ – MAISON 5 PIÈCES NEUVEÀ 13 km de l’océan Atlantique et à quelques kilomètres de Lorient, découvrez cette maison de 5 pièces de 125 m² et de 499 m² de terrain nichée dans un quartier attractif de Riantec (56670).C’est une maison de 2 niveaux. Son intérieur est composé de quatre chambres, d’une cuisine et de deux salles de bains. Cette maison est neuve.La maison se trouve dans un secteur recherché. Il y a l’École Primaire Privée Saint Joseph à moins de 10 minutes à pied. Niveau transports, on trouve les gares Lorient Bretagne Sud et Hennebont à moins de 10 minutes en voiture. Les nationales N165 et N24 sont accessibles à moins de 10 km. Il y a une bibliothèque et un bassin de natation à quelques minutes à peine.Elle est à vendre pour la somme de 474 000 €.Contactez Christophe COLLOCH ((Numéro supprimé)) pour plus de renseignements sur la maison ou sur les modalités de vente.
Riantec
TERRAINVENTE : terrain de 349 m² à RiantecIDÉALEMENT SITUÉ – PROCHE DE LORIENTÀ Riantec (56670) à vendre à 13 km de l’océan Atlantique et à 6 km de Lorient, donnez vie à la maison de vos rêves sur ce terrain de 349 m². Dans un secteur convoité, ce terrain idéalement situé est proche des écoles et des commerces. L’École Primaire Privée Saint Joseph est implantée à moins de 10 minutes à pied. Côté transports en commun, il y a les gares Lorient Bretagne Sud et Hennebont à moins de 10 minutes en voiture. Les nationales N165 et N24 sont accessibles à moins de 10 km. On trouve une bibliothèque et un bassin de natation à proximité.Il est à vendre pour la somme de 105 000 €. Contactez Christophe COLLOCH ((Numéro supprimé)) pour plus d’informations sur ce terrain, sur les démarches à suivre ou sur les modalités de vente. Maisons de l’Avenir Lorient vous accompagne à toutes les étapes de votre projet et dans tous vos projets immobiliers.
Riantec
TERRAIN ET MAISONMaison de 5 pièces (100 m²) à vendre à RiantecIDÉALEMENT SITUÉE – MAISON 5 PIÈCES NEUVEEn vente : à 13 km de l’océan Atlantique et à deux pas de Lorient, laissez vous charmer par cette maison de 5 pièces de 100 m² et de 349 m² de terrain idéalement située dans Riantec (56670). Elle se divise en quatre chambres, une cuisine et deux salles de bains.Cette maison possède 2 niveaux. Elle est neuve.La maison se situe dans un secteur recherché. On trouve l’École Primaire Privée Saint Joseph à moins de 10 minutes à pied. Côté transports en commun, il y a les gares Lorient Bretagne Sud et Hennebont à moins de 10 minutes en voiture. Les nationales N165 et N24 sont accessibles à moins de 10 km. On trouve une bibliothèque et un bassin de natation à proximité.Elle est à vendre pour la somme de 375 000 €.Prenez contact avec Christophe COLLOCH (tél : (Numéro supprimé)) pour obtenir de plus amples informations sur la maison ou sur les démarches à suivre.
Riantec
TERRAIN ET MAISONRiantec : maison F4 (89 m²) en venteIDÉALEMENT SITUÉE – MAISON 4 PIÈCES NEUVEEn vente : à 13 km de l’océan Atlantique et à deux pas de Lorient, nous sommes heureux de vous proposer, idéalement située dans Riantec (56670), cette maison de 4 pièces de 89 m² et de 349 m² de terrain. Elle inclut trois chambres, une cuisine et deux salles de bains.Il s’agit d’une maison de 2 niveaux. Elle est neuve.La maison se situe dans un secteur recherché. Il y a l’École Primaire Privée Saint Joseph à moins de 10 minutes à pied. Niveau transports en commun, on trouve les gares Lorient Bretagne Sud et Hennebont à moins de 10 minutes en voiture. Les nationales N165 et N24 sont accessibles à moins de 10 km. Il y a une bibliothèque et un bassin de natation à quelques minutes de la maison.Elle est à vendre pour la somme de 350 000 €.Contactez Christophe COLLOCH (tél : (Numéro supprimé)) pour obtenir de plus amples renseignements sur la maison. Concrétisez vos projets immobiliers avec Maisons de l’Avenir Lorient.
Riantec
TERRAIN ET MAISONVENTE : maison T3 (85 m²) à RiantecIDÉALEMENT SITUÉE – MAISON 3 PIÈCES NEUVEÀ vendre : située à 13 km de l’océan Atlantique et à deux pas de Lorient, Maisons de l’Avenir Lorient vous propose, idéalement située dans Riantec (56670), cette maison de 3 pièces de plain-pied de 85 m². Elle est composée de deux chambres, d’une cuisine et d’une salle de bains.Le terrain de la maison s’étend sur 349 m².Cette maison est neuve.La maison se situe dans un quartier recherché. L’École Primaire Privée Saint Joseph est implantée à moins de 10 minutes à pied. Niveau transports, on trouve deux gares (Lorient Bretagne Sud et Hennebont) à moins de 10 minutes en voiture. Les nationales N165 et N24 sont accessibles à moins de 10 km. Il y a une bibliothèque et un bassin de natation à quelques minutes à peine.Son prix de vente est de 329 000 €.Prenez contact avec Christophe COLLOCH (tél : (Numéro supprimé)) pour tout renseignement sur la maison, sur les modalités de vente ou sur les démarches à suivre.
L’actualité immobilière à Riantec
27/11/2023
02/11/2023
30/10/2023
20/10/2023
16/10/2023
16/10/2023