Maison à construire à Saint-Guyomard (56460)
Images
Description
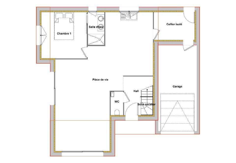
Maison F4 (100 m²) à vendre à Saint-Guyomard
MAISON 4 PIÈCES NEUVE - PROCHE DE VANNES
À 26 km de la côte atlantique et à 23 km de Vannes, nous vous présentons en vente à Saint-Guyomard (56460), cette maison de 4 pièces de 100 m².
C'est une maison de 2 niveaux. Elle comporte quatre chambres, une cuisine et deux salles de bains.
Elle est à vendre pour la somme de 335 800 €.
Contactez notre agence (LAPART Anne-Sophie : (Numéro supprimé)) pour obtenir de plus amples informations sur cette propriété, sur les modalités de vente ou sur les démarches à suivre.
Logement susceptibles de vous intéresser
Nous vous proposons de découvrir aussi cette sélection de logements situés à moins de 10km de Saint-Guyomard et qui seraient susceptibles de vous intéresser.
Molac
TERRAIN ET MAISONSuperbe opportunité dans le centre bourg de Molac. Profitez de ces belles parcelles de plus de 450m² exposée Sud Ouest. . Le modèle MAJORQUE est une maison de plain-pied fonctionnelle et lumineuse qui vous accueille dans un bel espace de vie avec cuisine ouverte avec accès direct au cellier. Du côté de l'espace nuit, 3 chambres, une salle de bains et wc indépendant. Vous pourrez choisir vos jeux d’enduits afin de personnaliser votre maison pour qu’elle corresponde à votre stylePour vous assurer un confort de vie et conformément à la RE2025, nous avons choisi un mode de chauffage par PAC + plancher chauffant, volets roulants électriques. Prix hors fourniture et pose : des appareils sanitaires (sauf système de chauffage et d'eau chaude sanitaire), du carrelage et de la faïence, des revêtements de sol dans les chambres. Hors décoration et aménagement intérieur et peinture. Hors raccordements, frais de notaire et dommage ouvrage. // Réf. : 1033-210798-SIS. Prix terrain : 44 300 €, hors frais d'agence à la charge de l'acquéreur. Ce terrain vous est proposé, par nos partenaires fonciers, dans le cadre d'un projet de construction avec nous. Les informations sur les risques auxquels ce bien est exposé sont disponibles sur le site Géorisques (www.georisques.gouv.fr). Prix maison : 117 258 €.
Molac
TERRAIN ET MAISONSuperbe opportunité dans le centre bourg de Molac. Profitez de ces belles parcelles de plus de 450m² exposée Sud Ouest. . Cette charmante maison de plain-pied vous accueille dans un très bel espace de vie très lumineux de plus de 40 m² avec cuisine ouverte et accès direct au cellier. Un dégagement dessert trois chambres, une salle de bains et wc indépendantPour vous assurer un confort de vie et conformément à la RE2025, nous avons choisi un mode de chauffage par PAC + plancher chauffant, volets roulants électriques. Prix hors fourniture et pose : des appareils sanitaires (sauf système de chauffage et d'eau chaude sanitaire), du carrelage et de la faïence, des revêtements de sol dans les chambres. Hors décoration et aménagement intérieur et peinture. Hors raccordements, frais de notaire et dommage ouvrage. // Réf. : 925-210798-SIS. Prix terrain : 44 300 €, hors frais d'agence à la charge de l'acquéreur. Ce terrain vous est proposé, par nos partenaires fonciers, dans le cadre d'un projet de construction avec nous. Les informations sur les risques auxquels ce bien est exposé sont disponibles sur le site Géorisques (www.georisques.gouv.fr). Prix maison : 120 980 €.
Molac
TERRAIN ET MAISONSuperbe opportunité dans le centre bourg de Molac. Profitez de ces belles parcelles de plus de 450m² exposée Sud Ouest. . Agréable et lumineuse, cette maison de plain-pied vous propose une cuisine ouverte sur un vaste séjour traversant de 47 m² environ. L'accès direct cuisine, cellier et garage facilite l'habitabilité de cette maison. L'espace nuit est composé de deux belles chambres avec rangement, d'une salle de bains et des wc séparés. Ses jeux d'enduits personnalisables sauront vous séduirePour vous assurer un confort de vie et conformément à la RE2025, nous avons choisi un mode de chauffage par PAC + plancher chauffant, volets roulants électriques. Prix hors fourniture et pose : des appareils sanitaires (sauf système de chauffage et d'eau chaude sanitaire), du carrelage et de la faïence, des revêtements de sol dans les chambres. Hors décoration et aménagement intérieur et peinture. Hors raccordements, frais de notaire et dommage ouvrage. Préau en option. // Réf. : 1069-210798-SIS. Prix terrain : 44 300 €, hors frais d'agence à la charge de l'acquéreur. Ce terrain vous est proposé, par nos partenaires fonciers, dans le cadre d'un projet de construction avec nous. Les informations sur les risques auxquels ce bien est exposé sont disponibles sur le site Géorisques (www.georisques.gouv.fr). Prix maison : 134 317 €.
Molac
TERRAINSuperbe opportunité dans le centre bourg de Molac. Profitez de ces belles parcelles de plus de 450m² exposée Sud Ouest. . // Réf. : T210798. Prix terrain : 44 300 €, hors frais d'agence et de notaire à la charge de l'acquéreur. Ce terrain vous est proposé, par nos partenaires fonciers, dans le cadre d'un projet de construction avec nous. Les informations sur les risques auxquels ce bien est exposé sont disponibles sur le site Géorisques (www.georisques.gouv.fr).
Molac
TERRAINSuperbe opportunité dans le centre bourg de Molac. Profitez de ces belles parcelles de plus de 450m² exposée Sud Ouest. . // Réf. : T210798. Prix terrain : 44 300 €, hors frais d'agence et de notaire à la charge de l'acquéreur. Ce terrain vous est proposé, par nos partenaires fonciers, dans le cadre d'un projet de construction avec nous. Les informations sur les risques auxquels ce bien est exposé sont disponibles sur le site Géorisques (www.georisques.gouv.fr).
Saint-Guyomard
TERRAINTerrain de 867 m² à vendre à Saint-GuyomardPROCHE DE VANNESÀ Saint-Guyomard (56460) à vendre à 26 km de l’océan Atlantique et à 23 km de Vannes, projetez la maison de vos rêves sur ce terrain de 867 m². Il est à vendre pour la somme de 85 800 €. Prenez contact avec notre agence (LAPART Anne-Sophie : (Numéro supprimé)) pour plus de renseignements sur ce terrain et sur les démarches à suivre.
Saint-Guyomard
TERRAIN ET MAISONVENTE : maison T5 (155 m²) à Saint-GuyomardMAISON 5 PIÈCES NEUVE – PROCHE DE VANNESÀ vendre : à 26 km de la côte atlantique et à deux pas de Vannes, Maisons de l’Avenir Lorient vous propose cette maison de 5 pièces de plain-pied de 155 m² et de 867 m² de terrain à Saint-Guyomard (56460). Son intérieur se divise en quatre chambres, une cuisine et deux salles de bains.Son prix de vente est de 441 800 €.Contactez Anne-Sophie LAPART (tél : (Numéro supprimé)) pour toute information sur la maison. Maisons de l’Avenir Lorient vous accompagne dans toutes vos démarches et dans tous vos projets immobiliers.
Saint-Guyomard
TERRAIN ET MAISONVENTE : maison de 3 pièces (95 m²) à Saint-GuyomardMAISON 3 PIÈCES – PROCHE DE VANNESÀ vendre : à 26 km de la côte atlantique et à deux pas de Vannes, notre agence Maisons de l’Avenir Lorient est ravie de vous proposer cette maison de 3 pièces de plain-pied de 95 m² à Saint-Guyomard (56460).Son intérieur se divise en trois chambres, une cuisine et une salle de bains. Son prix de vente est de 324 800 €.N’hésitez pas à prendre contact avec notre agence (LAPART Anne-Sophie : (Numéro supprimé)) pour toute information sur la maison ou sur les démarches à suivre.
Saint-Guyomard
TERRAIN ET MAISONMaison F4 (100 m²) à vendre à Saint-GuyomardMAISON 4 PIÈCES NEUVE – PROCHE DE VANNESÀ 26 km de la côte atlantique et à 23 km de Vannes, nous vous présentons en vente à Saint-Guyomard (56460), cette maison de 4 pièces de 100 m².C’est une maison de 2 niveaux. Elle comporte quatre chambres, une cuisine et deux salles de bains. Elle est à vendre pour la somme de 335 800 €.Contactez notre agence (LAPART Anne-Sophie : (Numéro supprimé)) pour obtenir de plus amples informations sur cette propriété, sur les modalités de vente ou sur les démarches à suivre.
L’actualité immobilière à Saint-Guyomard
27/11/2023
02/11/2023
30/10/2023
20/10/2023
16/10/2023
16/10/2023