Images
Description
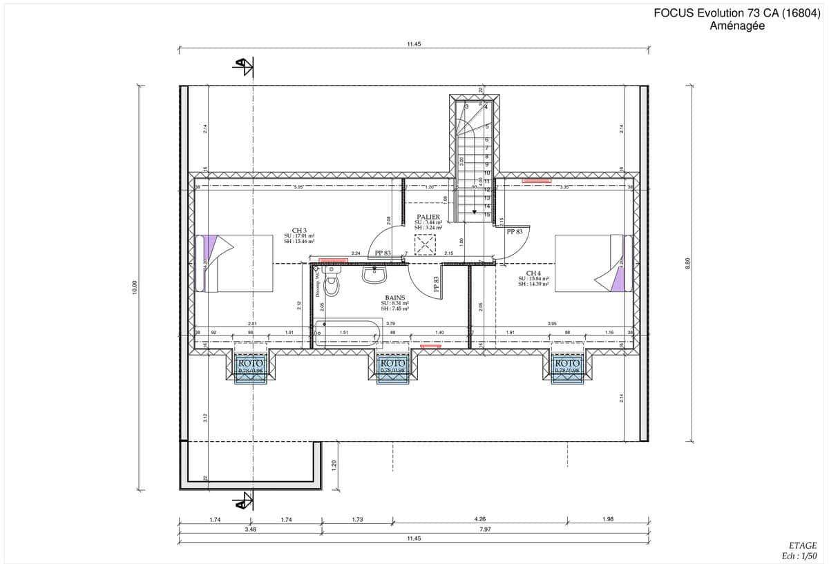
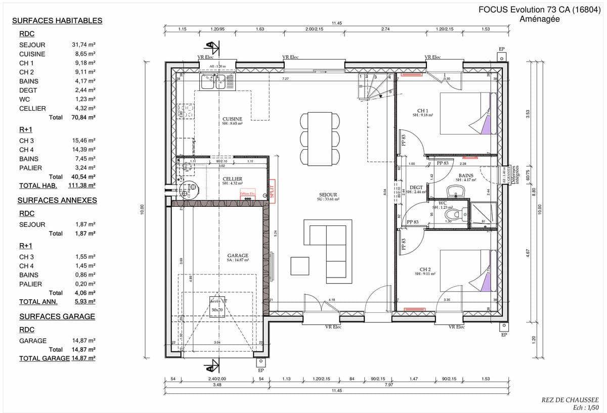
Maison neuve évolutive de 73 m² habitables, idéale pour les familles en quête d’un logement évolutif. Livrée avec 2 chambres, une grande pièce de vie lumineuse, et un garage. Combles aménageables pour passer à 110 m² (4 chambres, 2 salles de bains). Écologique et conforme à la RE2020. Une maison prête à grandir avec vous !
Logement susceptibles de vous intéresser
Nous vous proposons de découvrir aussi cette sélection de logements situés à moins de 10km de Château-Salins et qui seraient susceptibles de vous intéresser.
Château-Salins
TERRAIN ET MAISONMaison neuve évolutive de 73 m² habitables, idéale pour les familles en quête d’un logement évolutif. Livrée avec 2 chambres, une grande pièce de vie lumineuse, et un garage. Combles aménageables pour passer à 110 m² (4 chambres, 2 salles de bains). Écologique et conforme à la RE2020. Une maison prête à grandir avec vous !
Moncel-sur-Seille
TERRAINA vendre : Terrain constructible viabilisé de 563m2 à Moncel-sur-SeilleDécouvrez ce charmant terrain situé dans la commune dynamique de Moncel-sur-Seille. Avec une superficie de 563m2, ce terrain offre de belles possibilités pour la construction de votre future résidence.Idéalement situé, vous bénéficierez d’un cadre de vie agréable grâce à la proximité des écoles et de la boulangerie. Vous pourrez ainsi profiter pleinement des commodités du quartier tout en profitant d’un environnement calme et paisible.Le terrain est entièrement viabilisé, vous n’aurez donc aucune contrainte pour raccorder votre future maison aux réseaux d’eau, d’électricité et d’assainissement.Ne laissez pas passer cette opportunité unique de réaliser votre projet immobilier dans cette charmante commune. Pour plus d’informations ou pour organiser une visite, veuillez contacter le numéro suivant : 06 78 834 984.N’attendez plus, ce terrain est un véritable coup de cur et saura répondre à toutes vos attentes. Sa situation idéale et ses caractéristiques en font un bien rare sur le marché. À visiter sans tarderLes informations sur les risques auxquels ce bien est exposé sont disponibles sur le site Géorisques : www.georisques.gouv.fr.
Moncel-sur-Seille
TERRAINMONCEL SUR SEILLE Terrain situé à la sortie du village, au calme.MONCEL SUR SEILLE possède une boulangerie, cabinet d’infirmières.Pour plus d’informations ou pour organiser une visite sur ce terrain à Moncel sur Seille,veuillez contacter le 06 78 834 984.Les informations sur les risques auxquels ce bien est exposé sont disponibles sur le site Géorisques : www.georisques.gouv.fr.
Moncel-sur-Seille
TERRAINÀ vendre :Terrain à Moncel-sur-SeilleSuperficie du terrain : 551m2Quartier : Calme et verdoyantVille : Moncel-sur-SeilleType de bien : TerrainCe terrain, libre de constructeur, est situé dans un cadre verdoyant et calme à Moncel-sur-Seille. Avec une superficie de 551m2, il offre de nombreuses possibilités pour la construction de votre future maison.Le terrain est viabilisé, avec les raccordements à l’assainissement (EU, EP, AEP) déjà réalisés. Vous pourrez ainsi commencer votre projet de construction rapidement et facilement.N’hésitez pas à nous contacter au 06 78 834 984 pour obtenir plus d’informations ou pour programmer une visite. Ne manquez pas cette opportunité de construire votre maison sur ce terrain idéalement situé à Moncel-sur-Seille.Les informations sur les risques auxquels ce bien est exposé sont disponibles sur le site Géorisques : www.georisques.gouv.fr.
Jallaucourt
TERRAINA vendre terrain constructible de 1736m2 situé à Jallaucourt, entre Nancy et Metz. Ce terrain offre de nombreuses possibilités de construction dans un quartier calme et recherché. Idéal pour la construction de votre future résidence principale ou pour un investissement locatif. Pour plus d’informations ou pour organiser une visite, contactez-nous au 06 78 834 984. Ne manquez pas cette opportunité uniqueLes informations sur les risques auxquels ce bien est exposé sont disponibles sur le site Géorisques : www.georisques.gouv.fr.
Jallaucourt
TERRAINA vendre à JALLAUCOURT, belle parcelle constructible de 1670m2, située dans un cadre verdoyant, sur l’axe Nancy – Metz. Idéal pour construire la maison de vos rêves. Ce terrain ne comporte aucune construction existante, offrant ainsi une totale liberté de conception. Pour plus d’informations ou pour visiter, contactez-nous au 06 78 834 984. Opportunité à saisir rapidementLes informations sur les risques auxquels ce bien est exposé sont disponibles sur le site Géorisques : www.georisques.gouv.fr.
Jallaucourt
TERRAINJALLAUCOURT Terrain situé à la sortie du village,secteur calme, situé entre NANCY et METZ.terrain situé à 15 minutes de la porte verteterrain libre de constructeurBernard BARABAN (Numéro supprimé)Les informations sur les risques auxquels ce bien est exposé sont disponibles sur le site Géorisques : www.georisques.gouv.fr.
Jallaucourt
TERRAINA VENDRE Terrain constructible de 817m2 à JALLAUCOURT, axe Metz/Nancy. Idéalement situé, ce terrain offre de multiples possibilités de construction. Parcelle plate, proche de toutes commodités. Pour plus d’informations ou pour visiter, contactez-nous au 06 78 834 984. Ne ratez pas cette occasion unique de réaliser votre projet immobilier dans ce quartier dynamique de la région.Les informations sur les risques auxquels ce bien est exposé sont disponibles sur le site Géorisques : www.georisques.gouv.fr.
Jallaucourt
TERRAINA vendre terrain constructible de 835m2 à JALLAUCOURT. Idéalement situé, ce terrain offre de nombreuses possibilités de construction. Proche des commodités, dans un quartier calme et résidentiel. Possibilité de construire la maison de vos rêves. Pour plus d’informations ou pour visiter, contactez le 06 78 834 984.Les informations sur les risques auxquels ce bien est exposé sont disponibles sur le site Géorisques : www.georisques.gouv.fr.
L’actualité immobilière à Château-Salins
27/11/2023
02/11/2023
30/10/2023
20/10/2023
16/10/2023
16/10/2023