Images
Description
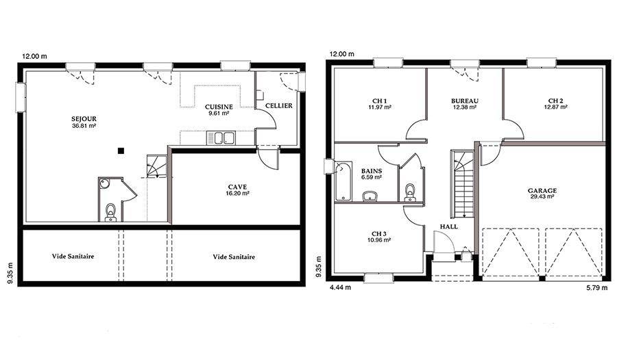
Nous vous proposons cette maison neuve, baptisée FLORES, un modèle d'habitation qui allie élégance, fonctionnalité et respect de l'environnement. Conçue spécifiquement pour s'adapter aux terrains en pente, cette maison de 110 m² offre un cadre de vie idéal pour toute la famille.
FLORES se distingue par son architecture intelligente et son agencement optimisé sur demi-niveau, offrant ainsi un espace de vie spacieux et lumineux. Au rez-de-chaussée, vous serez accueillis par un double garage pratique, suivi de trois chambres confortables, dont une spacieuse de plus de 13 m². Ces pièces sont judicieusement disposées autour d'un espace bureau central, créant ainsi un lieu de vie à la fois intime et convivial. Une salle de bains moderne et un WC indépendant complètent cet étage, garantissant confort et fonctionnalité.
Le niveau inférieur révèle une cuisine moderne de près de 15 m², conçue pour s'adapter à toutes les dynamiques familiales. Son ouverture sur un vaste salon/séjour de plus de 42 m² crée un espace accueillant, idéal pour recevoir amis et famille dans les meilleures conditions. Un second WC et un cellier pratique viennent parfaire cet espace, offrant ainsi toutes les commodités nécessaires au quotidien.
FLORES intègre les options les plus plébiscitées par nos clients, telles que des menuiseries en aluminium de haute qualité et un système de domotique avancé, pour une maison connectée répondant à toutes vos attentes. De plus, cette maison est construite avec une dalle étage en béton, assurant solidité et durabilité.
Conforme à la norme RE2020, FLORES est une maison basse consommation, conçue dans le respect de l'environnement et des dernières réglementations énergétiques. Ce modèle est donc un choix idéal pour ceux qui cherchent à allier confort de vie et responsabilité écologique.
Choisir FLORES, c'est opter pour une maison neuve qui répond à toutes vos exigences de confort, de style et de durabilité. Ne manquez pas l'opportunité de construire la maison de
Logement susceptibles de vous intéresser
Nous vous proposons de découvrir aussi cette sélection de logements situés à moins de 10km de Ébersviller et qui seraient susceptibles de vous intéresser.
Éblange
TERRAIN ET MAISONSur ce terrain, nous vous proposons cette maison neuve : la My First 91, un modèle signé Maisons Vesta. Avec une surface généreuse de 91 m², cette maison lumineuse et écologique est idéale pour les familles à la recherche d’un espace de vie confortable et de qualité, tout en respectant un budget maîtrisé.La My First 91 se distingue par son agencement parfaitement optimisé. Elle dispose de quatre chambres spacieuses, chacune de plus de 10 m², offrant ainsi un espace de vie confortable pour chaque membre de la famille. La maison comprend également une grande pièce de vie traversante et lumineuse avec une cuisine ouverte, un cellier attenant, une salle de bain avec baignoire et des WC séparés.Les caractéristiques principales de cette maison incluent une dalle étage en béton, un garage intégré et un garage accolé, répondant ainsi aux besoins de stationnement et de rangement de votre famille. De plus, les options les plus demandées par nos clients, telles que l’enduit bi-ton, les menuiseries en aluminium et la pergola, peuvent être ajoutées pour personnaliser votre maison selon vos goûts.Cette maison neuve est basse consommation et conforme à la réglementation environnementale RE2020, garantissant ainsi une habitation respectueuse de l’environnement et des économies d’énergie substantielles.Ne manquez pas cette opportunité unique d’acquérir une maison de qualité, parfaitement agencée et respectueuse de l’environnement, avec Maisons Vesta. Contactez-nous dès aujourd’hui pour plus d’informations et pour planifier une visite de ce modèle exceptionnel.
Anzeling
TERRAIN ET MAISONSur ce terrain, nous vous proposons cette maison neuve : la My First 91, un modèle signé Maisons Vesta. Avec une surface généreuse de 91 m², cette maison lumineuse et écologique est idéale pour les familles à la recherche d’un espace de vie confortable et de qualité, tout en respectant un budget maîtrisé.La My First 91 se distingue par son agencement parfaitement optimisé. Elle dispose de quatre chambres spacieuses, chacune de plus de 10 m², offrant ainsi un espace de vie confortable pour chaque membre de la famille. La maison comprend également une grande pièce de vie traversante et lumineuse avec une cuisine ouverte, un cellier attenant, une salle de bain avec baignoire et des WC séparés.Les caractéristiques principales de cette maison incluent une dalle étage en béton, un garage intégré et un garage accolé, répondant ainsi aux besoins de stationnement et de rangement de votre famille. De plus, les options les plus demandées par nos clients, telles que l’enduit bi-ton, les menuiseries en aluminium et la pergola, peuvent être ajoutées pour personnaliser votre maison selon vos goûts.Cette maison neuve est basse consommation et conforme à la réglementation environnementale RE2020, garantissant ainsi une habitation respectueuse de l’environnement et des économies d’énergie substantielles.Ne manquez pas cette opportunité unique d’acquérir une maison de qualité, parfaitement agencée et respectueuse de l’environnement, avec Maisons Vesta. Contactez-nous dès aujourd’hui pour plus d’informations et pour planifier une visite de ce modèle exceptionnel.
Ébersviller
TERRAIN ET MAISONNous vous proposons cette maison neuve, modèle INDIANA, spécialement conçue pour s’adapter à un terrain étroit sans compromettre l’espace et le confort. Avec une surface habitable de 90 m², cette maison à étage offre un cadre de vie idéal pour toute la famille.Le rez-de-chaussée se compose d’un vaste espace salon-séjour-cuisine de 33 m², parfait pour partager des moments conviviaux. Un WC indépendant et un cellier pratique, accessible depuis la cuisine, optimisent l’espace et la fonctionnalité de cette maison. Le garage intégré est un atout majeur, permettant un accès direct à la maison tout en préservant l’esthétique de la façade.À l’étage, l’espace nuit est judicieusement agencé pour offrir intimité et confort. Il comprend trois chambres spacieuses, de 11 à 13 m², une grande salle de bains familiale de presque 7 m² et un second WC séparé. La dalle en béton assure une isolation phonique de qualité entre les deux niveaux.L’INDIANA se distingue également par son engagement envers l’environnement et votre portefeuille. Cette maison est basse consommation et répond aux exigences de la norme RE2020, garantissant une efficacité énergétique optimale et un confort thermique toute l’année.L’option d’enduit bi-ton, très demandée, ajoute une touche moderne et personnalisée à votre façade, permettant à votre maison de se démarquer tout en s’intégrant harmonieusement à son environnement.Choisir le modèle INDIANA, c’est opter pour une maison à l’architecture réfléchie, conçue pour maximiser chaque mètre carré disponible. C’est la promesse d’un foyer chaleureux, durable et économique, prêt à accueillir tous les moments précieux de votre vie familiale.
Freistroff
TERRAINClaude-Eric CHAUMIER de RE/MAX IMMO GROUP 2 Metz, spécialiste de l’immobilier, vous propose en exclusivité ce beau terrain de 5,47 ares hors lotissement et libre de constructeur sur la commune de Freistroff . Proximité Bouzonville (écoles, collège, banque, restaurant, boulangerie, pharmacie..). Un Bâtiment existant est à démolir (ancienne grange). Alors venez le voir une visite s’impose pour les amoureux de la nature. La présente annonce immobilière a été rédigée sous la responsabilité éditoriale de l’agent commercial : Claude-Eric CHAUMIER TEL: (Numéro supprimé) (N°SIRET 882 138 217 R.S.A.C. THIONVILLE) Prix 52000 € honoraires exclus.Honoraires de7500 TTC à la charge de l’acquéreur.Les informations sur les risques auxquels ce bien est exposé sont disponibles sur le site Géorisques : www.georisques.gouv.fr .
Luttange
TERRAINVENTE d’un terrain de 399 m² à Luttange vendu avec contrat et projet ccmiProche de Metz – À Luttange (57935) : projetez-vous sur ce terrain à vendre de 399 m².À dix minutes : écoles, boulangerie et épicerie. Autoroutes A30 et A31 accessibles à 10 km. Allemagne à 22 km et Luxembourg à 22 km.Son prix de vente est de 100 000 €. N’hésitez pas à prendre contact avec Jean-Pascal CELLA ((Numéro supprimé)) pour toute information sur le terrain, sur les modalités de vente et sur les démarches à suivre. Maisons Horizon Yutz vous accompagne dans tous vos projets immobiliers et dans toutes vos démarches.
Ébersviller
TERRAIN ET MAISONNous vous proposons cette maison neuve, baptisée FLORES, un modèle d’habitation qui allie élégance, fonctionnalité et respect de l’environnement. Conçue spécifiquement pour s’adapter aux terrains en pente, cette maison de 110 m² offre un cadre de vie idéal pour toute la famille.FLORES se distingue par son architecture intelligente et son agencement optimisé sur demi-niveau, offrant ainsi un espace de vie spacieux et lumineux. Au rez-de-chaussée, vous serez accueillis par un double garage pratique, suivi de trois chambres confortables, dont une spacieuse de plus de 13 m². Ces pièces sont judicieusement disposées autour d’un espace bureau central, créant ainsi un lieu de vie à la fois intime et convivial. Une salle de bains moderne et un WC indépendant complètent cet étage, garantissant confort et fonctionnalité.Le niveau inférieur révèle une cuisine moderne de près de 15 m², conçue pour s’adapter à toutes les dynamiques familiales. Son ouverture sur un vaste salon/séjour de plus de 42 m² crée un espace accueillant, idéal pour recevoir amis et famille dans les meilleures conditions. Un second WC et un cellier pratique viennent parfaire cet espace, offrant ainsi toutes les commodités nécessaires au quotidien.FLORES intègre les options les plus plébiscitées par nos clients, telles que des menuiseries en aluminium de haute qualité et un système de domotique avancé, pour une maison connectée répondant à toutes vos attentes. De plus, cette maison est construite avec une dalle étage en béton, assurant solidité et durabilité.Conforme à la norme RE2020, FLORES est une maison basse consommation, conçue dans le respect de l’environnement et des dernières réglementations énergétiques. Ce modèle est donc un choix idéal pour ceux qui cherchent à allier confort de vie et responsabilité écologique.Choisir FLORES, c’est opter pour une maison neuve qui répond à toutes vos exigences de confort, de style et de durabilité. Ne manquez pas l’opportunité de construire la maison de
Ébersviller
TERRAIN ET MAISONNous vous proposons cette maison neuve, baptisée LOUISIANE, un modèle qui incarne l’excellence et l’innovation dans notre catalogue depuis ses débuts. La LOUISIANE, avec sa surface de 87 m² et son plan en L, est conçue pour répondre aux attentes les plus exigeantes en matière de confort et de fonctionnalité. Ce modèle de plain-pied, intégrant un garage, se distingue par sa capacité à s’adapter à diverses configurations familiales grâce à ses 3 chambres et ses 4 pièces au total, offrant ainsi un cadre de vie idéal pour tous.La maison LOUISIANE est avant tout pensée pour être en parfaite harmonie avec les exigences de la norme RE2020, garantissant une performance énergétique de premier plan. Cette maison basse consommation est un choix judicieux pour ceux qui cherchent à réduire leur empreinte écologique tout en bénéficiant d’un confort optimal tout au long de l’année. L’enduit bi-ton, l’une des options les plus plébiscitées par nos clients, ajoute une touche d’élégance et de modernité à l’architecture extérieure, soulignant le caractère unique de ce modèle.Le modèle LOUISIANE est le fruit de nombreuses années d’évolution, restant fidèle à notre engagement de fournir des maisons qui allient esthétique et fonctionnalité. Son plan en L n’est pas seulement un choix esthétique mais aussi pratique, offrant une séparation naturelle entre les espaces de vie et la partie nuit, pour un confort et une intimité accrus. Le garage intégré est un atout considérable, offrant non seulement un espace de stationnement sécurisé mais aussi des possibilités de rangement supplémentaires.En choisissant la maison LOUISIANE, vous optez pour une demeure qui a su évoluer avec son temps, tout en restant la star de notre catalogue grâce à sa popularité inégalée auprès de nos clients. Que vous soyez une jeune famille en quête de votre premier foyer ou que vous désiriez simplement profiter du confort d’une maison de plain-pied bien conçue, la LOUISIANE est faite pour vous. Donnez libre cours
Ébersviller
TERRAIN ET MAISONNous vous proposons cette maison neuve, baptisée FUTUNA, une demeure conçue pour s’adapter parfaitement à un terrain en pente, offrant ainsi une expérience de vie unique et sur mesure. Avec une surface habitable de 96 m², cette maison est idéalement pensée pour répondre aux besoins d’une famille moderne, cherchant à allier confort, fonctionnalité et respect de l’environnement.Le modèle FUTUNA se distingue par son sous-sol généreux, pouvant atteindre jusqu’à 100 m², offrant ainsi la possibilité de doubler presque la surface utile de votre habitation. Que ce soit pour un très grand garage, un atelier, ou tout simplement un espace de stockage supplémentaire, cette maison s’adapte à toutes vos exigences.L’agencement intérieur a été soigneusement étudié pour maximiser l’espace et la lumière. Le rez-de-chaussée se compose d’un espace de vie ouvert, incluant une cuisine moderne donnant sur un salon-séjour spacieux, baigné de lumière grâce à son porche accueillant. Trois chambres confortables, dont une suite parentale spacieuse, offrent un espace privé idéal pour chaque membre de la famille. Un cellier attenant à la cuisine, un WC indépendant et une salle de bains complètent harmonieusement ce niveau.En choisissant le modèle FUTUNA, vous optez également pour des menuiseries en aluminium, très demandées pour leur esthétique moderne, leur durabilité et leur facilité d’entretien. Ces menuiseries contribuent à l’excellente performance énergétique de la maison, qui est conforme à la norme RE2020. Cette maison basse consommation vous assure un confort optimal tout au long de l’année, tout en réduisant significativement vos factures d’énergie.Le garage intégré et le sous-sol offrent des solutions pratiques pour votre véhicule et vos besoins de rangement ou d’aménagement supplémentaire. La conception de FUTUNA a été pensée pour s’intégrer harmonieusement à son environnement, tout en offrant une maison moderne, fonctionnelle et éco-responsable.FUTUNA représente l’opportuni
Luttange
TERRAINVENTE : terrain de 389 m² à LuttangeProche de Metz – Concrétisez votre projet sur ce terrain à vendre de 389 m² à Luttange (57935).À dix minutes : écoles, boulangerie et épicerie. Accès autoroutes A30 et A31 à 10 km. Allemagne à 22 km et Luxembourg à 22 km.Son prix de vente est de 100 000 €. Prenez contact avec Jean-Pascal CELLA (tél : (Numéro supprimé)) pour toute information sur le terrain, sur les démarches à suivre ou sur les modalités de vente. Maisons Horizon Yutz est là pour vous accompagner dans tous vos projets immobiliers.
L’actualité immobilière à Ébersviller
27/11/2023
02/11/2023
30/10/2023
20/10/2023
16/10/2023
16/10/2023