Images
Description
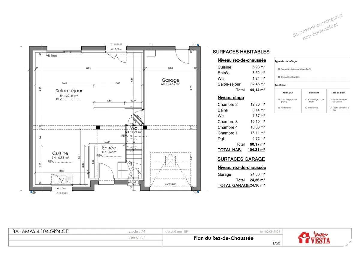
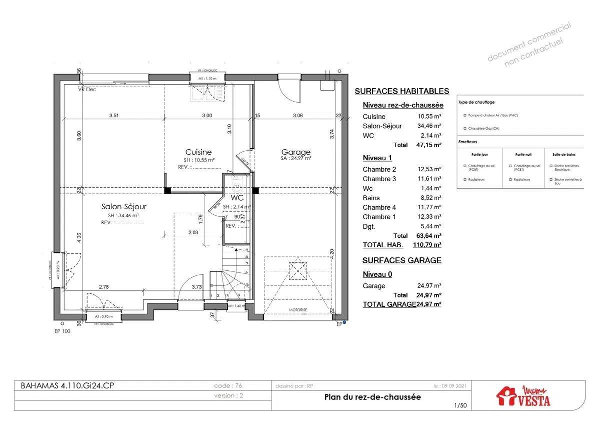
Nous vous proposons cette maison neuve, baptisée BAHAMAS, un modèle emblématique qui a su séduire de nombreuses familles depuis plus de trois décennies. Conçue pour répondre aux attentes des plus exigeants, cette demeure de 110 m² allie fonctionnalité et esthétique moderne, avec un plan en L et un garage accolé, offrant ainsi un cadre de vie idéal.
Dès l'entrée, découvrez un espace accueillant avec une entrée indépendante menant à un salon/séjour spacieux bénéficiant d'une hauteur sous plafond impressionnante, et d'une cuisine semi-ouverte qui promet de beaux moments de partage en famille ou entre amis. Le design intérieur est pensé pour maximiser la lumière naturelle, notamment grâce au vide sur séjour, créant une atmosphère chaleureuse et accueillante. Un WC indépendant et un grand garage, offrant de multiples possibilités d'aménagement, complètent le rez-de-chaussée.
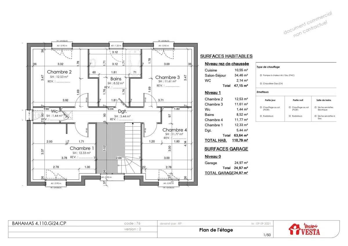
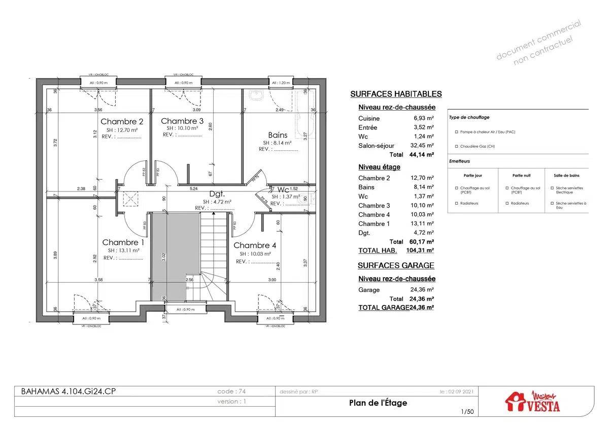
L'étage est dédié à l'intimité et au repos, avec quatre chambres de 10 à 13 m² chacune, permettant à chaque membre de la famille de bénéficier de son propre espace. Que vous ayez une grande famille ou que vous aimiez recevoir, ces chambres répondront à toutes vos attentes. La salle de bains, spacieuse de plus de 8 m², est conçue pour faciliter le quotidien des familles actives, et est complétée par un second WC indépendant.
Cette maison se distingue également par son enduit bi-ton, une des options les plus plébiscitées, qui lui confère une allure moderne et élégante. Mais ce qui rend véritablement ce modèle BAHAMAS exceptionnel, c'est son engagement envers l'environnement : cette maison est basse consommation et conforme à la norme RE2020, garantissant ainsi une efficacité énergétique optimale et un confort de vie inégalé tout au long de l'année.
Choisir la maison BAHAMAS, c'est opter pour un habitat durable, conçu avec soin pour répondre aux besoins de votre famille aujourd'hui et demain. Ne manquez pas l'opportunité de construire la maison de vos rêves, un lieu où chaque jour sera synonyme de b
Logement susceptibles de vous intéresser
Nous vous proposons de découvrir aussi cette sélection de logements situés à moins de 10km de Pournoy-la-Grasse et qui seraient susceptibles de vous intéresser.

Verny
TERRAIN ET MAISONVerny (57420) Maison neuve 5 pièces, 155 m²Sans vis-à-vis Terrain de 750 m² À 10 min de MetzL’essentielSurface habitable : 155 m²Pièces : 5 (dont 3 chambres)Niveaux : 2Terrain : 750 m²État : Maison neuveVue : dégagée, sans vis-à-visDescriptionSituée à Verny, dans un secteur résidentiel prisé à quelques kilomètres de Metz, cette maison neuve de 155 m² offre des volumes généreux et un confort de vie moderne.Elle se compose d’une spacieuse pièce de vie baignée de lumière, d’une cuisine contemporaine, de trois chambres, et de trois salles de bains.Implantée sur un terrain de 750 m², elle bénéficie d’un environnement calme et verdoyant, sans aucun vis-à-vis.EnvironnementÉcoles à proximité : École Primaire de Verny, Collège Nelson MandelaGares : Lorraine TGV, Peltre et Courcelles-sur-Nied à moins de 10 minutesAccès rapides : A31 et N431 à moins de 8 kmCommodités à proximité : bibliothèque, tennis, boulangeries, commerces, supermarché, bureau de postePrix💰 549 000 €ContactMaisons Horizon MetzAnthony LEONARDI – 📞 (Numéro supprimé)Pour tout renseignement ou pour planifier une visite, contactez-nous dès aujourd’hui.Maisons Horizon Metz vous accompagne dans la réalisation complète de votre projet immobilier.

Verny
TERRAIN ET MAISONVerny (57420) Maison neuve 4 pièces, plain-pied, 50 m²Vue sur espace vert Terrain 454 m² À 10 min de MetzL’essentielSurface habitable : 50 m²Pièces : 4 (dont 2 chambres)Type : Maison neuve de plain-piedTerrain : 454 m²Exposition / vue : dégagée sur espace vertAgencementEntrée sur pièce de vie avec cuisine2 chambresSalle de bainsPlain-pied fonctionnel, idéal pour jeunes actifs, investissement ou résidence principale.Emplacement & accèsÉcoles à pied (

Pournoy-la-Grasse
TERRAIN ET MAISONNous vous proposons cette maison neuve, baptisée BAHAMAS, un modèle emblématique qui a su séduire de nombreuses familles depuis plus de trois décennies. Conçue pour répondre aux attentes des plus exigeants, cette demeure de 110 m² allie fonctionnalité et esthétique moderne, avec un plan en L et un garage accolé, offrant ainsi un cadre de vie idéal.Dès l’entrée, découvrez un espace accueillant avec une entrée indépendante menant à un salon/séjour spacieux bénéficiant d’une hauteur sous plafond impressionnante, et d’une cuisine semi-ouverte qui promet de beaux moments de partage en famille ou entre amis. Le design intérieur est pensé pour maximiser la lumière naturelle, notamment grâce au vide sur séjour, créant une atmosphère chaleureuse et accueillante. Un WC indépendant et un grand garage, offrant de multiples possibilités d’aménagement, complètent le rez-de-chaussée.L’étage est dédié à l’intimité et au repos, avec quatre chambres de 10 à 13 m² chacune, permettant à chaque membre de la famille de bénéficier de son propre espace. Que vous ayez une grande famille ou que vous aimiez recevoir, ces chambres répondront à toutes vos attentes. La salle de bains, spacieuse de plus de 8 m², est conçue pour faciliter le quotidien des familles actives, et est complétée par un second WC indépendant.Cette maison se distingue également par son enduit bi-ton, une des options les plus plébiscitées, qui lui confère une allure moderne et élégante. Mais ce qui rend véritablement ce modèle BAHAMAS exceptionnel, c’est son engagement envers l’environnement : cette maison est basse consommation et conforme à la norme RE2020, garantissant ainsi une efficacité énergétique optimale et un confort de vie inégalé tout au long de l’année.Choisir la maison BAHAMAS, c’est opter pour un habitat durable, conçu avec soin pour répondre aux besoins de votre famille aujourd’hui et demain. Ne manquez pas l’opportunité de construire la maison de vos rêves, un lieu où chaque jour sera synonyme de b

Pommérieux
TERRAIN ET MAISONPommérieux : maison F6 (100 m²) en venteEmplacement privilégié – À découvrir à Pommérieux (57420) : maison neuve 6 pièces en vente. 2 niveaux, surface de 100 m² sur 404 m² de terrain. Elle dispose de quatre chambres, d’une cuisine et d’une salle de bains.Proche gares (Lorraine TGV, Peltre et Novéant-sur-Moselle), école élémentaire École Elémentaire les Quatre Vents. Autoroute A31 et nationale N431 accessibles à 7 km. Metz à 12 km.Cette maison de 6 pièces est proposée à l’achat pour 299 999 €.N’hésitez pas à prendre contact avec notre agence (Luigi PAPA : (Numéro supprimé)) pour obtenir de plus amples renseignements sur la maison ou sur les modalités de vente. Maisons Horizon Metz vous accompagne dans toutes vos démarches et à toutes les étapes de l’achat.

Corny-sur-Moselle
TERRAINTerrain à bâtir de 12,15 ares à CORNY SUR MOSELLE situé au cœur du clos de Béva rue de la cote de FAYE. Terrain non viabilisé. 22 mètres de façade. Les honoraires sont à la charge du vendeur.Les informations sur les risques auxquels ce bien est exposé sont disponibles sur le site Géorisques : www. georisques. gouv. fr.Contactez Patrick SCHOLTES Entrepreneur Individuel, Agent commercial OptimHome (RSAC N(Numéro supprimé) Greffe de METZ) (Numéro supprimé) (réf. 592674 )

Louvigny
TERRAIN ET MAISONMaison de 5 pièces (100 m²) à vendre à LouvignyEmplacement privilégié – À Louvigny (57420), maison neuve en vente de 5 pièces, 2 niveaux, 100 m² sur 432 m² de terrain. Son intérieur dispose de trois chambres, d’une cuisine et d’une salle de bains.À proximité : gare (Lorraine TGV), École Primaire des Racines et des Ailes, tennis et commerces. Accès autoroute A31 et nationale N431 à 10 km. Metz à 16 km.Le prix de vente de cette maison de 5 pièces est de 289 000 €.Contactez notre agence (LEONARDI Anthony : (Numéro supprimé)) pour obtenir de plus amples informations sur la maison ou sur les modalités de vente. Maisons Horizon Metz vous accompagne à toutes les étapes de l’achat et dans toutes vos démarches.

Louvigny
TERRAIN ET MAISONSur ce terrain, nous vous proposons cette maison neuve : le modèle SEATTLE, conçu par Maisons Vesta. Avec une surface de 81 m², cette maison à étage offre un excellent rapport qualité/prix et s’adapte parfaitement aux terrains avec une façade courte. Dès l’entrée, vous serez séduit par un espace salon/séjour/cuisine ouverte, entièrement modulable selon vos goûts et vos besoins. Le rez-de-chaussée comprend également un WC indépendant et un cellier, ajoutant une touche de praticité à votre quotidien.À l’étage, vous découvrirez trois chambres spacieuses, chacune conçue pour intégrer un dressing sur mesure, offrant ainsi un espace de rangement optimal. La partie nuit est complétée par un second WC indépendant et une très grande salle de bain, équipée pour accueillir à la fois une baignoire, une douche et une double vasque, idéale pour les matins animés des familles actives.Cette maison neuve est basse consommation et conforme à la RE2020, garantissant ainsi des performances énergétiques optimales et un confort de vie inégalé. Ne manquez pas cette opportunité unique de devenir propriétaire d’une maison moderne, fonctionnelle et éco-responsable avec Maisons Vesta. Contactez-nous dès aujourd’hui pour plus d’informations et pour découvrir les différentes configurations disponibles selon la surface désirée.

Louvigny
TERRAIN ET MAISONSur ce terrain, nous vous proposons cette maison neuve : la My First 91, un modèle signé Maisons Vesta. Avec une surface généreuse de 91 m², cette maison lumineuse et écologique est idéale pour les familles à la recherche d’un espace de vie confortable et de qualité, tout en respectant un budget maîtrisé.La My First 91 se distingue par son agencement parfaitement optimisé. Elle dispose de quatre chambres spacieuses, chacune de plus de 10 m², offrant ainsi un espace de vie confortable pour chaque membre de la famille. La maison comprend également une grande pièce de vie traversante et lumineuse avec une cuisine ouverte, un cellier attenant, une salle de bain avec baignoire et des WC séparés.Les caractéristiques principales de cette maison incluent une dalle étage en béton, un garage intégré et un garage accolé, répondant ainsi aux besoins de stationnement et de rangement de votre famille. De plus, les options les plus demandées par nos clients, telles que l’enduit bi-ton, les menuiseries en aluminium et la pergola, peuvent être ajoutées pour personnaliser votre maison selon vos goûts.Cette maison neuve est basse consommation et conforme à la réglementation environnementale RE2020, garantissant ainsi une habitation respectueuse de l’environnement et des économies d’énergie substantielles.Ne manquez pas cette opportunité unique d’acquérir une maison de qualité, parfaitement agencée et respectueuse de l’environnement, avec Maisons Vesta. Contactez-nous dès aujourd’hui pour plus d’informations et pour planifier une visite de ce modèle exceptionnel.

Louvigny
TERRAIN ET MAISONSur ce terrain, nous vous proposons cette maison neuve : la My First 75, un modèle idéal pour les familles à la recherche d’un logement à petit prix. Conçue par Maisons Vesta, cette maison de 75 m² offre 4 pièces, dont 3 chambres, et se distingue par ses excellentes performances énergétiques conformes à la norme RE2020.La My First 75 est la championne toutes catégories de notre gamme low cost ! C’est en effet la maison la moins chère, tout simplement ! Quand simplicité et qualité riment avec meilleur prix, cela donne une jolie habitation traditionnelle de plain-pied avec garage intégré, très sympa et affichant d’excellentes performances en matière d’économie d’énergie (RE2020), ce qui est indispensable à l’heure actuelle. Même avec un budget serré, votre projet se réalisera avec Maisons Vesta !Ce joli petit pavillon dispose d’un garage de 15m². Quant à sa surface habitable, elle est de 75m². Un grand séjour-cuisine traversant donne une agréable sensation d’espace. Trois chambres à coucher de dimension raisonnable accueilleront votre famille ! Le design sobre et moderne tout à la fois en fait un modèle très apprécié de nos clients.Fonctionnelle, elle a une petite surface, mais des espaces si bien répartis qu’on est loin de se sentir à l’étroit. La My First 75 a vraiment tous les arguments pour séduire le plus exigeant de nos clients ! Visitez-la en 3D sur notre site !Pour un prix défiant toute concurrence, vous bénéficiez de nos meilleures technologies et d’un service sans failles ! Soyez-en assuré, son tout petit prix ne vous privera pas d’une maison bien isolée, aux finitions soignées, dans laquelle vous et votre famille vous sentirez vraiment chez vous !Cette My First est prête à construire… et ce au meilleur prix. Ne manquez pas cette opportunité unique de devenir propriétaire d’une maison neuve, basse consommation et conforme à la RE2020, avec Maisons Vesta.
L’actualité immobilière à Pournoy-la-Grasse





