Images
Description
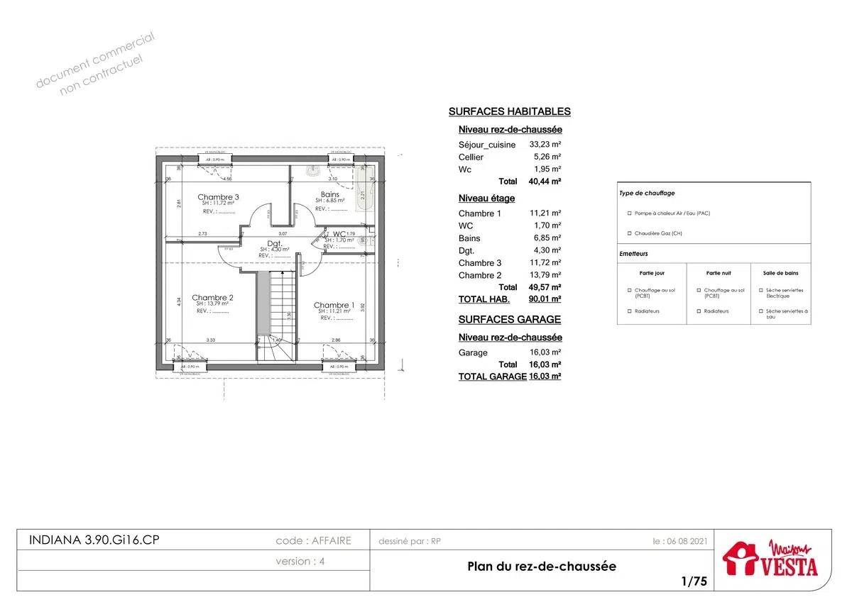
Nous vous proposons cette maison neuve, modèle INDIANA, spécialement conçue pour s'adapter à un terrain étroit sans compromettre l'espace et le confort. Avec une surface habitable de 90 m², cette maison à étage offre un cadre de vie idéal pour toute la famille.
Le rez-de-chaussée se compose d'un vaste espace salon-séjour-cuisine de 33 m², parfait pour partager des moments conviviaux. Un WC indépendant et un cellier pratique, accessible depuis la cuisine, optimisent l'espace et la fonctionnalité de cette maison. Le garage intégré est un atout majeur, permettant un accès direct à la maison tout en préservant l'esthétique de la façade.
À l'étage, l'espace nuit est judicieusement agencé pour offrir intimité et confort. Il comprend trois chambres spacieuses, de 11 à 13 m², une grande salle de bains familiale de presque 7 m² et un second WC séparé. La dalle en béton assure une isolation phonique de qualité entre les deux niveaux.
L'INDIANA se distingue également par son engagement envers l'environnement et votre portefeuille. Cette maison est basse consommation et répond aux exigences de la norme RE2020, garantissant une efficacité énergétique optimale et un confort thermique toute l'année.
L'option d'enduit bi-ton, très demandée, ajoute une touche moderne et personnalisée à votre façade, permettant à votre maison de se démarquer tout en s'intégrant harmonieusement à son environnement.
Choisir le modèle INDIANA, c'est opter pour une maison à l'architecture réfléchie, conçue pour maximiser chaque mètre carré disponible. C'est la promesse d'un foyer chaleureux, durable et économique, prêt à accueillir tous les moments précieux de votre vie familiale.
Logement susceptibles de vous intéresser
Nous vous proposons de découvrir aussi cette sélection de logements situés à moins de 10km de Sainte-Barbe et qui seraient susceptibles de vous intéresser.

Sainte-Barbe
TERRAIN ET MAISONSur ce terrain, nous vous proposons de découvrir l’élégance moderne et l’efficacité énergétique du modèle de maison Alaska par Maisons Vesta. Cette demeure contemporaine offre un confort optimal avec une entrée accueillante menant à un vaste séjour de 30 m², baigné de lumière naturelle grâce à ses grandes ouvertures vitrées, avec une cuisine attenante de 7,5 m², parfaitement aménageable.Le rez-de-chaussée inclut également des toilettes pratiques près de l’entrée et un grand garage intégré de 20,29 m², offrant à la fois un abri sécurisé pour votre véhicule et un espace de rangement supplémentaire.À l’étage, la maison Alaska continue de séduire avec trois chambres lumineuses et un bureau. La suite parentale de 15,90 m² offre un espace généreux pour un lit king-size et du mobilier complémentaire. Les deux autres chambres, respectivement de 11,64 m² et 11,06 m², sont idéales pour des enfants ou des invités. Un bureau de 8,25 m², parfait pour le télétravail ou les études, ainsi qu’une salle de bains moderne de 6,58 m² et un second WC complètent cet étage.Optez pour le modèle Alaska de Maisons Vesta, une maison qui allie style, fonctionnalité et respect de l’environnement.

Sainte-Barbe
TERRAIN ET MAISONNous vous proposons cette maison neuve, modèle INDIANA, spécialement conçue pour s’adapter à un terrain étroit sans compromettre l’espace et le confort. Avec une surface habitable de 90 m², cette maison à étage offre un cadre de vie idéal pour toute la famille.Le rez-de-chaussée se compose d’un vaste espace salon-séjour-cuisine de 33 m², parfait pour partager des moments conviviaux. Un WC indépendant et un cellier pratique, accessible depuis la cuisine, optimisent l’espace et la fonctionnalité de cette maison. Le garage intégré est un atout majeur, permettant un accès direct à la maison tout en préservant l’esthétique de la façade.À l’étage, l’espace nuit est judicieusement agencé pour offrir intimité et confort. Il comprend trois chambres spacieuses, de 11 à 13 m², une grande salle de bains familiale de presque 7 m² et un second WC séparé. La dalle en béton assure une isolation phonique de qualité entre les deux niveaux.L’INDIANA se distingue également par son engagement envers l’environnement et votre portefeuille. Cette maison est basse consommation et répond aux exigences de la norme RE2020, garantissant une efficacité énergétique optimale et un confort thermique toute l’année.L’option d’enduit bi-ton, très demandée, ajoute une touche moderne et personnalisée à votre façade, permettant à votre maison de se démarquer tout en s’intégrant harmonieusement à son environnement.Choisir le modèle INDIANA, c’est opter pour une maison à l’architecture réfléchie, conçue pour maximiser chaque mètre carré disponible. C’est la promesse d’un foyer chaleureux, durable et économique, prêt à accueillir tous les moments précieux de votre vie familiale.

Sainte-Barbe
TERRAIN ET MAISONSur ce terrain, nous vous proposons cette maison neuve : le modèle SEATTLE de Maisons Vesta. Avec une surface de 96 m², cette maison à étage est idéale pour les familles souhaitant allier confort et économies d’énergie. Le modèle SEATTLE se distingue par son excellent rapport qualité/prix et sa capacité à s’adapter à des terrains avec une façade courte. Dès l’entrée, vous serez séduit par un espace salon/séjour/cuisine ouverte, entièrement modulable selon vos goûts et vos besoins. Un WC indépendant et un cellier viennent compléter le rez-de-chaussée, offrant ainsi des espaces de rangement pratiques et fonctionnels.À l’étage, vous découvrirez quatre chambres spacieuses, chacune conçue pour intégrer un dressing sur mesure, répondant ainsi aux besoins de rangement de toute la famille. Un second WC indépendant et une grande salle de bain, équipée pour accueillir à la fois une baignoire, une douche et une double vasque, complètent la partie nuit. Cette configuration est parfaite pour les matins chargés des familles actives.Cette maison neuve est basse consommation et conforme à la réglementation environnementale RE2020, garantissant ainsi des performances énergétiques optimales et un impact environnemental réduit. Ne manquez pas cette opportunité de construire la maison de vos rêves avec Maisons Vesta, un constructeur reconnu pour la qualité de ses réalisations et son engagement en faveur de l’environnement. Contactez-nous dès maintenant pour plus d’informations et pour découvrir les différentes configurations disponibles selon la surface désirée.

Sainte-Barbe
TERRAIN ET MAISONSur ce terrain, nous vous proposons une maison neuve : le Montmartre, un modèle exclusif signé Maisons Vesta, un constructeur reconnu pour offrir un excellent rapport qualité/prix.Cette maison contemporaine à étage, d’une superficie de 96m², allie lignes traditionnelles et touches de design moderne pour créer une esthétique épurée et captivante. Le Montmartre se distingue par son architecture compacte et son garage accolé à toit plat, offrant une intégration harmonieuse dans son environnement.À l’intérieur, le Montmartre est conçu pour le confort et la fonctionnalité. Il dispose de 3 chambres spacieuses et d’une vaste pièce de vie ouverte, idéale pour des moments conviviaux en famille ou entre amis. La dalle béton à l’étage assure une isolation phonique et thermique optimale, renforçant le confort de vie au quotidien.Cette maison neuve est conforme à la norme RE2020, garantissant une basse consommation énergétique et un respect des dernières réglementations environnementales. Vous avez également la possibilité de personnaliser votre future maison avec des options très demandées, telles que la domotique et les menuiseries en aluminium.Optez pour le Montmartre et découvrez une maison où chaque détail a été soigneusement pensé pour offrir une expérience de vie harmonieuse et moderne. Ne manquez pas cette opportunité unique de devenir propriétaire d’une maison alliant élégance, praticité et performance énergétique.

Vantoux
TERRAINVENTE : terrain de 253 m² à VantouxProche de Metz – À proximité des écoles et commerces, donnez vie à votre projet sur ce terrain de 253 m² en vente à Vantoux (57070).Proche gares, École Primaire Intercommunale les Moulins, boulangerie et commerce. Accès autoroute A314 à 1 km. Luxembourg à 39 km et Allemagne à 39 km.Son prix de vente est de 106 875 €. Contactez Roland PARADEIS (tél : (Numéro supprimé)) pour tout renseignement sur le terrain ou sur les démarches à suivre. Maisons Horizon Metz vous accompagne à toutes les étapes de votre projet et dans tous vos projets immobiliers.

Vantoux
TERRAIN ET MAISONVENTE d’une maison de 5 pièces (114 m²) à VantouxProche de Metz – Maison neuve 5 pièces en vente à Vantoux (57070) avec 2 niveaux, une surface de 114 m² sur un terrain de 253 m². Son intérieur inclut quatre chambres, une cuisine et une salle de bains.Proche gares, École Primaire Intercommunale les Moulins, boulangerie et commerce. Accès autoroute A314 à 1 km. Luxembourg à 39 km et Allemagne à 39 km.Le prix de vente de cette maison de 5 pièces est de 375 000 €.Prenez contact avec notre agence (Roland PARADEIS : (Numéro supprimé)) pour tout renseignement sur la maison. Faites de vos projets immobiliers une réalité avec Maisons Horizon Metz.

Argancy
TERRAIN ET MAISONArgancy (57640) Maison neuve 5 pièces, 90 m²Proche de Metz, du Luxembourg et de l’Allemagne Terrain de 300 m²L’essentielSurface habitable : 90 m²Pièces : 5 (dont 3 chambres)Niveaux : 2Terrain : 300 m²État : Maison neuveDescriptionSituée à Argancy, à quelques minutes de Metz, du Luxembourg et de l’Allemagne, découvrez cette maison contemporaine neuve de 90 m² offrant un cadre de vie calme et verdoyant.Elle se compose d’une pièce de vie lumineuse avec cuisine, de trois chambres confortables, et d’une salle de bains moderne.Son agencement fonctionnel et ses prestations neuves séduiront les familles ou primo-accédants à la recherche d’un bien moderne proche de toutes commodités.EnvironnementÉcoles à proximité :École Élémentaire et Maternelle Erckmann-Chatrian, École Privée Marcel VanTransports : 6 gares à moins de 10 minutesAccès rapide : Autoroute A4 à seulement 1 kmQuartier résidentiel calme et recherchéPrix💰 279 000 €ContactMaisons Horizon MetzAnthony LEONARDI – 📞 |(Numéro supprimé)|Pour tout renseignement ou pour organiser une visite, contactez-nous dès aujourd’hui.Maisons Horizon Metz vous accompagne dans la réalisation de votre projet immobilier.

Vantoux
TERRAIN ET MAISONVENTE d’une maison T6 (117 m²) à Vantoux. Disponible sous 6 moisEmplacement privilégié – À Vantoux (57070), maison neuve en vente de 6 pièces, 2 niveaux, 117 m² et 253 m² de terrain. Son intérieur compte quatre chambres, une cuisine et une salle de bains. Vue sur un espace vert.À proximité : gares, École Primaire Intercommunale les Moulins, boulangerie et commerce. Accès autoroute A314 à 1 km. Luxembourg à 39 km et Allemagne à 39 km. Metz à 4 km.Le prix de vente de cette maison de 6 pièces est de 375 673 €.Contactez Luigi PAPA (tél : (Numéro supprimé)) pour toute information sur la maison ou sur les modalités de vente.

Colligny-Maizery
TERRAIN ET MAISONMaison de 4 pièces (90 m²) en vente à MaizeryProche de Metz – En vente à Maizery (57530) : maison neuve 4 pièces de 90 m² et de 475 m² de terrain. Elle compte trois chambres, une cuisine et une salle de bains.À dix minutes : gares (Courcelles-sur-Nied, Sanry-sur-Nied et Peltre), établissements scolaires, crèches, ESITC de Metz, tennis, bibliothèques, bassins de natation, boulangeries, commerces, supermarchés, bureaux de poste et épiceries. Marché Rue du Ford des Bordes le mardi matin. Accès autoroutes A314 et A315 et nationale N431 à 8 km. Allemagne à 39 km et Luxembourg à 39 km.Le prix de vente de cette maison de 4 pièces est de 299 000 €.N’hésitez pas à prendre contact avec Roland PARADEIS (tél : (Numéro supprimé)) pour toute information sur la maison. Maisons Horizon Metz vous accompagne à toutes les étapes de l’achat et dans toutes vos démarches.
L’actualité immobilière à Sainte-Barbe





