Images
Description
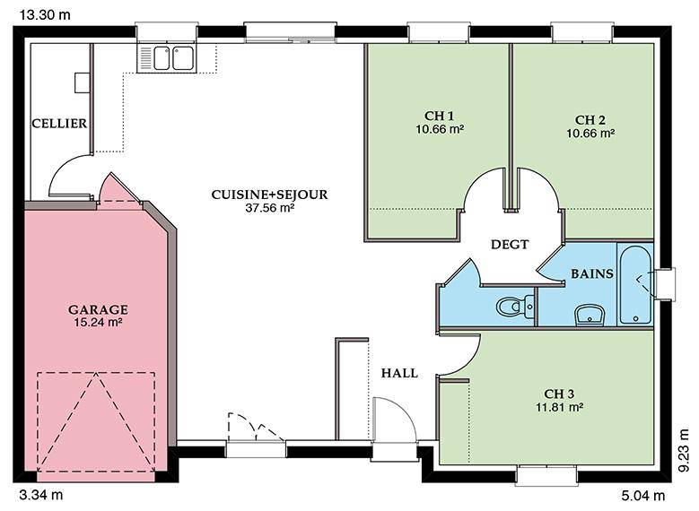
Découvrez la Prunière, une maison neuve de 87,5 m² avec garage intégré, qui marie style moderne et confort au quotidien. Disponible en toit 2 ou 4 pans, elle séduit par son architecture élégante et son agencement fonctionnel, idéal pour un couple ou une jeune famille.
L’intérieur se compose de 3 chambres lumineuses, d’un espace de vie ouvert et convivial, et d’un garage accolé offrant un rangement pratique et un accès direct à la maison. Chaque espace a été pensé pour offrir volume, clarté et bien-être.
Conforme à la réglementation RE2020, la Prunière bénéficie d’une isolation performante, d’une consommation énergétique réduite et d’un confort thermique optimal tout au long de l’année.
La Prunière 87,5 m² + garage, c’est le choix d’une maison moderne, économe et durable, pensée pour un mode de vie simple, serein et tourné vers l’avenir.
Logement susceptibles de vous intéresser
Nous vous proposons de découvrir aussi cette sélection de logements situés à moins de 10km de Cercy-la-Tour et qui seraient susceptibles de vous intéresser.
Cercy-la-Tour
TERRAINÀ vendre, un terrain de 1508 m², entièrement viabilisé, idéal pour concrétiser votre projet de construction de maison dans la charmante commune de Cercy-la-Tour, située dans le département de la Nièvre, en Bourgogne-Franche-Comté. Ce terrain se distingue par sa vue dégagée et son ambiance paisible, créant un cadre de vie agréable pour toute la famille. Le Plan Local d’Urbanisme (PLU) non contraignant vous offre une flexibilité précieuse dans l’élaboration de votre projet immobilier. Cercy-la-Tour est une ville qui allie tranquillité et accessibilité, offrant de nombreuses commodités et services de proximité. Vous pourrez trouver des écoles, un collège, et un lycée dans les environs immédiats, facilitant la vie quotidienne des familles. Appréciez également la qualité de vie exceptionnelle dans cette ville, avec des espaces verts propices à la détente et une large gamme d’activités locales à découvrir. Que vous cherchiez à créer un foyer chaleureux ou à profiter de la nature environnante, ce terrain est un choix parfait. Ne laissez pas passer cette opportunité unique d’investir dans un terrain au potentiel immense. Contactez-nous pour découvrir comment ce projet peut devenir votre réalité! À noter qu’en tant que constructeur, nous ne sommes pas mandatés pour réaliser la vente de ce terrain.
Cercy-la-Tour
TERRAIN ET MAISONDécouvrez la Prunière, une maison neuve de 87,5 m² avec garage intégré, qui marie style moderne et confort au quotidien. Disponible en toit 2 ou 4 pans, elle séduit par son architecture élégante et son agencement fonctionnel, idéal pour un couple ou une jeune famille.L’intérieur se compose de 3 chambres lumineuses, d’un espace de vie ouvert et convivial, et d’un garage accolé offrant un rangement pratique et un accès direct à la maison. Chaque espace a été pensé pour offrir volume, clarté et bien-être.Conforme à la réglementation RE2020, la Prunière bénéficie d’une isolation performante, d’une consommation énergétique réduite et d’un confort thermique optimal tout au long de l’année.La Prunière 87,5 m² + garage, c’est le choix d’une maison moderne, économe et durable, pensée pour un mode de vie simple, serein et tourné vers l’avenir.
Charrin
TERRAIN ET MAISONNous vous proposons cette maison neuve, baptisée Focus 73, un modèle de construction qui allie modernité, confort et respect de l’environnement. Avec une surface habitable de 73 m², cette maison est parfaitement conçue pour accueillir confortablement votre famille, offrant 3 chambres spacieuses et un total de 4 pièces bien agencées pour maximiser l’espace et la luminosité. Le modèle Focus 73 se distingue par son garage intégré, offrant non seulement un espace de stationnement sécurisé pour votre véhicule mais aussi un accès direct à votre domicile, facilitant ainsi votre quotidien. Cette maison est conçue pour répondre aux exigences de la norme RE2020, la réglementation environnementale la plus récente, garantissant une construction basse consommation. Cela signifie que vous bénéficierez d’une isolation optimale, d’une excellente performance énergétique et d’une réduction significative de vos factures d’énergie, tout en contribuant à la protection de l’environnement. La Focus 73 est l’incarnation de l’habitat du futur, offrant un cadre de vie sain et économique. Son architecture moderne et ses finitions de qualité en font un lieu de vie agréable et fonctionnel. La maison est conçue pour offrir un confort optimal en toutes saisons, grâce à une gestion intelligente de la température intérieure et à l’utilisation de matériaux durables et écologiques. En choisissant la Focus 73, vous optez pour une maison neuve qui respecte les plus hauts standards de qualité et de performance énergétique. C’est l’assurance de vivre dans un espace sain, confortable et respectueux de l’environnement, conçu pour répondre aux besoins de votre famille aujourd’hui et demain. Ne manquez pas cette opportunité de construire la maison de vos rêves, conforme aux dernières normes environnementales. La Focus 73 est la promesse d’un avenir durable et d’un investissement pérenne pour vous et vos proches. Contactez-nous dès maintenant pour plus d’informations et débutons ensemble le projet
Charrin
TERRAIN ET MAISONNous vous proposons cette maison neuve, baptisée « »Menilière » », un modèle de construction qui allie élégance et fonctionnalité, conçu pour répondre aux attentes des familles modernes. Avec une surface habitable de 100 m², cette maison est pensée pour offrir confort et bien-être à ses occupants. La Menilière se distingue par son architecture soignée, disponible en versions à 2 ou 4 pans, permettant ainsi de s’adapter à vos préférences esthétiques et aux spécificités de votre terrain. Son design extérieur, à la fois contemporain et intemporel, promet de s’intégrer harmonieusement dans son environnement. Cette maison est composée de 4 pièces judicieusement réparties, incluant 4 chambres spacieuses, garantissant ainsi un espace privé confortable pour chaque membre de la famille. L’agencement intérieur est conçu pour maximiser l’espace de vie commun, favorisant les moments de convivialité et le bien-être quotidien. L’un des atouts majeurs de la Menilière est son garage intégré, offrant non seulement un espace de stationnement sécurisé pour votre véhicule mais aussi un espace de rangement supplémentaire, essentiel pour une maison ordonnée et fonctionnelle. Soucieux de l’environnement et de votre confort, nous avons conçu la Menilière pour être une maison basse consommation, conforme à la réglementation environnementale RE2020. Cette norme garantit une efficacité énergétique optimale, réduisant ainsi vos factures d’énergie tout en contribuant à la protection de l’environnement. Grâce à une isolation performante, un système de chauffage économique et une conception orientée vers l’efficacité énergétique, la Menilière vous promet un habitat sain, confortable et respectueux de la planète. Choisir la Menilière, c’est opter pour une maison neuve qui répond à vos exigences de confort, de style et de durabilité. Nous vous invitons à nous contacter pour plus d’informations sur ce modèle exceptionnel et pour débuter ensemble le projet de construction de la maison de
Charrin
TERRAINNous vous proposons à la vente un terrain spacieux de 1350m² situé à Charrin, dans le département de la Nièvre. Ce terrain plat offre une vue dégagée, ainsi qu’un cadre champêtre propice à la construction de votre future maison. Profitez d’un environnement calme et ensoleillé, parfait pour un projet résidentiel. Avec son prix attractif et son PLU non contraignant, ce bien est une opportunité à ne pas manquer ! Charrin, une charmante commune de la Nièvre, se distingue par son cadre idyllique et ses paysages préservés. Idéalement située à proximité des commodités nécessaires à votre quotidien, vous trouverez des écoles, des commerces locaux et des activités de loisirs dans les environs. La région est également connue pour ses espaces naturels propices aux promenades et aux découvertes. En choisissant Charrin, vous optez pour un lieu de vie serein, tout en restant connecté aux services essentiels. Cet emplacement de choix offre un potentiel immense pour tous vos projets de construction. N’attendez plus, et saisissez cette chance d’acquérir un terrain unique qui répond à toutes vos aspirations !
Charrin
TERRAINÀ vendre : magnifique terrain viabilisé d’une superficie généreuse situé dans le charmant lotissement de Charrin, à proximité de la ville de 58300. Ce terrain plat et ensoleillé offre un potentiel exceptionnel pour la réalisation de votre projet de construction de maison. Niché dans un cadre champêtre au calme, ce bien rare combine l’attrait du milieu rural avec un accès facilité aux commodités essentielles. La ville de Charrin, située dans le département de la Nièvre, bénéficie d’une situation géographique privilégiée, alliant tranquillité et accessibilité. Vous serez à proximité immédiate des axes routiers importants, facilitant vos déplacements vers les villes environnantes. De plus, un arrêt de bus se trouve à quelques pas, offrant une excellente connectivité pour des trajets en toute sérénité. La région regorge d’attractions locales, de paysages pittoresques et d’activités de plein air qui séduiront les amoureux de la nature et de la tranquillité. Ne laissez pas passer cette opportunité unique d’acquérir un terrain d’exception dans un environnement privilégié. Contactez-nous dès maintenant pour découvrir tout le potentiel de ce lieu idéal pour bâtir la maison de vos rêves !
L’actualité immobilière à Cercy-la-Tour
27/11/2023
02/11/2023
30/10/2023
20/10/2023
16/10/2023
16/10/2023