Images
Description
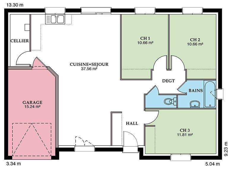
Découvrez la Prunière, une maison neuve de 87,5 m² avec garage intégré, qui marie style moderne et confort au quotidien. Disponible en toit 2 ou 4 pans, elle séduit par son architecture élégante et son agencement fonctionnel, idéal pour un couple ou une jeune famille.
L’intérieur se compose de 3 chambres lumineuses, d’un espace de vie ouvert et convivial, et d’un garage accolé offrant un rangement pratique et un accès direct à la maison. Chaque espace a été pensé pour offrir volume, clarté et bien-être.
Conforme à la réglementation RE2020, la Prunière bénéficie d’une isolation performante, d’une consommation énergétique réduite et d’un confort thermique optimal tout au long de l’année.
La Prunière 87,5 m² + garage, c’est le choix d’une maison moderne, économe et durable, pensée pour un mode de vie simple, serein et tourné vers l’avenir.
Logement susceptibles de vous intéresser
Nous vous proposons de découvrir aussi cette sélection de logements situés à moins de 10km de Dornes et qui seraient susceptibles de vous intéresser.
Dornes
TERRAINDécouvrez ce terrain de 1509 m² idéalement situé à Dornes, dans la Nièvre, en Bourgogne-Franche-Comté. Viabilisé et offrant un cadre champêtre, ce bien est parfait pour concrétiser votre projet de construction de maison. Profitez d’un environnement paisible tout en bénéficiant de toutes les commodités nécessaires à un quotidien agréable. Située au cœur de la ville, Dornes est une commune dynamique qui sait allier tranquillité et vie locale. À proximité, vous trouverez de nombreux commerces, écoles, ainsi qu’un collège et un lycée, garantissant une accessibilité aisée aux services essentiels. La qualité de vie est au rendez-vous dans cette région, avec des transports en commun facilement accessibles et un arrêt de bus à proximité. Ne manquez pas l’opportunité de vous installer dans cet endroit idéal, où chaque jour devient une joie de vivre. Ce terrain offre un potentiel exceptionnel pour votre projet de vie. N’hésitez pas à nous contacter pour plus d’informations sur cette opportunité unique. À noter qu’en tant que constructeur, nous ne sommes pas mandatés pour réaliser la vente de ce terrain.
Dornes
TERRAIN ET MAISONDécouvrez la Prunière, une maison neuve de 87,5 m² avec garage intégré, qui marie style moderne et confort au quotidien. Disponible en toit 2 ou 4 pans, elle séduit par son architecture élégante et son agencement fonctionnel, idéal pour un couple ou une jeune famille.L’intérieur se compose de 3 chambres lumineuses, d’un espace de vie ouvert et convivial, et d’un garage accolé offrant un rangement pratique et un accès direct à la maison. Chaque espace a été pensé pour offrir volume, clarté et bien-être.Conforme à la réglementation RE2020, la Prunière bénéficie d’une isolation performante, d’une consommation énergétique réduite et d’un confort thermique optimal tout au long de l’année.La Prunière 87,5 m² + garage, c’est le choix d’une maison moderne, économe et durable, pensée pour un mode de vie simple, serein et tourné vers l’avenir.
Dornes
TERRAIN ET MAISONNous vous proposons cette maison neuve, baptisée « »Menilière » », un modèle de construction qui allie élégance et fonctionnalité, conçu pour répondre aux attentes des familles modernes. Avec une surface habitable de 100 m², cette maison est pensée pour offrir confort et bien-être à ses occupants. La Menilière se distingue par son architecture soignée, disponible en versions à 2 ou 4 pans, permettant ainsi de s’adapter à vos préférences esthétiques et aux spécificités de votre terrain. Son design extérieur, à la fois contemporain et intemporel, promet de s’intégrer harmonieusement dans son environnement. Cette maison est composée de 4 pièces judicieusement réparties, incluant 4 chambres spacieuses, garantissant ainsi un espace privé confortable pour chaque membre de la famille. L’agencement intérieur est conçu pour maximiser l’espace de vie commun, favorisant les moments de convivialité et le bien-être quotidien. L’un des atouts majeurs de la Menilière est son garage intégré, offrant non seulement un espace de stationnement sécurisé pour votre véhicule mais aussi un espace de rangement supplémentaire, essentiel pour une maison ordonnée et fonctionnelle. Soucieux de l’environnement et de votre confort, nous avons conçu la Menilière pour être une maison basse consommation, conforme à la réglementation environnementale RE2020. Cette norme garantit une efficacité énergétique optimale, réduisant ainsi vos factures d’énergie tout en contribuant à la protection de l’environnement. Grâce à une isolation performante, un système de chauffage économique et une conception orientée vers l’efficacité énergétique, la Menilière vous promet un habitat sain, confortable et respectueux de la planète. Choisir la Menilière, c’est opter pour une maison neuve qui répond à vos exigences de confort, de style et de durabilité. Nous vous invitons à nous contacter pour plus d’informations sur ce modèle exceptionnel et pour débuter ensemble le projet de construction de la maison de
Dornes
TERRAINNous vous présentons une opportunité unique d’acquérir un terrain viabilisé de 1 358 m², idéalement situé au cœur du charmant village de Dornes, dans le département de la Nièvre en Bourgogne-Franche-Comté. Ce terrain plat et dernier disponible du lotissement offre un cadre champêtre exceptionnel pour réaliser votre projet de construction de maison, tout en profitant d’un environnement paisible et agréable. La ville de Dornes se distingue par son atmosphère conviviale et son accès facile aux commodités indispensables. Vous trouverez à proximité des écoles, des commerces de proximité, et de nombreuses activités de loisirs qui subliment la qualité de vie. Que vous souhaitiez profiter de la tranquillité de la campagne ou des attraits de la région bourguignonne, ce terrain vous permettra de bâtir votre rêve tout en restant proche des services essentiels et des magnifiques paysages environnants. Ce terrain constitue une occasion rare d’investir dans un emplacement au potentiel prometteur. Ne laissez pas passer cette opportunité et contactez-nous pour envisager votre future maison à Dornes. À noter qu’en tant que constructeur, nous ne sommes pas mandatés pour réaliser la vente de ce terrain.
L’actualité immobilière à Dornes
27/11/2023
02/11/2023
30/10/2023
20/10/2023
16/10/2023
16/10/2023