Images
Description
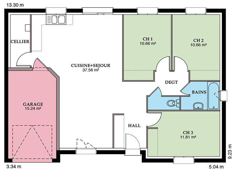
Nous vous proposons cette maison neuve, baptisée ""Prunière"", un modèle de construction alliant élégance et fonctionnalité, conçu pour répondre aux attentes des familles modernes. Avec une surface habitable de 99 m², cette maison est parfaitement dimensionnée pour offrir confort et bien-être à ses occupants.
La ""Prunière"" se distingue par son architecture soignée, disponible en versions à 2 ou 4 pans, selon vos préférences, intégrant harmonieusement un garage. Cette caractéristique non seulement ajoute à l'esthétique de la maison mais assure également une fonctionnalité accrue, offrant un espace supplémentaire pour votre véhicule ou pour du rangement.
L'intérieur de la maison est judicieusement agencé pour maximiser l'espace et la lumière naturelle. Elle comprend quatre chambres spacieuses, promettant un espace privé confortable pour chaque membre de la famille. Les quatre pièces de la maison sont conçues pour faciliter une vie familiale harmonieuse, avec des espaces de vie communs accueillants et bien pensés.
Au-delà de son design attrayant, la ""Prunière"" est une maison basse consommation, conçue dans le strict respect de la réglementation environnementale RE2020. Cette norme garantit une efficacité énergétique optimale et une réduction significative de votre empreinte carbone. Vivre dans la ""Prunière"", c'est choisir un habitat respectueux de l'environnement, tout en bénéficiant d'un confort inégalé et de réductions substantielles sur vos factures d'énergie.
Cette maison neuve représente une opportunité exceptionnelle de posséder une demeure moderne, durable et économe en énergie. La ""Prunière"" est la promesse d'un foyer chaleureux, où chaque détail a été pensé pour votre bien-être et celui de votre famille. Ne manquez pas cette chance de construire la maison de vos rêves, un lieu où de nouveaux souvenirs seront créés et chéris pour les années à venir.
Logement susceptibles de vous intéresser
Nous vous proposons de découvrir aussi cette sélection de logements situés à moins de 10km de Saxi-Bourdon et qui seraient susceptibles de vous intéresser.
Rouy
TERRAINVenez découvrir ce joli terrain constructible de 1000 m² situé dans la commune de ROUY, dans un secteur vert et calme, à 30 minutes de Nevers et Château Chinon.Situé en zone U et entièrement borné, à l’entrée du parc régional naturel du Morvan, ce beau terrain dispose d’une vue dégagée et des réseaux en limite propriété.Idéal pour les personnes qui cherchent du calme et la nature non loin des commodités à un petit prix.N’hésitez pas à me contacter afin de planifier une visite !Prix : 15000 euros Honoraires charge vendeurPour visiter et vous accompagner dans votre projet, contactez Jerome GROBARCIK, au (Numéro supprimé) ou, par courriel à (Email supprimé).Selon l’article L.561.5 du Code Monétaire et Financier, pour l’organisation de la visite, la présentation d’une pièce d’identité vous sera demandée.Cette présente annonce a été rédigée sous la responsabilité éditoriale de Jerome GROBARCIK agissant sous le statut d’agent commercial immatriculé au RSAC nevers 904548880 auprès de SAS PROPRIETES PRIVEES, au capital de 44 920 euros, ZAC LE CHÊNE FERRÉ – 44 ALLÉE DES CINQ CONTINENTS 44120 VERTOU; SIRET 487 624 777 00040, RCS Nantes. Carte Professionnelle Transactions sur immeubles et fonds de commerce (T) et Gestion immobilière (G) n°CPI 4401 2016 000 010 388 délivrée par la CCI Nantes – Saint Nazaire. Compte séquestre n(Numéro supprimé)67 BPA SAINT-SEBASTIEN-SUR-LOIRE (44230). Garantie GALIAN-SMABTP – 89 rue de la Boétie, 75008 Paris – n°28137 J pour 2 000 000 euros pour T et 120 000 euros pour G. Assurance responsabilité civile professionnelle par GALIAN-SMABTP n° de police 28137.JMandat réf : 422386 – Le professionnel garantit et sécurise votre projet immobilier. Jerome GROBARCIK (EI) Agent Commercial – Numéro RSAC : nevers 904548880 – .Les informations sur les risques auxquels ce bien est exposé sont disponibles sur le site Géorisques : www. georisques. gouv. fr
Saxi-Bourdon
TERRAINSébastien vous propose de découvrir ce terrain exceptionnel de 1784 m² situé dans la charmante commune de Saxi-Bourdon, un véritable havre de paix en Bourgogne-Franche-Comté. Profitez d’une vue splendide, sans vis-à-vis, qui vous permettra d’imaginer le projet de construction de votre maison idéale, tout en profitant d’un cadre champêtre et apaisant. Ce terrain, bien ensoleillé et au calme, est le lieu parfait pour donner vie à vos rêves architecturaux. Située dans le département de la Nièvre, Saxi-Bourdon offre une qualité de vie incomparable. La ville bénéficie d’un accès facile à un axe routier important, tout en conservant une atmosphère calme et conviviale. Vous trouverez à proximité des commodités essentielles, ainsi que des lieux d’intérêt qui ajouteront à votre quotidien. L’environnement verdoyant et paisible qui entoure ce terrain en fait un choix stratégique pour quiconque recherche un équilibre parfait entre tranquillité et accessibilité. Ne laissez pas passer cette opportunité unique d’acquérir un terrain avec un potentiel illimité pour votre futur projet. Contactez-nous dès maintenant pour plus d’informations ! À noter qu’en tant que constructeur, nous ne sommes pas mandatés pour réaliser la vente de ce terrain.
Saxi-Bourdon
TERRAIN ET MAISONNous vous proposons cette maison neuve, baptisée « »Prunière » », un modèle de construction alliant élégance et fonctionnalité, conçu pour répondre aux attentes des familles modernes. Avec une surface habitable de 99 m², cette maison est parfaitement dimensionnée pour offrir confort et bien-être à ses occupants. La « »Prunière » » se distingue par son architecture soignée, disponible en versions à 2 ou 4 pans, selon vos préférences, intégrant harmonieusement un garage. Cette caractéristique non seulement ajoute à l’esthétique de la maison mais assure également une fonctionnalité accrue, offrant un espace supplémentaire pour votre véhicule ou pour du rangement. L’intérieur de la maison est judicieusement agencé pour maximiser l’espace et la lumière naturelle. Elle comprend quatre chambres spacieuses, promettant un espace privé confortable pour chaque membre de la famille. Les quatre pièces de la maison sont conçues pour faciliter une vie familiale harmonieuse, avec des espaces de vie communs accueillants et bien pensés. Au-delà de son design attrayant, la « »Prunière » » est une maison basse consommation, conçue dans le strict respect de la réglementation environnementale RE2020. Cette norme garantit une efficacité énergétique optimale et une réduction significative de votre empreinte carbone. Vivre dans la « »Prunière » », c’est choisir un habitat respectueux de l’environnement, tout en bénéficiant d’un confort inégalé et de réductions substantielles sur vos factures d’énergie. Cette maison neuve représente une opportunité exceptionnelle de posséder une demeure moderne, durable et économe en énergie. La « »Prunière » » est la promesse d’un foyer chaleureux, où chaque détail a été pensé pour votre bien-être et celui de votre famille. Ne manquez pas cette chance de construire la maison de vos rêves, un lieu où de nouveaux souvenirs seront créés et chéris pour les années à venir.
Saint-Benin-d'Azy
TERRAIN ET MAISONNous vous proposons cette maison neuve, baptisée « »Aubetière » », un modèle de construction qui allie élégance et performance énergétique, conforme aux exigences de la norme RE2020. Avec une surface habitable de 90 m², cette maison est conçue pour offrir un confort optimal tout en minimisant son impact sur l’environnement. L’Aubetière se décline en deux versions architecturales : vous avez le choix entre un toit traditionnel à 2 pans ou une version plus moderne à 4 pans, chacune pensée pour s’intégrer harmonieusement à son environnement. Cette maison basse consommation est un véritable engagement vers un avenir plus durable, garantissant une réduction significative de vos factures énergétiques grâce à une isolation optimale, une ventilation performante et l’utilisation de matériaux à faible impact environnemental. Ce modèle se compose de 4 pièces lumineuses et spacieuses, dont 4 chambres confortables, offrant ainsi un cadre de vie idéal pour une famille. Chaque espace a été pensé pour maximiser le confort et la fonctionnalité, tout en respectant les critères de la norme RE2020. Vous bénéficierez d’un intérieur à la fois moderne et chaleureux, avec la possibilité de personnaliser les finitions selon vos goûts et vos besoins. L’Aubetière représente l’opportunité de vivre dans une maison neuve, économique et respectueuse de l’environnement, sans compromis sur le style ou le confort. C’est l’assurance d’un investissement pérenne, conçu pour répondre aux défis de demain. N’attendez plus pour faire de ce lieu votre nouveau foyer, un espace où bien-être rime avec éco-responsabilité.
Saint-Benin-d'Azy
TERRAINDécouvrez un terrain d’exception à vendre d’une superficie généreuse de 2700 m², idéal pour la réalisation de votre projet de construction de maison. Situé à Saint-Benin-d’Azy, dans le département de la Nièvre, ce terrain non viabilisé bénéficie d’un Plan Local d’Urbanisme non contraignant, vous offrant une liberté maximale pour concrétiser votre vision architecturale. Avec son cadre champêtre et arboré, cet emplacement promet de devenir un havre de paix et de confort pour votre future résidence. Nichée en Bourgogne-Franche-Comté, la charmante commune de Saint-Benin-d’Azy offre de nombreux atouts. Vous serez séduits par la proximité des commodités, facilitant ainsi votre quotidien grâce aux écoles, commerces et services à quelques pas de votre future maison. La ville est également entourée de paysages pittoresques, offrant un environnement de vie agréable et reposant. Laissez-vous charmer par la douceur de vivre de cette région, où chaque jour est une invitation à découvrir de nouvelles merveilles. Ne manquez pas cette opportunité unique d’acquérir un terrain au potentiel exceptionnel. N’hésitez pas à nous contacter pour plus d’informations sur ce bien rare sur le marché?! À noter qu’en tant que constructeur, nous ne sommes pas mandatés pour réaliser la vente de ce terrain.
Saint-Saulge
TERRAIN ET MAISONNous vous proposons cette maison neuve, baptisée « »Efficium » », un modèle de résidence qui allie élégance, confort et performance énergétique. Conçue pour répondre aux attentes des familles modernes, cette maison de 105 m² dispose de 4 chambres et offre un agencement optimal avec ses 4 pièces réparties en forme de L, permettant une séparation naturelle entre l’espace jour et l’espace nuit. L’Efficium se distingue par son garage intégré, une solution pratique qui optimise l’espace de vie tout en offrant un accès direct à la maison, idéal pour les jours de pluie ou pour décharger facilement vos courses. La conception en L de la maison n’est pas seulement esthétique; elle permet également de créer un espace extérieur protégé, parfait pour vos moments de détente en famille ou entre amis. Cette maison est conçue dans le respect des normes les plus exigeantes en matière de construction durable. Elle est conforme à la réglementation environnementale RE2020, garantissant une basse consommation énergétique. Cela signifie que l’Efficium bénéficie d’une isolation optimale, de systèmes de chauffage et de ventilation de pointe, et de matériaux de construction à faible impact environnemental. Vivre dans l’Efficium, c’est faire le choix d’un habitat respectueux de l’environnement tout en réduisant significativement vos factures d’énergie. L’intérieur de la maison est conçu pour offrir un cadre de vie lumineux et chaleureux. Les grandes fenêtres assurent une abondance de lumière naturelle dans toutes les pièces, créant une atmosphère accueillante à tout moment de la journée. La disposition des pièces est pensée pour favoriser l’intimité de chaque membre de la famille tout en conservant des espaces de vie communs conviviaux et spacieux. En choisissant l’Efficium, vous optez pour une maison qui combine confort moderne, fonctionnalité et engagement envers l’environnement. Une opportunité unique de construire le foyer de vos rêves, conçu pour s’adapter à votre mode de vie to
Saint-Saulge
TERRAINNous vous proposons un magnifique terrain de 2937 m² situé à Saint-Saulge, dans le département de la Nièvre. Ce parcelle offre un cadre champêtre exceptionnel avec une vue dégagée et sans vis-à-vis, idéal pour concevoir la maison de vos rêves. Le terrain, bien orienté et en pente, saura séduire les amateurs de nature souhaitant bénéficier d’un environnement paisible tout en profitant d’une qualité de vie optimale. Ce projet de construction vous permettra de créer un espace de vie personnalisé adapté à votre style de vie. Saint-Saulge est une charmante commune qui allie tranquillité et accessibilité. Vous y trouverez une proximité avec des attractions locales pittoresques et des commodités essentielles. La région est réputée pour ses paysages verdoyants et ses activités de plein air, tout en étant à quelques minutes des services nécessaires tels que commerces, écoles et infrastructures de santé. Ce cadre de vie, unique et préservé, en fait une localisation privilégiée pour les familles et les amoureux de la nature. Ne manquez pas cette opportunité rare d’acquérir un terrain exceptionnel à Saint-Saulge. Découvrez le potentiel de ce bien et laissez libre cours à votre imagination pour y construire votre havre de paix. Contactez-nous dès aujourd’hui pour plus d’informations et pour organiser une visite !
L’actualité immobilière à Saxi-Bourdon
27/11/2023
02/11/2023
30/10/2023
20/10/2023
16/10/2023
16/10/2023