Images
Description
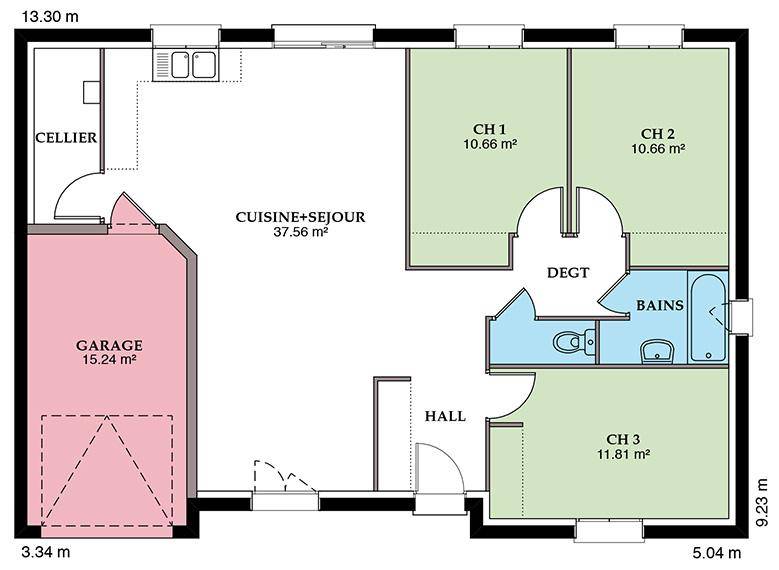
Découvrez la Prunière, une maison neuve de 87,5 m² avec garage intégré, qui marie style moderne et confort au quotidien. Disponible en toit 2 ou 4 pans, elle séduit par son architecture élégante et son agencement fonctionnel, idéal pour un couple ou une jeune famille.
L’intérieur se compose de 3 chambres lumineuses, d’un espace de vie ouvert et convivial, et d’un garage accolé offrant un rangement pratique et un accès direct à la maison. Chaque espace a été pensé pour offrir volume, clarté et bien-être.
Conforme à la réglementation RE2020, la Prunière bénéficie d’une isolation performante, d’une consommation énergétique réduite et d’un confort thermique optimal tout au long de l’année.
La Prunière 87,5 m² + garage, c’est le choix d’une maison moderne, économe et durable, pensée pour un mode de vie simple, serein et tourné vers l’avenir.
Logement susceptibles de vous intéresser
Nous vous proposons de découvrir aussi cette sélection de logements situés à moins de 10km de Sougy-sur-Loire et qui seraient susceptibles de vous intéresser.
Sougy-sur-Loire
TERRAIN ET MAISONDécouvrez la Prunière, une maison neuve de 87,5 m² avec garage intégré, qui marie style moderne et confort au quotidien. Disponible en toit 2 ou 4 pans, elle séduit par son architecture élégante et son agencement fonctionnel, idéal pour un couple ou une jeune famille.L’intérieur se compose de 3 chambres lumineuses, d’un espace de vie ouvert et convivial, et d’un garage accolé offrant un rangement pratique et un accès direct à la maison. Chaque espace a été pensé pour offrir volume, clarté et bien-être.Conforme à la réglementation RE2020, la Prunière bénéficie d’une isolation performante, d’une consommation énergétique réduite et d’un confort thermique optimal tout au long de l’année.La Prunière 87,5 m² + garage, c’est le choix d’une maison moderne, économe et durable, pensée pour un mode de vie simple, serein et tourné vers l’avenir.
Sougy-sur-Loire
TERRAINDécouvrez ce magnifique terrain plat de 1850 m², offrant une vue dégagée et un cadre champêtre exceptionnel à Sougy-sur-Loire, dans le département de la Nièvre. Parfait pour un projet de construction de maison, ce terrain non viabilisé promet de répondre à toutes vos attentes en matière d’aménagement et d’optimisation de votre espace de vie. Profitez de la tranquillité d’un environnement arboré et ensoleillé, tout en étant à proximité d’importants axes routiers pour vos déplacements. Située en Bourgogne-Franche-Comté, Sougy-sur-Loire est une charmante ville qui allie sécurité et qualité de vie, offrant à ses résidents un cadre de vie paisible. Vous apprécierez la proximité des transports, facilitant l’accès aux commodités locales et aux attractions incontournables de la région. Ce terrain bénéficie d’un accès rapide à la nature environnante, idéale pour les amoureux de plein air et les activités en plein air. N’attendez plus pour donner vie à votre projet de construction dans cette région dynamique et accueillante. Ce terrain représente une opportunité unique d’investissement dans un cadre exceptionnel. Ne laissez pas passer votre chance de réaliser votre rêve d’habitat sur ce site attractif ! À noter qu’en tant que constructeur, nous ne sommes pas mandatés pour réaliser la vente de ce terrain.
Béard
TERRAIN ET MAISONNous vous proposons cette maison neuve, baptisée « »Prunière » », un modèle de construction qui allie élégance et fonctionnalité sur une surface habitable de 72 m². Conçue pour répondre aux attentes des plus exigeants, cette maison se distingue par son architecture moderne, disponible en versions à 2 ou 4 pans, selon vos préférences. La « »Prunière » » est pensée pour offrir un cadre de vie confortable et lumineux. Elle se compose de 3 pièces bien agencées, incluant 2 chambres spacieuses, promettant un espace de vie idéal pour une petite famille ou un couple. Chaque pièce a été conçue pour maximiser l’espace et la lumière naturelle, créant ainsi une atmosphère accueillante et chaleureuse. L’un des atouts majeurs de cette maison est son garage intégré, offrant non seulement un espace de stationnement sécurisé pour votre véhicule mais aussi un espace de rangement supplémentaire, essentiel pour une organisation optimale de votre foyer. La « »Prunière » » se distingue également par son engagement envers l’environnement et votre confort. Cette maison est basse consommation et conforme à la norme RE2020, la réglementation environnementale la plus exigeante à ce jour. Cela signifie que vous bénéficierez d’une isolation optimale, d’une excellente performance énergétique et d’une réduction significative de vos factures d’énergie, tout en contribuant à la protection de l’environnement. Choisir la « »Prunière » », c’est opter pour une maison neuve qui combine design moderne, confort de vie et responsabilité écologique. Une opportunité à saisir pour ceux qui rêvent d’une habitation à la fois belle, pratique et durable.
Béard
TERRAINÀ vendre, un superbe terrain plat de 1200 m² situé dans la charmante commune de Béard, dans le département de la Nièvre. Ce terrain viabilisé constitue une opportunité rêvée pour concrétiser votre projet de construction de maison. La convivialité de la ville et son cadre champêtre en font un lieu idéal pour les familles ou les couples désireux de s’installer dans un environnement paisible, tout en restant proche des commodités nécessaires à la vie quotidienne. Béard, nichée en Bourgogne-Franche-Comté, est entourée par des paysages naturels à couper le souffle et offre un riche patrimoine culturel. À quelques pas, vous découvrirez des attractions locales qui raviront les amateurs de nature et d’histoire, ainsi que des services variés pour satisfaire vos besoins quotidiens. La proximité des transports facilite également l’accès à des villes voisines, tout en permettant de profiter de la tranquillité de la vie rurale. Un juste équilibre entre nature et commodités. Ne manquez pas cette occasion unique d’acquérir un terrain au potentiel indéniable. Ce projet vous attend ! À noter qu’en tant que constructeur, nous ne sommes pas mandatés pour réaliser la vente de ce terrain.
L’actualité immobilière à Sougy-sur-Loire
27/11/2023
02/11/2023
30/10/2023
20/10/2023
16/10/2023
16/10/2023