Maison à construire à Aubigny-au-Bac (59265)
Images
Description
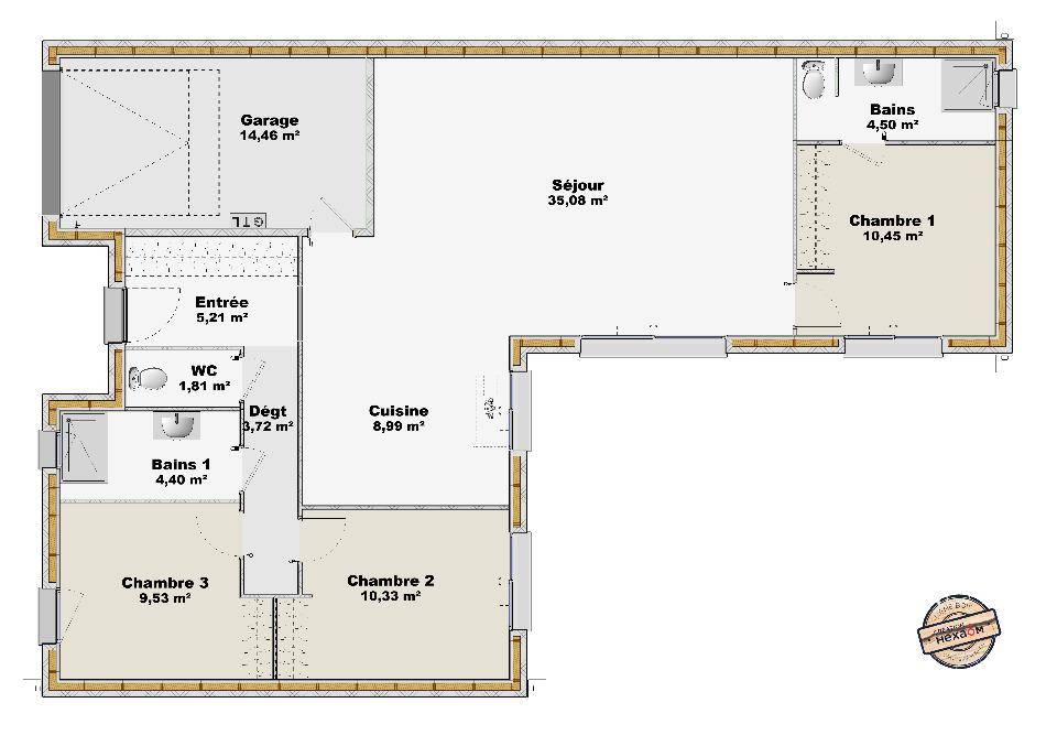
VENTE d'une maison F4 (94 m²) à Aubigny-au-Bac
IDÉALEMENT SITUÉE - MAISON 4 PIÈCES NEUVE - MAISON OSSATURE BOIS
En vente : à quelques kilomètres de Douai et de Cambrai, nous sommes ravis de vous présenter, idéalement située dans Aubigny-au-Bac (59265), cette maison de 4 pièces de plain-pied de 94 m².
Elle se divise en trois chambres, une cuisine et deux salles de bains. La maison est neuve.
Le terrain de la propriété s'étend sur 396 m².
Elle se trouve dans un secteur prisé. L'École Primaire Jean de la Fontaine est implantée à moins de 10 minutes à pied. Niveau transports, on trouve quatre gares à moins de 10 minutes en voiture. Les autoroutes A26 et A2 sont accessibles à moins de 9 km. Il y a une bibliothèque, un bassin de natation, deux boulangeries, trois commerces, un supermarché et un bureau de poste à quelques minutes de la maison.
Son prix de vente est de 287 128 €.
Contactez notre agence (Mathieu MAZZUCCO : (Numéro supprimé)) pour toute question sur cette maison, sur les modalités de vente et sur les démarches à suivre. Maisons France Confort Cambrai est là pour vous accompagner à toutes les étapes de votre projet.
Logement susceptibles de vous intéresser
Nous vous proposons de découvrir aussi cette sélection de logements situés à moins de 10km de Aubigny-au-Bac et qui seraient susceptibles de vous intéresser.
Hamel
TERRAIN ET MAISONMaison France Confort vous propose cette maison évolutive à construire sur HAMEL (59151)Cette maison dispose d’une pièce de vie ouverte et lumineuse, une chambre, une salle de bains ainsi que des combles récupérables permettant de faire évoluer la maison en y ajoutant 2 chambres supplémentaires à l’étage, elle comprend également un garageGrâce à la certification RE2020 de cette maison, gagnez en confort et en économie d’énergieElle bénéficie de volets roulants motorisés programmables reliés reliés à la domotique pour une gestion intelligente de votre maison, d’un chauffage par pompe à chaleur AIR/EAU sur plancher chauffant…Elle est à vendre pour la somme de 229 615€ (frais de notaire inclus)N’hésitez pas à prendre contact avec notre agence (DOLLET Carole : (Numéro supprimé)) pour obtenir de plus amples renseignements sur cette maison ou sur les modalités de vente. Donnez vie à vos projets immobiliers avec Maisons France Confort.Devis gratuit
Hamel
TERRAIN ET MAISONMaison France Confort vous propose cette maison évolutive à construire sur HAMEL (59151)Cette maison dispose d’une pièce de vie ouverte et lumineuse, une chambre, une salle de bains ainsi que des combles récupérables permettant de faire évoluer la maison en y ajoutant 2 chambres supplémentaires à l’étageGrâce à la certification RE2020 de cette maison, gagnez en confort et en économie d’énergieElle bénéficie de volets roulants motorisés programmables reliés reliés à la domotique pour une gestion intelligente de votre maison, d’un chauffage par pompe à chaleur AIR/EAU sur plancher chauffant…Elle est à vendre pour la somme de 209 844€ (frais de notaire inclus)N’hésitez pas à prendre contact avec notre agence (DOLLET Carole : (Numéro supprimé)) pour obtenir de plus amples renseignements sur cette maison ou sur les modalités de vente. Donnez vie à vos projets immobiliers avec Maisons France Confort.Devis gratuit
Hamel
TERRAINTerrain à bâtir à HAMEL joli village à 20mn de Douai, dans une belle résidence calme proche des étangs pour y faire de belles baladesImaginez la maison de vos rêves sur ce terrain de 464 m². Il est orienté au nord-ouest. Dans un quartier recherché. Une école primaire est implantée dans le quartier. La commune de HAMEL est également à 30mn d’Arras, de Cambrai et d’Henin BeaumontIl est à vendre pour la somme de 69 700€ (frais de notaire inclus).Contactez Carole DOLLET ((Numéro supprimé)) pour obtenir de plus amples renseignements sur le terrain ou sur les modalités de vente. Maisons France Confort Hénin-Beaumont vous accompagne dans tous vos projets immobiliers et à toutes les étapes de l’achat.
Baralle
TERRAINTerrain de 620 m² en vente à BaralleEMPLACEMENT PRIVILÉGIÉ – VUE PANORAMIQUEÀ Baralle (62860) proche de la Belgique et à 19 km de Douai, imaginez la maison de vos rêves sur ce terrain de 620 m². Ce terrain, avec vue panoramique, bénéficie d’une exposition sud-est. Il se trouve dans un quartier prisé. L’École Primaire rpi 7 est implantée à moins de 10 minutes à pied. Niveau transports, on trouve trois gares (Arleux, Aubigny-au-Bac et Brunémont) à moins de 10 minutes en voiture. Les autoroutes A26 et A2 sont accessibles à moins de 9 km. Il y a deux commerces à quelques minutes à peine.Son prix de vente est de 59 000 €. Prenez contact avec Christian SMOLAREK (tél : (Numéro supprimé)) pour toute question sur ce terrain. Faites de vos projets immobiliers une réalité avec Maisons France Confort Valenciennes.
Monchecourt
TERRAIN ET MAISONVENTE d’une maison de 5 pièces (100 m²) à MonchecourtEMPLACEMENT PRIVILÉGIÉ – MAISON 5 PIÈCES NEUVEÀ vendre à moins de 26 km de la Belgique et à 22 km de Valenciennes, bénéficiant d’un emplacement d’exception dans Monchecourt (59234), nous vous présentons cette maison de 5 pièces de 100 m² et de 550 m² de terrain. Son intérieur comporte quatre chambres, une cuisine et deux salles de bains.Il s’agit d’une maison de 2 niveaux. Elle est neuve.Elle est située dans un secteur convoité. L’École Maternelle Victor Hugo et l’École Élémentaire Jacques Prévert sont implantées à moins de 10 minutes à pied. Côté transports en commun, on trouve neuf gares à moins de 10 minutes en voiture. Les autoroutes A21 et A2 sont accessibles à moins de 10 km. Il y a une bibliothèque, un tennis, une boulangerie, un bureau de poste et une supérette dans les environs.Elle est proposée à l’achat pour 239 728 €.Contactez notre agence (Christian SMOLAREK : (Numéro supprimé)) pour obtenir de plus amples renseignements sur cette maison, sur les modalités de vente ou sur les démarches à suivre. Maisons France Confort Valenciennes vous accompagne à toutes les étapes de l’achat et dans tous vos projets immobiliers.
Monchecourt
TERRAIN ET MAISONMonchecourt : maison de 3 pièces (90 m²) en venteEMPLACEMENT PRIVILÉGIÉ – MAISON 3 PIÈCES NEUVEProche de la Belgique et à deux pas de Valenciennes, en vente bénéficiant d’un emplacement privilégié dans Monchecourt (59234), Maisons France Confort Valenciennes vous propose cette maison de 3 pièces de plain-pied de 90 m² et de 550 m² de terrain. Conçue de plain-pied, elle propose trois chambres, une cuisine et une salle de bains.Cette maison est neuve.Elle est située dans un secteur prisé. L’École Maternelle Victor Hugo et l’École Élémentaire Jacques Prévert sont implantées à moins de 10 minutes à pied. Niveau transports en commun, il y a neuf gares à moins de 10 minutes en voiture. Les autoroutes A21 et A2 sont accessibles à moins de 10 km. On trouve une bibliothèque, un tennis, une boulangerie, une supérette et un bureau de poste à quelques minutes du logement.Elle est à vendre pour la somme de 249 728 €.Contactez Christian SMOLAREK ((Numéro supprimé)) pour obtenir de plus amples informations sur la maison. Maisons France Confort Valenciennes est là pour vous accompagner à toutes les étapes de l’achat.
Arleux
TERRAIN ET MAISONVENTE d’une maison de 3 pièces (90 m²) à ArleuxEMPLACEMENT PRIVILÉGIÉ – MAISON 3 PIÈCES NEUVEÀ vendre : à moins de 34 km de la Belgique et à 31 km de Valenciennes, nous vous présentons cette maison de 3 pièces de plain-pied de 90 m², bénéficiant d’un emplacement privilégié dans Arleux (59151).Elle offre trois chambres, une cuisine et une salle de bains. La maison est neuve.Le terrain du bien est de 450 m².Elle est située dans un quartier convoité. Il y a l’École Primaire Publique Docteur Bouly-Marius Richard à moins de 10 minutes à pied. Niveau transports, on trouve la gare Arleux juste à côté. Il y a un accès à l’autoroute A26 à 9 km. Il y a une bibliothèque, des commerces, deux boulangeries, un bureau de poste, une épicerie et une boucherie-charcuterie à quelques minutes de la maison.Son prix de vente est de 239 728 €.Contactez notre agence (Christian SMOLAREK : (Numéro supprimé)) pour obtenir de plus amples informations sur la maison.
Féchain
TERRAIN ET MAISONVENTE d’une maison T3 (90 m²) à FéchainIDÉALEMENT SITUÉE – MAISON 3 PIÈCES NEUVEÀ vendre : à 30 km de la frontière belge et à 24 km de Valenciennes, idéalement située dans Féchain (59247), nous sommes ravis de vous proposer cette maison de 3 pièces de plain-pied de 90 m² et de 450 m² de terrain. Son intérieur inclut trois chambres, une cuisine et une salle de bains.La maison est neuve.Elle se situe dans un secteur recherché. On trouve l’École Primaire Camus-Sablon à moins de 10 minutes à pied. Niveau transports en commun, il y a sept gares à moins de 10 minutes en voiture. Les autoroutes A2 et A21 sont accessibles à moins de 10 km. On trouve une bibliothèque, un tennis, un commerce, un supermarché, une boulangerie et un bureau de poste à quelques minutes du logement.Son prix de vente est de 249 728 €.Prenez contact avec Christian SMOLAREK (tél : (Numéro supprimé)) pour obtenir de plus amples informations sur la maison, sur les démarches à suivre ou sur les modalités de vente. Concrétisez vos projets immobiliers avec Maisons France Confort Valenciennes.
Arleux
TERRAIN ET MAISONVENTE : maison F5 (100 m²) à ArleuxEMPLACEMENT PRIVILÉGIÉ – MAISON 5 PIÈCES NEUVEÀ vendre à 34 km de la frontière belge et à 31 km de Valenciennes, bénéficiant d’un emplacement d’exception dans Arleux (59151), votre agence Maisons France Confort Valenciennes est heureuse de vous proposer cette maison de 5 pièces de 100 m² et de 450 m² de terrain.C’est une maison de 2 niveaux. Elle comporte quatre chambres, une cuisine et deux salles de bains. Cette maison est neuve.Elle se situe dans un secteur prisé. Il y a l’École Primaire Publique Docteur Bouly-Marius Richard à moins de 10 minutes à pied. Côté transports, on trouve la gare Arleux dans les alentours. On trouve un accès à l’autoroute A26 à 9 km. Il y a une bibliothèque, des commerces, deux boulangeries, une boucherie-charcuterie, un bureau de poste et une épicerie à quelques minutes à peine.Son prix de vente est de 239 728 €.N’hésitez pas à prendre contact avec Christian SMOLAREK (tél : (Numéro supprimé)) pour toute question sur la maison, sur les modalités de vente ou sur les démarches à suivre. Maisons France Confort Valenciennes est là pour vous accompagner à toutes les étapes de votre projet.
L’actualité immobilière à Aubigny-au-Bac
27/11/2023
02/11/2023
30/10/2023
20/10/2023
16/10/2023
16/10/2023