Maison à construire à Auchy-lez-Orchies (59310)
Images
Description
Auchy-lez-Orchies - Maison neuve T6 à construire (115 m²)
Proche Lille & Orchies - Terrain de 900 m² - 4 chambres
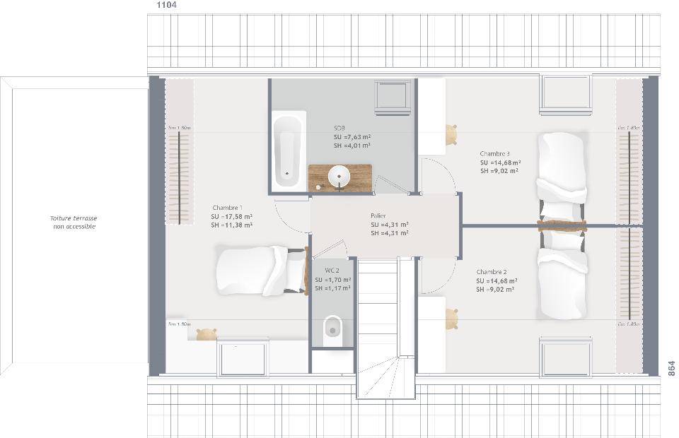
Située à Auchy-lez-Orchies (59310), à quelques kilomètres de Lille, Maisons France Confort Lille vous propose ce projet de maison neuve de 115 m² à construire sur un terrain de 900 m².
Cette maison à construire, sur deux niveaux, est pensée pour offrir un cadre de vie moderne et confortable. Elle se compose de quatre chambres, d'une cuisine à aménager et de deux salles de bains. Ce projet est entièrement personnalisable afin de s'adapter à vos besoins et à votre style de vie.
Le terrain, d'une belle superficie, permet de profiter d'un grand jardin et d'un espace extérieur agréable, idéal pour la détente ou les moments en famille.
L'emplacement est recherché : les écoles du Fleuri d'Alcy et du Sacré-Coeur se trouvent à moins de 10 minutes à pied, six gares sont accessibles en moins de 10 minutes en voiture, et l'autoroute A23 est située à seulement 3 km. Une boulangerie, un commerce et une bibliothèque se trouvent également à proximité.
Le prix de vente est de 295 000 €.
Pour toute information complémentaire ou pour étudier votre projet de construction, contactez Cédric CORONA au (Numéro supprimé).
Maisons France Confort Lille vous accompagne à chaque étape de la réalisation de votre maison.
Annonce proposée par un Agent Commercial Partenaire.
Logement susceptibles de vous intéresser
Nous vous proposons de découvrir aussi cette sélection de logements situés à moins de 10km de Auchy-lez-Orchies et qui seraient susceptibles de vous intéresser.
Auchy-lez-Orchies
TERRAIN ET MAISONAuchy-lez-Orchies – Maison neuve T6 à construire (115 m²)Proche Lille & Orchies – Terrain de 900 m² – 4 chambresSituée à Auchy-lez-Orchies (59310), à quelques kilomètres de Lille, Maisons France Confort Lille vous propose ce projet de maison neuve de 115 m² à construire sur un terrain de 900 m².Cette maison à construire, sur deux niveaux, est pensée pour offrir un cadre de vie moderne et confortable. Elle se compose de quatre chambres, d’une cuisine à aménager et de deux salles de bains. Ce projet est entièrement personnalisable afin de s’adapter à vos besoins et à votre style de vie.Le terrain, d’une belle superficie, permet de profiter d’un grand jardin et d’un espace extérieur agréable, idéal pour la détente ou les moments en famille.L’emplacement est recherché : les écoles du Fleuri d’Alcy et du Sacré-Coeur se trouvent à moins de 10 minutes à pied, six gares sont accessibles en moins de 10 minutes en voiture, et l’autoroute A23 est située à seulement 3 km. Une boulangerie, un commerce et une bibliothèque se trouvent également à proximité.Le prix de vente est de 295 000 €.Pour toute information complémentaire ou pour étudier votre projet de construction, contactez Cédric CORONA au (Numéro supprimé).Maisons France Confort Lille vous accompagne à chaque étape de la réalisation de votre maison.Annonce proposée par un Agent Commercial Partenaire.
Auchy-lez-Orchies
TERRAIN ET MAISON🏡 Auchy-lez-Orchies – Maison neuve T6 à construire (150 m²)🌿 Proche Lille & Orchies – Grand terrain de 900 m² – 4 chambresDécouvrez ce beau projet de maison neuve à construire de 150 m² à Auchy-lez-Orchies (59310), à seulement 20 km de Lille, dans un environnement calme et recherché.Cette maison moderne, pensée sur 2 niveaux, propose un vaste espace de vie lumineux, 4 chambres, une cuisine à aménager et 2 salles de bains.Un projet personnalisable pour créer la maison qui vous ressemble !Le terrain de 900 m² offre de multiples possibilités : jardin, terrasse, jeux, détente… à vous d’imaginer votre futur espace de vie.Côté praticité, les écoles du Fleuri d’Alcy et du Sacré-Coeur sont accessibles à pied, six gares se trouvent à moins de 10 minutes, et l’autoroute A23 est à seulement 3 km. Une boulangerie, un commerce et une bibliothèque se situent à proximité.💰 Prix : 439 000 €📞 Contact : Cédric CORONA – (Numéro supprimé)✨ Maisons France Confort Lille – Construisons ensemble votre maison, selon vos envies.Annonce proposée par un Agent Commercial Partenaire.
Auchy-lez-Orchies
TERRAIN ET MAISON🏡 Auchy-lez-Orchies – Maison neuve T5 à construire (130 m²)🌿 Proche Lille & Orchies – Plain-pied moderne – Terrain 900 m² – 4 chambresÀ la recherche d’un projet de vie confortable et moderne ?Découvrez cette maison neuve de plain-pied à construire de 130 m², située à Auchy-lez-Orchies (59310), à quelques kilomètres de Lille, dans un environnement calme et recherché.Ce projet propose un intérieur spacieux et lumineux, avec 4 chambres, une cuisine à aménager et 2 salles de bains.Entièrement personnalisable, il vous permettra de créer une maison à votre image.Le terrain de 900 m² offre de nombreuses possibilités : jardin paysager, terrasse, coin détente… à vous d’imaginer votre futur extérieur.Les écoles du Fleuri d’Alcy et du Sacré-Coeur sont accessibles à pied, six gares se trouvent à moins de 10 minutes, et l’autoroute A23 est à seulement 3 km. Une boulangerie, un commerce et une bibliothèque se trouvent à proximité.💰 Prix : 391 000 €📞 Contact : Cédric CORONA – (Numéro supprimé)✨ Maisons France Confort Lille – Construisons ensemble la maison qui vous ressemble.Annonce proposée par un Agent Commercial Partenaire.
Auchy-lez-Orchies
TERRAIN ET MAISON🏡 Auchy-lez-Orchies – Maison neuve T5 à construire (95 m²)🌿 Proche Lille & Orchies – Plain-pied moderne – Terrain 900 m²À la recherche d’un cadre paisible à proximité de Lille ?Découvrez ce projet de maison neuve de plain-pied de 95 m², à construire sur un terrain de 900 m² à Auchy-lez-Orchies (59310).Ce plain-pied moderne offre 3 chambres, une cuisine à aménager et 2 salles de bains.Un projet personnalisable, conçu pour s’adapter à vos envies et à votre mode de vie.Le terrain spacieux de 900 m² vous permettra de créer un extérieur à votre image : jardin, terrasse ou espace détente.Les écoles du Fleuri d’Alcy et du Sacré-Coeur sont accessibles à pied, six gares se trouvent à moins de 10 minutes, et l’autoroute A23 est à seulement 3 km. Une boulangerie, un commerce et une bibliothèque complètent les commodités locales.💰 Prix : 279 000 €📞 Contact : Cédric CORONA – (Numéro supprimé)✨ Maisons France Confort Lille – Construisons ensemble votre maison sur mesure.Annonce proposée par un Agent Commercial Partenaire.
Auchy-lez-Orchies
TERRAIN🌿 Terrain constructible d’environ 900 m² – Pévèle – Proche Lille 🌿Vous rêvez de construire votre maison dans un coin paisible, sans vous exiler ?Ce terrain est fait pour vous !📍 Auchy-lez-Orchies, commune très prisée du secteur de la Pévèle.Superficie : environ 900 m²Façade : env. 20 m (dont 14 m utiles)Situation : en second rideau, non viabilisé, libre de constructeurUn cadre verdoyant, du calme, et la proximité de Lille : le combo parfait pour votre futur chez-vous 🏡Les terrains comme celui-ci ne restent jamais longtemps disponibles…📞 Contactez Cédric CORONA – (Numéro supprimé) pour plus d’infos !Annonce proposée par un Agent Commercial Partenaire.
Auchy-lez-Orchies
TERRAIN ET MAISON🏡 Maison neuve F6 (114 m²) à Auchy-lez-Orchies✨ Grande maison familiale – moderne, lumineuse et écologique ✨À découvrir à Auchy-lez-Orchies (59310), superbe maison neuve à ossature bois de 114 m², sur un grand terrain de 900 m² 🌿Élevée sur 2 niveaux, elle offre 5 chambres, une cuisine moderne, et 2 salles de bains – idéale pour une famille en quête d’espace et de confort 👨👩👧👦Ses atouts :🌞 Isolation thermique et acoustique haut de gamme💡 Excellente performance énergétique = factures réduites🌱 Matériaux écologiques et durables🏗️ Finitions soignées et conception contemporaineUn emplacement de choix proche de tout :🏫 Écoles à moins de 10 minutes à pied🚉 6 gares accessibles en moins de 10 minutes en voiture🛣️ Autoroute A23 à seulement 3 km🛍️ Commerces à proximité : boulangerie, bibliothèque, petits commerces💰 Prix : 432 000 €📞 Contact : Cédric CORONA – (Numéro supprimé)Maisons France Confort Lille – votre partenaire pour concrétiser votre projet de vie 🌟Annonce proposée par un Agent Commercial Partenaire.
Auchy-lez-Orchies
TERRAIN ET MAISON🏡 Auchy-lez-Orchies – Maison neuve T5 à construire (124 m²)✨ Proche Lille & Orchies – Grand terrain 900 m² – 4 chambresÀ la recherche d’une maison spacieuse et moderne dans un environnement calme et verdoyant ?Découvrez ce projet de maison neuve de 124 m², à construire sur un beau terrain de 900 m² à Auchy-lez-Orchies (59310), idéalement située à quelques kilomètres de Lille.✅ Maison à construire = personnalisez votre intérieur selon vos envies !🏠 Configuration prévue :Maison 2 niveaux🛏 4 chambres lumineuses🍽 Cuisine à aménager🛁 Salle de bainsArchitecture moderne et fonctionnelle🌿 Extérieur :🌳 900 m² de terrain : parfait pour jardin, terrasse, piscine ou espace détente📍 Emplacement idéal :🏫 Écoles à moins de 10 min à pied (Fleuri d’Alcy & Sacré-Coeur)🚆 6 gares à moins de 10 min en voiture🛣 Autoroute A23 accessible à seulement 3 km🛒 Boulangerie 🥖, commerce et bibliothèque à proximité💰 Prix : 357 000 €👉 Un cadre privilégié, une maison moderne, un grand terrain : le projet idéal pour votre famille !📞 Infos & étude personnalisée : Cédric CORONA – (Numéro supprimé)✨ Maisons France Confort Lille – Construisons ensemble votre future maison.Annonce proposée par un Agent Commercial Partenaire.
Râches
TERRAIN ET MAISONRâches : maison de 4 pièces (50 m²) en ventePROCHE DE LILLE – MAISON 4 PIÈCES NEUVEEn vente : localisée à moins de 21 km de la Belgique et à quelques kilomètres de Lille, nous vous présentons à Râches (59194), cette maison de 4 pièces de plain-pied de 50 m². Conçue de plain-pied, elle inclut deux chambres, une cuisine et une salle de bains.Le terrain de la propriété est de 417 m².La maison est neuve.L’École Élémentaire Suzanne Lanoy et l’École Maternelle Françoise Dolto sont implantées à moins de 10 minutes à pied. Côté transports en commun, il y a six gares à moins de 10 minutes en voiture. Les autoroutes A21 et A23 sont accessibles à moins de 9 km. On trouve une boulangerie, deux supermarchés, trois commerces, un bureau de poste et une poissonnerie dans les environs.Elle est à vendre pour la somme de 207 500 €.Contactez David CHAMBAULT (tél : (Numéro supprimé)) pour plus d’informations sur cette maison, sur les démarches à suivre ou sur les modalités de vente. Concrétisez vos projets immobiliers avec Maisons France Confort Lille.
Râches
TERRAIN ET MAISONRâches : maison de 3 pièces (50 m²) en venteMAISON 3 PIÈCES NEUVE – PROCHE DE LILLEEn vente : proche de la Belgique et à 24 km de Lille, Maisons France Confort Lille vous présente cette maison de 3 pièces de plain-pied de 50 m² à Râches (59194). Son intérieur propose une chambre, une cuisine et une salle de bains.Le terrain du bien est de 417 m².Cette maison est neuve.Il y a l’École Élémentaire Suzanne Lanoy et l’École Maternelle Françoise Dolto à moins de 10 minutes à pied. Côté transports en commun, on trouve six gares à moins de 10 minutes en voiture. Les autoroutes A21 et A23 sont accessibles à moins de 9 km. Il y a une boulangerie, deux supermarchés, trois commerces, une poissonnerie et un bureau de poste à quelques minutes.Elle est proposée à l’achat pour 195 650 €.Possibilité avec un garage (+ 11 943€Contactez David CHAMBAULT ((Numéro supprimé)) pour tout renseignement sur la maison, sur les modalités de vente ou sur les démarches à suivre.
L’actualité immobilière à Auchy-lez-Orchies
27/11/2023
02/11/2023
30/10/2023
20/10/2023
16/10/2023
16/10/2023