Maison à construire à Auchy-lez-Orchies (59310)
Images
Description
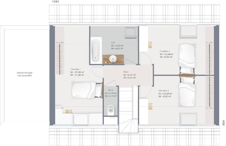
VENTE : maison de 6 pièces (115 m²) à Auchy-lez-Orchies
IDÉALEMENT SITUÉE - MAISON 6 PIÈCES NEUVE
En vente : à quelques minutes de Villeneuve d'Ascq et de Lille, idéalement située dans Auchy-lez-Orchies (59310), nous vous proposons cette maison de 6 pièces de 115 m².
Cette maison compte 2 niveaux. Elle offre quatre chambres, une cuisine et deux salles de bains. Cette maison est neuve.
Le terrain de la propriété est de 583 m².
Elle se trouve dans un secteur convoité. Il y a l'École Primaire du Fleuri d'Alcy et l'École Primaire Privée Sacré-Coeur à moins de 10 minutes à pied. Niveau transports en commun, on trouve six gares à moins de 10 minutes en voiture. Il y a un accès à l'autoroute A23 à 3 km. Il y a une bibliothèque, une boulangerie et un commerce dans les environs.
Son prix de vente est de 334 000 €.
N'hésitez pas à prendre contact avec notre agence (Marie HALFTERMEYER : (Numéro supprimé)) pour obtenir de plus amples informations sur la maison. Maisons France Confort Béthune est là pour vous accompagner dans toutes vos démarches.
Logement susceptibles de vous intéresser
Nous vous proposons de découvrir aussi cette sélection de logements situés à moins de 10km de Auchy-lez-Orchies et qui seraient susceptibles de vous intéresser.
Auchy-lez-Orchies
TERRAINVENTE d’un terrain de 583 m² à Auchy-lez-OrchiesIDÉALEMENT SITUÉ – VUE DÉGAGÉEÀ Auchy-lez-Orchies (59310), à quelques minutes de Lille et Villeneuve d’Ascq, venez découvrir ce terrain de 583 m². Ce terrain, exposé plein sud-ouest, profite d’une vue dégagée. Dans un quartier recherché, le terrain idéalement situé est proche des commerces et des écoles. L’École Primaire du Fleuri d’Alcy et l’École Primaire Privée Sacré-Coeur sont implantées à moins de 10 minutes à pied. Niveau transports, on trouve six gares à moins de 10 minutes en voiture. Il y a un accès à l’autoroute A23 à 3 km. Il y a une bibliothèque, une boulangerie et un commerce dans les environs.Son prix de vente est de 119 000 €. Contactez Marie HALFTERMEYER ((Numéro supprimé)) pour plus de renseignements sur ce terrain ou sur les modalités de vente. Maisons France Confort Béthune est là pour vous accompagner dans toutes vos démarches.
Auchy-lez-Orchies
TERRAIN ET MAISONVENTE : maison de 6 pièces (115 m²) à Auchy-lez-OrchiesIDÉALEMENT SITUÉE – MAISON 6 PIÈCES NEUVEEn vente : à quelques minutes de Villeneuve d’Ascq et de Lille, idéalement située dans Auchy-lez-Orchies (59310), nous vous proposons cette maison de 6 pièces de 115 m².Cette maison compte 2 niveaux. Elle offre quatre chambres, une cuisine et deux salles de bains. Cette maison est neuve.Le terrain de la propriété est de 583 m².Elle se trouve dans un secteur convoité. Il y a l’École Primaire du Fleuri d’Alcy et l’École Primaire Privée Sacré-Coeur à moins de 10 minutes à pied. Niveau transports en commun, on trouve six gares à moins de 10 minutes en voiture. Il y a un accès à l’autoroute A23 à 3 km. Il y a une bibliothèque, une boulangerie et un commerce dans les environs.Son prix de vente est de 334 000 €.N’hésitez pas à prendre contact avec notre agence (Marie HALFTERMEYER : (Numéro supprimé)) pour obtenir de plus amples informations sur la maison. Maisons France Confort Béthune est là pour vous accompagner dans toutes vos démarches.
Auchy-lez-Orchies
TERRAIN ET MAISONMaison de 5 pièces (101 m²) en vente à Auchy-lez-OrchiesIDÉALEMENT SITUÉE – MAISON 5 PIÈCES NEUVEEn vente : localisée proche de Villeneuve d’Ascq et de Lille, nous sommes ravis de vous présenter cette maison de 5 pièces de plain-pied de 101 m², idéalement située dans Auchy-lez-Orchies (59310).Conçue de plain-pied, elle inclut quatre chambres, une cuisine et une salle de bains. La maison est neuve.Le terrain de la propriété s’étend sur 583 m².Elle se trouve dans un secteur recherché. L’École Primaire du Fleuri d’Alcy et l’École Primaire Privée Sacré-Coeur sont implantées à moins de 10 minutes à pied. Côté transports, il y a six gares à moins de 10 minutes en voiture. L’autoroute A23 est accessible à 3 km. On trouve une bibliothèque, une boulangerie et un commerce à proximité.Elle est proposée à l’achat pour 319 000 €.Contactez Marie HALFTERMEYER (tél : (Numéro supprimé)) pour toute information sur cette maison, sur les modalités de vente et sur les démarches à suivre.
Auchy-lez-Orchies
TERRAIN ET MAISONVENTE d’une maison T7 (120 m²) à Auchy-lez-OrchiesIDÉALEMENT SITUÉE – MAISON 7 PIÈCES NEUVEÀ vendre : située proche de Villeneuve d’Ascq et de Lille, découvrez cette maison de 7 pièces de 120 m² idéalement située dans Auchy-lez-Orchies (59310).C’est une maison de 2 niveaux. Elle inclut quatre chambres, une cuisine et deux salles de bains. Cette maison est neuve.Le terrain de la propriété s’étend sur 583 m².Elle se situe dans un secteur attractif. On trouve l’École Primaire du Fleuri d’Alcy et l’École Primaire Privée Sacré-Coeur à moins de 10 minutes à pied. Niveau transports en commun, il y a six gares à moins de 10 minutes en voiture. L’autoroute A23 est accessible à 3 km. On trouve une bibliothèque, une boulangerie et un commerce dans les environs.Son prix de vente est de 392 000 €.N’hésitez pas à prendre contact avec Marie HALFTERMEYER ((Numéro supprimé)) pour tout renseignement sur cette maison ou sur les modalités de vente.
Roost-Warendin
TERRAIN ET MAISONRoost-Warendin : maison de 4 pièces (78 m²) en ventePROCHE DE LILLE – MAISON 4 PIÈCES NEUVEÀ vendre à deux pas de Lille, à Roost-Warendin (59286), nous vous proposons cette maison de 4 pièces de 78 m².Cette maison compte 2 niveaux. Elle comporte trois chambres, une cuisine et une salle de bains. La maison est neuve.Le terrain de la propriété est de 430 m².On trouve l’École Primaire du Centre-Salengro et le Collège Docteur Ernest Schaffner à moins de 10 minutes à pied. Niveau transports, il y a neuf gares à moins de 10 minutes en voiture. Les autoroutes A21 et A1 sont accessibles à moins de 8 km. On trouve quatre commerces, trois boulangeries, un supermarché, une boucherie-charcuterie et un bureau de poste à quelques minutes du logement.Son prix de vente est de 262 500 €.Contactez notre agence (David CHAMBAULT : (Numéro supprimé)) pour tout renseignement sur cette maison.
Raimbeaucourt
TERRAIN ET MAISONMaison T4 (82 m²) en vente à RaimbeaucourtMAISON 4 PIÈCES NEUVE – PROCHE DE LILLEEn vente à moins de 23 km de la Belgique et à deux pas de Lille, notre agence Maisons France Confort Lille est ravie de vous proposer à Raimbeaucourt (59283), cette maison de 4 pièces de 82 m². Elle est composée de trois chambres, d’une cuisine et d’une salle de bains.Le terrain de la maison s’étend sur 1 000 m².C’est une maison de 2 niveaux. Elle est neuve.L’École Élémentaire Jules Ferry et l’École Maternelle Suzanne Lanoy sont implantées à moins de 10 minutes à pied. Niveau transports en commun, on trouve sept gares à moins de 10 minutes en voiture. Les autoroutes A21, A1 et A23 sont accessibles à moins de 10 km. Il y a un tennis, une boulangerie, trois commerces, un supermarché, une boucherie-charcuterie et une épicerie à proximité.Elle est proposée à l’achat pour 268 900 €.Contactez notre constructeur (CHAMBAULT David : (Numéro supprimé)) pour toute information sur cette maison, sur les modalités de vente ou sur les démarches à suivre.
Marchiennes
TERRAIN ET MAISONMarchiennes : maison F5 (90 m²) à vendreMAISON 5 PIÈCES NEUVE – PROCHE DE LILLEEn vente : à quelques kilomètres de la Belgique et à quelques kilomètres de Lille, nous sommes heureux de vous proposer cette maison de 5 pièces de plain-pied de 90 m² et de 1 940 m² de terrain à Marchiennes (59870). Son intérieur est composé de trois chambres, d’une cuisine et d’une salle de bains.La maison est neuve.Il y a l’École Primaire Privée Sainte Thérèse, l’École Élémentaire Georges Brassens, l’École Maternelle Françoise Dolto et le Collège Marguerite Yourcenar à moins de 10 minutes à pied. Côté transports en commun, on trouve six gares à moins de 10 minutes en voiture. Les autoroutes A21 et A23 sont accessibles à moins de 7 km. Il y a un tennis, trois commerces, un supermarché, une boulangerie, une boucherie-charcuterie et un bureau de poste dans les environs. Ne manquez pas le marché Grand Place tous les samedis matin.Son prix de vente est de 325 600 €.Contactez David CHAMBAULT (tél : (Numéro supprimé)) pour plus d’informations sur cette maison ou sur les démarches à suivre. Faites de vos projets immobiliers une réalité avec Maisons France Confort Lille.
Marchiennes
TERRAINTerrain de 1000 m² à Marchiennes – Secteur calme et résidentielÀ saisir : superbe terrain de 1000 m² situé à Marchiennes, à seulement 1 km du centre-ville et de toutes les commodités.Ce terrain se compose de :300 m² en zone Ub offrant 20 mètres linéaires de façade sur rue,et 700 m² supplémentaires en zone Na, idéal pour un grand jardin ou verger.Libre de constructeur, il vous permettra de concrétiser votre projet immobilier sur mesure dans un cadre verdoyant, calme et prisé. AtoutsOrientation Est / Ouest offrant une belle luminosité toute la journée,Environnement résidentiel et arboré,Accès rapide aux grands axes A21 et A23 :Douai à 20 min,Valenciennes et Lille à 30 min. Informations techniquesTerrain non viabilisé,Réseaux eau, électricité, gaz, fibre et tout-à-l’égout disponibles en bordure (sur trottoir). Contactez-moi dès maintenant pour plus d’informations ou pour organiser une visite !Ce terrain n’attend plus que votre projet Les honoraires d’agence sont à la charge de l’acquéreur, soit 10,00% TTC du prix hors honoraires.Les informations sur les risques auxquels ce bien est exposé sont disponibles sur le site Géorisques : www. georisques. gouv. fr.Réseau Immobilier CAPIFRANCE – Votre agent commercial (RSAC N(Numéro supprimé) – Greffe de DOUAI) Jean-Marc DUJARDIN Entrepreneur Individuel (Numéro supprimé) – Réf.929336
Raimbeaucourt
TERRAIN ET MAISONVENTE : maison T4 (85 m²) à RaimbeaucourtPROCHE DE LILLE – MAISON 4 PIÈCES NEUVEÀ vendre : proche de la Belgique et à deux pas de Lille, à Raimbeaucourt (59283), laissez vous charmer par cette maison de 4 pièces de plain-pied de 85 m². Conçue de plain-pied, elle offre trois chambres, une cuisine et une salle de bains.Le terrain du bien s’étend sur 1 000 m².Cette maison est neuve.L’École Élémentaire Jules Ferry et l’École Maternelle Suzanne Lanoy se trouvent à moins de 10 minutes à pied. Côté transports en commun, il y a sept gares à moins de 10 minutes en voiture. Les autoroutes A21, A1 et A23 sont accessibles à moins de 10 km. On trouve un tennis, une boulangerie, trois commerces, un supermarché, une épicerie et une boucherie-charcuterie dans les environs.Elle est à vendre pour la somme de 241 850 €.Prenez contact avec notre agence (CHAMBAULT David : (Numéro supprimé)) pour plus de renseignements sur la maison. Maisons France Confort Lille est là pour vous accompagner dans toutes vos démarches.
L’actualité immobilière à Auchy-lez-Orchies
27/11/2023
02/11/2023
30/10/2023
20/10/2023
16/10/2023
16/10/2023