Maison à construire à Camphin-en-Pévèle (59780)
Images
Description
VENTE : maison de 7 pièces (150 m²) à Camphin-en-Pévèle
EMPLACEMENT PRIVILÉGIÉ - MAISON 7 PIÈCES NEUVE
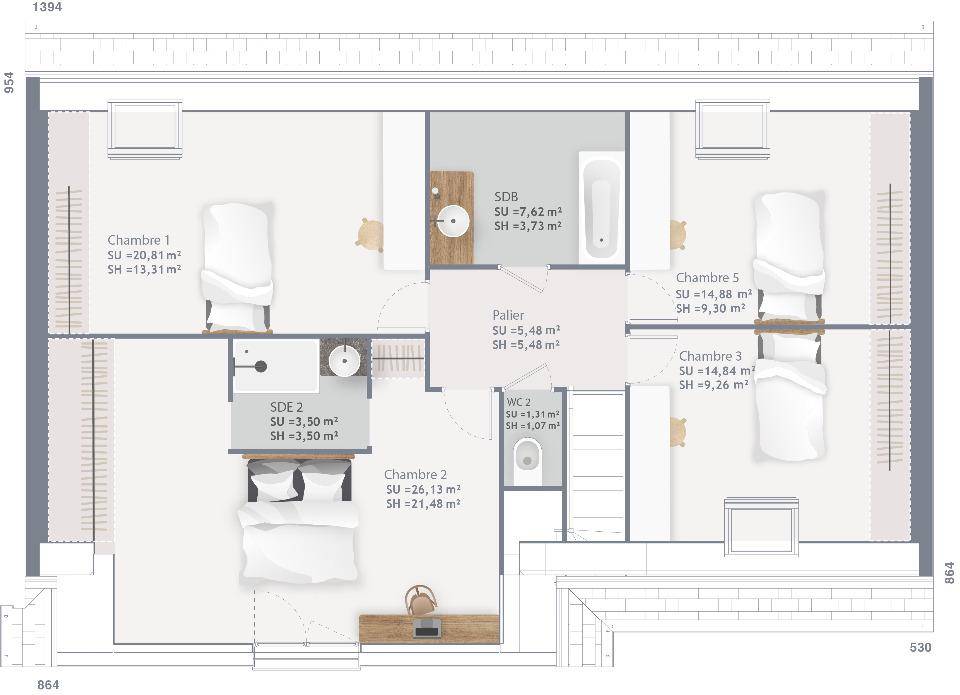
En vente : localisée à quelques kilomètres de la Belgique et à 15 km de Lille, nous vous présentons, bénéficiant d'un emplacement d'exception dans Camphin-en-Pévèle (59780), cette maison de 7 pièces de 150 m² et de 700 m² de terrain. Son intérieur inclut cinq chambres, une cuisine et deux salles de bains.
C'est une maison de 2 niveaux. Elle est neuve.
Elle se trouve dans un quartier attractif. L'École Primaire Privée Sacré-Coeur et l'École Primaire Pasteur sont implantées à moins de 10 minutes à pied. Côté transports en commun, il y a sept gares à moins de 10 minutes en voiture. On trouve un accès à l'autoroute A27 à 1 km. On trouve un tennis, deux boulangeries, deux commerces et deux épiceries à proximité de la maison.
Elle est proposée à l'achat pour 437 000 €.
Contactez Marie HALFTERMEYER ((Numéro supprimé)) pour toute question sur cette maison ou sur les modalités de vente.
Logement susceptibles de vous intéresser
Nous vous proposons de découvrir aussi cette sélection de logements situés à moins de 10km de Camphin-en-Pévèle et qui seraient susceptibles de vous intéresser.
Templeuve-en-Pévèle
TERRAIN ET MAISONTempleuve : maison F4 (92 m²) en venteEMPLACEMENT PRIVILÉGIÉ – MAISON 4 PIÈCES NEUVEÀ quelques kilomètres de Lille, nous sommes ravis de vous présenter à vendre, bénéficiant d’un emplacement privilégié dans Templeuve (59242), cette maison de 4 pièces de plain-pied de 92 m².Conçue de plain-pied, elle comporte trois chambres, une cuisine et une salle de bains. Cette maison est neuve.Le terrain de la propriété s’étend sur 500 m².Elle est située dans un secteur convoité. On trouve l’école élémentaire Groupe Scolaire Marie Navart à moins de 10 minutes à pied. Côté transports, il y a la gare Templeuve juste à côté. Quatre autoroutes sont accessibles à moins de 10 km. On trouve un tennis, des commerces, deux boulangeries, un bureau de poste et une boucherie-charcuterie à proximité du bien.Son prix de vente est de 364 980 €.N’hésitez pas à prendre contact avec notre agence (David CHAMBAULT : (Numéro supprimé)) pour obtenir de plus amples renseignements sur cette maison, sur les démarches à suivre ou sur les modalités de vente. Maisons France Confort Lille vous accompagne à toutes les étapes de l’achat et dans tous vos projets immobiliers.
Sainghin-en-Mélantois
TERRAINVENTE d’un terrain de 900 m² à Sainghin-en-MélantoisQUARTIER RECHERCHÉ – VUE PANORAMIQUEÀ Sainghin-en-Mélantois (59262) à 12 km de la frontière belge et à deux pas de Lille, donnez vie à la maison de vos rêves sur ce terrain de 900 m². Ce terrain, avec vue panoramique, bénéficie d’une exposition sud-ouest. Il se trouve dans un quartier attractif. Il y a l’École Primaire Privée Saint Joseph et l’École Primaire Antoine de Saint-Exupéry à moins de 10 minutes à pied. Niveau transports, on trouve 18 gares à moins de 10 minutes en voiture. On trouve un accès à l’autoroute A23 à 1 km. Il y a un tennis, deux boulangeries, trois commerces, un supermarché, une épicerie et une boucherie-charcuterie à quelques minutes du bien.Son prix de vente est de 29 000 €. Prenez contact avec Christian SMOLAREK ((Numéro supprimé)) pour tout renseignement sur ce terrain.
Sainghin-en-Mélantois
TERRAIN ET MAISONSainghin-en-Mélantois : maison T5 (100 m²) à vendreQUARTIER RECHERCHÉ – MAISON 5 PIÈCES NEUVEEn vente à 12 km de la frontière belge et à 10 km de Lille, située dans un quartier convoité de Sainghin-en-Mélantois (59262), découvrez cette maison de 5 pièces de 100 m². Elle comporte quatre chambres, une cuisine et deux salles de bains.Le terrain du bien s’étend sur 900 m².C’est une maison de 2 niveaux. Elle est neuve.Elle se situe dans un secteur attractif. Il y a l’École Primaire Privée Saint Joseph et l’École Primaire Antoine de Saint-Exupéry à moins de 10 minutes à pied. Côté transports, on trouve 18 gares à moins de 10 minutes en voiture. Il y a un accès à l’autoroute A23 à 1 km. Il y a un tennis, deux boulangeries, trois commerces, un supermarché, un bureau de poste et une épicerie à quelques minutes de la maison.Elle est proposée à l’achat pour 485 600 €.Prenez contact avec Christian SMOLAREK (tél : (Numéro supprimé)) pour toute question sur cette maison, sur les démarches à suivre ou sur les modalités de vente. Maisons France Confort Valenciennes vous accompagne à toutes les étapes de votre projet et dans tous vos projets immobiliers.
Fretin
TERRAIN ET MAISONMaison 4 pièces (92 m²) à vendre à Fretin – Proche de LilleÀ vendre : maison neuve de plain-pied de 92 m² à Fretin (59273), sur un terrain de 423 m², idéale pour une famille recherchant confort et proximité des commodités.Caractéristiques principales :4 pièces comprenant 3 chambres, une cuisine et une salle de bains.Maison neuve prête à accueillir ses nouveaux propriétaires.Terrain de 423 m² offrant un espace extérieur agréable.Emplacement et commodités :Écoles primaires à moins de 10 minutes à pied, dont l’École Élémentaire Jean Jaurès.Gare de Fretin à 1 km, accès rapide aux autoroutes et nationales N227 et N356.Commerces, boulangeries, tennis et bureau de poste à proximité.Ambiance locale dynamique avec le marché Place de l’Église tous les vendredis.Prix : 344 560 €Pour plus d’informations ou pour organiser une visite, contactez David CHAMBAULT au (Numéro supprimé).Maisons France Confort Lille vous accompagne dans toutes les étapes de votre projet immobilier.
Templeuve-en-Pévèle
TERRAIN ET MAISONTempleuve – Maison neuve F6 de 125 m² à vendreEMPLACEMENT PRIVILÉGIÉ – MAISON 6 PIÈCES – SECTEUR RECHERCHÉÀ deux pas de Lille, découvrez cette maison neuve de 125 m², édifiée sur un terrain de 500 m², idéalement située dans l’un des secteurs les plus prisés de Templeuve (59242).Cette maison à deux niveaux propose des volumes généreux et un cadre de vie agréable, parfait pour une famille.✔ Caractéristiques du bien :Maison neuve à 2 niveaux6 pièces, dont 4 chambresCuisineSalle de bainsTerrain de 500 m²✔ Environnement & commodités :École élémentaire Marie Navart à moins de 10 minutes à piedGare de Templeuve dans les environs4 autoroutes accessibles à moins de 10 kmÀ proximité : tennis, commerces, deux boulangeries, boucherie-charcuterie, bureau de poste…Cette maison est proposée au prix de 448 100 €.Pour plus d’informations ou pour étudier votre projet, contactez :📞 David CHAMBAULT – (Numéro supprimé)Maisons France Confort Lille vous accompagne à chaque étape de votre achat.
Camphin-en-Pévèle
TERRAIN ET MAISONÀ VENDRE – Maison neuve de 5 pièces (124 m²) à Camphin-en-PévèleEmplacement privilégié – Terrain de 700 m²Située dans un secteur recherché de Camphin-en-Pévèle, à proximité immédiate de la frontière belge et à quelques kilomètres de Lille, cette maison neuve de 124 m² offre un cadre de vie idéal.Elle se compose de deux niveaux comprenant une pièce de vie lumineuse, une cuisine, quatre chambres et une salle de bains.Les écoles primaires Sacré-Coeur et Pasteur sont accessibles à pied. Plusieurs gares se trouvent à moins de 10 minutes en voiture, et l’autoroute A27 est située à seulement 1 km. Commerces de proximité, boulangeries et équipements sportifs complètent le cadre.Prix de vente : 462 000 €Pour plus d’informations ou pour organiser un échange, contactez :Marie HALFTERMEYER – (Numéro supprimé)Maisons France Confort Béthune vous accompagne dans toutes les étapes de votre projet.
Templeuve-en-Pévèle
TERRAIN ET MAISONTempleuve – Maison neuve 5 pièces de 96 m² à vendreEMPLACEMENT PRIVILÉGIÉ – SECTEUR RECHERCHÉÀ quelques kilomètres de Lille, laissez-vous séduire par cette maison neuve de 96 m², édifiée sur un terrain de 500 m², idéalement située dans un quartier très convoité de Templeuve (59242).Cette maison moderne, construite sur 2 niveaux, offre des volumes confortables et un agencement fonctionnel.✔ Caractéristiques du bien :Maison neuve à 2 niveaux5 pièces, dont 4 chambresCuisineSalle de bainsTerrain de 500 m²✔ Un emplacement idéal :École élémentaire Marie Navart à moins de 10 minutes à piedGare de Templeuve juste à côté4 autoroutes à moins de 10 kmÀ proximité : tennis, commerces, deux boulangeries, boucherie-charcuterie, bureau de poste…Cette maison est proposée au prix de 417 200 €.Pour toute information complémentaire ou pour avancer dans votre projet, contactez :📞 David CHAMBAULT – (Numéro supprimé)
Mouchin
TERRAIN ET MAISONMouchin : Maison T6 (125 m²) à vendreProche de Lille – Maison 6 pièces neuveÀ Mouchin (59310), à proximité de Lille et de la Belgique, Maisons France Confort Lille vous propose cette maison 2 niveaux de 125 m² sur un terrain de 600 m².Caractéristiques :4 chambresCuisineSalle de bainsMaison neuveEnvironnement et commodités :Écoles à moins de 10 minutes à pied : École Primaire Privée Sacré-Coeur et École Primaire Camille Desmoulins6 gares accessibles en moins de 10 minutes en voitureAccès aux autoroutes A23 et A27 en moins de 10 kmBibliothèque et commerces à proximitéPrix de vente : 403 750 €Pour plus d’informations ou pour visiter :David CHAMBAULT – (Numéro supprimé)Maisons France Confort Lille vous accompagne dans toutes les étapes de votre projet immobilier.
Mouchin
TERRAIN ET MAISONMouchin : Maison 5 pièces – 98 m² à vendreProche de Lille – Maison 5 pièces neuveÀ moins de 1 km de la Belgique et à 21 km de Lille, découvrez cette maison de 5 pièces de 98 m² à Mouchin (59310), sur un terrain de 470 m². Conçue sur 2 niveaux, elle allie confort et fonctionnalité pour toute la famille.Caractéristiques de la maison :Surface habitable : 98 m²4 chambresCuisine à aménager selon vos enviesSalle de bainsMaison neuveEnvironnement et commodités :Écoles à proximité : École Primaire Privée Sacré-Coeur et École Primaire Camille Desmoulins (moins de 10 min à pied)Transports : 6 gares à moins de 10 min en voitureAutoroutes A23 et A27 accessibles à moins de 10 kmBibliothèque et commerces à quelques minutesPrix de vente : 316 890 €Pour plus de renseignements ou organiser une visite :David CHAMBAULT – (Numéro supprimé)Maisons France Confort Lille vous accompagne à chaque étape de votre projet immobilier.
L’actualité immobilière à Camphin-en-Pévèle
27/11/2023
02/11/2023
30/10/2023
20/10/2023
16/10/2023
16/10/2023