Maison à construire à Fenain (59179)
Images
Description
EMPLACEMENT PRIVILÉGIÉ - MAISON NEUVE A CONSTRUIRE
VOTRE CONSEILLER : Maxime KENNEDY - (Numéro supprimé)
Venez découvrir votre future maison neuve sur la commune de Fenain.
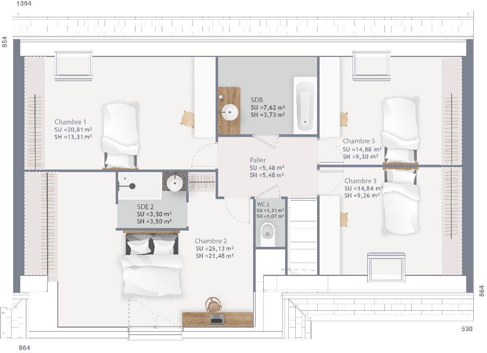
Il s'agit d'une maison de 6 pièces à comble aménagé, d'une surface habitable de 145,5 m².
Construction conforme aux dernières normes RE2020 (basse consommation) sur une base de mur composite (mur en bio bric de 20 cm + vide d'air + briques moulées-mains).
Mode de chauffage dernière génération via pompe à chaleur air / eau sur plancher chauffant rez-de-chaussée et radiateurs à l'étage.
Plans sur mesures et modifiables à la demande.
Cette maison dispose de cinq chambres dont une suite parentale au rez-de-chaussée, d'un espace de vie ouvert lumineux de 54 m² et d'un garage intégré de 19,3 m² avec un cellier attenant.
Garanties et assurances obligatoires incluses (voir détails en agence).
Hors raccordements, hors branchements, hors frais de notaire sur le terrain.
Terrain sélectionné et vu pour vous sous réserve de disponibilité et au prix indiqué par notre partenaire foncier.
La maison est située dans un quartier recherché proche de Somain, Brillon, Sars et Rosières, Beuvry-la-Forêt, Saméon, Rosult, Hasnon, Marchiennes, Warlaing, Orchies, Lille, Valenciennes, etc
A proximité des écoles et commerces de proximités.
Son prix de vente est de 339 200 €.
Contactez Maxime Kennedy ((Numéro supprimé)) pour toute information sur ce projet.
Pourquoi faire confiance à Maisons France confort ?
Maisons France Confort c'est le numéro 1 en France de la construction de maisons individuelles avec nos maisons personnalisables et qui s'adaptent à chaque budget.
C'est un accompagnement personnel dans toutes les démarches et étapes de votre projet immobilier (terrain, maison et financement entre autres).
Ensemble, construisons la maison qui vous ressemble !
Annonce proposée par un Agent Commercial Partenaire.
Logement susceptibles de vous intéresser
Nous vous proposons de découvrir aussi cette sélection de logements situés à moins de 10km de Fenain et qui seraient susceptibles de vous intéresser.
Écaillon
TERRAINTerrain de 400 m² à vendre à ÉcaillonEMPLACEMENT PRIVILÉGIÉ – VUE SANS VIS-À-VISÀ Écaillon (59176) en vente à quelques kilomètres de la Belgique et à deux pas de Valenciennes, donnez vie à votre résidence principale ou secondaire sur ce terrain de 400 m². Il profite d’une vue sans vis-à-vis et est exposé plein sud. Il se trouve dans un quartier prisé. Il y a l’École Primaire François Pierrard à moins de 10 minutes à pied. Niveau transports, on trouve huit gares à moins de 10 minutes en voiture. L’autoroute A21 est accessible à 4 km. Il y a trois commerces dans les environs.Son prix de vente est de 40 000 €. Contactez notre agence (GROS Mathilde : (Numéro supprimé)) pour tout renseignement sur ce terrain.
Écaillon
TERRAIN ET MAISONÉcaillon : maison T3 (90 m²) en venteEMPLACEMENT PRIVILÉGIÉ – MAISON 3 PIÈCES NEUVEEn vente à quelques kilomètres de la Belgique et à 21 km de Valenciennes, bénéficiant d’un emplacement d’exception dans Écaillon (59176), nous vous proposons cette maison de 3 pièces de plain-pied de 90 m². Conçue de plain-pied, elle se divise en trois chambres, une cuisine et une salle de bains.Le terrain du bien est de 400 m².Cette maison est neuve.Elle se trouve dans un secteur attractif. L’École Primaire François Pierrard est implantée à moins de 10 minutes à pied. Niveau transports en commun, il y a huit gares à moins de 10 minutes en voiture. Il y a un accès à l’autoroute A21 à 4 km. On trouve trois commerces dans les environs.Elle est à vendre pour la somme de 183 000 €.N’hésitez pas à prendre contact avec notre agence (GROS Mathilde : (Numéro supprimé)) pour obtenir de plus amples informations sur la maison, sur les modalités de vente et sur les démarches à suivre. Maisons France Confort Valenciennes vous accompagne à toutes les étapes de l’achat et dans tous vos projets immobiliers.
Écaillon
TERRAIN ET MAISONMaison de 3 pièces (90 m²) en vente à ÉcaillonEMPLACEMENT PRIVILÉGIÉ – MAISON 3 PIÈCES NEUVEÀ vendre : localisée proche de la Belgique et à 21 km de Valenciennes, Maisons France Confort Valenciennes vous présente cette maison de 3 pièces de 90 m² et de 400 m² de terrain bénéficiant d’un emplacement d’exception dans Écaillon (59176).Cette maison possède 2 niveaux. Elle propose trois chambres, une cuisine et une salle de bains. Cette maison est neuve.Elle se situe dans un quartier attractif. L’École Primaire François Pierrard se trouve à moins de 10 minutes à pied. Niveau transports, il y a huit gares à moins de 10 minutes en voiture. Il y a un accès à l’autoroute A21 à 4 km. On trouve trois commerces à quelques minutes à peine.Elle est à vendre pour la somme de 197 000 €.N’hésitez pas à prendre contact avec Mathilde GROS (tél : (Numéro supprimé)) pour toute question sur le bien ou sur les démarches à suivre. Maisons France Confort Valenciennes est là pour vous accompagner à toutes les étapes de l’achat.
Marchiennes
TERRAINVENTE d’un terrain de 1 940 m² à MarchiennesPROCHE DE LILLEGrand terrain à vendre à moins de 13 km de la Belgique et à deux pas de Lille. De 1 940 m², ce terrain se situe dans Marchiennes (59870). Il y a l’École Primaire Privée Sainte Thérèse, l’École Élémentaire Georges Brassens, l’École Maternelle Françoise Dolto et le Collège Marguerite Yourcenar à moins de 10 minutes à pied. Niveau transports, on trouve six gares à moins de 10 minutes en voiture. Les autoroutes A21 et A23 sont accessibles à moins de 7 km. Il y a un tennis, trois commerces, un supermarché, une boulangerie, une boucherie-charcuterie et un bureau de poste à proximité du terrain. Le marché Grand Place a lieu chaque samedi matin.Son prix de vente est de 120 000 €. Contactez David CHAMBAULT (tél : (Numéro supprimé)) pour plus de renseignements sur le terrain.
Auberchicourt
TERRAINVENTE : terrain de 600 m² à AuberchicourtPROCHE DE VALENCIENNESEn vente à 23 km de la frontière belge et à 21 km de Valenciennes à Auberchicourt (59165), grand terrain. Le terrain est proche des commerces et des écoles. Il y a des établissements scolaires primaires à moins de 10 minutes à pied. Niveau transports en commun, on trouve neuf gares à moins de 10 minutes en voiture. On trouve un accès à l’autoroute A21 à 4 km. Il y a une bibliothèque, deux boulangeries, trois commerces, un supermarché, un bureau de poste et une épicerie dans les environs.Son prix de vente est de 52 000 €. Prenez contact avec notre agence (David CHAMBAULT : (Numéro supprimé)) pour toute information sur ce terrain ou sur les modalités de vente. Maisons France Confort Lille est là pour vous accompagner à toutes les étapes de l’achat.
Rieulay
TERRAINVENTE : terrain de 850 m² à RieulayPROCHE DE VILLENEUVE-D’ASCQÀ vendre à moins de 17 km de la Belgique et à 29 km de Villeneuve-d’Ascq à Rieulay (59870), grand terrain. Réalisez-y votre projet immobilier. Le terrain est proche des commerces et des écoles. L’École Primaire le Colombier est implantée à moins de 10 minutes à pied, tout comme deux crèches. Niveau transports en commun, il y a quatre gares à moins de 10 minutes en voiture. Les autoroutes A21 et A23 sont accessibles à moins de 10 km. On trouve un tennis, une boulangerie, un commerce et une épicerie à quelques minutes du terrain.Son prix de vente est de 77 000 €. Contactez David CHAMBAULT ((Numéro supprimé)) pour obtenir de plus amples informations sur le terrain ou sur les démarches à suivre. Concrétisez vos projets immobiliers avec Maisons France Confort Lille.
Auberchicourt
TERRAIN ET MAISONVENTE : maison de 4 pièces (92 m²) à AuberchicourtPROCHE DE VALENCIENNES – MAISON 4 PIÈCES NEUVEEn vente proche de la Belgique et à 21 km de Valenciennes, notre agence Maisons France Confort Lille est heureuse de vous présenter à Auberchicourt (59165), cette maison de 4 pièces de plain-pied de 92 m² et de 600 m² de terrain.Conçue de plain-pied, elle inclut trois chambres, une cuisine et une salle de bains. La maison est neuve.Des écoles maternelles et élémentaires se trouvent à moins de 10 minutes à pied. Niveau transports, il y a neuf gares à moins de 10 minutes en voiture. Il y a un accès à l’autoroute A21 à 4 km. On trouve une bibliothèque, deux boulangeries, trois commerces, un supermarché, un bureau de poste et une épicerie à quelques minutes du bien.Elle est à vendre pour la somme de 242 900 €.N’hésitez pas à prendre contact avec David CHAMBAULT (tél : (Numéro supprimé)) pour tout renseignement sur cette maison ou sur les modalités de vente. Maisons France Confort Lille est là pour vous accompagner dans tous vos projets immobiliers.
Somain
TERRAINVENTE : terrain viabilisé et borné de 664 m² à SomainDans le cadre d’un projet immobilier avec Maisons France Confort EMPLACEMENT PRIVILÉGIÉ – PROCHE DE VALENCIENNESÀ vendre à 19 km de la frontière belge et à 17 km de Valenciennes à Somain (59490), grand terrain. Il est prêt à accueillir votre résidence principale ou secondaire pour toute la famille. Dans un secteur convoité, le terrain bénéficiant d’un emplacement d’exception est proche des commerces et des écoles. Quatre établissements scolaires se trouvent à moins de 10 minutes à pied. Côté transports en commun, il y a la gare Somain à quelques pas du bien. Les autoroutes A21 et A2 sont accessibles à moins de 10 km. On trouve un tennis, un bassin de natation, trois boulangeries, des commerces, un supermarché, une supérette et une boucherie-charcuterie dans les environs.Son prix de vente est de 64 000 €. Contactez Maxime KENNEDY ((Numéro supprimé)) pour toute information sur ce terrain, sur les démarches à suivre ou sur les modalités de vente.Annonce proposée par un Agent Commercial Partenaire.
Somain
TERRAIN ET MAISONEMPLACEMENT PRIVILÉGIÉ – MAISON NEUVE DE PLAIN-PIED A CONSTRUIRE VOTRE CONSEILLER : Maxime KENNEDY – (Numéro supprimé)Venez découvrir votre future maison neuve sur la commune de Somain. Il s’agit d’une maison de 4 pièces de plain-pied contemporaine en toiture 4 pans, d’une surface de 93 m². Cette maison dispose de trois chambres, d’un espace de vie ouvert et lumineux, d’une salle de bains, d’un cellier et d’une salle de bains. Construction conforme aux dernières normes RE2020 (basse consommation) sur une base de mur en biobric revêtu d’un enduit (avec bichromie ou non) selon la couleur souhaitée. Mode de chauffage dernière génération via pompe à chaleur air / air type RIBO (meilleur confort l’hiver comme l’été). Plans sur mesures et modifiables à la demande. Garanties et assurances obligatoires incluses (voir détails en agence). Hors raccordements, hors branchements, hors frais de notaire sur le terrain. Terrain sélectionné et vu pour vous sous réserve de disponibilité et au prix indiqué par notre partenaire foncier. La maison est située dans un quartier recherché proche de Fenain, Erre, Abscon, Wandignies Hamage, Marchiennes, Hornaing, Hélesmes, Pecquencourt, Vred, Bruille lez Marchiennes, etcA proximité des écoles et commerces de proximités.Son prix de vente est de 210 200 €.Contactez Maxime Kennedy ((Numéro supprimé)) pour toute information sur cette maison. Pourquoi faire confiance à Maisons France confort ? Maisons France Confort c’est le numéro 1 en France de la construction de maisons individuelles avec nos maisons personnalisables et qui s’adaptent à chaque budget. C’est un accompagnement personnel dans toutes les démarches et étapes de votre projet immobilier (terrain, maison et financement entre autres). Ensemble, construisons la maison qui vous ressemble !Annonce proposée par un Agent Commercial Partenaire.
L’actualité immobilière à Fenain
27/11/2023
02/11/2023
30/10/2023
20/10/2023
16/10/2023
16/10/2023