Maison à construire à Morbecque (59190)
Images
Description
Maison de 6 pièces (115 m²) en vente à Morbecque
EMPLACEMENT PRIVILÉGIÉ
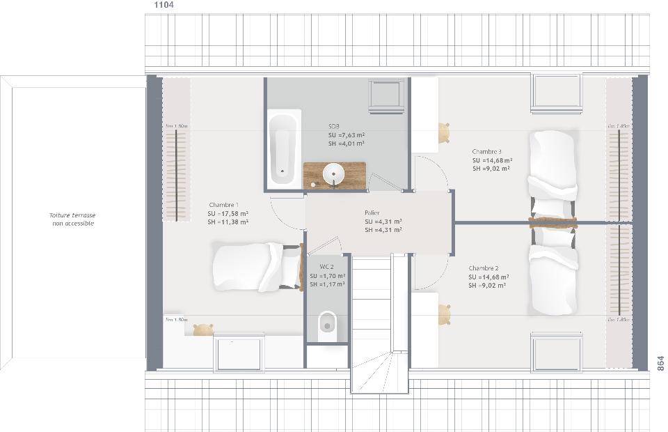
En vente, votre agence Maisons France Confort Béthune est ravie de vous proposer cette maison de 6 pièces de 115 m² bénéficiant d'un emplacement privilégié dans Morbecque (59190).
Il s'agit d'une maison de 2 niveaux. Elle est composée de quatre chambres, d'une cuisine et de deux salles de bains. Cette maison est neuve.
Le terrain de la propriété est de 424 m².
Elle se trouve dans un secteur recherché. L'École Primaire Privée Saint Joseph et l'École Primaire Charles Perrault sont implantées à moins de 10 minutes à pied. Côté transports en commun, il y a six gares à moins de 10 minutes en voiture. Les autoroutes A25 et A26 sont accessibles à moins de 16 km et Armentières se situe à 24 km. On trouve un tennis et une boulangerie à proximité du logement.
Elle est proposée à l'achat pour 300 000 €.
Contactez notre constructeur (WALRYCK Franck : (Numéro supprimé)) pour plus de renseignements sur la maison ou sur les démarches à suivre. Maisons France Confort Béthune est là pour vous accompagner à toutes les étapes de l'achat.
Logement susceptibles de vous intéresser
Nous vous proposons de découvrir aussi cette sélection de logements situés à moins de 10km de Morbecque et qui seraient susceptibles de vous intéresser.

Morbecque
TERRAINMorbecque : terrain de 424 m² à vendreProche d’Armentières – En vente à Morbecque (59190) : donnez vie à votre projet sur ce terrain de 424 m².À proximité : gares, écoles, tennis et boulangerie. Autoroutes A25 et A26 accessibles à 16 km. Il est à vendre pour la somme de 73 500 €. N’hésitez pas à prendre contact avec notre agence (WALRYCK Franck : (Numéro supprimé)) pour tout renseignement sur le terrain et sur les modalités de vente. Maisons France Confort Béthune vous accompagne dans toutes vos démarches et dans tous vos projets immobiliers.

Morbecque
TERRAIN ET MAISONMaison T5 (83 m²) en vente à MorbecqueEMPLACEMENT PRIVILÉGIÉ – En vente : nous sommes ravis de vous présenter, bénéficiant d’un emplacement d’exception dans Morbecque (59190), cette maison de 5 pièces de plain-pied de 83 m² et de 424 m² de terrain. Conçue de plain-pied, elle se divise en trois chambres, une cuisine et une salle de bains.La maison est neuve.Elle se trouve dans un secteur prisé. Il y a l’École Primaire Privée Saint Joseph et l’École Primaire Charles Perrault à moins de 10 minutes à pied. Côté transports en commun, on trouve six gares à moins de 10 minutes en voiture. Les autoroutes A25 et A26 sont accessibles à moins de 16 km et Armentières est située à 24 km. Il y a un tennis et une boulangerie à proximité du bien.Son prix de vente est de 250 000 €.Prenez contact avec Franck WALRYCK (tél : (Numéro supprimé)) pour plus de renseignements sur la maison, sur les modalités de vente ou sur les démarches à suivre.

Morbecque
TERRAIN ET MAISONMaison T9 (142 m²) à vendre à MorbecqueEMPLACEMENT PRIVILÉGIÉ Bénéficiant d’un emplacement privilégié dans Morbecque (59190), Maisons France Confort Béthune vous propose cette maison de 9 pièces de 142 m² et de 424 m² de terrain. Maison à étage d’inspiration Flamande revisitée, sa conception lui permet de s’affranchir en grande partie des mansardes et de vous offrir de très beaux volumes avec une pièce de vie de plus de 55 m², une vaste suite parentale en rdc, 3 grandes chbs à l’étage ainsi qu’une deuxième sdb et un espace dédié au télétravail associé à un vide sur hall lumineux.Maisons France Confort vous propose une alternative pleine d’originalité et aux prestations haut de gamme.Elle se trouve dans un secteur recherché. L’École Primaire Privée Saint Joseph et l’École Primaire Charles Perrault sont implantées à moins de 10 minutes à pied. Niveau transports en commun, il y a six gares à moins de 10 minutes en voiture. Les autoroutes A25 et A26 sont accessibles à moins de 16 km et Armentières se situe à 24 km. On trouve un tennis et une boulangerie dans les environs.Elle est à vendre pour la somme de 400 000 €.N’hésitez pas à prendre contact avec Franck WALRYCK ((Numéro supprimé)) pour toute information sur la maison. Maisons France Confort Béthune est là pour vous accompagner dans tous vos projets immobiliers.

Morbecque
TERRAIN ET MAISONMaison de 6 pièces (115 m²) en vente à MorbecqueEMPLACEMENT PRIVILÉGIÉ En vente, votre agence Maisons France Confort Béthune est ravie de vous proposer cette maison de 6 pièces de 115 m² bénéficiant d’un emplacement privilégié dans Morbecque (59190).Il s’agit d’une maison de 2 niveaux. Elle est composée de quatre chambres, d’une cuisine et de deux salles de bains. Cette maison est neuve.Le terrain de la propriété est de 424 m².Elle se trouve dans un secteur recherché. L’École Primaire Privée Saint Joseph et l’École Primaire Charles Perrault sont implantées à moins de 10 minutes à pied. Côté transports en commun, il y a six gares à moins de 10 minutes en voiture. Les autoroutes A25 et A26 sont accessibles à moins de 16 km et Armentières se situe à 24 km. On trouve un tennis et une boulangerie à proximité du logement.Elle est proposée à l’achat pour 300 000 €.Contactez notre constructeur (WALRYCK Franck : (Numéro supprimé)) pour plus de renseignements sur la maison ou sur les démarches à suivre. Maisons France Confort Béthune est là pour vous accompagner à toutes les étapes de l’achat.

Morbecque
TERRAIN ET MAISONVENTE : maison T5 (90 m²) à MorbecqueEMPLACEMENT PRIVILÉGIÉ – MAISON 5 PIÈCES NEUVEEn vente : située à 42 km de la mer du Nord et proche de la Belgique, bénéficiant d’un emplacement d’exception dans Morbecque (59190), notre agence Maisons France Confort Béthune est heureuse de vous proposer cette maison de 5 pièces de plain-pied de 90 m².Elle offre trois chambres, une cuisine et deux salles de bains. Cette maison est neuve.Le terrain du bien s’étend sur 424 m².Elle se trouve dans un quartier attractif. Il y a l’École Primaire Privée Saint Joseph et l’École Primaire Charles Perrault à moins de 10 minutes à pied. Niveau transports en commun, on trouve six gares à moins de 10 minutes en voiture. Les autoroutes A25 et A26 sont accessibles à moins de 16 km et Armentières est située à 24 km. Il y a un tennis et une boulangerie à quelques minutes de la maison.Elle est à vendre pour la somme de 270 000 €.Contactez notre agence (Franck WALRYCK : (Numéro supprimé)) pour toute question sur le bien. Faites de vos projets immobiliers une réalité avec Maisons France Confort Béthune.

Morbecque
TERRAIN ET MAISONMaison F9 (165 m²) à vendre à MorbecqueEMPLACEMENT PRIVILÉGIÉ En vente à 42 km de la mer du Nord et à quelques kilomètres de la Belgique, bénéficiant d’un emplacement d’exception dans Morbecque (59190), nous vous proposons cette maison de 9 pièces de 165 m².Une vaste maison qui offre un cadre de vie de qualité pour toute la famille, une esthétique moderne alliant la brique moulée main typique du Nord de la France à l’enduit et à un bardage contemporain.Près de 70 m² pour la pièce de vie, un vrai hall d’entrée, une suite parentale en rdc avec un accès direct au jardin, un garage pour 2 voitures, 3 chbs, une deuxième sdb et un bureau à l’étage, baigné de lumière grâce aux originales verrières ateliers Velux. Profitez sereinement de l’espace offert par cette grande maison à la fois originale et parfaitement intégrée dans sa région.Le terrain de la propriété s’étend sur 424 m².Elle se trouve dans un quartier attractif. L’École Primaire Privée Saint Joseph et l’École Primaire Charles Perrault sont implantées à moins de 10 minutes à pied. Niveau transports, il y a six gares à moins de 10 minutes en voiture. Les autoroutes A25 et A26 sont accessibles à moins de 16 km et Armentières est située à 24 km. On trouve un tennis et une boulangerie à proximité.Elle est proposée à l’achat pour 450 000 €.Prenez contact avec notre agence (WALRYCK Franck : (Numéro supprimé)) pour toute information sur le bien. Maisons France Confort Béthune vous accompagne à toutes les étapes de votre projet et dans tous vos projets immobiliers.

Robecq
TERRAINVENTE : terrain de 778 m² à RobecqIDÉALEMENT SITUÉ – VUE DÉGAGÉEÀ Robecq (62350) à 26 km de la frontière belge et à quelques kilomètres de Lens, donnez vie à votre projet de construction sur ce terrain de 778 m², déjà borné. Ce terrain, avec vue dégagée, est orienté au sud-ouest. Dans un quartier prisé, le terrain idéalement situé est proche des commerces et des écoles. Il y a l’École Primaire la Clarence à moins de 10 minutes à pied et une crèche. Niveau transports en commun, on trouve sept gares à moins de 10 minutes en voiture. On trouve un accès à l’autoroute A26 à 9 km. Il y a une bibliothèque, une boulangerie, un commerce et une boucherie-charcuterie à proximité.Son prix de vente est de 53 000 € Hors frais de notaire et de viabilisation. Contactez notre agence (Marie HALFTERMEYER : (Numéro supprimé)) pour obtenir de plus amples renseignements sur ce terrain. Maisons France Confort Béthune vous accompagne à toutes les étapes de votre projet et dans tous vos projets immobiliers.

Robecq
TERRAIN ET MAISONMaison de 7 pièces (110 m²) à vendre à RobecqIDÉALEMENT SITUÉE – MAISON 7 PIÈCES NEUVEÀ vendre : localisée à moins de 26 km de la Belgique et à 25 km de Lens, nous vous présentons cette maison de 7 pièces de 110 m² et de 778 m² de terrain idéalement située dans Robecq (62350). Elle est composée de quatre chambres, d’une cuisine et de deux salles de bains.Cette maison comporte 2 niveaux. Elle est neuve.Elle se trouve dans un secteur prisé. Il y a l’École Primaire la Clarence à moins de 10 minutes à pied et une crèche. Niveau transports, on trouve sept gares à moins de 10 minutes en voiture. L’autoroute A26 est accessible à 9 km. Il y a une bibliothèque, une boulangerie, un commerce et une boucherie-charcuterie à quelques minutes de la maison.Son prix de vente est de 271 708 €.Prenez contact avec Marie HALFTERMEYER ((Numéro supprimé)) pour toute question sur cette propriété, sur les démarches à suivre ou sur les modalités de vente. Maisons France Confort Béthune est là pour vous accompagner dans tous vos projets immobiliers.

Busnes
TERRAIN[NOUVEAU] Construisez votre maison à Busnes, dans un cadre privilégié ! Situé rue de Guarbecque, à proximité de Béthune et Lillers, ce nouveau programme vous propose 5 terrains à bâtir de 531 à 568 m2, tous exposés Sud-Ouest.Déjà viabilisés (eau, électricité, fibre) et libres de constructeur, ces terrains seront prêts à construire très prochainement : les travaux de viabilisation sont actuellement en cours.Profitez d’un environnement calme et verdoyant, au coeur d’une commune dynamique, bien desservie et proche des commodités.Et pour faciliter votre projet, le Prêt à Taux Zéro peut financer jusqu’à 50 % de votre acquisition à taux 0.Pour toutes informations complémentaires, prenez contact avec nous !
L’actualité immobilière à Morbecque





