Maison à construire à Quarouble (59243)
Images
Description
Quarouble, permis obtenu lancement des travaux imédiat ! Venez réalisez votre maison famillialle de pl.-pieds dans un quartier recherché !
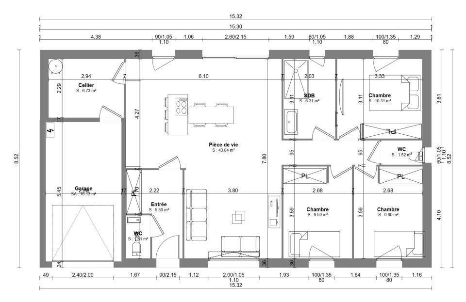
À quelques kilomètres de la Belgique et à deux pas de Valenciennes, nous vous proposons cette maison de 3 pièces de plain-pied de 90 m² dans un quartier prisé de Quarouble (59243). Elle propose trois chambres, une cuisine et une salle de bains.
Le terrain de cette maison s'étend sur 450 m².
Cette maison est neuve.
Elle se trouve dans un secteur attractif. Des établissements scolaires primaires y sont implantés et, comme l'École Primaire Privée Notre-Dame du Sacré Coeur. Côté transports en commun, il y a les gares Beuvrages et Valenciennes à moins de 10 minutes en voiture. On trouve un accès à l'autoroute A2 à 2 km. On trouve un supermarché dans les environs.
Elle est proposée à l'achat pour 249 800 €.
Prenez contact avec Christian SMOLAREK (tél : (Numéro supprimé)) pour obtenir de plus amples informations sur la propriété, sur les modalités de vente ou sur les démarches à suivre. Maisons France Confort Valenciennes est là pour vous accompagner dans tous vos projets immobiliers.
Logement susceptibles de vous intéresser
Nous vous proposons de découvrir aussi cette sélection de logements situés à moins de 10km de Quarouble et qui seraient susceptibles de vous intéresser.
Raismes
TERRAINVENTE d’un terrain de 500 m² à RaismesIDÉALEMENT SITUÉ – VUE SANS VIS-À-VISÀ Raismes (59590) en vente proche de la Belgique et à 6 km de Valenciennes, projetez la maison de vos rêves sur ce terrain de 500 m². Il profite d’une vue sans vis-à-vis et bénéficie d’une exposition sud. Dans un quartier prisé, le terrain idéalement situé est proche des commerces et des écoles. Des écoles de tous niveaux (de la maternelle au lycée) sont implantées dans la commune. Niveau transports, on trouve sept gares à moins de 10 minutes en voiture. Les autoroutes A23 et A2 sont accessibles à moins de 8 km. Il y a une bibliothèque à quelques minutes à peine.Il est à vendre pour la somme de 24 000 €. Contactez notre agence (GROS Mathilde : (Numéro supprimé)) pour toute question sur ce terrain, sur les modalités de vente ou sur les démarches à suivre. Maisons France Confort Valenciennes vous accompagne à toutes les étapes de l’achat et dans tous vos projets immobiliers.
Raismes
TERRAIN ET MAISONVENTE : maison de 3 pièces (93 m²) à RaismesIDÉALEMENT SITUÉE – MAISON 3 PIÈCES NEUVEÀ vendre à quelques kilomètres de la Belgique et à deux pas de Valenciennes, idéalement située dans Raismes (59590), nous vous proposons cette maison de 3 pièces de plain-pied de 93 m². Conçue de plain-pied, elle se divise en trois chambres, une cuisine et une salle de bains.Le terrain du bien s’étend sur 500 m².Cette maison est neuve.Elle se trouve dans un quartier prisé. On y trouve des écoles du primaire et du secondaire. Niveau transports en commun, il y a sept gares à moins de 10 minutes en voiture. Les autoroutes A23 et A2 sont accessibles à moins de 8 km. On trouve une bibliothèque dans les environs.Son prix de vente est de 188 000 €.N’hésitez pas à prendre contact avec Mathilde GROS (tél : (Numéro supprimé)) pour toute information sur ce bien, sur les modalités de vente ou sur les démarches à suivre. Maisons France Confort Valenciennes est là pour vous accompagner à toutes les étapes de l’achat.
Raismes
TERRAIN ET MAISONRaismes : maison de 3 pièces (130 m²) en venteIDÉALEMENT SITUÉE – MAISON 3 PIÈCES NEUVEEn vente : située à moins de 11 km de la Belgique et à deux pas de Valenciennes, votre agence Maisons France Confort Valenciennes est ravie de vous proposer cette maison de 3 pièces de 130 m² idéalement située dans Raismes (59590).Cette maison comporte 2 niveaux. Elle compte trois chambres, une cuisine et deux salles de bains. Cette maison est neuve.Le terrain de la propriété s’étend sur 500 m².Elle se trouve dans un quartier prisé. Des écoles de tous niveaux (de la maternelle au lycée) y sont implantées. Côté transports, il y a sept gares à moins de 10 minutes en voiture. Les autoroutes A23 et A2 sont accessibles à moins de 8 km. On trouve une bibliothèque à quelques minutes.Elle est à vendre pour la somme de 199 000 €.Prenez contact avec Mathilde GROS (tél : (Numéro supprimé)) pour toute question sur la maison. Donnez vie à vos projets immobiliers avec Maisons France Confort Valenciennes.
Raismes
TERRAIN ET MAISONRaismes : maison de 3 pièces (90 m²) en venteIDÉALEMENT SITUÉE – MAISON 3 PIÈCES NEUVEEn vente : située à moins de 11 km de la Belgique et à deux pas de Valenciennes, idéalement située dans Raismes (59590), notre agence Maisons France Confort Valenciennes est ravie de vous proposer cette maison de 3 pièces de plain-pied de 90 m² et de 500 m² de terrain. Son intérieur est composé de trois chambres, d’une cuisine et d’une salle de bains.Cette maison est neuve.Elle se trouve dans un secteur attractif. Des écoles de tous types (de la maternelle au lycée) y sont implantées. Niveau transports en commun, il y a sept gares à moins de 10 minutes en voiture. Les autoroutes A23 et A2 sont accessibles à moins de 8 km. On trouve une bibliothèque à proximité.Elle est proposée à l’achat pour 179 000 €.Contactez Mathilde GROS (tél : (Numéro supprimé)) pour tout renseignement sur cette maison ou sur les démarches à suivre. Concrétisez vos projets immobiliers avec Maisons France Confort Valenciennes.
Onnaing
TERRAINVENTE d’un terrain de 500 m² à OnnaingEMPLACEMENT PRIVILÉGIÉ – PROCHE DE VALENCIENNESTerrain de 500 m² en vente proche de la Belgique et à quelques kilomètres de Valenciennes. Ce terrain se situe bénéficiant d’un emplacement d’exception dans Onnaing (59264). Il bénéficie d’une exposition sud. Il est situé dans un secteur prisé. Des écoles maternelles et élémentaires se trouvent à moins de 10 minutes à pied. Côté transports, il y a quatre gares à moins de 10 minutes en voiture. Les autoroutes A2 et A23 sont accessibles à moins de 9 km. On trouve une bibliothèque, quatre commerces, trois boulangeries, deux supermarchés, des boucheries-charcuteries et un bureau de poste à proximité du bien. Ne manquez pas le marché Place Pasteur tous les lundis matin.Ce terrain est à vendre pour la somme de 60 000 €. Prenez contact avec Mathilde GROS ((Numéro supprimé)) pour plus de renseignements sur le terrain. Maisons France Confort Valenciennes est là pour vous accompagner à toutes les étapes de l’achat.
Odomez
TERRAINVENTE d’un terrain de 500 m² à OdomezIDÉALEMENT SITUÉ – PROCHE DE VALENCIENNESEn vente proche de la Belgique et à deux pas de Valenciennes à Odomez (59970), terrain de 500 m². Il est prêt à accueillir votre projet immobilier pour toute la famille. Il est exposé plein sud. Il se situe dans un secteur attractif. L’École Primaire Léon-Paul Boisseau se trouve à moins de 10 minutes à pied. Côté transports, il y a les gares Beuvrages, Raismes et Saint-Amand-les-Eaux à moins de 10 minutes en voiture. Les autoroutes A2 et A23 sont accessibles à moins de 9 km.Son prix de vente est de 53 000 €. Prenez contact avec notre agence (Mathilde GROS : (Numéro supprimé)) pour obtenir de plus amples informations sur le terrain ou sur les démarches à suivre. Concrétisez vos projets immobiliers avec Maisons France Confort Valenciennes.
Condé-sur-l'Escaut
TERRAINTerrain de 1 000 m² en vente à Condé-sur-l’EscautEMPLACEMENT PRIVILÉGIÉ – PROCHE DE VALENCIENNESÀ Condé-sur-l’Escaut (59163) à moins de 5 km de la Belgique et à quelques kilomètres de Valenciennes, projetez la maison de vos rêves sur ce terrain de 1 000 m². Il est orienté au sud. Il est situé dans un quartier convoité. Il y a des écoles maternelles et élémentaires à moins de 10 minutes à pied. Niveau transports, on trouve la gare Beuvrages à moins de 10 minutes en voiture. L’autoroute A2 est accessible à 5 km. Il y a un tennis, des commerces, trois boulangeries, un supermarché, trois boucheries-charcuteries et une poissonnerie dans les environs.Son prix de vente est de 87 000 €. Contactez Mathilde GROS (tél : (Numéro supprimé)) pour obtenir de plus amples informations sur ce terrain, sur les modalités de vente ou sur les démarches à suivre.
Quarouble
TERRAINTerrain de 500 m² à vendre à QuaroubleEMPLACEMENT PRIVILÉGIÉ – VUE SANS VIS-À-VISTerrain de 500 m² en vente proche de la Belgique et à deux pas de Valenciennes. Ce terrain se situe bénéficiant d’un emplacement privilégié dans Quarouble (59243). Il profite d’une vue sans vis-à-vis et est exposé plein sud. Il est situé dans un quartier prisé. On y trouve des écoles maternelles et élémentaires ainsi que, parmi lesquelles l’École Primaire Privée Notre-Dame du Sacré Coeur. Côté transports en commun, il y a les gares Beuvrages et Valenciennes à moins de 10 minutes en voiture. Il y a un accès à l’autoroute A2 à 2 km. On trouve un supermarché dans les environs.Son prix de vente est de 60 000 €. Prenez contact avec notre agence (Mathilde GROS : (Numéro supprimé)) pour obtenir de plus amples renseignements sur le terrain, sur les modalités de vente ou sur les démarches à suivre. Donnez vie à vos projets immobiliers avec Maisons France Confort Valenciennes.
Onnaing
TERRAIN ET MAISONMaison de 3 pièces (90 m²) en vente à OnnaingEMPLACEMENT PRIVILÉGIÉ – MAISON 3 PIÈCES NEUVEEn vente à 9 km de la frontière belge et à 7 km de Valenciennes, bénéficiant d’un emplacement d’exception dans Onnaing (59264), nous vous proposons cette maison de 3 pièces de plain-pied de 90 m² et de 500 m² de terrain. Conçue de plain-pied, elle compte trois chambres, une cuisine et une salle de bains.La maison est neuve.Elle se trouve dans un secteur attractif. Des écoles primaires sont implantées à moins de 10 minutes à pied. Niveau transports en commun, on trouve quatre gares à moins de 10 minutes en voiture. Les autoroutes A2 et A23 sont accessibles à moins de 9 km. Il y a une bibliothèque, quatre commerces, trois boulangeries, deux supermarchés, des boucheries-charcuteries et un bureau de poste dans les environs. Ne manquez pas le marché Place Pasteur chaque lundi matin.Elle est proposée à l’achat pour 217 000 €.Prenez contact avec Mathilde GROS ((Numéro supprimé)) pour toute information sur cette maison ou sur les démarches à suivre. Maisons France Confort Valenciennes est là pour vous accompagner dans tous vos projets immobiliers.
L’actualité immobilière à Quarouble
27/11/2023
02/11/2023
30/10/2023
20/10/2023
16/10/2023
16/10/2023