Maison à construire à Steenwerck (59181)
Images
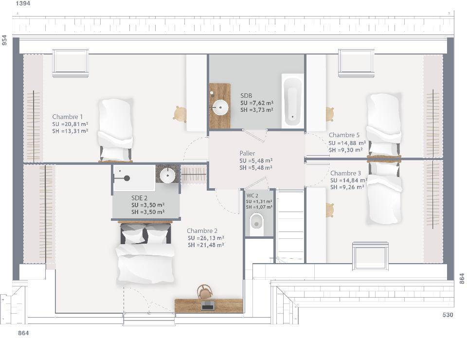
Description
Maison Contemporaine Neuve - RE 2020 - Proche de Lille
À seulement quelques minutes de Lille, découvrez cette maison neuve contemporaine, construite selon la dernière norme environnementale RE 2020. Implantée sur un terrain bien exposé, elle offre une vue dégagée sur le jardin et un cadre de vie paisible, dans un quartier familial.
Des prestations modernes et durables :
Grande pièce de vie lumineuse avec cuisine ouverte, idéale pour les moments en famille
Plusieurs chambres confortables, pensées pour le bien-être de chacun
Salle de bain moderne, fonctionnelle et élégante
Matériaux nobles et écologiques, gage de durabilité et de respect de l'environnement
Nous collaborons en priorité avec des artisans locaux et des fournisseurs régionaux, pour une qualité de construction optimale.
Un environnement privilégié :
Écoles, crèche, collège à proximité immédiate
Gare et accès autoroutiers à quelques minutes
Commerces de quartier, bibliothèque, infrastructures sportives, boulangeries, épiceries, bureau de poste...
Prix de vente à partir de : 402 000 € (hors frais annexes)
Garanties décennale, dommage ouvrage et livraison incluses ( Contrat de construction CCMI loi de la construction et de l'habitation de 1990)
________________________________________
Construisez votre avenir avec Maisons France Confort
Faites confiance à Maisons France Confort, marque du groupe HEXAOM, pour concrétiser votre projet immobilier.
Accompagnement personnalisé à chaque étape.
📞 Contactez Sébastien RAVIART au (Numéro supprimé)
pour plus d'informations ou pour convenir d'un rendez-vous.
Logement susceptibles de vous intéresser
Nous vous proposons de découvrir aussi cette sélection de logements situés à moins de 10km de Steenwerck et qui seraient susceptibles de vous intéresser.
Fleurbaix
TERRAIN ET MAISONVENTE d’une maison T7 (137 m²) à FleurbaixIDÉALEMENT SITUÉE – MAISON 7 PIÈCES NEUVEEn vente : localisée à moins de 8 km de la Belgique et à quelques kilomètres de Lille, idéalement située dans Fleurbaix (62840), nous vous présentons cette maison de 7 pièces de 137 m² et de 602 m² de terrain.Il s’agit d’une maison de 2 niveaux. Son intérieur propose quatre chambres, une cuisine et deux salles de bains. Cette maison est neuve.Elle est située dans un quartier prisé. On trouve l’École Primaire Franche Terre et l’École Primaire Privée Sacré-Coeur à moins de 10 minutes à pied et une structure d’accueil pour les enfants en bas âge. Niveau transports en commun, il y a les gares Armentières, Nieppe et Steenwerck à moins de 10 minutes en voiture. L’autoroute A25 et la nationale N41 sont accessibles à moins de 10 km. On trouve un tennis, des commerces, deux boulangeries, un supermarché, une épicerie et un bureau de poste dans les environs.Son prix de vente est de 402 000 €.Prenez contact avec Marie HALFTERMEYER ((Numéro supprimé)) pour obtenir de plus amples renseignements sur la maison.
Fleurbaix
TERRAIN ET MAISONMaison T5 (101 m²) à vendre à FleurbaixIDÉALEMENT SITUÉE – MAISON 5 PIÈCES NEUVEÀ moins de 8 km de la Belgique et à quelques kilomètres de Lille, nous sommes ravis de vous présenter à vendre, idéalement située dans Fleurbaix (62840), cette maison de 5 pièces de plain-pied de 101 m² et de 602 m² de terrain.Son intérieur offre quatre chambres, une cuisine et une salle de bains. Cette maison est neuve.Elle est située dans un secteur prisé. On trouve l’École Primaire Franche Terre et l’École Primaire Privée Sacré-Coeur à moins de 10 minutes à pied et une structure d’accueil pour les tout-petits. Niveau transports en commun, il y a trois gares (Armentières, Nieppe et Steenwerck) à moins de 10 minutes en voiture. L’autoroute A25 et la nationale N41 sont accessibles à moins de 10 km. On trouve un tennis, des commerces, deux boulangeries, un supermarché, une épicerie et un bureau de poste à proximité.Elle est à vendre pour la somme de 308 000 €.Contactez Marie HALFTERMEYER ((Numéro supprimé)) pour toute question sur la maison.
Nieppe
TERRAINVENTE d’un terrain de 703 m² à NieppeIDÉALEMENT SITUÉ – VUE SANS VIS-À-VISÀ Nieppe (59850) à quelques kilomètres de la Belgique et à quelques kilomètres de Lille, donnez vie à votre projet de construction sur ce terrain de 703 m². Ce terrain, sans vis-à-vis, bénéficie d’une exposition sud-ouest. Dans un secteur attractif, le terrain idéalement situé est proche des commerces et des écoles. Il y a l’École Primaire Privée Saint Louis-Sacré-Sacré, l’École Maternelle le Petit Prince, l’École Élémentaire Arthur Cornette et le Collège Privé Saint Martin à moins de 10 minutes à pied. Niveau transports, on trouve quatre gares à moins de 10 minutes en voiture. L’autoroute A25 est accessible à 3 km. Il y a deux tennis, une bibliothèque, des commerces, deux boulangeries, trois boucheries-charcuteries, une épicerie et un bureau de poste à quelques minutes du terrain.Il est à vendre pour la somme de 158 000 €. Contactez Marie HALFTERMEYER (tél : (Numéro supprimé)) pour tout renseignement sur ce terrain, sur les modalités de vente ou sur les démarches à suivre. Maisons France Confort Béthune vous accompagne à toutes les étapes de votre projet et dans tous vos projets immobiliers. Photo non contractuelle
Fleurbaix
TERRAINTerrain de 602 m² en vente à FleurbaixIDÉALEMENT SITUÉ – VUE DÉGAGÉEÀ vendre à quelques kilomètres de la Belgique et à quelques kilomètres de Lille à Fleurbaix (62840), grand terrain. Il profite d’une vue dégagée et bénéficie d’une exposition sud. Dans un quartier recherché, le terrain idéalement situé est proche des écoles et des commerces. Il y a l’École Primaire Franche Terre et l’École Primaire Privée Sacré-Coeur à moins de 10 minutes à pied et une structure d’accueil pour la petite enfance. Niveau transports en commun, on trouve trois gares (Armentières, Nieppe et Steenwerck) à moins de 10 minutes en voiture. L’autoroute A25 et la nationale N41 sont accessibles à moins de 10 km. Il y a un tennis, des commerces, deux boulangeries, un supermarché, une épicerie et un bureau de poste à proximité du terrain.Il est proposé à l’achat pour 138 000 €. Prenez contact avec notre agence (HALFTERMEYER Marie : (Numéro supprimé)) pour obtenir de plus amples renseignements sur ce terrain ou sur les modalités de vente. Maisons France Confort Béthune est là pour vous accompagner dans tous vos projets immobiliers. Photo non contractuelle
Sailly-sur-la-Lys
TERRAINSailly-sur-la-Lys : terrain de 517 m² en venteIDÉALEMENT SITUÉ – VUE SANS VIS-À-VISÀ Sailly-sur-la-Lys (62840) à quelques kilomètres de la Belgique et à deux pas de Lille, imaginez la maison de vos rêves sur ce terrain de 517 m². Ce terrain, sans vis-à-vis, est orienté au sud-ouest. Dans un quartier attractif, le terrain idéalement situé est proche des écoles et des commerces. L’École Primaire Privée Sacré-Coeur et l’École Élémentaire George Sand sont implantées à moins de 10 minutes à pied, tout comme une crèche. Côté transports, il y a quatre gares à moins de 10 minutes en voiture. Il y a un accès à l’autoroute A25 à 6 km. On trouve un tennis, trois commerces, un supermarché et un bureau de poste à proximité du bien.Il est à vendre pour la somme de 87 000 €. Contactez notre agence (Marie HALFTERMEYER : (Numéro supprimé)) pour tout renseignement sur ce terrain, sur les modalités de vente ou sur les démarches à suivre. Maisons France Confort Béthune vous accompagne dans tous vos projets immobiliers et dans toutes vos démarches.
Nieppe
TERRAIN ET MAISONVous rêvez d’une maison chaleureuse, économique et respectueuse de l’environnement ? 🌱Découvrez notre gamme de maisons en ossature bois, alliant confort, modernité et performance.✅ Construction plus rapide qu’une construction traditionnelle : maison livrée en moyenne avec des délais de construction divisés par 2 ⌛✅ Gagnez en intérêts intercalaires pendant votre construction 💰✅ Écologique & durable : un matériau naturel et renouvelable ♻️✅ Confort thermique & acoustique : Tant en hiver qu’en été grâce à l’inertie du bois. 🪵✅ Personnalisation : architecture traditionnelle, moderne ou contemporaine 🏘️✅ Économies d’énergie : performance au-delà des normes actuelles 🪙Ce projet est au prix de 384000€ avec le terrain. 👉 Tous nos projets sont réalisés sur mesure pour répondre à vos envies et vos besoins. Pour effectuer une étude gratuite contactez Marie HALFTERMEYER ((Numéro supprimé)) Conseiller commercial Maison France Confort Béthune, je me ferais un plaisir de vous accompagner dans votre projet de construction ! (Cubique, plain-pied, toit plat, etc)
Nieppe
TERRAIN ET MAISONVENTE : maison de 4 pièces (81 m²) à NieppeIDÉALEMENT SITUÉE – MAISON 4 PIÈCES NEUVEÀ vendre : proche de la Belgique et à 17 km de Lille, nous vous présentons, idéalement située dans Nieppe (59850), cette maison de 4 pièces de plain-pied de 81 m² et de 703 m² de terrain.Elle compte trois chambres, une cuisine et une salle de bains. Cette maison est neuve.Elle se trouve dans un secteur convoité. Il y a l’École Primaire Privée Saint Louis-Sacré-Sacré, l’École Maternelle le Petit Prince, l’École Élémentaire Arthur Cornette et le Collège Privé Saint Martin à moins de 10 minutes à pied. Niveau transports, on trouve quatre gares à moins de 10 minutes en voiture. L’autoroute A25 est accessible à 3 km. Il y a deux tennis, une bibliothèque, des commerces, deux boulangeries, une épicerie, trois boucheries-charcuteries et un bureau de poste dans les environs.Elle est proposée à l’achat pour 310 000 €.Contactez notre agence (HALFTERMEYER Marie : (Numéro supprimé)) pour toute information sur la maison, sur les modalités de vente ou sur les démarches à suivre.
Nieppe
TERRAIN ET MAISONMaison F7 (137 m²) en vente à NieppeIDÉALEMENT SITUÉE – MAISON 7 PIÈCES NEUVEÀ vendre : à moins de 3 km de la Belgique et à 17 km de Lille, Maisons France Confort Béthune vous présente cette maison de 7 pièces de 137 m² et de 703 m² de terrain idéalement située dans Nieppe (59850). Elle se divise en quatre chambres, une cuisine et deux salles de bains.C’est une maison de 2 niveaux. Elle est neuve.Elle se trouve dans un quartier attractif. Il y a l’École Primaire Privée Saint Louis-Sacré-Sacré, l’École Maternelle le Petit Prince, l’École Élémentaire Arthur Cornette et le Collège Privé Saint Martin à moins de 10 minutes à pied. Niveau transports, on trouve quatre gares à moins de 10 minutes en voiture. Il y a un accès à l’autoroute A25 à 3 km. Il y a deux tennis, une bibliothèque, des commerces, deux boulangeries, trois boucheries-charcuteries, une épicerie et un bureau de poste à quelques minutes.Son prix de vente est de 424 000 €.Contactez notre agence (HALFTERMEYER Marie : (Numéro supprimé)) pour toute information sur la maison. Faites de vos projets immobiliers une réalité avec Maisons France Confort Béthune.
Sailly-sur-la-Lys
TERRAIN ET MAISONMaison de 7 pièces (137 m²) en vente à Sailly-sur-la-LysIDÉALEMENT SITUÉE – MAISON 7 PIÈCES NEUVEEn vente : à quelques kilomètres de la Belgique et à quelques kilomètres de Lille, Maisons France Confort Béthune vous propose, idéalement située dans Sailly-sur-la-Lys (62840), cette maison de 7 pièces de 137 m². Elle propose quatre chambres, une cuisine et deux salles de bains.Le terrain de la maison est de 517 m².Cette maison comporte 2 niveaux. Elle est neuve.Elle se trouve dans un quartier recherché. Il y a l’École Primaire Privée Sacré-Coeur et l’École Élémentaire George Sand à moins de 10 minutes à pied et une crèche. Niveau transports en commun, on trouve quatre gares à moins de 10 minutes en voiture. L’autoroute A25 est accessible à 6 km. Il y a un tennis, trois commerces, un supermarché et un bureau de poste dans les environs.Son prix de vente est de 351 000 €.Prenez contact avec Marie HALFTERMEYER ((Numéro supprimé)) pour toute question sur la maison, sur les démarches à suivre ou sur les modalités de vente.
L’actualité immobilière à Steenwerck
27/11/2023
02/11/2023
30/10/2023
20/10/2023
16/10/2023
16/10/2023