Maison à construire à Thumeries (59239)
Images
Description
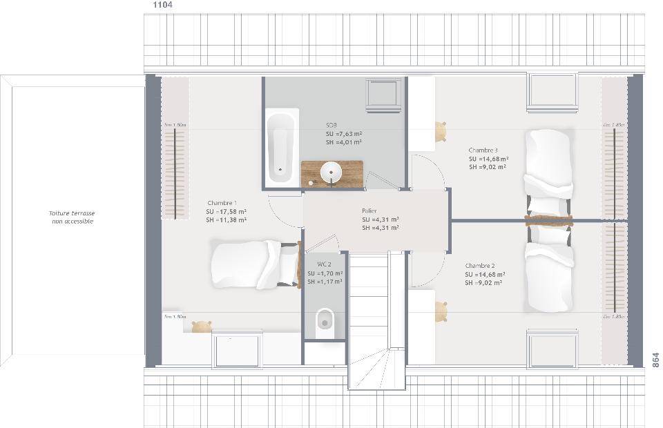
🏡 Thumeries - Maison T6 neuve à construire (115 m²)
🌿 À 20 min de Lille - Terrain 462 m² - 🛏️ 4 chambres - 🛁 2 salles de bains
Envie d'espace et de confort ? Découvrez ce projet de maison neuve à construire à Thumeries (59239), dans un cadre paisible et recherché à deux pas de Lille !
Avec ses 4 chambres, 2 salles de bains, une grande pièce de vie lumineuse et une cuisine à aménager, cette maison de 115 m² allie design et praticité.
Le terrain de 462 m² offre un bel espace extérieur, parfait pour profiter des beaux jours.
À proximité : écoles, gares, autoroutes A1/A21, boulangeries, commerces, tennis et bureau de poste.
💰 319 000 €
📞 Cédric CORONA - (Numéro supprimé)
✨ Maisons France Confort Lille - Donnez vie à votre projet de maison sur mesure !
Annonce proposée par un Agent Commercial Partenaire.
Logement susceptibles de vous intéresser
Nous vous proposons de découvrir aussi cette sélection de logements situés à moins de 10km de Thumeries et qui seraient susceptibles de vous intéresser.
Roost-Warendin
TERRAIN ET MAISONÀ Vendre : Maison neuve 4 pièces – 78 m² à Roost-Warendin (59286)Proche de LilleMaisons France Confort Lille vous propose cette maison neuve sur deux niveaux de 78 m², implantée sur un terrain de 430 m², idéale pour un projet familial proche de toutes commodités.🏡 Description du bienCette maison moderne comprend :3 chambres confortablesUne cuisine aménageable selon vos enviesUne salle de bainsAgencement sur 2 niveaux, optimisé pour le confort et la luminosité🎯 Maison neuve – parfaite pour un premier achat ou une famille à la recherche d’un logement fonctionnel et moderne.📍 Un emplacement pratiqueÀ proximité immédiate :École Primaire du Centre-Salengro et Collège Docteur Ernest Schaffner (moins de 10 minutes à pied)9 gares accessibles en moins de 10 minutes en voitureAccès rapide aux autoroutes A21 et A1 (moins de 8 km)Commerces et services : 4 commerces, 3 boulangeries, supermarché, boucherie-charcuterie, bureau de poste💰 Prix de vente : 262 500 €📞 Contact : David CHAMBAULT – (Numéro supprimé)Pour plus d’informations sur cette maison ou sur les démarches de vente, contactez notre agence.Maisons France Confort Lille – Votre partenaire pour réaliser votre projet immobilier.
Évin-Malmaison
TERRAIN ET MAISONÀ VENDRE : Maison neuve T5 – 90 m²Évin-Malmaison (62141) – Proche LilleSituée à quelques kilomètres de Lille, découvrez cette maison neuve de plain-pied de 90 m², parfaitement adaptée pour une famille souhaitant allier confort moderne, espace et tranquillité.Caractéristiques du bienSurface habitable : 90 m²Surface du terrain : 1 700 m²Maison neuve, de plain-pied3 chambresCuisine (selon vos aménagements)Salle de bainsUn environnement pratique et agréableÉcoles à moins de 10 minutes à pied : Méresse-Ségard, Léon Blum, Françoise DoltoTransports : 9 gares accessibles en moins de 10 minutes en voitureAccès rapides : autoroutes A1 et A21 à moins de 4 kmCommodités à proximité : boulangerie, commerce, supérette, poissonnerie, bureau de poste, tennis…Prix de vente💰 266 300 €Pour obtenir plus d’informations, échanger sur votre projet ou connaître les démarches à suivre, contactez :📞 David CHAMBAULT – (Numéro supprimé)Votre conseiller Maisons France Confort Lille.
Râches
TERRAIN ET MAISONMaison neuve 4 pièces – 50 m² à Râches (59194)Proche de LilleÀ Râches, à quelques kilomètres de Lille et à moins de 21 km de la Belgique, découvrez cette maison 4 pièces de 50 m² sur un terrain de 417 m², idéale pour un premier achat ou un investissement. Conçue de plain-pied, elle allie confort et fonctionnalité.Caractéristiques du bien :Surface habitable : 50 m²2 chambresCuisine à aménager selon vos enviesSalle de bainsTerrain de 417 m²Environnement et commodités :Écoles à proximité : École Élémentaire Suzanne Lanoy et École Maternelle Françoise Dolto (moins de 10 min à pied)6 gares accessibles en moins de 10 min en voitureAccès rapide aux autoroutes A21 et A23 (moins de 9 km)Commerces à proximité : boulangerie, 2 supermarchés, 3 commerces, poissonnerie et bureau de postePrix de vente : 207 500 €Pour toute information, organiser une visite ou connaître les démarches à suivre :David CHAMBAULT – (Numéro supprimé)Maisons France Confort Lille vous accompagne à toutes les étapes de votre projet immobilier.
Moncheaux
TERRAIN ET MAISONMoncheaux – Maison 5 pièces (90 m²)Prix : 345 600 €Surface maison : 90 m²Surface terrain : 1 010 m²Niveaux : plain-piedDescription :Maison neuve de plain-pied avec trois chambres, une cuisine et une salle de bains.Environnement et commodités :Écoles : École primaire dans le quartierTransports : 9 gares à moins de 10 minutes en voitureAccès routier : Autoroutes A21, A1 et A23 à moins de 10 kmCommodités : Bibliothèque, commerce, boulangerie, deux boucheries-charcuteries à proximitéContact :David CHAMBAULT – (Numéro supprimé)Maisons France Confort Lille vous accompagne à toutes les étapes de votre projet immobilier.
Auby
TERRAIN ET MAISONÀ vendre : Maison neuve 4 pièces – 92 m² à Auby (59950)Proche de Lille et à 28 km de la BelgiqueDécouvrez cette maison de plain-pied neuve de 92 m², construite sur un terrain de 555 m², idéale pour accueillir votre famille dans un cadre pratique et agréable.🏡 Description du bien3 chambres lumineusesCuisine aménageable selon vos enviesSalle de bains moderneAgencement optimisé de plain-pied pour un confort quotidien📍 Emplacement et commoditésÉcoles de tous niveaux (maternelle au lycée) à moins de 10 minutes à pied10 gares accessibles en moins de 10 minutes en voitureAccès rapide aux autoroutes A21 et A1 (moins de 5 km)Commerces et services à proximité : bassin de natation, bibliothèque, 2 tennis, 3 commerces, 2 boulangeries, 3 épiceries, supermarché, bureau de posteMarché local tous les mercredis matin sur la Place de la République💰 Prix : 243 900 €📞 Contact : David CHAMBAULT – (Numéro supprimé)Pour toute information ou pour organiser une visite, contactez notre agence.Maisons France Confort Lille – Votre partenaire pour concrétiser vos projets immobiliers.
Ennevelin
TERRAIN ET MAISONEnnevelin – Maison T4 (92 m²) à vendre – Proche de LilleDavid CHAMBAULT – (Numéro supprimé)À vendre : maison neuve de plain-pied de 92 m² à Ennevelin (59710), à quelques kilomètres seulement de Lille. Idéale pour une famille, cette maison lumineuse et fonctionnelle vous séduira dès le premier regard.Caractéristiques :Surface habitable : 92 m² avec 3 chambres, une cuisine et une salle de bainsTerrain : 533 m², parfait pour profiter d’un extérieur agréableMaison neuve, prête à accueillir ses premiers habitantsAtouts du quartier :Écoles et structures d’accueil pour la petite enfance à moins de 10 minutes à pied (École Primaire Daniel Devendeville)Transports : 16 gares accessibles en moins de 10 minutes en voiture, autoroutes et nationales N227 et N356 à proximitéCommerces et services à quelques minutes : bibliothèque, boulangerie et trois commercesPrix de vente : 384 700 €Pour plus d’informations ou organiser une visite, contactez David CHAMBAULT au (Numéro supprimé).Maisons France Confort Lille vous accompagne à toutes les étapes de votre projet immobilier.
Wahagnies
TERRAIN ET MAISONÀ VENDRE : Maison neuve 5 pièces – 101 m²Wahagnies (59261) – Proche Lille et frontière belgeÀ quelques kilomètres de Lille et proche de la frontière belge, découvrez cette maison neuve de plain-pied de 101 m², édifiée sur un terrain de 525 m² à Wahagnies. Un bien idéal pour une famille souhaitant confort, modernité et proximité des commodités.Description du bienSurface habitable : 101 m²Terrain : 525 m²Maison neuve, de plain-pied4 chambresCuisine (à aménager selon vos besoins)Salle de bainsEnvironnement et proximitéÉcoles à moins de 10 minutes à pied : Jules Ferry, Suzanne Buisson, École alternative l’EnvolTransports : 9 gares accessibles en moins de 10 minutes en voitureAxes routiers rapides : autoroutes A1 et A21 à moins de 7 kmCommodités à proximité : bibliothèque, deux boulangeries, commerces, épicerie, bureau de poste…Prix de vente💰 312 600 €Pour plus d’informations ou pour échanger sur votre projet, contactez :📞 CHAMBAULT David – (Numéro supprimé)
Faumont
TERRAIN ET MAISONFaumont – Maison T4 (82 m²)Prix : 317 240 €Surface habitable : 82 m²Terrain : 515 m²Type : 2 niveaux, neuveIntérieur :3 chambresCuisineSalle de bainsEnvironnement et commodités :École : École Primaire Publique Marceline Desbordes ValmoreTransports : 7 gares à moins de 10 minutes en voitureAccès routier : Autoroutes A21 et A23 à moins de 7 kmCommodités : Bibliothèque, boulangerie, boucherie-charcuterie à proximitéContact :David CHAMBAULT – (Numéro supprimé)Maisons France Confort Lille accompagne à toutes les étapes de l’achat et de votre projet immobilier.
Moncheaux
TERRAIN ET MAISONMaison neuve 8 pièces – 145 m² à Moncheaux (59283)À seulement quelques kilomètres de LilleDécouvrez cette grande maison familiale neuve de 145 m² située à Moncheaux, dans un environnement paisible et recherché. Avec ses 8 pièces et son terrain de 1 000 m², elle offre des volumes généreux et un confort de vie idéal pour les grandes familles.Caractéristiques du bien :Maison neuve – 2 niveauxSurface habitable : 145 m²6 chambres spacieusesCuisine à aménager selon vos enviesDeux salles de bainsTerrain de 1 000 m², parfait pour profiter de l’extérieurEnvironnement & commodités :École primaire à proximité9 gares accessibles en moins de 10 minutes en voitureAccès rapide aux autoroutes A1, A21 et A23Commerces à proximité : bibliothèque, boulangerie, commerce, boucheries-charcuteriesPrix de vente : 415 230 €Pour toute information complémentaire ou pour organiser une visite, contactez :David CHAMBAULT – (Numéro supprimé)Maisons France Confort Lille vous accompagne dans toutes les étapes de votre projet immobilier.
L’actualité immobilière à Thumeries
27/11/2023
02/11/2023
30/10/2023
20/10/2023
16/10/2023
16/10/2023