Maison à construire à Wallers (59135)
Images
Description
EMPLACEMENT PRIVILÉGIÉ - MAISON NEUVE A CONSTRUIRE
VOTRE CONSEILLER : Maxime KENNEDY - (Numéro supprimé)
Venez découvrir votre future maison neuve sur la commune de Wallers.
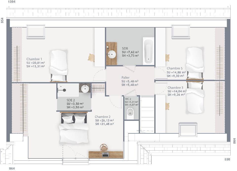
Il s'agit d'une maison de 6 pièces à comble aménagé, d'une surface habitable de 145,5 m².
Construction conforme aux dernières normes RE2020 (basse consommation) sur une base de mur composite (mur en bio bric de 20 cm + vide d'air + briques moulées-mains).
Mode de chauffage dernière génération via pompe à chaleur air / eau sur plancher chauffant rez-de-chaussée et radiateurs à l'étage.
Plans sur mesures et modifiables à la demande.
Cette maison dispose de cinq chambres dont une suite parentale au rez-de-chaussée, d'un espace de vie ouvert lumineux de 54 m² et d'un garage intégré de 19,3 m² avec un cellier attenant.
Garanties et assurances obligatoires incluses (voir détails en agence).
Hors raccordements, hors branchements, hors frais de notaire sur le terrain.
Terrain sélectionné et vu pour vous sous réserve de disponibilité et au prix indiqué par notre partenaire foncier.
La maison est située dans un quartier recherché proche de Saint-amand-les-Eaux, Valenciennes, Warlaing, Marchiennes, Hérin, Hélesmes, Wandignies-Hamage, etc
A proximité des écoles et commerces de proximités.
Son prix de vente est de 359 800 €.
Contactez Maxime Kennedy ((Numéro supprimé)) pour toute information sur ce projet.
Pourquoi faire confiance à Maisons France confort ?
Maisons France Confort c'est le numéro 1 en France de la construction de maisons individuelles avec nos maisons personnalisables et qui s'adaptent à chaque budget.
C'est un accompagnement personnel dans toutes les démarches et étapes de votre projet immobilier (terrain, maison et financement entre autres).
Ensemble, construisons la maison qui vous ressemble !
Annonce proposée par un Agent Commercial Partenaire.
Logement susceptibles de vous intéresser
Nous vous proposons de découvrir aussi cette sélection de logements situés à moins de 10km de Wallers et qui seraient susceptibles de vous intéresser.
Wandignies-Hamage
TERRAIN ET MAISONÀ Vendre : Maison neuve F5 – 90 m² à Wandignies-Hamage (59870)Proche de Villeneuve-d’Ascq et à moins de 12 km de la frontière belgeNous vous proposons cette maison neuve de plain-pied de 90 m², édifiée sur un terrain de 400 m², idéalement située dans un quartier calme et familial de Wandignies-Hamage.🏡 Description du bienCette maison moderne et fonctionnelle se compose de :3 chambres confortablesUne cuisine aménageable selon vos enviesUne salle de bainsUn agencement de plain-pied, pratique et agréable au quotidienPièces lumineuses et espaces optimisés🎯 Maison neuve – parfaite pour une famille ou un premier achat.📍 Un environnement pratique et agréableÀ proximité directe :École primaire dans le quartier7 gares à moins de 10 minutes en voitureAccès facile aux autoroutes A21 et A23 (moins de 6 km)Un commerce, deux boulangeries et services de proximité💰 Prix de vente : 272 300 €📞 Contact : David CHAMBAULT – (Numéro supprimé)Pour plus de renseignements sur la maison ou les modalités de vente, contactez notre agence.
Marchiennes
TERRAIN ET MAISONMarchiennes – Maison F5 (90 m²) à vendreMaison 5 pièces neuve – Proche de LilleÀ vendre : à quelques kilomètres de Lille et de la Belgique, découvrez cette maison de plain-pied de 90 m² située sur un terrain spacieux de 1 940 m² à Marchiennes (59870). Idéale pour accueillir une famille, elle se compose de trois chambres, d’une cuisine et d’une salle de bains. La maison est neuve et prête à vivre.Atouts du bien et environnement :Écoles et enseignement : École Primaire Privée Sainte Thérèse, École Élémentaire Georges Brassens, École Maternelle Françoise Dolto et Collège Marguerite Yourcenar à moins de 10 minutes à piedTransports et accessibilité : six gares à moins de 10 minutes en voiture, accès rapide aux autoroutes A21 et A23Commodités et loisirs : tennis, commerces, supermarché, boulangerie, boucherie-charcuterie, bureau de poste et marché Grand Place chaque samedi matinTerrain généreux : 1 940 m² pour profiter d’un grand jardin, créer une terrasse ou aménager des espaces extérieursPrix de vente : 325 600 €Pour plus d’informations ou organiser une visite, contactez David CHAMBAULT au (Numéro supprimé).Maisons France Confort Lille vous accompagne à toutes les étapes de votre projet immobilier.
La Sentinelle
TERRAIN ET MAISONEMPLACEMENT PRIVILÉGIÉ – MAISON NEUVE CONTEMPORAINE A CONSTRUIRE VOTRE CONSEILLER : Maxime KENNEDY – (Numéro supprimé)Venez découvrir votre future maison neuve sur la commune de La Sentinelle. Il s’agit d’une maison de 5 pièces avec de très beaux volumes (surface habitable de 110 m² + 17 m² de garage). Cette maison contemporaine en combles aménagés avec son outeau en façade avant lui assure un style actuel et contemporain. Elle dispose également de quatre chambres, d’un grand espace de vie de plus de 50 m² lumineux et ouvert, d’un garage intégré de 17 m² avec un cellier attenant. Construction conforme aux dernières normes RE2020 (basse consommation) sur une base de mur composite (bio’bric, vide d’air et briques moulées-mains de 11 cm).Mode de chauffage dernière génération via pompe à chaleur air / eau sur plancher chauffant rez-de-chaussée et radiateurs à l’étage. Plans sur mesures et modifiables à la demande. Garanties et assurances obligatoires incluses (voir détails en agence). Hors raccordements, hors branchements, hors frais de notaire sur le terrain. Terrain sélectionné et vu pour vous sous réserve de disponibilité et au prix indiqué par notre partenaire foncier. La maison est située dans un quartier recherché proche de Valenciennes, Hérin, Aubry-du-Hainaut, Oisy, Trith-Saint-Léger, Petite-Forêt, Prouvy, Rouvignies, Maing, Famars, etcA proximité des écoles et commerces.Son prix de vente est de 293 220 €.Contactez Maxime Kennedy ((Numéro supprimé)) pour toute information sur ce projet. Pourquoi faire confiance à Maisons France confort ? Maisons France Confort c’est le numéro 1 en France de la construction de maisons individuelles avec nos maisons personnalisables et qui s’adaptent à chaque budget. C’est un accompagnement personnel dans toutes les démarches et étapes de votre projet immobilier (terrain, maison et financement entre autres). Ensemble, construisons la maison qui vous ressemble !Annonce proposée par un Agent
La Sentinelle
TERRAIN ET MAISONLA SENTIENNELLE, Le Vignoble ! Venez découvrir ce magnifique projet immobilier à 3KM du centre ville de Valenciennes. Cette maison neuve de quatre chambres au nouvelle norme RE2020 sera vous séduire avec ses volumes et son architecture moderne. Soyez le premier à saisir cette opportunité dans un quartier hyper recherché. Comment ? En contactant sans attendre notre chargé d’études monsieur Smolarek Christian au (Numéro supprimé) 7JOURS/7.Il se fera un plaisir de réaliser la faisabilité de votre projet , en vous proposant une maison individuelle sur mesure afin de répondre à vos attentes et à vos envies, de plus, une réduction sur le prix du terrain de 4000 euros sera offerte au 7 premiers clients !
La Sentinelle
TERRAIN ET MAISONEMPLACEMENT PRIVILÉGIÉ – MAISON NEUVE A CONSTRUIRE VOTRE CONSEILLER : Maxime KENNEDY – (Numéro supprimé)Venez découvrir votre future maison neuve sur la commune de La Sentinelle. Il s’agit d’une maison de 5 pièces type R+1 d’une surface habitable de 124 m² + 15 m² de garage. Cette maison contemporaine en R+1 dispose d’un garage intégré avec une avancée en toit plat et un auvent au-dessus de la porte d’entrée. Elle dispose également de quatre chambres, d’un grand espace de vie de lumineux et ouvert. Construction conforme aux dernières normes RE2020 (basse consommation) sur une base de mur composite (mur en bio bric de 20 cm + vide d’air + briques moulées-mains).Mode de chauffage dernière génération via pompe à chaleur air / eau sur plancher chauffant rez-de-chaussée et radiateurs à l’étage. Plans sur mesures et modifiables à la demande. Garanties et assurances obligatoires incluses (voir détails en agence). Hors raccordements, hors branchements, hors frais de notaire sur le terrain. Terrain sélectionné et vu pour vous sous réserve de disponibilité et au prix indiqué par notre partenaire foncier. La maison est située dans un quartier recherché proche de Valenciennes, Hérin, Aubry-du-Hainaut, Oisy, Trith-Saint-Léger, Petite-Forêt, Prouvy, Rouvignies, Maing, Famars, etcA proximité des écoles et commerces de proximités.Son prix de vente est de 351 300 €.Contactez Maxime Kennedy ((Numéro supprimé)) pour toute information sur ce projet. Pourquoi faire confiance à Maisons France confort ? Maisons France Confort c’est le numéro 1 en France de la construction de maisons individuelles avec nos maisons personnalisables et qui s’adaptent à chaque budget. C’est un accompagnement personnel dans toutes les démarches et étapes de votre projet immobilier (terrain, maison et financement entre autres). Ensemble, construisons la maison qui vous ressemble !Annonce proposée par un Agent Commercial Partenaire.
La Sentinelle
TERRAIN ET MAISONEMPLACEMENT PRIVILÉGIÉ – MAISON NEUVE DE PLAIN-PIED A CONSTRUIRE VOTRE CONSEILLER : Maxime KENNEDY – (Numéro supprimé)Venez découvrir votre future maison neuve sur la commune de La Sentinelle. Il s’agit d’une maison de 4 pièces de plain-pied contemporaine en toiture 4 pans, d’une surface de 93 m². Cette maison dispose de trois chambres, d’un espace de vie ouvert et lumineux, d’une salle de bains, d’un cellier et d’une salle de bains. Construction conforme aux dernières normes RE2020 (basse consommation) sur une base de mur en biobric revêtu d’un enduit (avec bichromie ou non) selon la couleur souhaitée. Mode de chauffage dernière génération via pompe à chaleur air / air type RIBO (meilleur confort l’hiver comme l’été). Plans sur mesures et modifiables à la demande. Garanties et assurances obligatoires incluses (voir détails en agence). Hors raccordements, hors branchements, hors frais de notaire sur le terrain. Terrain sélectionné et vu pour vous sous réserve de disponibilité et au prix indiqué par notre partenaire foncier. La maison est située dans un quartier recherché proche de Valenciennes, Hérin, Aubry-du-Hainaut, Oisy, Trith-Saint-Léger, Petite-Forêt, Prouvy, Rouvignies, Maing, Famars, etcA proximité des écoles et commerces de proximités.Son prix de vente est de 231 450 €.Contactez Maxime Kennedy ((Numéro supprimé)) pour toute information sur cette maison. Pourquoi faire confiance à Maisons France confort ? Maisons France Confort c’est le numéro 1 en France de la construction de maisons individuelles avec nos maisons personnalisables et qui s’adaptent à chaque budget. C’est un accompagnement personnel dans toutes les démarches et étapes de votre projet immobilier (terrain, maison et financement entre autres). Ensemble, construisons la maison qui vous ressemble !Annonce proposée par un Agent Commercial Partenaire.
Marchiennes
TERRAIN ET MAISONMarchiennes – Maison F4 (85 m²) à vendreMaison 4 pièces neuve – Proche de LilleÀ vendre : à seulement 13 km de la frontière belge et à quelques minutes de Lille, découvrez cette maison de plain-pied de 85 m² à Marchiennes (59870). Conçue pour une vie familiale confortable, elle se compose de trois chambres, d’une cuisine et d’une salle de bains, sur un terrain spacieux de 1 940 m², offrant de belles perspectives d’aménagement extérieur. La maison est neuve et prête à accueillir ses futurs propriétaires.Points forts et environnement :Écoles à proximité : École Primaire Privée Sainte Thérèse, École Élémentaire Georges Brassens, École Maternelle Françoise Dolto et Collège Marguerite Yourcenar à moins de 10 minutes à piedTransports et accessibilité : six gares à moins de 10 minutes en voiture, accès rapide aux autoroutes A21 et A23Commodités et loisirs : tennis, commerces, supermarché, boulangerie, boucherie-charcuterie, bureau de poste, et marché Grand Place tous les samedis matinTerrain généreux : 1 940 m² pour un jardin, une terrasse ou un espace de jeux pour enfantsPrix de vente : 295 000 €Pour plus d’informations ou pour organiser une visite, contactez David CHAMBAULT au (Numéro supprimé).Maisons France Confort Lille vous accompagne à chaque étape de votre projet immobilier.
La Sentinelle
TERRAINTerrain de 430 m² à vendre à La SentinelleEMPLACEMENT PRIVILÉGIÉ – VUE PANORAMIQUEÀ La Sentinelle (59174) à 18 km de la frontière belge et à 3 km de Valenciennes, donnez vie à votre projet de construction sur ce terrain de 430 m². Ce terrain, orienté plein sud-ouest, profite d’une vue panoramique. Il se situe dans un secteur recherché. L’École Élémentaire Joliot-Curie et l’École Maternelle Paul Langevin se trouvent à moins de 10 minutes à pied. Côté transports, il y a huit gares à moins de 10 minutes en voiture. L’autoroute A23 est accessible à 1 km. On trouve une bibliothèque, un tennis, un supermarché, des commerces, deux boulangeries, une supérette et un bureau de poste à proximité.Son prix de vente est de 88 300 €. Contactez notre agence (Christian SMOLAREK : (Numéro supprimé)) pour tout renseignement sur ce terrain. Concrétisez vos projets immobiliers avec Maisons France Confort Valenciennes.
Marchiennes
TERRAIN ET MAISONoucourt – Maison 4 pièces à vendre (85 m²)Maison neuve – Proche de Valenciennes et de la BelgiqueÀ vendre : maison de plain-pied de 4 pièces et 85 m² à Roucourt (59169), sur un terrain de 527 m². Cette maison neuve se compose de trois chambres, d’une cuisine et d’une salle de bains.Points forts :Emplacement idéal : à 27 km de Valenciennes et proche de la frontière belgeÉducation : école primaire à proximitéTransports : 11 gares accessibles en moins de 10 minutes en voiture, accès rapide à l’autoroute A21 (6 km)Commodités : bibliothèque dans le quartierPrix de vente : 254 800 €Pour plus d’informations ou pour visiter la maison, contactez David CHAMBAULT au (Numéro supprimé).Maisons France Confort Lille vous accompagne à toutes les étapes de votre projet immobilier.
L’actualité immobilière à Wallers
27/11/2023
02/11/2023
30/10/2023
20/10/2023
16/10/2023
16/10/2023