Maison 130 m² avec terrain à ARSY (60)
Images
Description
Réalisez votre projet de construction de maison RE 2020 avec PAVILLONS D'ÎLE-DE-FRANCE (constructeur de maisons de gamme et sur-mesure depuis plus de 50 ans) :
- Plan sur-mesure et personnalisé de 2 à 5 chambres
- Mode de chauffage au choix
- Grands choix d'équipements et de prestations
- Matériaux de qualité selon les normes en vigueur
- Accompagnement dans le choix et l’acquisition du terrain
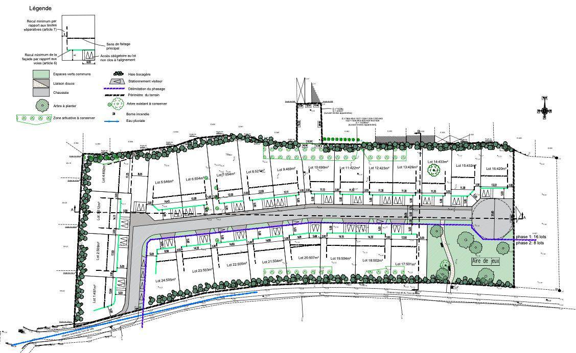
Informations du terrain : Nouveauté à ARSY !!
Lotissement de 24 lots, allant de 432m2 à 930m2, totalement plat et viabilisés !
Le lancement de ce lotissement se fera en deux tranches, une première de 16 lots et une seconde de 8 lots.
Situé à 500m de l'école maternelle - primaire / 10min de Compiègne / 35min de Charles de Gaulle
Aucune imposition lourdes sont prévues sur ce lotissement (R+1 acceptés, couleurs des tuiles au choix, modèle 2 ou 4 pentes, toit plat, menuiseries au choix ...)
Ne tardez plus, réservez votre terrain !!
Demandez une étude gratuite et personnalisée de votre projet de construction !
Contactez Adil DAHMANE au (Numéro supprimé) (Pavillons d'Île-de-France - Agence de Cauffry).
Prix avec assurance dommages-ouvrage comprise, hors VRD, terrain viabilisé, assainissement compris, frais de notaire non compris, taxes non comprises, frais divers non compris. Terrain sélectionné et vu pour vous sous réserve de disponibilité et au prix indiqué par notre partenaire foncier. Visuels non contractuels.
Cette annonce a été créée et diffusée avec le logiciel VITAHOME.
Logement susceptibles de vous intéresser
Nous vous proposons de découvrir aussi cette sélection de logements situés à moins de 10km de Arsy et qui seraient susceptibles de vous intéresser.

Arsy
TERRAIN ET MAISONRéalisez votre projet de construction de maison RE 2020 avec PAVILLONS D'ÎLE-DE-FRANCE (constructeur de maisons de gamme et sur-mesure depuis plus de 50 ans) :- Plan sur-mesure et personnalisé de 2 à 5 chambres- Mode de chauffage au choix- Grands choix d'équipements et de prestations- Matériaux de qualité selon les normes en vigueur- Accompagnement dans le choix et l’acquisition du terrainInformations du terrain : Nouveauté à ARSY !! Lotissement de 24 lots, allant de 432m2 à 930m2, totalement plat et viabilisés ! Le lancement de ce lotissement se fera en deux tranches, une première de 16 lots et une seconde de 8 lots. Situé à 500m de l'école maternelle – primaire / 10min de Compiègne / 35min de Charles de GaulleAucune imposition lourdes sont prévues sur ce lotissement (R+1 acceptés, couleurs des tuiles au choix, modèle 2 ou 4 pentes, toit plat, menuiseries au choix …) Ne tardez plus, réservez votre terrain !!Demandez une étude gratuite et personnalisée de votre projet de construction !Contactez Adil DAHMANE au (Numéro supprimé) ou au (Numéro supprimé) (Pavillons d'Île-de-France – Agence de Cauffry).Prix avec assurance dommages-ouvrage comprise, hors VRD, terrain viabilisé, assainissement compris, frais de notaire non compris, taxes non comprises, frais divers non compris. Terrain sélectionné et vu pour vous sous réserve de disponibilité et au prix indiqué par notre partenaire foncier. Visuels non contractuels.Cette annonce a été créée et diffusée avec le logiciel VITAHOME.

Arsy
TERRAIN ET MAISONRéalisez votre projet de construction de maison RE 2020 avec PAVILLONS D'ÎLE-DE-FRANCE (constructeur de maisons de gamme et sur-mesure depuis plus de 50 ans) :- Plan sur-mesure et personnalisé de 2 à 5 chambres- Mode de chauffage au choix- Grands choix d'équipements et de prestations- Matériaux de qualité selon les normes en vigueur- Accompagnement dans le choix et l’acquisition du terrainInformations du terrain : Nouveauté à ARSY !! Lotissement de 24 lots, allant de 432m2 à 930m2, totalement plat et viabilisés ! Le lancement de ce lotissement se fera en deux tranches, une première de 16 lots et une seconde de 8 lots. Situé à 500m de l'école maternelle – primaire / 10min de Compiègne / 35min de Charles de GaulleAucune imposition lourdes sont prévues sur ce lotissement (R+1 acceptés, couleurs des tuiles au choix, modèle 2 ou 4 pentes, toit plat, menuiseries au choix …) Ne tardez plus, réservez votre terrain !!Demandez une étude gratuite et personnalisée de votre projet de construction !Contactez Adil DAHMANE au (Numéro supprimé) ou au (Numéro supprimé) (Pavillons d'Île-de-France – Agence de Cauffry).Prix avec assurance dommages-ouvrage comprise, hors VRD, terrain viabilisé, assainissement compris, frais de notaire non compris, taxes non comprises, frais divers non compris. Terrain sélectionné et vu pour vous sous réserve de disponibilité et au prix indiqué par notre partenaire foncier. Visuels non contractuels.Cette annonce a été créée et diffusée avec le logiciel VITAHOME.

Arsy
TERRAIN ET MAISONRéalisez votre projet de construction de maison RE 2020 avec PAVILLONS D'ÎLE-DE-FRANCE (constructeur de maisons de gamme et sur-mesure depuis plus de 50 ans) :- Plan sur-mesure et personnalisé de 2 à 5 chambres- Mode de chauffage au choix- Grands choix d'équipements et de prestations- Matériaux de qualité selon les normes en vigueur- Accompagnement dans le choix et l’acquisition du terrainInformations du terrain : Nouveauté à ARSY !! Lotissement de 24 lots, allant de 432m2 à 930m2, totalement plat et viabilisés ! Le lancement de ce lotissement se fera en deux tranches, une première de 16 lots et une seconde de 8 lots. Situé à 500m de l'école maternelle – primaire / 10min de Compiègne / 35min de Charles de GaulleAucune imposition lourdes sont prévues sur ce lotissement (R+1 acceptés, couleurs des tuiles au choix, modèle 2 ou 4 pentes, toit plat, menuiseries au choix …) Ne tardez plus, réservez votre terrain !!Demandez une étude gratuite et personnalisée de votre projet de construction !Contactez Adil DAHMANE au (Numéro supprimé) (Pavillons d'Île-de-France – Agence de Cauffry).Prix avec assurance dommages-ouvrage comprise, hors VRD, terrain viabilisé, assainissement compris, frais de notaire non compris, taxes non comprises, frais divers non compris. Terrain sélectionné et vu pour vous sous réserve de disponibilité et au prix indiqué par notre partenaire foncier. Visuels non contractuels.Cette annonce a été créée et diffusée avec le logiciel VITAHOME.

Arsy
TERRAIN ET MAISONRéalisez votre projet de construction de maison RE 2020 avec PAVILLONS D'ÎLE-DE-FRANCE (constructeur de maisons de gamme et sur-mesure depuis plus de 50 ans) :- Plan sur-mesure et personnalisé de 2 à 5 chambres- Mode de chauffage au choix- Grands choix d'équipements et de prestations- Matériaux de qualité selon les normes en vigueur- Accompagnement dans le choix et l’acquisition du terrainInformations du terrain : Nouveauté à ARSY !! Lotissement de 24 lots, allant de 432m2 à 930m2, totalement plat et viabilisés ! Le lancement de ce lotissement se fera en deux tranches, une première de 16 lots et une seconde de 8 lots. Situé à 500m de l'école maternelle – primaire / 10min de Compiègne / 35min de Charles de GaulleAucune imposition lourdes sont prévues sur ce lotissement (R+1 acceptés, couleurs des tuiles au choix, modèle 2 ou 4 pentes, toit plat, menuiseries au choix …) Ne tardez plus, réservez votre terrain !!Demandez une étude gratuite et personnalisée de votre projet de construction !Contactez Adil DAHMANE au (Numéro supprimé) (Pavillons d'Île-de-France – Agence de Cauffry).Prix avec assurance dommages-ouvrage comprise, hors VRD, terrain viabilisé, assainissement compris, frais de notaire non compris, taxes non comprises, frais divers non compris. Terrain sélectionné et vu pour vous sous réserve de disponibilité et au prix indiqué par notre partenaire foncier. Visuels non contractuels.Cette annonce a été créée et diffusée avec le logiciel VITAHOME.

Arsy
TERRAIN ET MAISONRéalisez votre projet de construction de maison RE 2020 avec PAVILLONS D'ÎLE-DE-FRANCE (constructeur de maisons de gamme et sur-mesure depuis plus de 50 ans) :- Plan sur-mesure et personnalisé de 2 à 5 chambres- Mode de chauffage au choix- Grands choix d'équipements et de prestations- Matériaux de qualité selon les normes en vigueur- Accompagnement dans le choix et l’acquisition du terrainInformations du terrain : Nouveauté à ARSY !! Lotissement de 24 lots, allant de 432m2 à 930m2, totalement plat et viabilisés ! Le lancement de ce lotissement se fera en deux tranches, une première de 16 lots et une seconde de 8 lots. Situé à 500m de l'école maternelle – primaire / 10min de Compiègne / 35min de Charles de GaulleAucune imposition lourdes sont prévues sur ce lotissement (R+1 acceptés, couleurs des tuiles au choix, modèle 2 ou 4 pentes, toit plat, menuiseries au choix …) Ne tardez plus, réservez votre terrain !!Demandez une étude gratuite et personnalisée de votre projet de construction !Contactez Adil DAHMANE au (Numéro supprimé) (Pavillons d'Île-de-France – Agence de Cauffry).Prix avec assurance dommages-ouvrage comprise, hors VRD, terrain viabilisé, assainissement compris, frais de notaire non compris, taxes non comprises, frais divers non compris. Terrain sélectionné et vu pour vous sous réserve de disponibilité et au prix indiqué par notre partenaire foncier. Visuels non contractuels.Cette annonce a été créée et diffusée avec le logiciel VITAHOME.

Arsy
TERRAIN ET MAISONRéalisez votre projet de construction de maison RE 2020 avec PAVILLONS D'ÎLE-DE-FRANCE (constructeur de maisons de gamme et sur-mesure depuis plus de 50 ans) :- Plan sur-mesure et personnalisé de 2 à 5 chambres- Mode de chauffage au choix- Grands choix d'équipements et de prestations- Matériaux de qualité selon les normes en vigueur- Accompagnement dans le choix et l’acquisition du terrainInformations du terrain : Nouveauté à ARSY !! Lotissement de 24 lots, allant de 432m2 à 930m2, totalement plat et viabilisés ! Le lancement de ce lotissement se fera en deux tranches, une première de 16 lots et une seconde de 8 lots. Situé à 500m de l'école maternelle – primaire / 10min de Compiègne / 35min de Charles de GaulleAucune imposition lourdes sont prévues sur ce lotissement (R+1 acceptés, couleurs des tuiles au choix, modèle 2 ou 4 pentes, toit plat, menuiseries au choix …) Ne tardez plus, réservez votre terrain !!Demandez une étude gratuite et personnalisée de votre projet de construction !Contactez Adil DAHMANE au (Numéro supprimé) (Pavillons d'Île-de-France – Agence de Cauffry).Prix avec assurance dommages-ouvrage comprise, hors VRD, terrain viabilisé, assainissement compris, frais de notaire non compris, taxes non comprises, frais divers non compris. Terrain sélectionné et vu pour vous sous réserve de disponibilité et au prix indiqué par notre partenaire foncier. Visuels non contractuels.Cette annonce a été créée et diffusée avec le logiciel VITAHOME.

Arsy
TERRAIN ET MAISONRéalisez votre projet de construction de maison RE 2020 avec PAVILLONS D'ÎLE-DE-FRANCE (constructeur de maisons de gamme et sur-mesure depuis plus de 50 ans) :- Plan sur-mesure et personnalisé de 2 à 5 chambres- Mode de chauffage au choix- Grands choix d'équipements et de prestations- Matériaux de qualité selon les normes en vigueur- Accompagnement dans le choix et l’acquisition du terrainInformations du terrain : Nouveauté à ARSY !! Lotissement de 24 lots, allant de 432m2 à 930m2, totalement plat et viabilisés ! Le lancement de ce lotissement se fera en deux tranches, une première de 16 lots et une seconde de 8 lots. Situé à 500m de l'école maternelle – primaire / 10min de Compiègne / 35min de Charles de GaulleAucune imposition lourdes sont prévues sur ce lotissement (R+1 acceptés, couleurs des tuiles au choix, modèle 2 ou 4 pentes, toit plat, menuiseries au choix …) Ne tardez plus, réservez votre terrain !!Demandez une étude gratuite et personnalisée de votre projet de construction !Contactez Adil DAHMANE au (Numéro supprimé) (Pavillons d'Île-de-France – Agence de Cauffry).Prix avec assurance dommages-ouvrage comprise, hors VRD, terrain viabilisé, assainissement compris, frais de notaire non compris, taxes non comprises, frais divers non compris. Terrain sélectionné et vu pour vous sous réserve de disponibilité et au prix indiqué par notre partenaire foncier. Visuels non contractuels.Cette annonce a été créée et diffusée avec le logiciel VITAHOME.

Arsy
TERRAIN ET MAISONRéalisez votre projet de construction de maison RE 2020 avec PAVILLONS D'ÎLE-DE-FRANCE (constructeur de maisons de gamme et sur-mesure depuis plus de 50 ans) :- Plan sur-mesure et personnalisé de 2 à 5 chambres- Mode de chauffage au choix- Grands choix d'équipements et de prestations- Matériaux de qualité selon les normes en vigueur- Accompagnement dans le choix et l’acquisition du terrainInformations du terrain : Nouveauté à ARSY !! Lotissement de 24 lots, allant de 432m2 à 930m2, totalement plat et viabilisés ! Le lancement de ce lotissement se fera en deux tranches, une première de 16 lots et une seconde de 8 lots. Situé à 500m de l'école maternelle – primaire / 10min de Compiègne / 35min de Charles de GaulleAucune imposition lourdes sont prévues sur ce lotissement (R+1 acceptés, couleurs des tuiles au choix, modèle 2 ou 4 pentes, toit plat, menuiseries au choix …) Ne tardez plus, réservez votre terrain !!Demandez une étude gratuite et personnalisée de votre projet de construction !Contactez Adil DAHMANE au (Numéro supprimé) ou au (Numéro supprimé) (Pavillons d'Île-de-France – Agence de Cauffry).Prix avec assurance dommages-ouvrage comprise, hors VRD, terrain viabilisé, assainissement compris, frais de notaire non compris, taxes non comprises, frais divers non compris. Terrain sélectionné et vu pour vous sous réserve de disponibilité et au prix indiqué par notre partenaire foncier. Visuels non contractuels.Cette annonce a été créée et diffusée avec le logiciel VITAHOME.
L’actualité immobilière à Arsy





