Maison à construire à Arsy (60190)
Images
Description
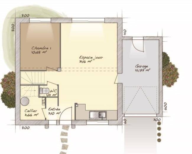
VENTE d'une maison T6 (90 m²) à Arsy
CENTRE-VILLE - MAISON 6 PIÈCES NEUVE
À vendre : à deux pas de Compiègne, Maisons Balency Baillet-en-France vous propose cette maison de 6 pièces de 90 m² et de 435 m² de terrain à Arsy (60190), en centre-ville. Elle compte quatre chambres, une cuisine et une salle de bains.
Cette maison comporte 2 niveaux. Elle est neuve.
L'École Primaire Séraphine Louis se trouve à moins de 10 minutes à pied. Niveau transports, il y a six gares à moins de 10 minutes en voiture. L'autoroute A1 et la nationale N31 sont accessibles à moins de 2 km. On trouve une bibliothèque à quelques minutes.
Son prix de vente est de 236 000 €.
N'hésitez pas à prendre contact avec Théo WIECZOREK (tél : (Numéro supprimé)) pour toute question sur la maison, sur les modalités de vente ou sur les démarches à suivre. Maisons Balency Baillet-en-France est là pour vous accompagner dans tous vos projets immobiliers.
Annonce proposée par un Agent Commercial Partenaire.
Logement susceptibles de vous intéresser
Nous vous proposons de découvrir aussi cette sélection de logements situés à moins de 10km de Arsy et qui seraient susceptibles de vous intéresser.
Le Meux
TERRAINCristina CASALINHO vous propose en exclusivité : Ce terrain VIABILISER, prêt à construire la maison de vos rêve, sur une surface de 1553m² .Il est situé dans la charmante commune de Le Meux en lisière d’une forêt à 15 min de Compiègne.Hors de Bâtiment de FrancePossibilité de construire ce que vous souhaitez.Eau, Electricité, Tout à l’égout: est desserviet connecté par une desserte publique.Il est situé dans une ville de campagne, proche de toute commodités à pied : Ecoles – Médecins – Pharmacie – Restaurants ETC..A 15 min de Compiègne.A10min de la Gare direction PARIS gare du Nord 1heure. Et enfin à 30 min Roissy CDG.Prix de vente : 114.000 euros honoraires charge vendeurMandat N° 411339Pour visiter et vous accompagner dans votre projet, contactez Cristina CASALINHO, au (Numéro supprimé) ou, par courriel à (Email supprimé).Selon l’article L.561.5 du Code Monétaire et Financier, pour l’organisation de la visite, la présentation d’une pièce d’identité vous sera demandée.Cette présente annonce a été rédigée sous la responsabilité éditoriale de Cristina CASALINHO agissant sous le statut d’agent commercial immatriculé au RSAC COMPIEGNE 899 051 452 auprès de SAS PROPRIETES PRIVEES, au capital de 44 920 euros, ZAC LE CHÊNE FERRÉ – 44 ALLÉE DES CINQ CONTINENTS 44120 VERTOU; SIRET 487 624 777 00040, RCS Nantes. Carte Professionnelle Transactions sur immeubles et fonds de commerce (T) et Gestion immobilière (G) n°CPI 4401 2016 000 010 388 délivrée par la CCI Nantes – Saint Nazaire. Compte séquestre n(Numéro supprimé)67 BPA SAINT-SEBASTIEN-SUR-LOIRE (44230). Garantie GALIAN-SMABTP – 89 rue de la Boétie, 75008 Paris – n°28137 J pour 2 000 000 euros pour T et 120 000 euros pour G. Assurance responsabilité civile professionnelle par GALIAN-SMABTP n° de police 28137.JMandat réf :411339 – Le professionnel garantit et sécurise votre projet immobilier. Cristina CASALINHO (EI) Agent Commercial – Numéro RSAC : COMPIEGNE 899 051 452 – .
Moyenneville
TERRAIN ET MAISONSur ce terrain, nous vous proposons cette maison neuve, le modèle Ménilière, une maison plain-pied moderne qui intègre de base un garage et une longue galerie sur la face avant. Avec une surface de 100 m², cette maison dispose de 4 chambres et de 4 pièces, offrant ainsi un espace de vie confortable et fonctionnel pour toute la famille.Véritable « »tout-en-un » » de la maison individuelle, ce modèle est idéal pour votre projet de construction sur-mesure. La Ménilière est disponible avec un toit à 2 pans ou 4 pans, selon vos préférences esthétiques. Le garage intégré et la galerie avant ajoutent une touche pratique et élégante à cette maison.Les options les plus demandées par nos clients, telles que les menuiseries en aluminium et le sous-sol, sont également disponibles pour personnaliser davantage votre future maison. De plus, cette maison neuve est basse consommation et conforme à la réglementation environnementale RE2020, garantissant ainsi des performances énergétiques optimales et un impact environnemental réduit.Le constructeur Babeau-Seguin, reconnu pour offrir le meilleur rapport qualité/prix du marché, vous accompagne dans la réalisation de votre projet immobilier. Avec un prix serré et une personnalisation facile, il n’est pas étonnant que la Ménilière soit dans le top 5 des ventes de Babeau-Seguin.Ne manquez pas cette opportunité unique de devenir propriétaire d’une maison moderne, économe en énergie et parfaitement adaptée à vos besoins. Contactez-nous dès maintenant pour plus d’informations et pour planifier une visite de ce modèle exceptionnel.
Moyenneville
TERRAINÀ la recherche d’un terrain idéal pour concrétiser votre projet de construction de maison ? Ne cherchez plus ! Ce terrain non-viabilisé de 622 m², situé à Moyenneville, est une opportunité rare avec une vue dégagée et un cadre champêtre. Profitez de la tranquillité au calme, sans vis-à-vis, ce qui en fait l’emplacement parfait pour élever votre future demeure. Ne laissez pas passer cette chance exceptionnelle d’acquérir un terrain prometteur dans un cadre idyllique. N’hésitez pas à envisager cette opportunité d’achat unique qui pourrait devenir le lieu de votre futur bonheur ! À noter qu’en tant que constructeur, nous ne sommes pas mandatés pour réaliser la vente de ce terrain.
Chevrières
TERRAINChevrières : terrain de 600 m² en ventePROCHE DE COMPIÈGNEGrand terrain à deux pas de Compiègne. De 600 m², ce terrain se situe dans Chevrières (60710). Le terrain est proche des écoles et des commerces. L’École Primaire Denise Bertin est implantée à moins de 10 minutes à pied. Niveau transports, il y a cinq gares à moins de 10 minutes en voiture. L’autoroute A1 et la nationale N31 sont accessibles à moins de 7 km. On trouve un tennis, une bibliothèque, une boulangerie, une épicerie et un bureau de poste à proximité.Ce terrain est à vendre pour la somme de 72 000 €. Prenez contact avec Antoine FLIPPE ((Numéro supprimé)) pour obtenir de plus amples informations sur le terrain, sur les démarches à suivre ou sur les modalités de vente. Maisons Balency Baillet-en-France vous accompagne à toutes les étapes de l’achat et dans tous vos projets immobiliers.Annonce proposée par un Agent Commercial Partenaire.
Chevrières
TERRAIN ET MAISONVENTE : maison de 6 pièces (109 m²) à ChevrièresMAISON 6 PIÈCES NEUVE – PROCHE DE COMPIÈGNEEn vente : localisée à quelques kilomètres de Compiègne, Maisons Balency Baillet-en-France vous propose cette maison de 6 pièces de 109 m² à Chevrières (60710).Cette maison comporte 2 niveaux. Son intérieur compte quatre chambres, une cuisine et deux salles de bains. La maison est neuve.Le terrain de la propriété est de 600 m².L’École Primaire Denise Bertin est implantée à moins de 10 minutes à pied. Niveau transports en commun, il y a cinq gares à moins de 10 minutes en voiture. L’autoroute A1 et la nationale N31 sont accessibles à moins de 7 km. On trouve un tennis, une bibliothèque, une boulangerie, un bureau de poste et une épicerie dans les environs.Son prix de vente est de 258 000 €.Prenez contact avec notre agence (FLIPPE Antoine : (Numéro supprimé)) pour plus de renseignements sur la maison.Annonce proposée par un Agent Commercial Partenaire.
Chevrières
TERRAIN ET MAISONChevrières : maison de 7 pièces (102 m²) en ventePROCHE DE COMPIÈGNE – MAISON 7 PIÈCES NEUVEÀ vendre : située à 14 km de Compiègne, nous vous présentons à Chevrières (60710), cette maison de 7 pièces de 102 m².Il s’agit d’une maison de 2 niveaux. Son intérieur compte cinq chambres, une cuisine et deux salles de bains. Cette maison est neuve.Le terrain de la propriété s’étend sur 600 m².Il y a l’École Primaire Denise Bertin à moins de 10 minutes à pied. Niveau transports en commun, on trouve cinq gares à moins de 10 minutes en voiture. L’autoroute A1 et la nationale N31 sont accessibles à moins de 7 km. Il y a un tennis, une bibliothèque, une boulangerie, un bureau de poste et une épicerie à proximité du logement.Son prix de vente est de 243 000 €.Contactez notre agence (Antoine FLIPPE : (Numéro supprimé)) pour tout renseignement sur cette maison.Annonce proposée par un Agent Commercial Partenaire.
Houdancourt
TERRAIN ET MAISONRéalisez votre projet de construction de maison RE 2020 avec PAVILLONS D'ÎLE-DE-FRANCE (constructeur de maisons de gamme et sur-mesure depuis plus de 50 ans) :- Plan sur-mesure et personnalisé de 2 à 5 chambres- Mode de chauffage au choix- Grands choix d'équipements et de prestations- Matériaux de qualité selon les normes en vigueur- Accompagnement dans le choix et l’acquisition du terrainDemandez une étude gratuite et personnalisée de votre projet de construction !Contactez Anthony CALMELS au (Numéro supprimé) ou au (Numéro supprimé) (Pavillons d'Île-de-France – Agence de Noyon).Prix avec assurance dommages-ouvrage comprise, hors VRD, terrain viabilisé, assainissement non compris, frais de notaire non compris, taxes non comprises, frais divers non compris. Terrain sélectionné et vu pour vous sous réserve de disponibilité et au prix indiqué par notre partenaire foncier. Visuels non contractuels.Cette annonce a été créée et diffusée avec le logiciel VITAHOME.
Arsy
TERRAINA 10 min de Compiègne (GARE Direct 45 min de Gare du Nord, collège Lycée, centre commercial, commerce, centre Hospitalier).1 km de l'entrée de le A1 35 min de CDG et 45 min Aulnay-Sous-Bois.École primaire à 500 m et commerce (Intermarché etc.. à 3km) du lotissement.Prix : 82900 €.Sur ce terrain, réalisez votre projet de construction de maison RE 2020 avec PAVILLONS D'ÎLE-DE-FRANCE (constructeur de maisons de gamme et sur-mesure depuis plus de 50 ans) :- Plan sur-mesure et personnalisé de 2 à 5 chambres- Mode de chauffage au choix- Grands choix d'équipements et de prestations- Matériaux de qualité selon les normes en vigueur- Accompagnement dans le choix et l’acquisition du terrainDemandez une étude gratuite et personnalisée de votre projet de construction sur ce terrain !Contactez Norbert DE SA au (Numéro supprimé) ou au (Numéro supprimé) (Pavillons d'Île-de-France – Agence de Noyon).Prix hors frais de notaire. Terrain sélectionné et vu pour vous sous réserve de disponibilité et au prix indiqué par notre partenaire foncier. Visuels non contractuels.Cette annonce a été créée et diffusée avec le logiciel VITAHOME.
Arsy
TERRAINA 10 min de Compiègne (GARE Direct 45 min de Gare du Nord, collège Lycée, centre commercial, commerce, centre Hospitalier).1 km de l'entrée de le A1 35 min de CDG et 45 min Aulnay-Sous-Bois.École primaire à 500 m et commerce (Intermarché etc.. à 3km) du lotissement.Prix : 88900 €.Sur ce terrain, réalisez votre projet de construction de maison RE 2020 avec PAVILLONS D'ÎLE-DE-FRANCE (constructeur de maisons de gamme et sur-mesure depuis plus de 50 ans) :- Plan sur-mesure et personnalisé de 2 à 5 chambres- Mode de chauffage au choix- Grands choix d'équipements et de prestations- Matériaux de qualité selon les normes en vigueur- Accompagnement dans le choix et l’acquisition du terrainDemandez une étude gratuite et personnalisée de votre projet de construction sur ce terrain !Contactez Norbert DE SA au (Numéro supprimé) ou au (Numéro supprimé) (Pavillons d'Île-de-France – Agence de Noyon).Prix hors frais de notaire. Terrain sélectionné et vu pour vous sous réserve de disponibilité et au prix indiqué par notre partenaire foncier. Visuels non contractuels.Cette annonce a été créée et diffusée avec le logiciel VITAHOME.
L’actualité immobilière à Arsy
27/11/2023
02/11/2023
30/10/2023
20/10/2023
16/10/2023
16/10/2023