Images
Description
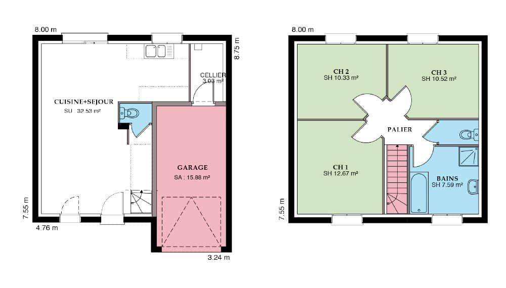
Sur ce terrain, nous vous proposons cette maison neuve, baptisée Extenso, conçue par Babeau-Seguin, constructeur offrant le meilleur rapport qualité/prix du marché. Cette belle maison familiale à étage, d'une surface de 82 m², dispose de 3 chambres, d'un vaste séjour, d'une salle de bain, de 2 WC et d'un cellier, ainsi que d'un garage accolé.
Avec ses 4 pièces, cette maison traditionnelle à étage allie confort et modernité. Elle est conforme à la norme RE2020, garantissant une basse consommation énergétique pour encore plus d'économies. Vous apprécierez également la possibilité de personnaliser la façade avec un enduit bi-ton, ainsi que les options de domotique et de volets roulants motorisés, très demandées par nos clients.
Disponible en plusieurs versions, cette Extenso vous offre tout le confort d’une grande maison dans un espace compact et parfaitement optimisé. Son plancher béton à l'étage et son prix attractif en font une opportunité à ne pas manquer.
Ne cherchez plus dans l'ancien, cette maison neuve vous offre le confort, la modernité et la qualité à un prix cassé ! Une exclusivité Maisons Babeau-Seguin.
Logement susceptibles de vous intéresser
Nous vous proposons de découvrir aussi cette sélection de logements situés à moins de 10km de Auneuil et qui seraient susceptibles de vous intéresser.
Jouy-sous-Thelle
TERRAIN ET MAISONMaison de 5 pièces (105 m²) en vente à Jouy-sous-ThelleIDÉALEMENT SITUÉE – MAISON 5 PIÈCES NEUVEÀ vendre : à côté de la gare de Chaumont-en-Vexin (Paris à 1 h avec le Transilien J), venez découvrir, idéalement située dans Jouy-sous-Thelle (60240), cette maison de 5 pièces de plain-pied de 105 m².Son intérieur dispose de quatre chambres, d’une cuisine et de deux salles de bains. Cette maison est neuve.Le terrain de la propriété est de 755 m².La maison est située dans un quartier convoité. On y trouve une école primaire. Niveau transports, il y a la gare Chaumont-en-Vexin à moins de 10 minutes en voiture. Il y a un accès à la nationale N31 à 9 km et Beauvais se situe à 16 km. On trouve une boulangerie et une boucherie-charcuterie à quelques minutes à peine.Son prix de vente est de 247 000 €.Contactez notre agence (BONELLO Fabrice : (Numéro supprimé)) pour obtenir de plus amples informations sur la maison, sur les démarches à suivre ou sur les modalités de vente. Maisons France Confort Beauvais est là pour vous accompagner dans tous vos projets immobiliers.
Jouy-sous-Thelle
TERRAIN ET MAISONVENTE : maison de 5 pièces (80 m²) à Jouy-sous-ThelleIDÉALEMENT SITUÉE – MAISON 5 PIÈCES NEUVEProche de la gare de Chaumont-en-Vexin (Paris à 1 h avec le Transilien J), votre agence Maisons France Confort Beauvais est heureuse de vous proposer cette maison de 5 pièces de plain-pied de 80 m² idéalement située dans Jouy-sous-Thelle (60240). Son intérieur est composé de trois chambres, d’une cuisine et d’une salle de bains.Le terrain de la maison s’étend sur 755 m².Cette maison est neuve.Cette maison est située dans un quartier recherché. On y trouve une école primaire. Niveau transports, on trouve la gare Chaumont-en-Vexin à moins de 10 minutes en voiture. Il y a un accès à la nationale N31 à 9 km et Beauvais est située à 16 km. Il y a une boulangerie et une boucherie-charcuterie à quelques minutes à peine.Elle est à vendre pour la somme de 231 000 €.N’hésitez pas à prendre contact avec notre constructeur (BONELLO Fabrice : (Numéro supprimé)) pour tout renseignement sur la propriété. Maisons France Confort Beauvais vous accompagne dans toutes vos démarches et dans tous vos projets immobiliers.
Jouy-sous-Thelle
TERRAIN ET MAISONMaison F5 (90 m²) à vendre à Jouy-sous-ThelleIDÉALEMENT SITUÉE – MAISON 5 PIÈCES NEUVEEn vente : proche du Transilien J (gare de Chaumont-en-Vexin, 1 h de Paris), idéalement située dans Jouy-sous-Thelle (60240), Maisons France Confort Beauvais vous propose cette maison de 5 pièces de plain-pied de 90 m². Son intérieur propose trois chambres, une cuisine et une salle de bains.Le terrain de cette maison s’étend sur 755 m².La maison est neuve.La maison est située dans un quartier prisé. Une école primaire y est implantée. Niveau transports en commun, il y a la gare Chaumont-en-Vexin à moins de 10 minutes en voiture. On trouve un accès à la nationale N31 à 9 km et Beauvais se situe à 16 km. On trouve une boulangerie et une boucherie-charcuterie à proximité.Elle est proposée à l’achat pour 243 000 €.Contactez Fabrice BONELLO ((Numéro supprimé)) pour toute information sur le bien ou sur les démarches à suivre.
Jouy-sous-Thelle
TERRAIN ET MAISONVENTE d’une maison de 5 pièces (90 m²) à Jouy-sous-ThelleIDÉALEMENT SITUÉE – MAISON 5 PIÈCES NEUVEÀ vendre : à deux pas du Transilien J (gare de Chaumont-en-Vexin, 1 h de Paris), idéalement située dans Jouy-sous-Thelle (60240), venez découvrir cette maison de 5 pièces de plain-pied de 90 m².Conçue de plain-pied, elle offre trois chambres, une cuisine et une salle de bains. Cette maison est neuve.Le terrain de la propriété s’étend sur 755 m².La maison se situe dans un quartier recherché. Une école primaire y est implantée. Niveau transports, on trouve la gare Chaumont-en-Vexin à moins de 10 minutes en voiture. On trouve un accès à la nationale N31 à 9 km et Beauvais est située à 16 km. Il y a une boulangerie et une boucherie-charcuterie à quelques minutes.Elle est à vendre pour la somme de 238 000 €.Prenez contact avec Fabrice BONELLO ((Numéro supprimé)) pour toute question sur la maison. Concrétisez vos projets immobiliers avec Maisons France Confort Beauvais.
Jouy-sous-Thelle
TERRAIN ET MAISONVENTE d’une maison de 7 pièces (150 m²) à Jouy-sous-ThelleIDÉALEMENT SITUÉE – MAISON 7 PIÈCES NEUVEEn vente : au pied du Transilien J (gare de Chaumont-en-Vexin, 1 h de Paris), notre agence Maisons France Confort Beauvais est heureuse de vous présenter cette maison de 7 pièces de 150 m² et de 755 m² de terrain idéalement située dans Jouy-sous-Thelle (60240).C’est une maison de 2 niveaux. Elle propose cinq chambres, une cuisine et deux salles de bains. Cette maison est neuve.La maison est située dans un secteur recherché. On y trouve une école primaire. Niveau transports en commun, on trouve la gare Chaumont-en-Vexin à moins de 10 minutes en voiture. La nationale N31 est accessible à 9 km et Beauvais se situe à 16 km. Il y a une boulangerie et une boucherie-charcuterie à quelques minutes du logement.Elle est à vendre pour la somme de 334 000 €.Contactez notre agence (BONELLO Fabrice : (Numéro supprimé)) pour obtenir de plus amples renseignements sur la maison ou sur les modalités de vente. Maisons France Confort Beauvais est là pour vous accompagner à toutes les étapes de l’achat.
Jouy-sous-Thelle
TERRAIN ET MAISONVENTE : maison F4 (60 m²) à Jouy-sous-ThelleIDÉALEMENT SITUÉE – MAISON 4 PIÈCES NEUVEEn vente : à deux pas du Transilien J (gare de Chaumont-en-Vexin, 1 h de Paris), idéalement située dans Jouy-sous-Thelle (60240), nous vous présentons cette maison de 4 pièces de plain-pied de 60 m².Elle compte deux chambres, une cuisine et une salle de bains. Cette maison est neuve.Le terrain de la propriété s’étend sur 755 m².Cette maison est située dans un quartier prisé. Une école primaire y est implantée. Niveau transports, il y a la gare Chaumont-en-Vexin à moins de 10 minutes en voiture. On trouve un accès à la nationale N31 à 9 km et Beauvais est située à 16 km. On trouve une boulangerie et une boucherie-charcuterie dans les environs.Elle est à vendre pour la somme de 193 000 €.Contactez notre agence (BONELLO Fabrice : (Numéro supprimé)) pour plus d’informations sur la maison, sur les modalités de vente ou sur les démarches à suivre.
Jouy-sous-Thelle
TERRAIN ET MAISONVENTE d’une maison T5 (85 m²) à Jouy-sous-ThelleIDÉALEMENT SITUÉE – MAISON 5 PIÈCES NEUVEÀ vendre : proche du Transilien J (gare de Chaumont-en-Vexin, 1 h de Paris), nous vous présentons cette maison de 5 pièces de 85 m² idéalement située dans Jouy-sous-Thelle (60240). Son intérieur offre trois chambres, une cuisine et deux salles de bains.Le terrain de cette maison s’étend sur 755 m².Cette maison comporte 2 niveaux. Elle est neuve.La maison est située dans un secteur prisé. On y trouve une école primaire. Côté transports, on trouve la gare Chaumont-en-Vexin à moins de 10 minutes en voiture. La nationale N31 est accessible à 9 km et Beauvais se situe à 16 km. Il y a une boulangerie et une boucherie-charcuterie dans les environs.Elle est proposée à l’achat pour 238 000 €.Contactez Fabrice BONELLO (tél : (Numéro supprimé)) pour obtenir de plus amples renseignements sur la maison.
Jouy-sous-Thelle
TERRAIN ET MAISONMaison de 5 pièces (90 m²) en vente à Jouy-sous-ThelleIDÉALEMENT SITUÉE – MAISON 5 PIÈCES NEUVEEn vente : à quelques minutes du Transilien J (gare de Chaumont-en-Vexin, 1 h de Paris), idéalement située dans Jouy-sous-Thelle (60240), votre agence Maisons France Confort Beauvais est ravie de vous proposer cette maison de 5 pièces de plain-pied de 90 m² et de 755 m² de terrain.Son intérieur compte trois chambres, une cuisine et deux salles de bains. La maison est neuve.La maison se trouve dans un quartier recherché. Une école primaire y est implantée. Côté transports, il y a la gare Chaumont-en-Vexin à moins de 10 minutes en voiture. Il y a un accès à la nationale N31 à 9 km et Beauvais est située à 16 km. On trouve une boulangerie et une boucherie-charcuterie dans les environs.Elle est à vendre pour la somme de 248 000 €.Prenez contact avec notre agence (Fabrice BONELLO : (Numéro supprimé)) pour toute question sur la maison. Donnez vie à vos projets immobiliers avec Maisons France Confort Beauvais.
Jouy-sous-Thelle
TERRAIN ET MAISONJouy-sous-Thelle : maison T4 (85 m²) à vendreIDÉALEMENT SITUÉE – MAISON 4 PIÈCES NEUVEProche du Transilien J (gare de Chaumont-en-Vexin, 1 h de Paris), à vendre idéalement située dans Jouy-sous-Thelle (60240), nous sommes heureux de vous proposer cette maison de 4 pièces de plain-pied de 85 m² et de 755 m² de terrain. Elle dispose de trois chambres, d’une cuisine et d’une salle de bains.Cette maison est neuve.La maison se trouve dans un secteur attractif. Une école primaire y est implantée. Niveau transports, il y a la gare Chaumont-en-Vexin à moins de 10 minutes en voiture. On trouve un accès à la nationale N31 à 9 km et Beauvais est située à 16 km. On trouve une boulangerie et une boucherie-charcuterie à quelques minutes à peine.Elle est proposée à l’achat pour 224 000 €.Contactez notre agence (Fabrice BONELLO : (Numéro supprimé)) pour obtenir de plus amples renseignements sur le bien ou sur les démarches à suivre.
L’actualité immobilière à Auneuil
27/11/2023
02/11/2023
30/10/2023
20/10/2023
16/10/2023
16/10/2023