Maison à construire à Bailleul-le-Soc (60190)
Images
Description
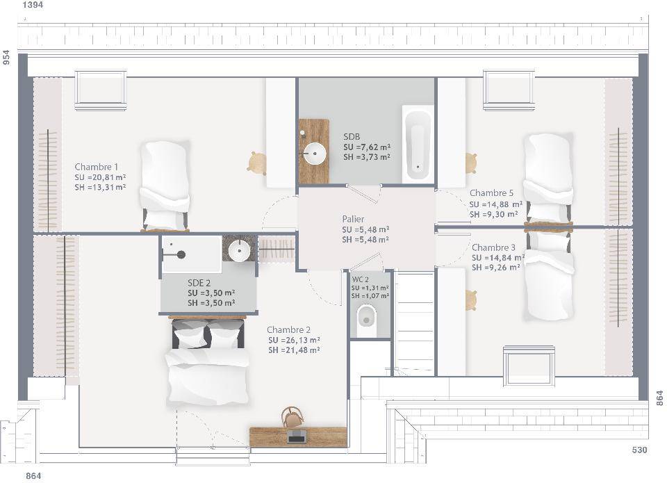
Maison de Rez de chaussée + Combles aménagés de 150 m² de surface habitable avec une, normes RE 2020, située à BAILLEUL LE SOC, sur un terrain de 520 m².
Vue dégagée, environnement paisible et verdoyant, à deux pas de l'école et du périscolaire, Autoroute A1 en 15 minutes, permettant de relier l'aéroport de Roissy en 30 minutes.
Cette maison RE 2020, de 5 chambres avec rangements intégrés avec 2 suites parentales dont 1 au rez de chaussée, séjour carrelé ,1 salle d'eau équipées ,cellier et garage intégré, packs alarme et domotique, baie aluminium, volets roulants centralisés et intégrés à la maçonnerie, plancher béton.
Plans 100% personnalisables et modifiables .
Accompagnement intégral : Financement , étude technique du terrain , gestion administrative .
Frais annexes ( raccordements , viabilisation , puisards, enlèvements des terres excédentaires , chemin d'accès )inclus dans le prix de cette annonce .
Contactez moi pour une étude gratuite .
Rendez vous en agence ou à votre domicile .
M. DOS SANTOS XAVIER
(Numéro supprimé)
Logement susceptibles de vous intéresser
Nous vous proposons de découvrir aussi cette sélection de logements situés à moins de 10km de Bailleul-le-Soc et qui seraient susceptibles de vous intéresser.

Bailleul-le-Soc
TERRAIN ET MAISONMaison de plain-pied en L avec garage de 90 m², normes RE 2020 , située à BAILLEUL LE SOC , sur un terrain de 520 m².Vue dégagée , environnement paisible et verdoyant , à deux pas de l’école et du périscolaire , Autoroute A1 en 15 minutes , permettant de relier l’aéroport de Roissy en 30 minutes .Cette maison RE 2020, de 3 chambres avec rangements intégrés , séjour carrelé ,1 salle d’eau équipées ,cellier et garage , packs alarme et domotique , baie aluminium , volets roulants centralisés et intégrés à la maçonnerie, plancher béton.Plans 100% personnalisables et modifiables .Accompagnement intégral : Financement , étude technique du terrain , gestion administrative .Frais annexes ( raccordements , viabilisation , puisards, enlèvements des terres excédentaires , chemin d’accès )inclus dans le prix de cette annonce .Contactez moi pour une étude gratuite .Rendez vous en agence ou à votre domicile .M. DOS SANTOS XAVIER(Numéro supprimé)

Bailleul-le-Soc
TERRAIN ET MAISONMaison de Rez de chaussée + Combles aménagés de 150 m² de surface habitable avec une, normes RE 2020, située à BAILLEUL LE SOC, sur un terrain de 520 m².Vue dégagée, environnement paisible et verdoyant, à deux pas de l’école et du périscolaire, Autoroute A1 en 15 minutes, permettant de relier l’aéroport de Roissy en 30 minutes.Cette maison RE 2020, de 5 chambres avec rangements intégrés avec 2 suites parentales dont 1 au rez de chaussée, séjour carrelé ,1 salle d’eau équipées ,cellier et garage intégré, packs alarme et domotique, baie aluminium, volets roulants centralisés et intégrés à la maçonnerie, plancher béton.Plans 100% personnalisables et modifiables .Accompagnement intégral : Financement , étude technique du terrain , gestion administrative .Frais annexes ( raccordements , viabilisation , puisards, enlèvements des terres excédentaires , chemin d’accès )inclus dans le prix de cette annonce .Contactez moi pour une étude gratuite .Rendez vous en agence ou à votre domicile .M. DOS SANTOS XAVIER(Numéro supprimé)

Bailleul-le-Soc
TERRAIN ET MAISONMaison contemporaine avec un garage accolé, de type R+combles de 90 m² de surface habitable, normes RE 2020, située à BAILLEUL LE SOC, sur un terrain de 520 m².Vue dégagée, environnement paisible et verdoyant, à deux pas de l’école et du périscolaire, Autoroute A1 en 15 minutes, permettant de relier l’aéroport de Roissy en 30 minutes.Cette maison RE 2020, de 3 chambres avec rangements intégrés dont 1 chambre au rdc, séjour carrelé ,1 salle d’eau équipées ,cellier et garage intégré, packs alarme et domotique, baie aluminium, volets roulants centralisés et intégrés à la maçonnerie, plancher béton.Plans 100% personnalisables et modifiables .Accompagnement intégral : Financement , étude technique du terrain , gestion administrative .Frais annexes ( raccordements , viabilisation , puisards, enlèvements des terres excédentaires , chemin d’accès )inclus dans le prix de cette annonce .Contactez moi pour une étude gratuite .Rendez vous en agence ou à votre domicile .M. DOS SANTOS XAVIER(Numéro supprimé)

Bailleul-le-Soc
TERRAIN ET MAISONMaison contemporaine avec un garage accolé, de type R+combles de 90 m² de surface habitable, normes RE 2020, située à BAILLEUL LE SOC, sur un terrain de 520 m².Vue dégagée, environnement paisible et verdoyant, à deux pas de l’école et du périscolaire, Autoroute A1 en 15 minutes, permettant de relier l’aéroport de Roissy en 30 minutes.Cette maison RE 2020, de 3 chambres avec rangements intégrés dont 1 chambre au rdc, séjour carrelé ,1 salle d’eau équipées ,cellier et garage intégré, packs alarme et domotique, baie aluminium, volets roulants centralisés et intégrés à la maçonnerie, plancher béton.Plans 100% personnalisables et modifiables .Accompagnement intégral : Financement , étude technique du terrain , gestion administrative .Frais annexes ( raccordements , viabilisation , puisards, enlèvements des terres excédentaires , chemin d’accès )inclus dans le prix de cette annonce .Contactez moi pour une étude gratuite .Rendez vous en agence ou à votre domicile .M. DOS SANTOS XAVIER(Numéro supprimé)

Arsy
TERRAIN ET MAISONDonnez vie à votre projet de construction avec Maison France Confort, n°1 en France ! Sur un terrain de 1060 m², nous vous proposons un projet complet : terrain, maison sur mesure et frais annexes inclus (viabilisation, raccordements, plans).ARSY, charmante commune de l’Oise, offre un cadre paisible et verdoyant, idéal pour bâtir votre maison. Proche des écoles, des commerces et des grands axes, cet emplacement allie sérénité et praticité.Exemple de projet : Maison de type plain pied de 71 m² avec deux chambres et 1 salle de bain. SANS GARAGE.Une opportunité unique à ne pas manquer ! Contactez XAVIER DOS SANTOS de chez MAISONS FRANCE CONFORT, au (Numéro supprimé), dès aujourd’hui pour en savoir plus et construire votre futur chez-vous.

Arsy
TERRAIN ET MAISONDonnez vie à votre projet de construction avec Maison France Confort, n°1 en France ! Sur un terrain de 1060 m², nous vous proposons un projet complet : terrain, maison sur mesure et frais annexes inclus (viabilisation, raccordements, plans).ARSY, charmante commune de l’Oise, offre un cadre paisible et verdoyant, idéal pour bâtir votre maison. Proche des écoles, des commerces et des grands axes, cet emplacement allie sérénité et praticité.Exemple de projet : Maison familiale de 4 chambres, de type R+1 avec un garage intégré. Surface habitable de 96 m².Une opportunité unique à ne pas manquer ! Contactez XAVIER DOS SANTOS de chez MAISONS FRANCE CONFORT, au (Numéro supprimé), dès aujourd’hui pour en savoir plus et construire votre futur chez-vous.

Arsy
TERRAIN ET MAISONDonnez vie à votre projet de construction avec Maison France Confort, n°1 en France ! Sur un terrain de 1060 m², nous vous proposons un projet complet : terrain, maison sur mesure et frais annexes inclus (viabilisation, raccordements, plans).ARSY, charmante commune de l’Oise, offre un cadre paisible et verdoyant, idéal pour bâtir votre maison. Proche des écoles, des commerces et des grands axes, cet emplacement allie sérénité et praticité.Exemple de projet : Maison familiale de 4 chambres, de type R+1 avec un garage intégré. Surface habitable de 96 m².Une opportunité unique à ne pas manquer ! Contactez XAVIER DOS SANTOS de chez MAISONS FRANCE CONFORT, au (Numéro supprimé), dès aujourd’hui pour en savoir plus et construire votre futur chez-vous.

Arsy
TERRAIN ET MAISONDonnez vie à votre projet de construction avec Maison France Confort, n°1 en France ! Sur un terrain de 1060 m², nous vous proposons un projet complet : terrain, maison sur mesure et frais annexes inclus (viabilisation, raccordements, plans).ARSY, charmante commune de l’Oise, offre un cadre paisible et verdoyant, idéal pour bâtir votre maison. Proche des écoles, des commerces et des grands axes, cet emplacement allie sérénité et praticité.Exemple de projet : Maison familiale de 4 chambres, de type R+1 avec un garage intégré. Surface habitable de 96 m².Une opportunité unique à ne pas manquer ! Contactez XAVIER DOS SANTOS de chez MAISONS FRANCE CONFORT, au (Numéro supprimé), dès aujourd’hui pour en savoir plus et construire votre futur chez-vous.

Arsy
TERRAIN ET MAISONDonnez vie à votre projet de construction avec Maison France Confort, n°1 en France ! Sur un terrain de 1060 m², nous vous proposons un projet complet : terrain, maison sur mesure et frais annexes inclus (viabilisation, raccordements, plans).ARSY, charmante commune de l’Oise, offre un cadre paisible et verdoyant, idéal pour bâtir votre maison. Proche des écoles, des commerces et des grands axes, cet emplacement allie sérénité et praticité.Exemple de projet : Maison familiale de 3 chambres, de type rez de chaussée + combles aménagés, avec un garage intégré. Surface habitable de 90 m².Une opportunité unique à ne pas manquer ! Contactez XAVIER DOS SANTOS de chez MAISONS FRANCE CONFORT, au (Numéro supprimé), dès aujourd’hui pour en savoir plus et construire votre futur chez-vous.
L’actualité immobilière à Bailleul-le-Soc





