Images
Description
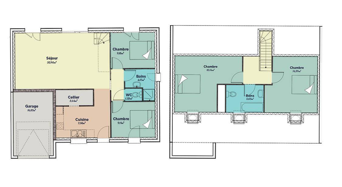
Sur ce terrain, nous vous proposons cette maison neuve : la Focus EVO, un modèle unique de 110 m² conçu par Babeau-Seguin, constructeur offrant le meilleur rapport qualité/prix du marché. Cette maison basse consommation est conforme à la norme RE2020, garantissant des performances énergétiques exceptionnelles.
La Focus EVO se distingue par son concept évolutif, alliant une maison neuve prête à vivre et une maison prête à finir. Livrée avec 73 m² habitables, elle est conçue pour évoluer avec vos besoins futurs. Grâce à ses combles aménageables, vous pouvez facilement augmenter votre surface habitable à 110 m², ajoutant ainsi deux chambres supplémentaires et une salle de bain, pour un total de 4 chambres et 2 salles de bains.
Les caractéristiques principales de cette maison incluent un garage intégré, un cellier, et des combles aménageables. Les options les plus demandées par nos clients, telles que la version Investisseur et les prises USB murales, sont également disponibles.
La Focus EVO est idéale pour tous ceux qui recherchent une maison complète à un prix compétitif. Elle comprend une grande pièce de jour traversante, 4 chambres, une salle de bain, et un garage de 15 m². Que vous soyez un jeune couple, un célibataire ou une famille en pleine expansion, cette maison saura s'adapter à vos besoins et à vos envies.
Ne manquez pas cette occasion unique de devenir propriétaire d'une maison évolutive, économe en énergie et conforme aux dernières normes environnementales. Contactez-nous dès aujourd'hui pour plus d'informations et pour planifier une visite.
Logement susceptibles de vous intéresser
Nous vous proposons de découvrir aussi cette sélection de logements situés à moins de 10km de Beaugies-sous-Bois et qui seraient susceptibles de vous intéresser.

Beaurains-lès-Noyon
TERRAINNous sommes ravis de vous présenter ce terrain exceptionnel à vendre, situé dans la charmante commune de Beaurains-lès-Noyon, dans l’Oise. S’étendant sur une superficie de 517 m², ce terrain non viabilisé offre de nombreuses possibilités pour un projet de construction de maison. Avec sa vue dégagée et son emplacement au calme, ce bien se distingue par son potentiel à accueillir la maison de vos rêves. Ce terrain est une opportunité rare à saisir pour ceux qui souhaitent construire dans un environnement privilégié. N’attendez plus pour envisager votre futur projet immobilier dans cette belle région. À noter qu’en tant que constructeur, nous ne sommes pas mandatés pour réaliser la vente de ce terrain.

Beaurains-lès-Noyon
TERRAIN ET MAISONSur ce terrain, nous vous proposons cette maison neuve : la Focus EVO City, conçue par Babeau-Seguin, constructeur offrant le meilleur rapport qualité/prix du marché. Découvrez l’innovant concept de la Focus EVO City, une maison qui combine les atouts d’une maison neuve clé en main avec la flexibilité et l’avantage tarifaire du prêt à finir ! Cette maison de 100 m², conçue pour évoluer, vous offre à sa livraison, une vaste pièce de vie lumineuse, 4 chambres et une salle de bain, avec des performances énergétiques exceptionnelles et un coût de construction abordable. Surtout, cette maison est conçue dès le départ pour évoluer.Une maison prête à s’adapterQue votre famille s’agrandisse ou que vous ayez besoin d’une chambre d’amis, la Focus EVO City se distingue en tant que première maison Babeau-Seguin prête à évoluer. Elle intègre une trémie pour accueillir un futur escalier, ainsi que des chevêtres de toit prévus pour les fenêtres de vos futurs combles aménagés. Notre plan détaillé vous guide dans l’aménagement de vos combles, faisant passer votre maison de 100 m² à une surface encore plus généreuse avec des espaces supplémentaires, transformant la Focus EVO City en véritable maison familiale !Une maison qui évoluera avec vos besoinsQue vous soyez un jeune couple désirant savourer la vie à deux avant l’arrivée d’un heureux événement, ou bien un célibataire passionné de bricolage souhaitant sa salle de projection privée, la Focus EVO City est la maison qui saura évoluer au rythme de votre vie et de vos aspirations !Idéale pour ce terrain et pour les petits budgets, cette Focus EVO City est aussi bien équipée que l’ensemble de nos modèles. Cette dernière est une maison neuve écologique répondant aux standards stricts de la RE2020. Économie à la construction, économie à la consommation !Les caractéristiques principales de cette maison incluent des combles aménageables, un excellent rapport qualité/prix, une conception évolutive et un cellier. Les options les

Beaugies-sous-Bois
TERRAINNous vous présentons un terrain exceptionnel à vendre avec une superficie généreuse de 1622m², offrant une vue dégagée et situé au calme, parfait pour réaliser votre projet de construction de maison. Ce terrain non-viabilisé est une opportunité rare à saisir pour les futurs propriétaires à la recherche d’un cadre de vie paisible et agréable. Ne manquez pas la chance de concevoir votre havre de paix dans cette charmante ville. Situé à Beaugies-sous-Bois, dans le département de l’Oise en région Hauts-de-France, ce terrain bénéficie d’un environnement naturel apaisant tout en étant à proximité des commodités nécessaires à la vie quotidienne. La commune est également bien desservie, vous permettant ainsi de profiter pleinement de la tranquillité de la campagne tout en restant connectés aux grandes villes environnantes. Ce terrain représente une opportunité unique de construire la maison de vos rêves dans un cadre idyllique. N’attendez plus pour envisager cet achat qui saura répondre à toutes vos attentes. À noter qu’en tant que constructeur, nous ne sommes pas mandatés pour réaliser la vente de ce terrain.

Beaugies-sous-Bois
TERRAIN ET MAISONSur ce terrain, nous vous proposons cette maison neuve : la Focus EVO, un modèle unique de 110 m² conçu par Babeau-Seguin, constructeur offrant le meilleur rapport qualité/prix du marché. Cette maison basse consommation est conforme à la norme RE2020, garantissant des performances énergétiques exceptionnelles.La Focus EVO se distingue par son concept évolutif, alliant une maison neuve prête à vivre et une maison prête à finir. Livrée avec 73 m² habitables, elle est conçue pour évoluer avec vos besoins futurs. Grâce à ses combles aménageables, vous pouvez facilement augmenter votre surface habitable à 110 m², ajoutant ainsi deux chambres supplémentaires et une salle de bain, pour un total de 4 chambres et 2 salles de bains.Les caractéristiques principales de cette maison incluent un garage intégré, un cellier, et des combles aménageables. Les options les plus demandées par nos clients, telles que la version Investisseur et les prises USB murales, sont également disponibles.La Focus EVO est idéale pour tous ceux qui recherchent une maison complète à un prix compétitif. Elle comprend une grande pièce de jour traversante, 4 chambres, une salle de bain, et un garage de 15 m². Que vous soyez un jeune couple, un célibataire ou une famille en pleine expansion, cette maison saura s’adapter à vos besoins et à vos envies.Ne manquez pas cette occasion unique de devenir propriétaire d’une maison évolutive, économe en énergie et conforme aux dernières normes environnementales. Contactez-nous dès aujourd’hui pour plus d’informations et pour planifier une visite.

Noyon
TERRAINTerrain à batir de 255m² , 9m de façade , situé au coeur de Noyon .Rendez vous en agence ou à votre domicile .Contactez XAVIER DOS SANTOS pour une étude personnalisée au (Numéro supprimé)

Noyon
TERRAINTerrain à bâtir entièrement viabilisé situé sur la charmante commune de GENVRY, située à 5 min de NOYON, d’une superficie de 629 m²,plat, idéalement situé, avec une grande façade sur rue.Commodité à proximité, groupe scolaire (maternelle et primaire) collège et lycée, commerce, gare à NOYON direction GARE DU NORD.PROJET CLES EN MAINS: Terrain + Maison + Frais AnnexesXAVIER de l’agence Maisons France Confort se fera un plaisir de vous recevoir pour plus de renseignements. tel : (Numéro supprimé)

Noyon
TERRAINMAISONS FRANCE CONFORT de COMPIEGNE ! tel (Numéro supprimé)Terrain à bâtir entièrement viabilisé à NOYON (60) d’une superficie de 255 m²,plat, idéalement situé.Commodité à proximité, groupe scolaire (maternelle et primaire) collège et lycée à NOYON (60), commerce, gare sur place avec Accès direct Paris.ZONE ANRU avec une TVA à 5.5% et possibilité d’avoir un PRET A TAUX ZERO.Projet clé en main.XAVIER de l’agence Maisons France Confort de COMPIEGNE se fera un plaisir de vous recevoir pour plus de renseignements. tel : (Numéro supprimé) – 7j/7

Noyon
TERRAIN ET MAISONMaison de plain pied , située à seulement 15 minutes à pieds de la gare de Noyon, sur un terrain de 255m² viabilisé .Au coeur de Noyon , environnement résidentiel , à deux pas des écoles , et de toutes les commodités .Cette maison dispose de 2 chambres avec rangements intégrés , séjour carrelé ,1 salle d’eau équipée .Idéale pour un premier investissement .Accompagnement intégral : Financement , étude technique du terrain , gestion administrative .Frais annexes ( raccordements , viabilisation , puisards, enlèvements des terres excédentaires , chemin d’accès )inclus dans le prix de cette annonce .Rendez vous en agence ou à votre domicile .Contactez XAVIER DOS SANTOS pour une étude personnalisée au (Numéro supprimé)

Noyon
TERRAIN ET MAISONMaison de plain pied , située à seulement 15 minutes à pieds de la gare de Noyon, sur un terrain de 255m² viabilisé .Au coeur de Noyon , environnement résidentiel , à deux pas des écoles , et de toutes les commodités .Cette maison dispose d’une chambre avec rangements intégrés , séjour carrelé ,1 salle d’eau équipée, 1 garage .Idéale pour un premier investissement .Accompagnement intégral : Financement , étude technique du terrain , gestion administrative .Frais annexes ( raccordements , viabilisation , puisards, enlèvements des terres excédentaires , chemin d’accès )inclus dans le prix de cette annonce .Rendez vous en agence ou à votre domicile .Contactez XAVIER DOS SANTOS pour une étude personnalisée au (Numéro supprimé)
L’actualité immobilière à Beaugies-sous-Bois





