Maison à construire à Bouconvillers (60240)
Images
Description
Bouconvillers : maison de 5 pièces (85 m²) en vente
IDÉALEMENT SITUÉE - MAISON 5 PIÈCES NEUVE
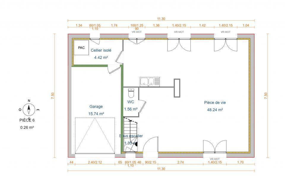
À vendre : à côté de la gare de Chars (Paris à 55 min avec le Transilien J), laissez vous charmer par, idéalement située dans Bouconvillers (60240), cette maison de 5 pièces de 85 m². Son intérieur comporte trois chambres, une cuisine et une salle de bains.
Le terrain de la propriété s'étend sur 583 m².
C'est une maison de 2 niveaux. Elle est neuve.
Cette maison est située dans un secteur attractif. Niveau transports en commun, il y a six gares à moins de 10 minutes en voiture. Les autoroutes A16 et A15 et la nationale N14 sont accessibles à moins de 20 km et Cergy est située à 18 km. On trouve un tennis et un commerce à quelques minutes à peine.
Elle est à vendre pour la somme de 258 900 €.
N'hésitez pas à prendre contact avec Gilles BOREAU ((Numéro supprimé)) pour tout renseignement sur la maison, sur les démarches à suivre ou sur les modalités de vente. Les Maisons Extraco Chambourcy vous accompagne à toutes les étapes de votre projet et dans tous vos projets immobiliers.
Logement susceptibles de vous intéresser
Nous vous proposons de découvrir aussi cette sélection de logements situés à moins de 10km de Bouconvillers et qui seraient susceptibles de vous intéresser.
Bouconvillers
TERRAINTerrain viabilisé et plat avec toutes commodités:Accès rapide A15 et N184- 5’min de CHARS (95)- 10’min de MARINES (95)- 15’min de CERGY (95)GARE SNCF de CHARS (95) « Ligne J » à seulement 3kmPrix : 89000 €.Sur ce terrain, réalisez votre projet de construction de maison RE 2020 avec PAVILLONS D'ÎLE-DE-FRANCE (constructeur de maisons de gamme et sur-mesure depuis plus de 50 ans) :- Plan sur-mesure et personnalisé de 2 à 5 chambres- Mode de chauffage au choix- Grands choix d'équipements et de prestations- Matériaux de qualité selon les normes en vigueur- Accompagnement dans le choix et l’acquisition du terrainDemandez une étude gratuite et personnalisée de votre projet de construction sur ce terrain !Contactez Olivier SAMSON au (Numéro supprimé) ou au (Numéro supprimé) (Pavillons d'Île-de-France – Agence de Meaux).Prix hors frais de notaire. Terrain sélectionné et vu pour vous sous réserve de disponibilité et au prix indiqué par notre partenaire foncier. Visuels non contractuels.Cette annonce a été créée et diffusée avec le logiciel VITAHOME.
Bouconvillers
TERRAIN ET MAISONRéalisez votre projet de construction de maison RE 2020 avec PAVILLONS D'ÎLE-DE-FRANCE (constructeur de maisons de gamme et sur-mesure depuis plus de 50 ans) :- Plan sur-mesure et personnalisé de 2 à 5 chambres- Mode de chauffage au choix- Grands choix d'équipements et de prestations- Matériaux de qualité selon les normes en vigueur- Accompagnement dans le choix et l’acquisition du terrainInformations du terrain : Terrain viabilisé et plat avec toutes commodités:Accès rapide A15 et N184- 5’min de CHARS (95)- 10’min de MARINES (95)- 15’min de CERGY (95)GARE SNCF de CHARS (95) « Ligne J » à seulement 3kmDemandez une étude gratuite et personnalisée de votre projet de construction !Contactez Olivier SAMSON au (Numéro supprimé) ou au (Numéro supprimé) (Pavillons d'Île-de-France – Agence de Meaux).Prix avec assurance dommages-ouvrage comprise, hors VRD, terrain viabilisé, assainissement compris, frais de notaire non compris, taxes non comprises, frais divers non compris. Terrain sélectionné et vu pour vous sous réserve de disponibilité et au prix indiqué par notre partenaire foncier. Visuels non contractuels.Cette annonce a été créée et diffusée avec le logiciel VITAHOME.
Bouconvillers
TERRAIN ET MAISONRéalisez votre projet de construction de maison RE 2020 avec PAVILLONS D'ÎLE-DE-FRANCE (constructeur de maisons de gamme et sur-mesure depuis plus de 50 ans) :- Plan sur-mesure et personnalisé de 2 à 5 chambres- Mode de chauffage au choix- Grands choix d'équipements et de prestations- Matériaux de qualité selon les normes en vigueur- Accompagnement dans le choix et l’acquisition du terrainInformations du terrain : Terrain viabilisé et plat avec toutes commodités:Accès rapide A15 et N184- 5’min de CHARS (95)- 10’min de MARINES (95)- 15’min de CERGY (95)GARE SNCF de CHARS (95) « Ligne J » à seulement 3kmDemandez une étude gratuite et personnalisée de votre projet de construction !Contactez Olivier SAMSON au (Numéro supprimé) ou au (Numéro supprimé) (Pavillons d'Île-de-France – Agence de Meaux).Prix avec assurance dommages-ouvrage comprise, hors VRD, terrain viabilisé, assainissement compris, frais de notaire non compris, taxes non comprises, frais divers non compris. Terrain sélectionné et vu pour vous sous réserve de disponibilité et au prix indiqué par notre partenaire foncier. Visuels non contractuels.Cette annonce a été créée et diffusée avec le logiciel VITAHOME.
Bouconvillers
TERRAIN ET MAISONModèle de plain pied personnalisable, composé d’un salon séjour spacieux de 42 m2 avec cuisine ouverte ce qui crée un espace de vie lumineux et convivial. La maison dispose de 3 chambres, dont une suite parentale, ainsi que 2 salles d'eau, une salle de bain et 2 WC, offrant confort et fonctionnalité pour toute la famille. , cette maison bénéficie d'une conception moderne RE 2020, garantissant performance énergétique et confort thermique. Elle est équipée d'une pompe à chaleur, d'un chauffage au sol, de baies vitrées et fenêtres en aluminium motorisées et connectées. Sa structure en brique rouge et sa hauteur sous plafond de 2,50 m apportent charme et élégance. Plan sur mesure, vous permettant de personnaliser l'aménagement selon vos goûts et besoins.Informations du terrain : Terrain viabilisé et plat avec toutes commodités:Accès rapide A15 et N184- 5’min de CHARS (95)- 10’min de MARINES (95)- 15’min de CERGY (95)GARE SNCF de CHARS (95) « Ligne J » à seulement 3kmDemandez une étude gratuite et personnalisée de votre projet de construction !Contactez Olivier SAMSON au (Numéro supprimé) ou au (Numéro supprimé) (Pavillons d'Île-de-France – Agence de Meaux).Prix avec assurance dommages-ouvrage comprise, hors VRD, terrain viabilisé, assainissement compris, frais de notaire non compris, taxes non comprises, frais divers non compris. Terrain sélectionné et vu pour vous sous réserve de disponibilité et au prix indiqué par notre partenaire foncier. Visuels non contractuels.Cette annonce a été créée et diffusée avec le logiciel VITAHOME.
Bouconvillers
TERRAIN ET MAISONOlivier agence de Mareuil les Meaux vous propose:Modèle à étage composé d’un salon séjour spacieux de 40 m2 avec cuisine ouverte un espace de vie lumineux et convivial. La maison dispose de chambres, dont une suite parentale, ainsi que 2 salles d'eau, une salle de bain et 2 WC, offrant confort et fonctionnalité pour toute la famille. , cette maison bénéficie d'une conception moderne RE 2020, garantissant performance énergétique et confort thermique. Elle est équipée d'une pompe à chaleur, d'un chauffage au sol, de baies vitrées et fenêtres en aluminium motorisées et connectées. Sa structure en brique rouge et sa hauteur sous plafond de 2,50 m apportent charme et élégance. Plan sur mesure, vous permettant de personnaliser l'aménagement selon vos goûts et besoins.Informations du terrain : Terrain viabilisé et plat avec toutes commodités:Accès rapide A15 et N184- 5’min de CHARS (95)- 10’min de MARINES (95)- 15’min de CERGY (95)GARE SNCF de CHARS (95) « Ligne J » à seulement 3kmDemandez une étude gratuite et personnalisée de votre projet de construction !Contactez Olivier SAMSON au (Numéro supprimé) ou au (Numéro supprimé) (Pavillons d'Île-de-France – Agence de Meaux).Prix avec assurance dommages-ouvrage comprise, hors VRD, terrain viabilisé, assainissement compris, frais de notaire non compris, taxes non comprises, frais divers non compris. Terrain sélectionné et vu pour vous sous réserve de disponibilité et au prix indiqué par notre partenaire foncier. Visuels non contractuels.Cette annonce a été créée et diffusée avec le logiciel VITAHOME.
Bouconvillers
TERRAIN ET MAISONRéalisez votre projet de construction de maison RE 2020 avec PAVILLONS D'ÎLE-DE-FRANCE (constructeur de maisons de gamme et sur-mesure depuis plus de 50 ans) :- Plan sur-mesure et personnalisé de 2 à 5 chambres- Mode de chauffage au choix- Grands choix d'équipements et de prestations- Matériaux de qualité selon les normes en vigueur- Accompagnement dans le choix et l’acquisition du terrainInformations du terrain : Terrain viabilisé et plat avec toutes commodités:Accès rapide A15 et N184- 5’min de CHARS (95)- 10’min de MARINES (95)- 15’min de CERGY (95)GARE SNCF de CHARS (95) « Ligne J » à seulement 3kmDemandez une étude gratuite et personnalisée de votre projet de construction !Contactez Olivier SAMSON au (Numéro supprimé) ou au (Numéro supprimé) (Pavillons d'Île-de-France – Agence de Meaux).Prix avec assurance dommages-ouvrage comprise, hors VRD, terrain viabilisé, assainissement compris, frais de notaire non compris, taxes non comprises, frais divers non compris. Terrain sélectionné et vu pour vous sous réserve de disponibilité et au prix indiqué par notre partenaire foncier. Visuels non contractuels.Cette annonce a été créée et diffusée avec le logiciel VITAHOME.
Bouconvillers
TERRAINTerrain à vendre : emplacement idéal pour votre prochain projet. Description : A la recherche du lieu parfait pour concrétiser votre vision ? Ne chercher plus, il est là ! Ce terrain spacieux, situé dans un quartier très rechercher, offre une belle opportunité unique pour réaliser le projet d’une vie Caractéristiques :- Emplacement stratégique offrant un accès facile aux commodités locales et aux axes de transport. – Environnement calme et paisible, idéal pour ceux qui recherchent la tranquillité tout en restant connectés à la vie urbaine. – Proximité des écoles, commerces et autres services essentiels, garantissant une vie pratique et confortable. Ne manquez pas cette opportunité unique d’investir dans l’avenir et de réaliser vos aspirations. N’hésitez pas à me contacter dès maintenant pour plus d’informations et pour planifier une visite sur place !Prix : 79900 €.Sur ce terrain, réalisez votre projet de construction de maison RE 2020 avec PAVILLONS D'ÎLE-DE-FRANCE (constructeur de maisons de gamme et sur-mesure depuis plus de 50 ans) :- Plan sur-mesure et personnalisé de 2 à 5 chambres- Mode de chauffage au choix- Grands choix d'équipements et de prestations- Matériaux de qualité selon les normes en vigueur- Accompagnement dans le choix et l’acquisition du terrainDemandez une étude gratuite et personnalisée de votre projet de construction sur ce terrain !Contactez Jason GUEVEL au (Numéro supprimé) ou au (Numéro supprimé) (Pavillons d'Île-de-France – Agence de Cauffry).Prix hors frais de notaire. Terrain sélectionné et vu pour vous sous réserve de disponibilité et au prix indiqué par notre partenaire foncier. Visuels non contractuels.Cette annonce a été créée et diffusée avec le logiciel VITAHOME.
Fleury
TERRAINMagnifique terrain dans un secteur calme et proche toutes commodités. Viabilisé. Terrasse plein SUD. 15 mn de l'A16 et 15 mn de Méru. Pas de contraintes ABF. Possibilité R+1. Ne loupez pas une telle opportunitéPrix : 78000 €.Sur ce terrain, réalisez votre projet de construction de maison RE 2020 avec PAVILLONS D'ÎLE-DE-FRANCE (constructeur de maisons de gamme et sur-mesure depuis plus de 50 ans) :- Plan sur-mesure et personnalisé de 2 à 5 chambres- Mode de chauffage au choix- Grands choix d'équipements et de prestations- Matériaux de qualité selon les normes en vigueur- Accompagnement dans le choix et l’acquisition du terrainDemandez une étude gratuite et personnalisée de votre projet de construction sur ce terrain !Contactez Véronique LEMOUTON au (Numéro supprimé) ou au (Numéro supprimé) (Pavillons d'Île-de-France – Agence de Cauffry).Prix hors frais de notaire. Terrain sélectionné et vu pour vous sous réserve de disponibilité et au prix indiqué par notre partenaire foncier. Visuels non contractuels.Cette annonce a été créée et diffusée avec le logiciel VITAHOME.
Delincourt
TERRAINVous êtes à la recherche d'un terrain qui saura concrétiser vos ambitions ? Ne cherchez plus ! Ce terrain généreusement dimensionné, situé dans un quartier prisé et recherché, représente une occasion rare de bâtir le projet de vos rêves. Caractéristiques : Emplacement privilégié, offrant une accessibilité facile aux principales commodités locales ainsi qu'aux principaux axes de transport. Cadre paisible et serein, parfait pour ceux qui souhaitent allier tranquillité et proximité avec l'animation urbaine. Proximité immédiate des écoles, commerces et services essentiels, offrant ainsi confort et praticité au quotidien. C'est l'opportunité parfaite pour investir dans un avenir prometteur. Ne laissez pas passer cette chance unique de donner vie à vos projets ! Pour plus d'informations ou pour organiser une visite, contactez-moi sans tarder.Prix : 73900 €.Sur ce terrain, réalisez votre projet de construction de maison RE 2020 avec PAVILLONS D'ÎLE-DE-FRANCE (constructeur de maisons de gamme et sur-mesure depuis plus de 50 ans) :- Plan sur-mesure et personnalisé de 2 à 5 chambres- Mode de chauffage au choix- Grands choix d'équipements et de prestations- Matériaux de qualité selon les normes en vigueur- Accompagnement dans le choix et l’acquisition du terrainDemandez une étude gratuite et personnalisée de votre projet de construction sur ce terrain !Contactez Jason GUEVEL au (Numéro supprimé) ou au (Numéro supprimé) (Pavillons d'Île-de-France – Agence de Cauffry).Prix hors frais de notaire. Terrain sélectionné et vu pour vous sous réserve de disponibilité et au prix indiqué par notre partenaire foncier. Visuels non contractuels.Cette annonce a été créée et diffusée avec le logiciel VITAHOME.
L’actualité immobilière à Bouconvillers
27/11/2023
02/11/2023
30/10/2023
20/10/2023
16/10/2023
16/10/2023