Maison à construire à Canly (60680)
Images
Description
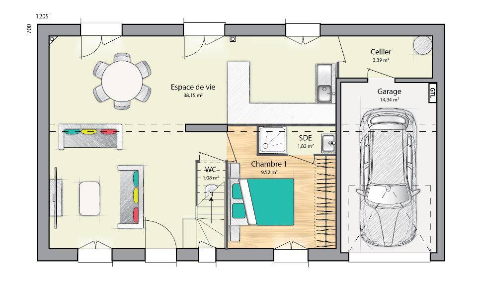
Maison à combles aménagés et réhaussés , située à Canly , sur un terrain de 1503m² viabilisé .
Vue dégagée , environnement paisible et verdoyant , à deux pas de l'école et du périscolaire , Autoroute A1 en 5 minutes , permettant de relier l'aéroport de Roissy en 30 minutes .
Cette maison RE 2020 , dispose d'une véritable entrée , de 4 chambres avec rangements intégrés , séjour carrelé ,2 salles d'eau équipées ,cellier et garage , packs alarme et domotique , baie aluminium , volets roulants centralisés et intégrés à la maçonnerie.
Plans 100% personnalisables et modifiables .
Accompagnement intégral : Financement , étude technique du terrain , gestion administrative .
Frais annexes ( raccordements , viabilisation , puisards, enlèvements des terres excédentaires , chemin d'accès )inclus dans le prix de cette annonce .
Contactez moi pour une étude gratuite .
Rendez vous en agence ou à votre domicile .
M. DOS SANTOS XAVIER
(Numéro supprimé)
Logement susceptibles de vous intéresser
Nous vous proposons de découvrir aussi cette sélection de logements situés à moins de 10km de Canly et qui seraient susceptibles de vous intéresser.
Arsy
TERRAIN ET MAISONVENTE d’une maison T5 (90 m²) à ArsyEMPLACEMENT PRIVILÉGIÉ – MAISON 5 PIÈCES NEUVEEn vente : située à 11 km de Compiègne, bénéficiant d’un emplacement privilégié dans Arsy (60190), découvrez cette maison de 5 pièces de plain-pied de 90 m² et de 554 m² de terrain. Elle inclut trois chambres, une cuisine et une salle de bains.Cette maison est neuve.Cette maison se trouve dans un secteur recherché. Il y a l’École Primaire Séraphine Louis à moins de 10 minutes à pied. Niveau transports, on trouve six gares à moins de 10 minutes en voiture. L’autoroute A1 et la nationale N31 sont accessibles à moins de 2 km. Il y a une bibliothèque dans les environs.Elle est proposée à l’achat pour 267 890 €.N’hésitez pas à prendre contact avec notre agence Emmanuel au (Numéro supprimé) pour toute question sur la maison ou sur les démarches à suivre. Maisons France Confort Moisselles vous accompagne à toutes les étapes de l’achat et dans tous vos projets immobiliers.
Arsy
TERRAIN ET MAISONVENTE d’une maison de 5 pièces (104 m²) à ArsyEMPLACEMENT PRIVILÉGIÉ – MAISON 5 PIÈCES NEUVE OSSATURE BOISEn vente : localisée à 11 km de Compiègne, bénéficiant d’un emplacement privilégié dans Arsy (60190), votre agence Maisons France Confort Moisselles est heureuse de vous proposer cette maison de 5 pièces de plain-pied de 104 m².Elle inclut quatre chambres, une cuisine et deux salles de bains. La maison est neuve.Le terrain de la propriété s’étend sur 554 m².La maison est située dans un secteur recherché. L’École Primaire Séraphine Louis se trouve à moins de 10 minutes à pied. Niveau transports en commun, il y a six gares à moins de 10 minutes en voiture. L’autoroute A1 et la nationale N31 sont accessibles à moins de 2 km. On trouve une bibliothèque à proximité.Elle est proposée à l’achat pour 319 980 €.N’hésitez pas à prendre contact avec Emmanuel au (Numéro supprimé) pour obtenir de plus amples informations sur la maison et sur les démarches à suivre.
Arsy
TERRAINVENTE d’un terrain de 554 m² à ArsyEMPLACEMENT PRIVILÉGIÉ – PROCHE DE COMPIÈGNEGrand terrain à quelques kilomètres de Compiègne. De 554 m², ce terrain se situe bénéficiant d’un emplacement privilégié dans Arsy (60190). Dans un secteur convoité, ce terrain est à 500 M des écoles et 3 km des commerces. Côté transports en commun, on trouve une gare 45 minutes gare du nord. L’autoroute A1 et la nationale N31 sont accessibles à moins de 2 km et à 35 minutes de l’aéroport Charles-de-Gaulle. Il y a une bibliothèque à quelques minutes à peine.Son prix de vente est de 90 900 €. Contactez notre agence Emmanuel au (Numéro supprimé) pour tout renseignement sur le terrain, sur les modalités de vente ou sur les démarches à suivre.
Arsy
TERRAIN ET MAISONMaison de 5 pièces (113 m²) en vente à ArsyEMPLACEMENT PRIVILÉGIÉ – MAISON 5 PIÈCES NEUVE OSSATURE BOISÀ 11 km de Compiègne, nous sommes ravis de vous proposer cette maison de 5 pièces de plain-pied de 113 m² et de 554 m² de terrain en vente, bénéficiant d’un emplacement d’exception dans Arsy (60190).Son intérieur comporte quatre chambres, une cuisine et deux salles de bains. La maison est neuve.La maison se trouve dans un quartier prisé. Il y a l’École Primaire Séraphine Louis à moins de 10 minutes à pied. Niveau transports, on trouve six gares à moins de 10 minutes en voiture. L’autoroute A1 et la nationale N31 sont accessibles à moins de 2 km. Il y a une bibliothèque dans les environs.Elle est à vendre pour la somme de 354 560 €.Contactez notre agence Emmanuel au (Numéro supprimé) pour toute question sur la maison ou sur les démarches à suivre.
Arsy
TERRAIN ET MAISONVENTE d’une maison de 6 pièces (115 m²) à ArsyEMPLACEMENT PRIVILÉGIÉ – MAISON 6 PIÈCES NEUVEÀ deux pas de Compiègne, venez découvrir cette maison de 6 pièces de plain-pied de 115 m² et de 554 m² de terrain bénéficiant d’un emplacement d’exception dans Arsy (60190).Elle se divise en trois chambres, une cuisine et trois salles de bains. La maison est neuve.Cette maison se situe dans un quartier convoité. L’École Primaire Séraphine Louis se trouve à moins de 10 minutes à pied. Niveau transports en commun, il y a six gares à moins de 10 minutes en voiture. L’autoroute A1 et la nationale N31 sont accessibles à moins de 2 km. On trouve une bibliothèque à proximité du logement.Elle est proposée à l’achat pour 409 290 €.Prenez contact avec Emmanuel au (Numéro supprimé) pour plus de renseignements sur la maison ou sur les modalités de vente. Faites de vos projets immobiliers une réalité avec Maisons France Confort Moisselles.
Arsy
TERRAIN ET MAISONMaison F7 (120 m²) à vendre à ArsyEMPLACEMENT PRIVILÉGIÉ – MAISON 7 PIÈCES NEUVEEn vente : à deux pas de Compiègne, venez découvrir, bénéficiant d’un emplacement privilégié dans Arsy (60190), cette maison de 7 pièces de 120 m². Son intérieur compte quatre chambres, une cuisine et deux salles de bains.Le terrain de la propriété est de 554 m².Cette maison comporte 2 niveaux. Elle est neuve.La maison se situe dans un secteur recherché. Il y a l’École Primaire Séraphine Louis à moins de 10 minutes à pied. Côté transports en commun, on trouve six gares à moins de 10 minutes en voiture. L’autoroute A1 et la nationale N31 sont accessibles à moins de 2 km. Il y a une bibliothèque à quelques minutes de la maison.Son prix de vente est de 369 600 €.N’hésitez pas à prendre contact avec Emmanuel au (Numéro supprimé) pour plus de renseignements sur la maison ou sur les modalités de vente.
Arsy
TERRAIN ET MAISONVENTE d’une maison F7 (124 m²) à ArsyEMPLACEMENT PRIVILÉGIÉ – MAISON 7 PIÈCES NEUVEÀ quelques kilomètres de Compiègne, découvrez cette maison de 7 pièces de 124 m² bénéficiant d’un emplacement d’exception dans Arsy (60190). Elle compte cinq chambres, une cuisine et trois salles de bains.Le terrain de cette maison s’étend sur 554 m².Cette maison possède 2 niveaux. Elle est neuve.La propriété se trouve dans un secteur convoité. Il y a l’École Primaire Séraphine Louis à moins de 10 minutes à pied. Côté transports en commun, on trouve six gares à moins de 10 minutes en voiture. L’autoroute A1 et la nationale N31 sont accessibles à moins de 2 km. Il y a une bibliothèque à proximité du logement.Elle est proposée à l’achat pour 298 490 €.Contactez notre agence Emmanuel au (Numéro supprimé) pour plus de renseignements sur la maison, sur les modalités de vente ou sur les démarches à suivre.
Arsy
TERRAIN ET MAISONArsy : maison de 6 pièces (109 m²) en venteEMPLACEMENT PRIVILÉGIÉ – MAISON 6 PIÈCES NEUVEÀ vendre : située à 11 km de Compiègne, votre agence Maisons France Confort Moisselles est heureuse de vous proposer cette maison de 6 pièces de 109 m² et de 554 m² de terrain bénéficiant d’un emplacement d’exception dans Arsy (60190). Son intérieur inclut quatre chambres, une cuisine et deux salles de bains.C’est une maison de 2 niveaux. Elle est neuve.La propriété se trouve dans un quartier prisé. Il y a l’École Primaire Séraphine Louis à moins de 10 minutes à pied. Côté transports en commun, on trouve six gares à moins de 10 minutes en voiture. L’autoroute A1 et la nationale N31 sont accessibles à moins de 2 km. Il y a une bibliothèque à proximité.Elle est à vendre pour la somme de 291 550 €.Contactez notre constructeur Emmanuel au (Numéro supprimé) pour tout renseignement sur la maison.
Arsy
TERRAIN ET MAISONRéalisez votre projet de construction de maison RE 2020 avec PAVILLONS D'ÎLE-DE-FRANCE (constructeur de maisons de gamme et sur-mesure depuis plus de 50 ans) :- Plan sur-mesure et personnalisé de 2 à 5 chambres- Mode de chauffage au choix- Grands choix d'équipements et de prestations- Matériaux de qualité selon les normes en vigueur- Accompagnement dans le choix et l’acquisition du terrainDemandez une étude gratuite et personnalisée de votre projet de construction !Contactez Norbert DE SA au (Numéro supprimé) ou au (Numéro supprimé) (Pavillons d'Île-de-France – Agence de Noyon).Prix avec assurance dommages-ouvrage comprise, hors VRD, terrain viabilisé, assainissement non compris, frais de notaire non compris, taxes non comprises, frais divers non compris. Terrain sélectionné et vu pour vous sous réserve de disponibilité et au prix indiqué par notre partenaire foncier. Visuels non contractuels.Cette annonce a été créée et diffusée avec le logiciel VITAHOME.
L’actualité immobilière à Canly
27/11/2023
02/11/2023
30/10/2023
20/10/2023
16/10/2023
16/10/2023