Maison à construire à Chambly (60230)
Images
Description
VENTE d'une maison de 8 pièces (145 m²) à Hénonville
EMPLACEMENT PRIVILÉGIÉ - MAISON 8 PIÈCES NEUVE
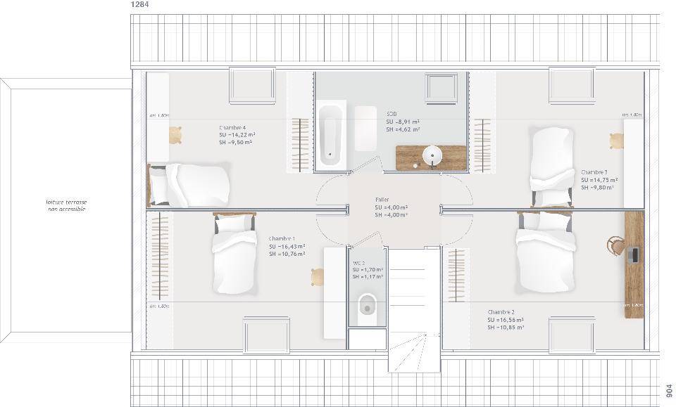
En vente : au pied du Transilien J (gare de La Villetertre, 1 h de Paris), votre agence Maisons France Confort Beauvais est heureuse de vous proposer, bénéficiant d'un emplacement d'exception dans Hénonville (60119), cette maison de 8 pièces de 145 m² et de 640 m² de terrain. Elle inclut six chambres, une cuisine et deux salles de bains.
C'est une maison de 2 niveaux. Elle est neuve.
Cette maison est située dans un secteur prisé. Une école maternelle y est implantée. Niveau transports en commun, on trouve quatre gares à moins de 10 minutes en voiture. L'autoroute A16 est accessible à 10 km et Cergy est située à 19 km. Il y a un tennis, une bibliothèque et une boucherie-charcuterie à proximité du logement.
Elle est proposée à l'achat pour 374 000 €.
N'hésitez pas à prendre contact avec Fabrice BONELLO ((Numéro supprimé)) pour tout renseignement sur le bien.
Logement susceptibles de vous intéresser
Nous vous proposons de découvrir aussi cette sélection de logements situés à moins de 10km de Chambly et qui seraient susceptibles de vous intéresser.
Nesles-la-Vallée
TERRAINTerrain à bâtir – Nesles-la-Vallée (Vexin) – 650 m² environ Idéalement situé dans le secteur prisé de Nesles-la-Vallée, au coeur du Vexin, ce terrain constructible d’environ 650 m² offre une belle opportunité pour réaliser votre projet immobilier. Atouts majeurs : Emplacement recherché : Dans un cadre verdoyant et préservé. Façade généreuse : Environ 25 mètres de façade, permettant une construction spacieuse et lumineuse. Garage existant : Un garage d’environ 30 m² déjà présent sur le terrain. Raccordement au tout-à-l’égout : Pratique et économique pour votre futur projet. À viabiliser : Eau et électricité à prévoir (terrain facilement raccordable). Environnement calme et authentique, idéal pour une maison familiale ou une résidence Honoraires à la charge du vendeurVotre agent commercial 3G IMMO sur place EI – Denis DELEVOY inscrit au RSAC de PONTOISE n° 404 875 213 Selon l’article L.561.5 du Code Monétaire et Financier, pour l’organisation de la visite, la présentation d’une pièce d’identité vous sera demandée.Les informations sur les risques auxquels ce bien est exposé sont disponibles sur le site Géorisques : www.georisques.gouv.frLes informations sur les risques auxquels ce bien est exposé sont disponibles sur le site Géorisques : www.georisques.gouv.fr
Bornel
TERRAIN ET MAISONVENTE : maison T6 (100 m²) à BornelMAISON 6 PIÈCES NEUVE – PROCHE D’ARGENTEUILEn vente : localisée à deux pas d’Argenteuil, ayez le coup de coeur pour cette maison de 6 pièces de 100 m² à Bornel (60540).Cette maison comporte 2 niveaux. Son intérieur propose quatre chambres, une cuisine et une salle de bains. La maison est neuve.Le terrain de la propriété s’étend sur 476 m².L’École Élémentaire Vincent Vangogh, l’École Maternelle Jean de la Fontaine et le Collège Françoise Sagan sont implantés à moins de 10 minutes à pied. Niveau transports, on trouve la gare Bornel-Belle-Église juste à côté. L’autoroute A16 est accessible à 4 km. Il y a un tennis, un commerce, une boulangerie, un supermarché, une boucherie-charcuterie et un bureau de poste à quelques minutes à peine.Elle est proposée à l’achat pour 290 000 €.Prenez contact avec Alan RUBAL (tél : (Numéro supprimé)) pour plus de renseignements sur la maison et sur les démarches à suivre. Maisons France Confort Magny-le-Hongre est là pour vous accompagner à toutes les étapes de l’achat.Annonce proposée par un Agent Commercial Partenaire.
Bornel
TERRAIN ET MAISONVENTE : maison F6 (115 m²) à BornelPROCHE D’ARGENTEUIL – MAISON 6 PIÈCES NEUVEÀ vendre : située à 27 km d’Argenteuil, Maisons France Confort Magny-le-Hongre vous présente cette maison de 6 pièces de 115 m² et de 476 m² de terrain à Bornel (60540).Il s’agit d’une maison de 2 niveaux. Son intérieur propose quatre chambres, une cuisine et deux salles de bains. La maison est neuve.L’École Élémentaire Vincent Vangogh, l’École Maternelle Jean de la Fontaine et le Collège Françoise Sagan sont implantés à moins de 10 minutes à pied. Côté transports en commun, il y a la gare Bornel-Belle-Église dans un rayon de 1 km. L’autoroute A16 est accessible à 4 km. On trouve un tennis, un commerce, une boulangerie, un supermarché, une boucherie-charcuterie et une épicerie dans les environs.Elle est à vendre pour la somme de 317 000 €.Contactez notre agence (Alan RUBAL : (Numéro supprimé)) pour plus de renseignements sur la maison, sur les démarches à suivre ou sur les modalités de vente. Maisons France Confort Magny-le-Hongre vous accompagne dans tous vos projets immobiliers et à toutes les étapes de votre projet.Annonce proposée par un Agent Commercial Partenaire.
Bornel
TERRAIN ET MAISONMaison de 5 pièces (80 m²) en vente à BornelMAISON 5 PIÈCES NEUVE – PROCHE D’ARGENTEUILÀ quelques kilomètres d’Argenteuil, nous sommes heureux de vous proposer en vente à Bornel (60540), cette maison de 5 pièces de plain-pied de 80 m² et de 476 m² de terrain.Son intérieur propose trois chambres, une cuisine et une salle de bains. La maison est neuve.Il y a l’École Élémentaire Vincent Vangogh, l’École Maternelle Jean de la Fontaine et le Collège Françoise Sagan à moins de 10 minutes à pied. Côté transports, on trouve la gare Bornel-Belle-Église à proximité. L’autoroute A16 est accessible à 4 km. Il y a un tennis, un commerce, une boulangerie, un supermarché, un bureau de poste et une boucherie-charcuterie dans les environs.Son prix de vente est de 254 000 €.N’hésitez pas à prendre contact avec notre agence (RUBAL Alan : (Numéro supprimé)) pour toute information sur cette maison, sur les modalités de vente ou sur les démarches à suivre. Maisons France Confort Magny-le-Hongre est là pour vous accompagner à toutes les étapes de votre projet.Annonce proposée par un Agent Commercial Partenaire.
Bornel
TERRAIN ET MAISONVENTE : maison T7 (110 m²) à BornelPROCHE D’ARGENTEUIL – MAISON 7 PIÈCES NEUVEEn vente à deux pas d’Argenteuil, Maisons France Confort Magny-le-Hongre vous présente cette maison de 7 pièces de 110 m² et de 476 m² de terrain à Bornel (60540). Elle offre quatre chambres, une cuisine et deux salles de bains.Cette maison possède 2 niveaux. Elle est neuve.L’École Élémentaire Vincent Vangogh, l’École Maternelle Jean de la Fontaine et le Collège Françoise Sagan sont implantés à moins de 10 minutes à pied. Côté transports, il y a la gare Bornel-Belle-Église juste à côté. On trouve un accès à l’autoroute A16 à 4 km. On trouve un tennis, un commerce, une boulangerie, un supermarché, une boucherie-charcuterie et un bureau de poste à proximité.Son prix de vente est de 308 000 €.Contactez Alan RUBAL ((Numéro supprimé)) pour toute information sur la maison ou sur les modalités de vente. Maisons France Confort Magny-le-Hongre est là pour vous accompagner dans tous vos projets immobiliers.Annonce proposée par un Agent Commercial Partenaire.
Noisy-sur-Oise
TERRAINcentre de Noisy sur Oise, terrain constructible de 386 m² en zone UG. Le terrain est en pente mais la zone d’implantation est plate.Honoraires à la charge du vendeurVotre agent commercial 3G IMMO sur place EI – Carole DESPRETS inscrite au RSAC de COMPIEGNE n° 483 339 750 Selon l’article L.561.5 du Code Monétaire et Financier, pour l’organisation de la visite, la présentation d’une pièce d’identité vous sera demandée.Les informations sur les risques auxquels ce bien est exposé sont disponibles sur le site Géorisques : www.georisques.gouv.frLes informations sur les risques auxquels ce bien est exposé sont disponibles sur le site Géorisques : www.georisques.gouv.fr
Esches
TERRAINPrix : 110000 €.Sur ce terrain, réalisez votre projet de construction de maison RE 2020 avec PAVILLONS D'ÎLE-DE-FRANCE (constructeur de maisons de gamme et sur-mesure depuis plus de 50 ans) :- Plan sur-mesure et personnalisé de 2 à 5 chambres- Mode de chauffage au choix- Grands choix d'équipements et de prestations- Matériaux de qualité selon les normes en vigueur- Accompagnement dans le choix et l’acquisition du terrainDemandez une étude gratuite et personnalisée de votre projet de construction sur ce terrain !Contactez Stéphane VERHAUVEN au (Numéro supprimé) ou au (Numéro supprimé) (Pavillons d'Île-de-France – Agence de Meaux).Prix hors frais de notaire. Terrain sélectionné et vu pour vous sous réserve de disponibilité et au prix indiqué par notre partenaire foncier. Visuels non contractuels.Cette annonce a été créée et diffusée avec le logiciel VITAHOME.
Bornel
TERRAINTerrain viabilisé. Seulement à 10 min de Chambly, gare à bornel, proche A16 et N1Prix : 144000 €.Sur ce terrain, réalisez votre projet de construction de maison RE 2020 avec PAVILLONS D'ÎLE-DE-FRANCE (constructeur de maisons de gamme et sur-mesure depuis plus de 50 ans) :- Plan sur-mesure et personnalisé de 2 à 5 chambres- Mode de chauffage au choix- Grands choix d'équipements et de prestations- Matériaux de qualité selon les normes en vigueur- Accompagnement dans le choix et l’acquisition du terrainDemandez une étude gratuite et personnalisée de votre projet de construction sur ce terrain !Contactez Stéphane VERHAUVEN au (Numéro supprimé) ou au (Numéro supprimé) (Pavillons d'Île-de-France – Agence de Meaux).Prix hors frais de notaire. Terrain sélectionné et vu pour vous sous réserve de disponibilité et au prix indiqué par notre partenaire foncier. Visuels non contractuels.Cette annonce a été créée et diffusée avec le logiciel VITAHOME.
Esches
TERRAINTerrain viabilisé, à seulement 3km de Méru, 15min de Chambly. Proche A16 et N1. Gare sur place (PARIS NORD- BEAUVAIS). Ecole maternelle et primaire sur place.Prix : 125000 €.Sur ce terrain, réalisez votre projet de construction de maison RE 2020 avec PAVILLONS D'ÎLE-DE-FRANCE (constructeur de maisons de gamme et sur-mesure depuis plus de 50 ans) :- Plan sur-mesure et personnalisé de 2 à 5 chambres- Mode de chauffage au choix- Grands choix d'équipements et de prestations- Matériaux de qualité selon les normes en vigueur- Accompagnement dans le choix et l’acquisition du terrainDemandez une étude gratuite et personnalisée de votre projet de construction sur ce terrain !Contactez Stéphane VERHAUVEN au (Numéro supprimé) ou au (Numéro supprimé) (Pavillons d'Île-de-France – Agence de Meaux).Prix hors frais de notaire. Terrain sélectionné et vu pour vous sous réserve de disponibilité et au prix indiqué par notre partenaire foncier. Visuels non contractuels.Cette annonce a été créée et diffusée avec le logiciel VITAHOME.
L’actualité immobilière à Chambly
27/11/2023
02/11/2023
30/10/2023
20/10/2023
16/10/2023
16/10/2023