Maison à construire à Chambly (60230)
Images
Description
Concrétisons ensemble votre ptojet de construction sur la commune de NEUILLY EN THELLE
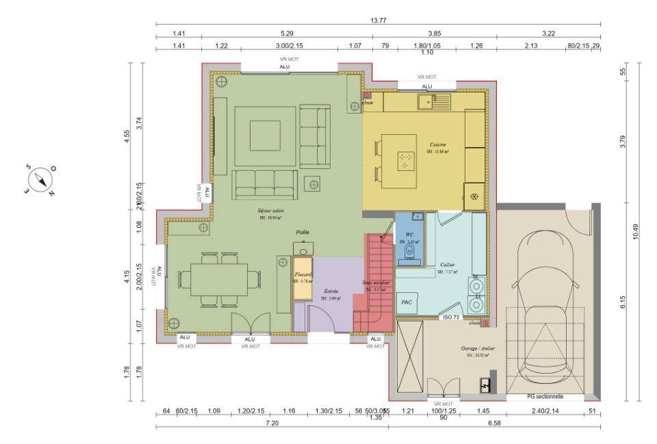
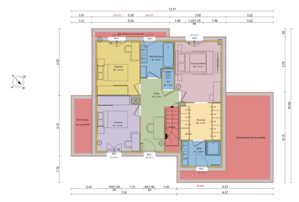
Cette maison offre 124m² habitables , au RDc un espace de vie de 55m², un cellier- buanderie de 7.40m² plus garage / atelier de 23.60 m². A l'étage une suite parentale de 23m² , 2 chambres de 10.50m² , 2sdb un palier de 9m². menuiseries alluminium , PAC air/eau plancher chauffant rdc , radiateurs étage.
Idéalement orienté sud ouest un projet de maison prête à décorée pour un montant de 416000€ , frais annexes et frais de notaire inclus.
Contacter M.AIT de notre agence MAISONS FRANCE CONFORT MOISSELLES au (Numéro supprimé) / (Numéro supprimé) pour plus d'informations ou imaginer ensemble un autre projet sur ce terrain.
Logement susceptibles de vous intéresser
Nous vous proposons de découvrir aussi cette sélection de logements situés à moins de 10km de Chambly et qui seraient susceptibles de vous intéresser.
Dieudonné
TERRAIN ET MAISONVENTE d’une maison F7 (124 m²) à DieudonnéMAISON 7 PIÈCES NEUVE – PROCHE DE CERGYEn vente : à quelques minutes du Transilien H (gare de Persan-Beaumont, 40 min de Paris), nous sommes heureux de vous présenter à Dieudonné (60530), cette maison de 7 pièces de 124 m² et de 522 m² de terrain.Cette maison compte 2 niveaux. Elle compte cinq chambres, une cuisine et trois salles de bains. Cette maison est neuve.L’École Primaire des Trois Cahiers est implantée à moins de 10 minutes à pied. Côté transports en commun, il y a huit gares à moins de 10 minutes en voiture. L’autoroute A16 est accessible à 7 km et Cergy est située à 26 km. On trouve un tennis à proximité de la maison.Son prix de vente est de 287 000 €.Contactez Antoine FLIPPE ((Numéro supprimé)) pour plus d’informations sur cette maison ou sur les démarches à suivre. Concrétisez vos projets immobiliers avec Maisons Balency Pierrelaye.Annonce proposée par un Agent Commercial Partenaire.
Chambly
TERRAIN ET MAISONMaison T5 (101 m²) à vendre à ChamblyMAISON 5 PIÈCES NEUVE – PROCHE DE SAINT-DENISEn vente : à 29 km de Saint-Denis, à Chambly (60230), nous vous présentons cette maison de 5 pièces de plain-pied de 101 m² et de 500 m² de terrain.Elle inclut quatre chambres, une cuisine et une salle de bains. Cette maison est neuve.Plusieurs établissements scolaires (maternelle, élémentaire, primaire et collège) sont implantés à moins de 10 minutes à pied. Côté transports, on trouve la gare Chambly à quelques pas de la maison. L’autoroute A16 et la nationale N184 sont accessibles à moins de 8 km. Il y a une bibliothèque, un tennis, un bassin de natation, trois boulangeries, des commerces, deux épiceries, un bureau de poste et une boucherie-charcuterie à proximité du logement. Le marché Place de Gaulle anime les environs.Son prix de vente est de 266 000 €.Prenez contact avec Antoine FLIPPE (tél : (Numéro supprimé)) pour tout renseignement sur cette maison. Maisons Balency Pierrelaye est là pour vous accompagner dans tous vos projets immobiliers.Annonce proposée par un Agent Commercial Partenaire.
Saint-Martin-du-Tertre
TERRAIN ET MAISONRéalisez votre projet de construction de maison RE 2020 avec PAVILLONS D'ÎLE-DE-FRANCE (constructeur de maisons de gamme et sur-mesure depuis plus de 50 ans) :- Plan sur-mesure et personnalisé de 2 à 5 chambres- Mode de chauffage au choix- Grands choix d'équipements et de prestations- Matériaux de qualité selon les normes en vigueur- Accompagnement dans le choix et l’acquisition du terrainInformations du terrain : Belle façade, relativement plat, proche des commoditésDemandez une étude gratuite et personnalisée de votre projet de construction !Contactez Kamel SELMI au (Numéro supprimé) ou au (Numéro supprimé) (Pavillons d'Île-de-France – Agence de Cauffry).Prix avec assurance dommages-ouvrage comprise, hors VRD, terrain non viabilisé, assainissement non compris, frais de notaire compris, taxes non comprises, frais divers non compris. Terrain sélectionné et vu pour vous sous réserve de disponibilité et au prix indiqué par notre partenaire foncier. Visuels non contractuels.Cette annonce a été créée et diffusée avec le logiciel VITAHOME.
Saint-Martin-du-Tertre
TERRAIN ET MAISONRéalisez votre projet de construction de maison RE 2020 avec PAVILLONS D'ÎLE-DE-FRANCE (constructeur de maisons de gamme et sur-mesure depuis plus de 50 ans) :- Plan sur-mesure et personnalisé de 2 à 5 chambres- Mode de chauffage au choix- Grands choix d'équipements et de prestations- Matériaux de qualité selon les normes en vigueur- Accompagnement dans le choix et l’acquisition du terrainInformations du terrain : Belle façade, relativement plat, proche des commoditésDemandez une étude gratuite et personnalisée de votre projet de construction !Contactez Kamel SELMI au (Numéro supprimé) (Pavillons d'Île-de-France – Agence de Cauffry).Prix avec assurance dommages-ouvrage comprise, hors VRD, terrain non viabilisé, assainissement non compris, frais de notaire compris, taxes non comprises, frais divers non compris. Terrain sélectionné et vu pour vous sous réserve de disponibilité et au prix indiqué par notre partenaire foncier. Visuels non contractuels.Cette annonce a été créée et diffusée avec le logiciel VITAHOME.
Champagne-sur-Oise
TERRAIN ET MAISONVENTE : maison de 6 pièces (90 m²) à Champagne-sur-OiseCENTRE-VILLE – MAISON 6 PIÈCES NEUVEÀ deux pas de la gare (Paris à 50 min par le Transilien H), votre agence Maisons France Confort Moisselles est ravie de vous présenter à vendre, à Champagne-sur-Oise (95660), en centre-ville, cette maison de 6 pièces de 90 m². Elle comporte trois chambres, une cuisine et une salle de bains.Le terrain de la propriété est de 390 m².C’est une maison de 2 niveaux. Elle est neuve.Il y a des établissements scolaires primaires dans la commune. On trouve une bibliothèque à proximité du logement.Elle est à vendre pour la somme de 345 670 €.Contactez Emmanuel au (Numéro supprimé) pour obtenir de plus amples informations sur la maison ou sur les modalités de vente. Maisons France Confort Moisselles est là pour vous accompagner dans toutes vos démarches.
Esches
TERRAINÀ Vendre : Terrain Exceptionnel de 456 m² – Idéal pour Votre Future Maison ! ??Situé dans un environnement prisé, ce magnifique terrain de 456 m² offre un cadre naturel rare et recherché. Parfait pour les personnes souhaitant construire une maison confortable et entièrement sur mesure.- Projet de construction avec notre partenaireLa vente inclut la possibilité de construire votre future maison avec notre partenaire, entreprise reconnue pour la qualité de ses réalisations, son accompagnement sur mesure et son expertise dans l’habitat durable.Vous pourrez bénéficier :- D’un accompagnement complet (plans, permis, construction)- D’une maison personnalisée selon vos goûts et besoins- D’un projet clé en main en toute sérénité- Localisation :Environnement paisible, proche des commodités, écoles, commerces, axes routiers, tout en restant à l’écart de la foule.- Viabilités :Le terrain dispose des viabilités TAE déjà raccordéEau / Electricité / Telecom prêt à être raccordés? Une opportunité rare pour concrétiser votre projet de vie !Contactez Gérald AFONSO au 06 / 98 / 03 / 84 /87 dès maintenant pour plus d’informations, une visite ou une étude personnalisée. Les honoraires sont à la charge du vendeur.Les informations sur les risques auxquels ce bien est exposé sont disponibles sur le site Géorisques : www. georisques. gouv. fr.Contactez Gérald AFONSO Entrepreneur Individuel, Agent commercial OptimHome (RSAC N(Numéro supprimé) Greffe de COMPIEGNE) (Numéro supprimé) (réf. 598277 )
Chambly
TERRAIN ET MAISONVENTE d’une maison de 5 pièces (98 m²) à ChamblyPROCHE DE SAINT-DENIS – MAISON 5 PIÈCES NEUVEEn vente à 29 km de Saint-Denis, à Chambly (60230), nous sommes heureux de vous proposer cette maison de 5 pièces de 98 m² et de 500 m² de terrain.Cette maison comporte 2 niveaux. Elle comporte quatre chambres, une cuisine et une salle de bains. Cette maison est neuve.Il y a plusieurs écoles (maternelle, élémentaire, primaire et collège) à moins de 10 minutes à pied. Côté transports en commun, on trouve la gare Chambly à quelques pas du bien. L’autoroute A16 et la nationale N184 sont accessibles à moins de 8 km. Il y a une bibliothèque, un tennis, un bassin de natation, trois boulangeries, des commerces, un bureau de poste, deux épiceries et une boucherie-charcuterie à proximité du logement. Enfin, le marché Place de Gaulle anime les environs.Elle est à vendre pour la somme de 277 000 €.Prenez contact avec Antoine FLIPPE (tél : (Numéro supprimé)) pour tout renseignement sur la maison ou sur les modalités de vente. Maisons Balency Pierrelaye vous accompagne dans toutes vos démarches et à toutes les étapes de l’achat.Annonce proposée par un Agent Commercial Partenaire.
Amblainville
TERRAIN ET MAISONAmblainville : maison de 6 pièces (105 m²) en venteMAISON 6 PIÈCES NEUVE – PROCHE D’ARGENTEUILÀ vendre : à deux pas d’Argenteuil, nous vous présentons cette maison de 6 pièces de 105 m² et de 510 m² de terrain à Amblainville (60110).Il s’agit d’une maison de 2 niveaux. Elle se divise en quatre chambres, une cuisine et deux salles de bains. Cette maison est neuve.Il y a des établissements scolaires maternelles et élémentaires dans le quartier. Côté transports en commun, on trouve cinq gares à moins de 10 minutes en voiture. Il y a un accès à l’autoroute A16 à 3 km. Il y a une bibliothèque, un tennis, une boulangerie et un bureau de poste à quelques minutes du bien.Elle est à vendre pour la somme de 290 000 €.Contactez notre agence (Antoine FLIPPE : (Numéro supprimé)) pour toute question sur la maison ou sur les démarches à suivre. Maisons Balency Pierrelaye est là pour vous accompagner à toutes les étapes de votre projet.Annonce proposée par un Agent Commercial Partenaire.
Dieudonné
TERRAIN ET MAISONVENTE d’une maison de 7 pièces (102 m²) à DieudonnéPROCHE DE CERGY – MAISON 7 PIÈCES NEUVEÀ quelques minutes du Transilien H (gare de Persan-Beaumont, 40 min de Paris), nous sommes ravis de vous présenter cette maison de 7 pièces de 102 m² à vendre à Dieudonné (60530). Son intérieur inclut cinq chambres, une cuisine et deux salles de bains.Le terrain du bien s’étend sur 522 m².Cette maison comporte 2 niveaux. Elle est neuve.L’École Primaire des Trois Cahiers est implantée à moins de 10 minutes à pied. Niveau transports, il y a huit gares à moins de 10 minutes en voiture. L’autoroute A16 est accessible à 7 km et Cergy se situe à 26 km. On trouve un tennis à quelques minutes à peine.Elle est proposée à l’achat pour 262 000 €.Contactez notre agence (FLIPPE Antoine : (Numéro supprimé)) pour toute question sur la maison.Annonce proposée par un Agent Commercial Partenaire.
L’actualité immobilière à Chambly
27/11/2023
02/11/2023
30/10/2023
20/10/2023
16/10/2023
16/10/2023