Maison à construire à Chaumont-en-Vexin (60240)
Images
Description
VENTE d'une maison F6 (110 m²) à Chaumont-en-Vexin
PROCHE GARE - MAISON 6 PIÈCES NEUVE
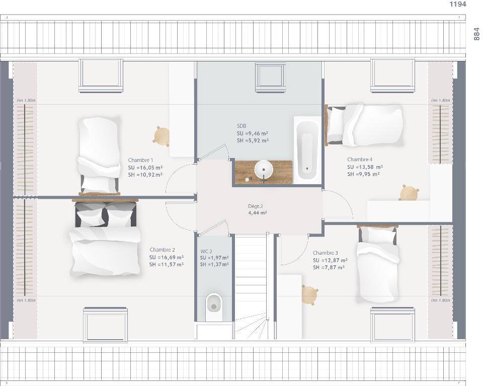
À vendre : à proximité du Transilien J (1 h de Paris), Maisons France Confort Magny-le-Hongre vous présente cette maison de 6 pièces de 110 m² proche de la gare de Chaumont-en-Vexin (60240).
Il s'agit d'une maison de 2 niveaux. Son intérieur propose quatre chambres, une cuisine et une salle de bains. Cette maison est neuve.
Le terrain du bien est de 660 m².
Il y a l'École Maternelle Roger Blondeau, l'École Élémentaire Roger Blondeau et le Collège Saint-Exupéry à moins de 10 minutes à pied. Côté transports, on trouve la gare Chaumont-en-Vexin juste à côté. La nationale N31 est accessible à 17 km et Cergy est située à 29 km. Il y a quatre commerces, une boulangerie, deux supermarchés, un bureau de poste et une boucherie-charcuterie dans les environs.
Elle est à vendre pour la somme de 300 000 €.
N'hésitez pas à prendre contact avec notre agence (Cedric YAHIAOUI : (Numéro supprimé)) pour toute information sur la maison, sur les modalités de vente ou sur les démarches à suivre. Maisons France Confort Magny-le-Hongre vous accompagne à toutes les étapes de votre projet et dans tous vos projets immobiliers.
Annonce proposée par un Agent Commercial Partenaire.
Logement susceptibles de vous intéresser
Nous vous proposons de découvrir aussi cette sélection de logements situés à moins de 10km de Chaumont-en-Vexin et qui seraient susceptibles de vous intéresser.
Labosse
TERRAINVENTE : terrain de 850 m² à LabossePROCHE DE BEAUVAISÀ Labosse (60590) à proximité de la gare de Trie-Château (Paris à 1 h avec le Transilien J), imaginez la maison de vos rêves sur ce terrain de 850 m². Le terrain est proche des écoles et des commerces. Niveau transports en commun, il y a trois gares (Trie-Château, Chaumont-en-Vexin et Sérifontaine) à moins de 10 minutes en voiture. La nationale N31 est accessible à 10 km et Beauvais se situe à 17 km. On trouve une bibliothèque à proximité.Il est proposé à l’achat pour 60 000 €. Prenez contact avec Antoine FLIPPE (tél : (Numéro supprimé)) pour obtenir de plus amples renseignements sur ce terrain ou sur les démarches à suivre.Annonce proposée par un Agent Commercial Partenaire.
Labosse
TERRAIN ET MAISONVENTE : maison de 6 pièces (80 m²) à LabosseMAISON 6 PIÈCES NEUVE – PROCHE DE BEAUVAISÀ vendre : à côté du Transilien J (gare de Trie-Château, 1 h de Paris), nous vous présentons cette maison de 6 pièces de 80 m² et de 850 m² de terrain à Labosse (60590).Cette maison compte 2 niveaux. Son intérieur dispose de quatre chambres, d’une cuisine et de deux salles de bains. Cette maison est neuve.Niveau transports, on trouve trois gares (Trie-Château, Chaumont-en-Vexin et Sérifontaine) à moins de 10 minutes en voiture. On trouve un accès à la nationale N31 à 10 km et Beauvais est située à 17 km. Il y a une bibliothèque à proximité du logement.Elle est à vendre pour la somme de 246 000 €.N’hésitez pas à prendre contact avec Antoine FLIPPE (tél : (Numéro supprimé)) pour toute question sur la maison.Annonce proposée par un Agent Commercial Partenaire.
Labosse
TERRAIN ET MAISONVENTE d’une maison de 5 pièces (90 m²) à LabossePROCHE DE BEAUVAIS – MAISON 5 PIÈCES NEUVEÀ proximité de la gare de Trie-Château (Paris à 1 h avec le Transilien J), en vente à Labosse (60590), nous vous proposons cette maison de 5 pièces de 90 m² et de 850 m² de terrain. Elle propose trois chambres, une cuisine et une salle de bains.C’est une maison de 2 niveaux. Elle est neuve.Niveau transports en commun, il y a trois gares (Trie-Château, Chaumont-en-Vexin et Sérifontaine) à moins de 10 minutes en voiture. On trouve un accès à la nationale N31 à 10 km et Beauvais se situe à 17 km. On trouve une bibliothèque à quelques minutes à peine.Elle est proposée à l’achat pour 252 000 €.Prenez contact avec notre agence (Antoine FLIPPE : (Numéro supprimé)) pour plus de renseignements sur cette maison. Concrétisez vos projets immobiliers avec Maisons Balency Baillet-en-France.Annonce proposée par un Agent Commercial Partenaire.
Labosse
TERRAIN ET MAISONVENTE d’une maison de 6 pièces (105 m²) à LabossePROCHE DE BEAUVAIS – MAISON 6 PIÈCES NEUVEÀ vendre : à côté du Transilien J (gare de Trie-Château, 1 h de Paris), découvrez à Labosse (60590), cette maison de 6 pièces de 105 m² et de 850 m² de terrain.C’est une maison de 2 niveaux. Son intérieur inclut quatre chambres, une cuisine et deux salles de bains. La maison est neuve.Niveau transports en commun, il y a les gares Trie-Château, Chaumont-en-Vexin et Sérifontaine à moins de 10 minutes en voiture. La nationale N31 est accessible à 10 km et Beauvais se situe à 17 km. On trouve une bibliothèque à proximité du bien.Elle est à vendre pour la somme de 260 000 €.Contactez Antoine FLIPPE (tél : (Numéro supprimé)) pour tout renseignement sur cette propriété, sur les modalités de vente ou sur les démarches à suivre.Annonce proposée par un Agent Commercial Partenaire.
Fleury
TERRAINMagnifique terrain dans un secteur calme et proche toutes commodités. Viabilisé. Terrasse plein SUD. 15 mn de l'A16 et 15 mn de Méru. Pas de contraintes ABF. Possibilité R+1. Ne loupez pas une telle opportunitéPrix : 78000 €.Sur ce terrain, réalisez votre projet de construction de maison RE 2020 avec PAVILLONS D'ÎLE-DE-FRANCE (constructeur de maisons de gamme et sur-mesure depuis plus de 50 ans) :- Plan sur-mesure et personnalisé de 2 à 5 chambres- Mode de chauffage au choix- Grands choix d'équipements et de prestations- Matériaux de qualité selon les normes en vigueur- Accompagnement dans le choix et l’acquisition du terrainDemandez une étude gratuite et personnalisée de votre projet de construction sur ce terrain !Contactez Véronique LEMOUTON au (Numéro supprimé) ou au (Numéro supprimé) (Pavillons d'Île-de-France – Agence de Cauffry).Prix hors frais de notaire. Terrain sélectionné et vu pour vous sous réserve de disponibilité et au prix indiqué par notre partenaire foncier. Visuels non contractuels.Cette annonce a été créée et diffusée avec le logiciel VITAHOME.
Delincourt
TERRAINVous êtes à la recherche d'un terrain qui saura concrétiser vos ambitions ? Ne cherchez plus ! Ce terrain généreusement dimensionné, situé dans un quartier prisé et recherché, représente une occasion rare de bâtir le projet de vos rêves. Caractéristiques : Emplacement privilégié, offrant une accessibilité facile aux principales commodités locales ainsi qu'aux principaux axes de transport. Cadre paisible et serein, parfait pour ceux qui souhaitent allier tranquillité et proximité avec l'animation urbaine. Proximité immédiate des écoles, commerces et services essentiels, offrant ainsi confort et praticité au quotidien. C'est l'opportunité parfaite pour investir dans un avenir prometteur. Ne laissez pas passer cette chance unique de donner vie à vos projets ! Pour plus d'informations ou pour organiser une visite, contactez-moi sans tarder.Prix : 73900 €.Sur ce terrain, réalisez votre projet de construction de maison RE 2020 avec PAVILLONS D'ÎLE-DE-FRANCE (constructeur de maisons de gamme et sur-mesure depuis plus de 50 ans) :- Plan sur-mesure et personnalisé de 2 à 5 chambres- Mode de chauffage au choix- Grands choix d'équipements et de prestations- Matériaux de qualité selon les normes en vigueur- Accompagnement dans le choix et l’acquisition du terrainDemandez une étude gratuite et personnalisée de votre projet de construction sur ce terrain !Contactez Jason GUEVEL au (Numéro supprimé) ou au (Numéro supprimé) (Pavillons d'Île-de-France – Agence de Cauffry).Prix hors frais de notaire. Terrain sélectionné et vu pour vous sous réserve de disponibilité et au prix indiqué par notre partenaire foncier. Visuels non contractuels.Cette annonce a été créée et diffusée avec le logiciel VITAHOME.
Éragny-sur-Epte
TERRAINTerrain à vendre : emplacement idéal pour votre prochain projet. Description : A la recherche du lieu parfait pour concrétiser votre vision ? Ne chercher plus, il est là ! Ce terrain spacieux, situé dans un quartier très rechercher, offre une belle opportunité unique pour réaliser le projet d’une vie Caractéristiques : – Emplacement stratégique offrant un accès facile aux commodités locales et aux axes de transport. – Environnement calme et paisible, idéal pour ceux qui recherchent la tranquillité tout en restant connectés à la vie urbaine. – Proximité des écoles, commerces et autres services essentiels, garantissant une vie pratique et confortable. Ne manquez pas cette opportunité unique d’investir dans l’avenir et de réaliser vos aspirations. N’hésitez pas à me contacter dès maintenant pour plus d’informations et pour planifier une visite sur place !Prix : 75900 €.Sur ce terrain, réalisez votre projet de construction de maison RE 2020 avec PAVILLONS D'ÎLE-DE-FRANCE (constructeur de maisons de gamme et sur-mesure depuis plus de 50 ans) :- Plan sur-mesure et personnalisé de 2 à 5 chambres- Mode de chauffage au choix- Grands choix d'équipements et de prestations- Matériaux de qualité selon les normes en vigueur- Accompagnement dans le choix et l’acquisition du terrainDemandez une étude gratuite et personnalisée de votre projet de construction sur ce terrain !Contactez Jason GUEVEL au (Numéro supprimé) ou au (Numéro supprimé) (Pavillons d'Île-de-France – Agence de Cauffry).Prix hors frais de notaire. Terrain sélectionné et vu pour vous sous réserve de disponibilité et au prix indiqué par notre partenaire foncier. Visuels non contractuels.Cette annonce a été créée et diffusée avec le logiciel VITAHOME.
Éragny-sur-Epte
TERRAIN*** SUPER OFFRES POUR BIEN COMMENCER L'ANNÉE 2025, LES FRAIS DE NOTAIRE SONT OFFERTS ***Vous êtes à la recherche d'un terrain qui saura concrétiser vos ambitions ? Ne cherchez plus ! Ce terrain généreusement dimensionné, situé dans un quartier prisé et recherché, représente une occasion rare de bâtir le projet de vos rêves. Caractéristiques : Emplacement privilégié, offrant une accessibilité facile aux principales commodités locales ainsi qu'aux principaux axes de transport. Cadre paisible et serein, parfait pour ceux qui souhaitent allier tranquillité et proximité avec l'animation urbaine. Proximité immédiate des écoles, commerces et services essentiels, offrant ainsi confort et praticité au quotidien. C'est l'opportunité parfaite pour investir dans un avenir prometteur. Ne laissez pas passer cette chance unique de donner vie à vos projets ! Pour plus d'informations ou pour organiser une visite, contactez-moi sans tarder.Prix : 75900 €.Sur ce terrain, réalisez votre projet de construction de maison RE 2020 avec PAVILLONS D'ÎLE-DE-FRANCE (constructeur de maisons de gamme et sur-mesure depuis plus de 50 ans) :- Plan sur-mesure et personnalisé de 2 à 5 chambres- Mode de chauffage au choix- Grands choix d'équipements et de prestations- Matériaux de qualité selon les normes en vigueur- Accompagnement dans le choix et l’acquisition du terrainDemandez une étude gratuite et personnalisée de votre projet de construction sur ce terrain !Contactez Jason GUEVEL au (Numéro supprimé) ou au (Numéro supprimé) (Pavillons d'Île-de-France – Agence de Cauffry).Prix hors frais de notaire. Terrain sélectionné et vu pour vous sous réserve de disponibilité et au prix indiqué par notre partenaire foncier. Visuels non contractuels.Cette annonce a été créée et diffusée avec le logiciel VITAHOME.
Fleury
TERRAINMagnifique terrain dans un secteur calme et proche toutes commodités. Viabilisé. Terrasse plein SUD. 15 mn de l'A16 et 15 mn de Méru. Pas de contraintes ABF. Possibilité R+1. Ne loupez pas une telle opportunitéPrix : 79000 €.Sur ce terrain, réalisez votre projet de construction de maison RE 2020 avec PAVILLONS D'ÎLE-DE-FRANCE (constructeur de maisons de gamme et sur-mesure depuis plus de 50 ans) :- Plan sur-mesure et personnalisé de 2 à 5 chambres- Mode de chauffage au choix- Grands choix d'équipements et de prestations- Matériaux de qualité selon les normes en vigueur- Accompagnement dans le choix et l’acquisition du terrainDemandez une étude gratuite et personnalisée de votre projet de construction sur ce terrain !Contactez Véronique LEMOUTON au (Numéro supprimé) ou au (Numéro supprimé) (Pavillons d'Île-de-France – Agence de Cauffry).Prix hors frais de notaire. Terrain sélectionné et vu pour vous sous réserve de disponibilité et au prix indiqué par notre partenaire foncier. Visuels non contractuels.Cette annonce a été créée et diffusée avec le logiciel VITAHOME.
L’actualité immobilière à Chaumont-en-Vexin
27/11/2023
02/11/2023
30/10/2023
20/10/2023
16/10/2023
16/10/2023