Images
Description
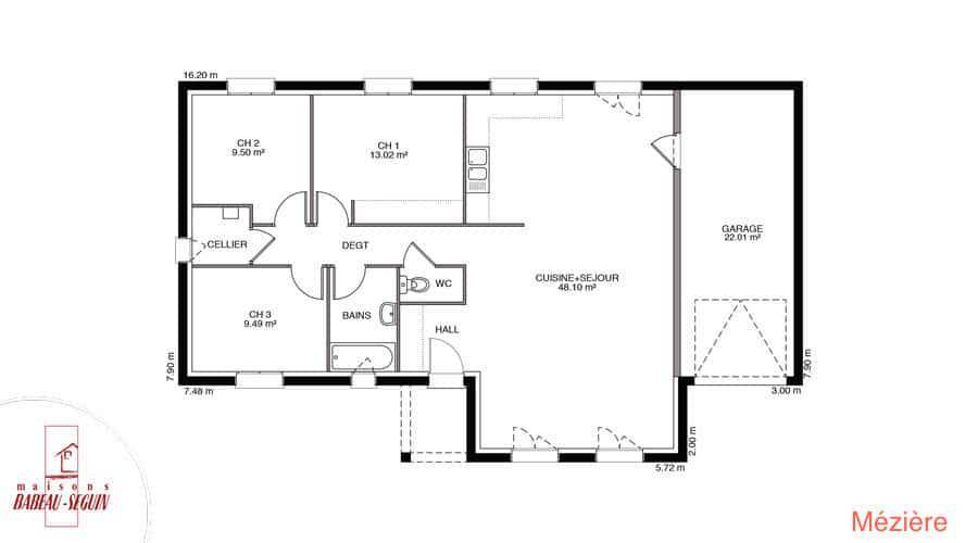
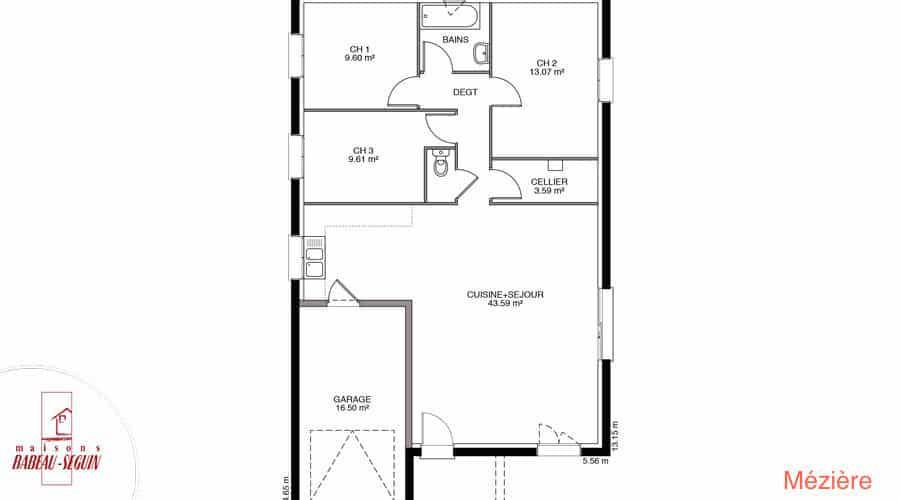
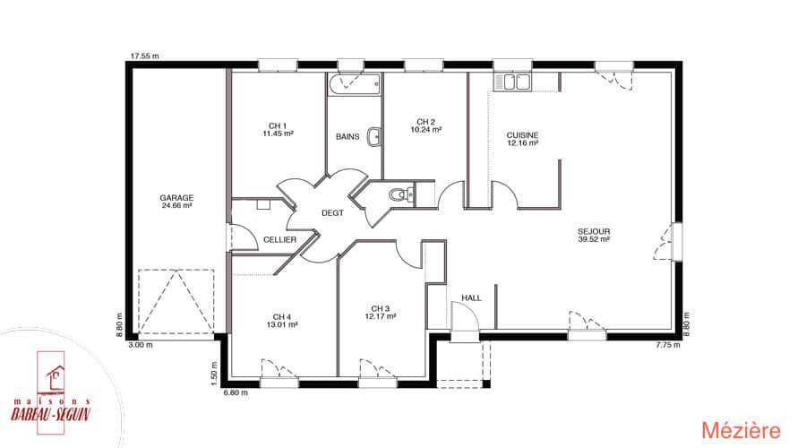
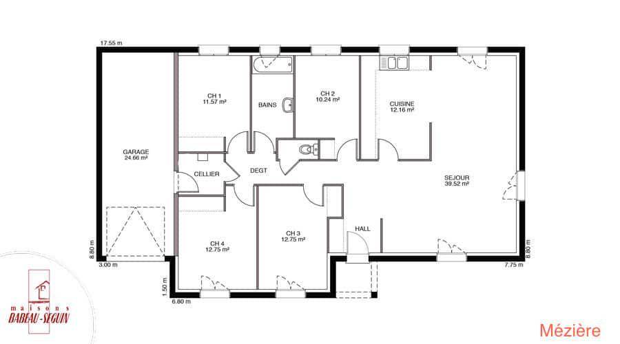
Sur ce terrain, nous vous proposons cette maison neuve, modèle Mézière, conçue par Babeau-Seguin, constructeur offrant le meilleur rapport qualité/prix du marché. Avec une surface de 108 m², cette maison basse consommation, conforme à la RE2020, saura répondre à toutes vos attentes.
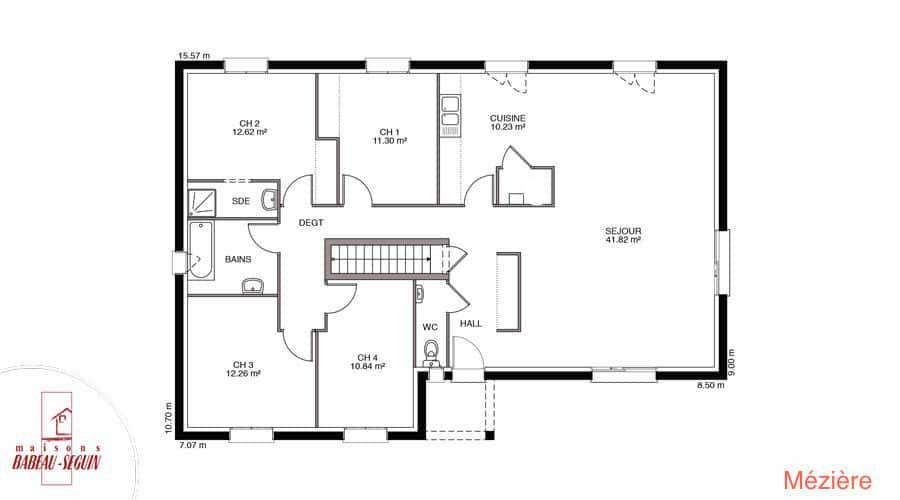
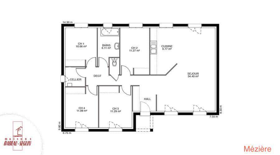
La Mézière se distingue par son plan en L, disponible en version 2 pans ou 4 pans, et ses 4 chambres spacieuses réparties sur 4 pièces. Grâce à ses nombreuses versions, elle sait séduire et s’adapter aux besoins de chacun, ce qui fait de la Mézière une véritable maison sur mesure.
Les options les plus demandées par nos clients, telles que les menuiseries en aluminium, la domotique, ainsi que le garage ou le sous-sol, sont disponibles pour personnaliser votre maison selon vos envies et besoins.
Véritable coup de cœur pour de nombreux clients Babeau-Seguin, la Mézière est facilement modifiable, ce qui justifie pleinement son succès. Craquerez-vous aussi pour elle ?
N'attendez plus pour découvrir cette maison qui répondra aux besoins de nombreuses familles. Contactez-nous pour plus d'informations et pour organiser une visite.
Logement susceptibles de vous intéresser
Nous vous proposons de découvrir aussi cette sélection de logements situés à moins de 10km de Chepoix et qui seraient susceptibles de vous intéresser.

Campremy
TERRAIN ET MAISONSur ce terrain, nous vous proposons cette maison neuve : la Focus EVO City, conçue par Babeau-Seguin, constructeur offrant le meilleur rapport qualité/prix du marché. Découvrez l’innovant concept de la Focus EVO City, une maison qui combine les atouts d’une maison neuve clé en main avec la flexibilité et l’avantage tarifaire du prêt à finir ! Cette maison de 100 m², conçue pour évoluer, vous offre à sa livraison, une vaste pièce de vie lumineuse, 4 chambres et une salle de bain, avec des performances énergétiques exceptionnelles et un coût de construction abordable. Surtout, cette maison est conçue dès le départ pour évoluer.Une maison prête à s’adapterQue votre famille s’agrandisse ou que vous ayez besoin d’une chambre d’amis, la Focus EVO City se distingue en tant que première maison Babeau-Seguin prête à évoluer. Elle intègre une trémie pour accueillir un futur escalier, ainsi que des chevêtres de toit prévus pour les fenêtres de vos futurs combles aménagés. Notre plan détaillé vous guide dans l’aménagement de vos combles, faisant passer votre maison de 100 m² à une surface encore plus généreuse avec des espaces supplémentaires, transformant la Focus EVO City en véritable maison familiale !Une maison qui évoluera avec vos besoinsQue vous soyez un jeune couple désirant savourer la vie à deux avant l’arrivée d’un heureux événement, ou bien un célibataire passionné de bricolage souhaitant sa salle de projection privée, la Focus EVO City est la maison qui saura évoluer au rythme de votre vie et de vos aspirations !Idéale pour ce terrain et pour les petits budgets, cette Focus EVO City est aussi bien équipée que l’ensemble de nos modèles. Cette dernière est une maison neuve écologique répondant aux standards stricts de la RE2020. Économie à la construction, économie à la consommation !Les caractéristiques principales de cette maison incluent des combles aménageables, un excellent rapport qualité/prix, une conception évolutive et un cellier. Les options les

Campremy
TERRAINVenez découvrir ce terrain de 808 m² situé dans la charmante commune de Campremy, au cœur de l’Oise, dans la région des Hauts-de-France. Ce terrain non-viabilisé, offrant une belle superficie, représente une opportunité rare pour concrétiser votre projet de construction de maison. Avec ses caractéristiques uniques, cet emplacement bénéficie d’une vue dégagée, d’un environnement calme et est idéalement placé à proximité d’un arrêt de bus. Ne manquez pas la chance de bâtir la maison de vos rêves sur cette parcelle prometteuse ! Ce terrain représente une belle opportunité à saisir pour tous ceux qui rêvent de construire leur propre maison dans un cadre idéal. N’attendez plus pour envisager cette chance unique d’acquérir un bien à fort potentiel ! À noter qu’en tant que constructeur, nous ne sommes pas mandatés pour réaliser la vente de ce terrain.

Wavignies
TERRAINVous voulez donner vie à votre projet dans une commune calme, à la campagne mais proche de toutes les commodités.. Alors ce magnifique terrain à bâtir vous attend. Ensoleillement idéal, pas d'impositions Bâtiment de France et cerise sur le gâteau, il est déjà viabilisé. Gare pour Paris à 5 mn en voiture ET situé à 15 mn de Beauvais. Une pure merveille dans un cadre reposant.Prix : 35000 €.Sur ce terrain, réalisez votre projet de construction de maison RE 2020 avec PAVILLONS D'ÎLE-DE-FRANCE (constructeur de maisons de gamme et sur-mesure depuis plus de 50 ans) :- Plan sur-mesure et personnalisé de 2 à 5 chambres- Mode de chauffage au choix- Grands choix d'équipements et de prestations- Matériaux de qualité selon les normes en vigueur- Accompagnement dans le choix et l’acquisition du terrainDemandez une étude gratuite et personnalisée de votre projet de construction sur ce terrain !Contactez Véronique LEMOUTON au (Numéro supprimé) ou au (Numéro supprimé) (Pavillons d'Île-de-France – Agence de Cauffry).Prix hors frais de notaire. Terrain sélectionné et vu pour vous sous réserve de disponibilité et au prix indiqué par notre partenaire foncier. Visuels non contractuels.Cette annonce a été créée et diffusée avec le logiciel VITAHOME.

Wavignies
TERRAINDeux superbes terrains verdoyants de 522 m² dans un village calme et champêtre. Ces magnifiques terrains plats, offrent le cadre idyllique pour votre projet de vie. Imaginez construire votre maison de rêve, au sein d'une charmante commune, où sérénité et bien être sont les maîtres mots. Avec un emplacement de choix au coeur du village, vous bénéficiez d'une proximité immédiate avec des commerces, maternelle et primaire à pieds et ramassage scolaire pour le collège et lycée. Accès direct gare Paris Nord et toutes les commodités à 5mn en voiture à St Just en Chaussée, et 15mn de Beauvais. Ne laissez pas une telle occasion vous passez sous le nez. N'hésitez pas à me contacter Véronique LEMOUTON – (Numéro supprimé)Prix : 40000 €.Sur ce terrain, réalisez votre projet de construction de maison RE 2020 avec PAVILLONS D'ÎLE-DE-FRANCE (constructeur de maisons de gamme et sur-mesure depuis plus de 50 ans) :- Plan sur-mesure et personnalisé de 2 à 5 chambres- Mode de chauffage au choix- Grands choix d'équipements et de prestations- Matériaux de qualité selon les normes en vigueur- Accompagnement dans le choix et l’acquisition du terrainDemandez une étude gratuite et personnalisée de votre projet de construction sur ce terrain !Contactez Véronique LEMOUTON au (Numéro supprimé) ou au (Numéro supprimé) (Pavillons d'Île-de-France – Agence de Cauffry).Prix hors frais de notaire. Terrain sélectionné et vu pour vous sous réserve de disponibilité et au prix indiqué par notre partenaire foncier. Visuels non contractuels.Cette annonce a été créée et diffusée avec le logiciel VITAHOME.

Wavignies
TERRAIN ET MAISONRéalisez votre projet de construction de maison RE 2020 avec PAVILLONS D'ÎLE-DE-FRANCE (constructeur de maisons de gamme et sur-mesure depuis plus de 50 ans) :- Plan sur-mesure et personnalisé de 2 à 5 chambres- Mode de chauffage au choix- Grands choix d'équipements et de prestations- Matériaux de qualité selon les normes en vigueur- Accompagnement dans le choix et l’acquisition du terrainInformations du terrain : Vous voulez donner vie à votre projet dans une commune calme, à la campagne mais proche de toutes les commodités.. Alors ce magnifique terrain à bâtir vous attend. Ensoleillement idéal, pas d'impositions Bâtiment de France et cerise sur le gâteau, il est déjà viabilisé. Gare pour Paris à 5 mn en voiture ET situé à 15 mn de Beauvais. Une pure merveille dans un cadre reposant.Demandez une étude gratuite et personnalisée de votre projet de construction !Contactez Véronique LEMOUTON au (Numéro supprimé) ou au (Numéro supprimé) (Pavillons d'Île-de-France – Agence de Cauffry).Prix avec assurance dommages-ouvrage comprise, hors VRD, terrain viabilisé, assainissement non compris, frais de notaire non compris, taxes non comprises, frais divers non compris. Terrain sélectionné et vu pour vous sous réserve de disponibilité et au prix indiqué par notre partenaire foncier. Visuels non contractuels.Cette annonce a été créée et diffusée avec le logiciel VITAHOME.

Wavignies
TERRAIN ET MAISONRéalisez votre projet de construction de maison RE 2020 avec PAVILLONS D'ÎLE-DE-FRANCE (constructeur de maisons de gamme et sur-mesure depuis plus de 50 ans) :- Plan sur-mesure et personnalisé de 2 à 5 chambres- Mode de chauffage au choix- Grands choix d'équipements et de prestations- Matériaux de qualité selon les normes en vigueur- Accompagnement dans le choix et l’acquisition du terrainInformations du terrain : Vous voulez donner vie à votre projet dans une commune calme, à la campagne mais proche de toutes les commodités.. Alors ce magnifique terrain à bâtir vous attend. Ensoleillement idéal, pas d'impositions Bâtiment de France et cerise sur le gâteau, il est déjà viabilisé. Gare pour Paris à 5 mn en voiture ET situé à 15 mn de Beauvais. Une pure merveille dans un cadre reposant.Demandez une étude gratuite et personnalisée de votre projet de construction !Contactez Véronique LEMOUTON au (Numéro supprimé) ou au (Numéro supprimé) (Pavillons d'Île-de-France – Agence de Cauffry).Prix avec assurance dommages-ouvrage comprise, hors VRD, terrain viabilisé, assainissement non compris, frais de notaire non compris, taxes non comprises, frais divers non compris. Terrain sélectionné et vu pour vous sous réserve de disponibilité et au prix indiqué par notre partenaire foncier. Visuels non contractuels.Cette annonce a été créée et diffusée avec le logiciel VITAHOME.

Wavignies
TERRAIN ET MAISONRéalisez votre projet de construction de maison RE 2020 avec PAVILLONS D'ÎLE-DE-FRANCE (constructeur de maisons de gamme et sur-mesure depuis plus de 50 ans) :- Plan sur-mesure et personnalisé de 2 à 5 chambres- Mode de chauffage au choix- Grands choix d'équipements et de prestations- Matériaux de qualité selon les normes en vigueur- Accompagnement dans le choix et l’acquisition du terrainInformations du terrain : Vous voulez donner vie à votre projet dans une commune calme, à la campagne mais proche de toutes les commodités.. Alors ce magnifique terrain à bâtir vous attend. Ensoleillement idéal, pas d'impositions Bâtiment de France et cerise sur le gâteau, il est déjà viabilisé. Gare pour Paris à 5 mn en voiture ET situé à 15 mn de Beauvais. Une pure merveille dans un cadre reposant.Demandez une étude gratuite et personnalisée de votre projet de construction !Contactez Véronique LEMOUTON au (Numéro supprimé) ou au (Numéro supprimé) (Pavillons d'Île-de-France – Agence de Cauffry).Prix avec assurance dommages-ouvrage comprise, hors VRD, terrain viabilisé, assainissement non compris, frais de notaire non compris, taxes non comprises, frais divers non compris. Terrain sélectionné et vu pour vous sous réserve de disponibilité et au prix indiqué par notre partenaire foncier. Visuels non contractuels.Cette annonce a été créée et diffusée avec le logiciel VITAHOME.

Wavignies
TERRAIN ET MAISONModèle disposant en RDC d'un bureau/Chambre d'amis avec SDO. 3 belles chambres à l'étage dont 1 parentale (dressing+ SDO) et une SDB commune.Ce modèle n'est pas contractuel et peut être modifié selon vos choix afin de convenir à la maison de vos rêves.Demandez une étude gratuite et personnalisée de votre projet de construction !Contactez Véronique LEMOUTON au (Numéro supprimé) ou au (Numéro supprimé) (Pavillons d'Île-de-France – Agence de Cauffry).Prix avec assurance dommages-ouvrage comprise, hors VRD, terrain viabilisé, assainissement non compris, frais de notaire non compris, taxes non comprises, frais divers non compris. Terrain sélectionné et vu pour vous sous réserve de disponibilité et au prix indiqué par notre partenaire foncier. Visuels non contractuels.Cette annonce a été créée et diffusée avec le logiciel VITAHOME.

Wavignies
TERRAIN ET MAISONCe projet est idéal pour un terrain situé en secteur ABF. Il dispose d''une parentale en RDC et de 3 chambres + SDB à l'étage.Ce modèle n'est pas contractuel et peut être modifié selon vos choix afin de convenir à la maison de vos rêves.Demandez une étude gratuite et personnalisée de votre projet de construction !Contactez Véronique LEMOUTON au (Numéro supprimé) ou au (Numéro supprimé) (Pavillons d'Île-de-France – Agence de Cauffry).Prix avec assurance dommages-ouvrage comprise, hors VRD, terrain viabilisé, assainissement non compris, frais de notaire non compris, taxes non comprises, frais divers non compris. Terrain sélectionné et vu pour vous sous réserve de disponibilité et au prix indiqué par notre partenaire foncier. Visuels non contractuels.Cette annonce a été créée et diffusée avec le logiciel VITAHOME.
L’actualité immobilière à Chepoix





