Maison à construire à Clermont (60600)
Images
Description
Cambronne-lès-Clermont : maison de 8 pièces (145 m²) en vente
EMPLACEMENT PRIVILÉGIÉ - MAISON 8 PIÈCES NEUVE
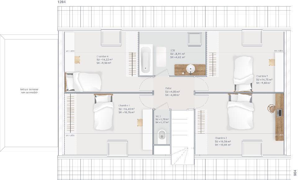
À vendre : à quelques minutes du RER D (station Creil, 50 min de Paris), votre agence Maisons France Confort Beauvais est heureuse de vous présenter cette maison de 8 pièces de 145 m² bénéficiant d'un emplacement privilégié dans Cambronne-lès-Clermont (60290). Elle est composée de six chambres, d'une cuisine et de deux salles de bains.
Le terrain de la propriété s'étend sur 507 m².
Il s'agit d'une maison de 2 niveaux. Elle est neuve.
Cette maison se situe dans un secteur recherché. On y trouve une école primaire. Côté transports, on trouve la station de RER Creil (ligne D) ainsi que 12 gares à moins de 10 minutes en voiture. Il y a un accès à la nationale N31 à 7 km et Beauvais se situe à 26 km. Il y a une bibliothèque et une boulangerie à proximité du bien.
Son prix de vente est de 368 000 €.
Contactez notre agence (BONELLO Fabrice : (Numéro supprimé)) pour obtenir de plus amples renseignements sur la maison, sur les modalités de vente ou sur les démarches à suivre.
Logement susceptibles de vous intéresser
Nous vous proposons de découvrir aussi cette sélection de logements situés à moins de 10km de Clermont et qui seraient susceptibles de vous intéresser.
Cambronne-lès-Clermont
TERRAINTerrain plat et viabilisé, cadre verdoyant et calme avec:Écoles, bus, ramassage scolaire sur placeTOUT À PROXIMITÉ5’min du Centre-ville de CLERMONT et ces commercesGARE SNCF « PARIS GARE DU NORD en 35’min »10’min de CREILPrix : 90000 €.Sur ce terrain, réalisez votre projet de construction de maison RE 2020 avec PAVILLONS D'ÎLE-DE-FRANCE (constructeur de maisons de gamme et sur-mesure depuis plus de 50 ans) :- Plan sur-mesure et personnalisé de 2 à 5 chambres- Mode de chauffage au choix- Grands choix d'équipements et de prestations- Matériaux de qualité selon les normes en vigueur- Accompagnement dans le choix et l’acquisition du terrainDemandez une étude gratuite et personnalisée de votre projet de construction sur ce terrain !Contactez Olivier SAMSON au (Numéro supprimé) ou au (Numéro supprimé) (Pavillons d'Île-de-France – Agence de Meaux).Prix hors frais de notaire. Terrain sélectionné et vu pour vous sous réserve de disponibilité et au prix indiqué par notre partenaire foncier. Visuels non contractuels.Cette annonce a été créée et diffusée avec le logiciel VITAHOME.
Cambronne-lès-Clermont
TERRAIN ET MAISONRéalisez votre projet de construction de maison RE 2020 avec PAVILLONS D'ÎLE-DE-FRANCE (constructeur de maisons de gamme et sur-mesure depuis plus de 50 ans) :- Plan sur-mesure et personnalisé de 2 à 5 chambres- Mode de chauffage au choix- Grands choix d'équipements et de prestations- Matériaux de qualité selon les normes en vigueur- Accompagnement dans le choix et l’acquisition du terrainInformations du terrain : Terrain plat et viabilisé, cadre verdoyant et calme avec:Écoles, bus, ramassage scolaire sur placeTOUT À PROXIMITÉ5’min du Centre-ville de CLERMONT et ces commercesGARE SNCF « PARIS GARE DU NORD en 35’min »10’min de CREILDemandez une étude gratuite et personnalisée de votre projet de construction !Contactez Olivier SAMSON au (Numéro supprimé) ou au (Numéro supprimé) (Pavillons d'Île-de-France – Agence de Meaux).Prix avec assurance dommages-ouvrage comprise, hors VRD, terrain viabilisé, assainissement compris, frais de notaire non compris, taxes non comprises, frais divers non compris. Terrain sélectionné et vu pour vous sous réserve de disponibilité et au prix indiqué par notre partenaire foncier. Visuels non contractuels.Cette annonce a été créée et diffusée avec le logiciel VITAHOME.
Cambronne-lès-Clermont
TERRAIN ET MAISONRéalisez votre projet de construction de maison RE 2020 avec PAVILLONS D'ÎLE-DE-FRANCE (constructeur de maisons de gamme et sur-mesure depuis plus de 50 ans) :- Plan sur-mesure et personnalisé de 2 à 5 chambres- Mode de chauffage au choix- Grands choix d'équipements et de prestations- Matériaux de qualité selon les normes en vigueur- Accompagnement dans le choix et l’acquisition du terrainInformations du terrain : Terrain plat et viabilisé, cadre verdoyant et calme avec:Écoles, bus, ramassage scolaire sur placeTOUT À PROXIMITÉ5’min du Centre-ville de CLERMONT et ces commercesGARE SNCF « PARIS GARE DU NORD en 35’min »10’min de CREILDemandez une étude gratuite et personnalisée de votre projet de construction !Contactez Olivier SAMSON au (Numéro supprimé) ou au (Numéro supprimé) (Pavillons d'Île-de-France – Agence de Meaux).Prix avec assurance dommages-ouvrage comprise, hors VRD, terrain viabilisé, assainissement compris, frais de notaire non compris, taxes non comprises, frais divers non compris. Terrain sélectionné et vu pour vous sous réserve de disponibilité et au prix indiqué par notre partenaire foncier. Visuels non contractuels.Cette annonce a été créée et diffusée avec le logiciel VITAHOME.
Cambronne-lès-Clermont
TERRAIN ET MAISONRéalisez votre projet de construction de maison RE 2020 avec PAVILLONS D'ÎLE-DE-FRANCE (constructeur de maisons de gamme et sur-mesure depuis plus de 50 ans) et ce modèle sur mesure de 84m2, 3 chambres et séjour lumineux, avec des façades aux styles architecturaux variés et par leur confort inégalé, été comme hiver, grâce aux labels RE 2020. Avec une isolation et une qualité d'air intérieur optimales, vos charges de chauffage sont réduites au minimum. Choisissez celle qui vous ressemble !- Plan sur-mesure et personnalisé de 2 à 5 chambres- Mode de chauffage au choix- Grands choix d'équipements et de prestations- Matériaux de qualité selon les normes en vigueurInformations du terrain : Terrain plat et viabilisé, cadre verdoyant et calme avec:Écoles, bus, ramassage scolaire sur placeTOUT À PROXIMITÉ5’min du Centre-ville de CLERMONT et ces commercesGARE SNCF « PARIS GARE DU NORD en 35’min »10’min de CREILDemandez une étude gratuite et personnalisée de votre projet de construction !Contactez Olivier SAMSON au (Numéro supprimé) ou au (Numéro supprimé) (Pavillons d'Île-de-France – Agence de Meaux).Prix avec assurance dommages-ouvrage comprise, hors VRD, terrain viabilisé, assainissement compris, frais de notaire non compris, taxes non comprises, frais divers non compris. Terrain sélectionné et vu pour vous sous réserve de disponibilité et au prix indiqué par notre partenaire foncier. Visuels non contractuels.Cette annonce a été créée et diffusée avec le logiciel VITAHOME.
Cambronne-lès-Clermont
TERRAIN ET MAISONModèle à étage composé d’un salon séjour spacieux de 40 m2 avec cuisine ouverte un espace de vie lumineux et convivial. La maison dispose de 4 chambres, dont une suite parentale, ainsi que 2 salles d'eau, une salle de bain et 2 WC, offrant confort et fonctionnalité pour toute la famille. , cette maison bénéficie d'une conception moderne RE 2020, garantissant performance énergétique et confort thermique. Elle est équipée d'une pompe à chaleur, d'un chauffage au sol, de baies vitrées et fenêtres en aluminium motorisées et connectées. Sa structure en brique rouge et sa hauteur sous plafond de 2,50 m apportent charme et élégance. Plan sur mesure, vous permettant de personnaliser l'aménagement selon vos goûts et besoins.Informations du terrain : Terrain plat et viabilisé, cadre verdoyant et calme avec:Écoles, bus, ramassage scolaire sur placeTOUT À PROXIMITÉ5’min du Centre-ville de CLERMONT et ces commercesGARE SNCF « PARIS GARE DU NORD en 35’min »10’min de CREILDemandez une étude gratuite et personnalisée de votre projet de construction !Contactez Olivier SAMSON au (Numéro supprimé) ou au (Numéro supprimé) (Pavillons d'Île-de-France – Agence de Meaux).Prix avec assurance dommages-ouvrage comprise, hors VRD, terrain viabilisé, assainissement compris, frais de notaire non compris, taxes non comprises, frais divers non compris. Terrain sélectionné et vu pour vous sous réserve de disponibilité et au prix indiqué par notre partenaire foncier. Visuels non contractuels.Cette annonce a été créée et diffusée avec le logiciel VITAHOME.
Cambronne-lès-Clermont
TERRAIN ET MAISONRéalisez votre projet de construction de maison RE 2020 avec PAVILLONS D'ÎLE-DE-FRANCE (constructeur de maisons de gamme et sur-mesure depuis plus de 50 ans) :- Plan sur-mesure et personnalisé de 2 à 5 chambres- Mode de chauffage au choix- Grands choix d'équipements et de prestations- Matériaux de qualité selon les normes en vigueur- Accompagnement dans le choix et l’acquisition du terrainInformations du terrain : Terrain plat et viabilisé, cadre verdoyant et calme avec:Écoles, bus, ramassage scolaire sur placeTOUT À PROXIMITÉ5’min du Centre-ville de CLERMONT et ces commercesGARE SNCF « PARIS GARE DU NORD en 35’min »10’min de CREILDemandez une étude gratuite et personnalisée de votre projet de construction !Contactez Olivier SAMSON au (Numéro supprimé) ou au (Numéro supprimé) (Pavillons d'Île-de-France – Agence de Meaux).Prix avec assurance dommages-ouvrage comprise, hors VRD, terrain viabilisé, assainissement compris, frais de notaire non compris, taxes non comprises, frais divers non compris. Terrain sélectionné et vu pour vous sous réserve de disponibilité et au prix indiqué par notre partenaire foncier. Visuels non contractuels.Cette annonce a été créée et diffusée avec le logiciel VITAHOME.
Cambronne-lès-Clermont
TERRAINA la recherche du lieu parfait pour concrétiser votre vision ? Ne chercher plus, il est là ! Ce terrain spacieux, situé dans un quartier très rechercher, offre une belle opportunité unique pour réaliser le projet d’une vie. – Emplacement stratégique offrant un accès facile aux commodités locales et aux axes de transport. – Environnement calme et paisible, idéal pour ceux qui recherchent la tranquillité tout en restant connectés à la vie urbaine. – Proximité des écoles, commerces et autres services essentiels, garantissant une vie pratique et confortable. Ne manquez pas cette opportunité unique d’investir dans l’avenir et de réaliser vos aspirations. N’hésitez pas à me contacter dès maintenant pour plus d’informations et pour planifier une visite sur place ! Contactez Jason Guevel au (Numéro supprimé) ou par mail : (Email supprimé) . Pavillon d'Ile de France Constructeur de maison individuelle.Prix : 92500 €.Sur ce terrain, réalisez votre projet de construction de maison RE 2020 avec PAVILLONS D'ÎLE-DE-FRANCE (constructeur de maisons de gamme et sur-mesure depuis plus de 50 ans) :- Plan sur-mesure et personnalisé de 2 à 5 chambres- Mode de chauffage au choix- Grands choix d'équipements et de prestations- Matériaux de qualité selon les normes en vigueur- Accompagnement dans le choix et l’acquisition du terrainDemandez une étude gratuite et personnalisée de votre projet de construction sur ce terrain !Contactez Jason GUEVEL au (Numéro supprimé) ou au (Numéro supprimé) (Pavillons d'Île-de-France – Agence de Cauffry).Prix hors frais de notaire. Terrain sélectionné et vu pour vous sous réserve de disponibilité et au prix indiqué par notre partenaire foncier. Visuels non contractuels.Cette annonce a été créée et diffusée avec le logiciel VITAHOME.
Cambronne-lès-Clermont
TERRAINTrès beau terrain plat dans une commune calme et agréable à y vivre. Terrain viabilisé. A 5 mn de toutes commodités. A 5mn de Cauffry et 5 mn de Clermont. Gare Paris Nord à 5 mn. Crêche, maternelle, collège et lycée à 5 mn. 30 mn de Roissy CDGPrix : 92500 €.Sur ce terrain, réalisez votre projet de construction de maison RE 2020 avec PAVILLONS D'ÎLE-DE-FRANCE (constructeur de maisons de gamme et sur-mesure depuis plus de 50 ans) :- Plan sur-mesure et personnalisé de 2 à 5 chambres- Mode de chauffage au choix- Grands choix d'équipements et de prestations- Matériaux de qualité selon les normes en vigueur- Accompagnement dans le choix et l’acquisition du terrainDemandez une étude gratuite et personnalisée de votre projet de construction sur ce terrain !Contactez Véronique LEMOUTON au (Numéro supprimé) ou au (Numéro supprimé) (Pavillons d'Île-de-France – Agence de Cauffry).Prix hors frais de notaire. Terrain sélectionné et vu pour vous sous réserve de disponibilité et au prix indiqué par notre partenaire foncier. Visuels non contractuels.Cette annonce a été créée et diffusée avec le logiciel VITAHOME.
Cauffry
TERRAINA 5 mn de Cauffry et 8 mn de Clermont Gare Paris Nord (Toutes commodités) et 25 mn de l'A1 et 30 mn de ROISSY CDG. Très beau terrain plat dans une commune calme et agréable à y vivre. Terrain viabilisé.Prix : 95000 €.Sur ce terrain, réalisez votre projet de construction de maison RE 2020 avec PAVILLONS D'ÎLE-DE-FRANCE (constructeur de maisons de gamme et sur-mesure depuis plus de 50 ans) :- Plan sur-mesure et personnalisé de 2 à 5 chambres- Mode de chauffage au choix- Grands choix d'équipements et de prestations- Matériaux de qualité selon les normes en vigueur- Accompagnement dans le choix et l’acquisition du terrainDemandez une étude gratuite et personnalisée de votre projet de construction sur ce terrain !Contactez Véronique LEMOUTON au (Numéro supprimé) ou au (Numéro supprimé) (Pavillons d'Île-de-France – Agence de Cauffry).Prix hors frais de notaire. Terrain sélectionné et vu pour vous sous réserve de disponibilité et au prix indiqué par notre partenaire foncier. Visuels non contractuels.Cette annonce a été créée et diffusée avec le logiciel VITAHOME.
L’actualité immobilière à Clermont
27/11/2023
02/11/2023
30/10/2023
20/10/2023
16/10/2023
16/10/2023