Maison à construire à Esches (60110)
Images
Description
VENTE : maison de 6 pièces (115 m²) à Esches
IDÉALEMENT SITUÉE - MAISON 6 PIÈCES NEUVE
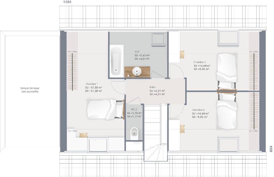
En vente à deux pas de Cergy, Maisons France Confort Beauvais vous propose cette maison de 6 pièces de 115 m² et de 606 m² de terrain idéalement située dans Esches (60110).
C'est une maison de 2 niveaux. Elle inclut quatre chambres, une cuisine et deux salles de bains. Cette maison est neuve.
La maison se trouve dans un quartier convoité. Une école primaire y est implantée. Niveau transports, il y a la gare Esches à moins de 10 minutes à pied. On trouve un accès à l'autoroute A16 à 1 km.
Son prix de vente est de 316 000 €.
Contactez notre agence (Fabrice BONELLO : (Numéro supprimé)) pour toute question sur la maison.
Logement susceptibles de vous intéresser
Nous vous proposons de découvrir aussi cette sélection de logements situés à moins de 10km de Esches et qui seraient susceptibles de vous intéresser.
Ully-Saint-Georges
TERRAINDERNIERES OPPORTUNITES!!A moins de 10min de NEUILLY EN THELLETrès beau terrain plat de 429m2 environ, entièrement viabilisé et proche de toutes commodités (commerces; écoles; bus; gare;….)Accès rapide N1Prix : 90800 €.Sur ce terrain, réalisez votre projet de construction de maison RE 2020 avec PAVILLONS D'ÎLE-DE-FRANCE (constructeur de maisons de gamme et sur-mesure depuis plus de 50 ans) :- Plan sur-mesure et personnalisé de 2 à 5 chambres- Mode de chauffage au choix- Grands choix d'équipements et de prestations- Matériaux de qualité selon les normes en vigueur- Accompagnement dans le choix et l’acquisition du terrainDemandez une étude gratuite et personnalisée de votre projet de construction sur ce terrain !Contactez Kamel SELMI au (Numéro supprimé) ou au (Numéro supprimé) (Pavillons d'Île-de-France – Agence de Cauffry).Prix hors frais de notaire. Terrain sélectionné et vu pour vous sous réserve de disponibilité et au prix indiqué par notre partenaire foncier. Visuels non contractuels.Cette annonce a été créée et diffusée avec le logiciel VITAHOME.
Le Coudray-sur-Thelle
TERRAIN ET MAISONVENTE d’une maison de 5 pièces (85 m²) au Coudray-sur-ThelleIDÉALEMENT SITUÉE – MAISON 5 PIÈCES NEUVEÀ vendre : localisée à quelques kilomètres de Cergy, idéalement située dans Le Coudray-sur-Thelle (60430), Maisons France Confort Beauvais vous propose cette maison de 5 pièces de plain-pied de 85 m² et de 980 m² de terrain.Elle offre trois chambres, une cuisine et une salle de bains. La maison est neuve.La maison est située dans un secteur prisé. On y trouve une école maternelle. Niveau transports en commun, il y a quatre gares à moins de 10 minutes en voiture. L’autoroute A16 et la nationale N31 sont accessibles à moins de 10 km. On trouve une bibliothèque à quelques minutes du logement.Elle est proposée à l’achat pour 262 000 €.N’hésitez pas à prendre contact avec Fabrice BONELLO (tél : (Numéro supprimé)) pour toute question sur la maison, sur les démarches à suivre ou sur les modalités de vente. Faites de vos projets immobiliers une réalité avec Maisons France Confort Beauvais.
Ully-Saint-Georges
TERRAINMagnifique terrain au Calme dans une commune agréable où il fait bon y vivre. Proche Centre Ville et toutes commodités à moins de 10 mn en voiture de Ste Geneviève et 10 mn de MOUY – Gare Paris Nord à MOUY. 25 mn de Persan et 45 mn de Roissy CDG. Terrain viabilisé et TAEG en place.Prix : 85000 €.Sur ce terrain, réalisez votre projet de construction de maison RE 2020 avec PAVILLONS D'ÎLE-DE-FRANCE (constructeur de maisons de gamme et sur-mesure depuis plus de 50 ans) :- Plan sur-mesure et personnalisé de 2 à 5 chambres- Mode de chauffage au choix- Grands choix d'équipements et de prestations- Matériaux de qualité selon les normes en vigueur- Accompagnement dans le choix et l’acquisition du terrainDemandez une étude gratuite et personnalisée de votre projet de construction sur ce terrain !Contactez Véronique LEMOUTON au (Numéro supprimé) ou au (Numéro supprimé) (Pavillons d'Île-de-France – Agence de Cauffry).Prix hors frais de notaire. Terrain sélectionné et vu pour vous sous réserve de disponibilité et au prix indiqué par notre partenaire foncier. Visuels non contractuels.Cette annonce a été créée et diffusée avec le logiciel VITAHOME.
Dieudonné
TERRAIN ET MAISONVENTE d’une maison F7 (124 m²) à DieudonnéMAISON 7 PIÈCES NEUVE – PROCHE DE CERGYEn vente : à quelques minutes du Transilien H (gare de Persan-Beaumont, 40 min de Paris), nous sommes heureux de vous présenter à Dieudonné (60530), cette maison de 7 pièces de 124 m² et de 522 m² de terrain.Cette maison compte 2 niveaux. Elle compte cinq chambres, une cuisine et trois salles de bains. Cette maison est neuve.L’École Primaire des Trois Cahiers est implantée à moins de 10 minutes à pied. Côté transports en commun, il y a huit gares à moins de 10 minutes en voiture. L’autoroute A16 est accessible à 7 km et Cergy est située à 26 km. On trouve un tennis à proximité de la maison.Son prix de vente est de 287 000 €.Contactez Antoine FLIPPE ((Numéro supprimé)) pour plus d’informations sur cette maison ou sur les démarches à suivre. Concrétisez vos projets immobiliers avec Maisons Balency Pierrelaye.Annonce proposée par un Agent Commercial Partenaire.
Chambly
TERRAIN ET MAISONMaison T5 (101 m²) à vendre à ChamblyMAISON 5 PIÈCES NEUVE – PROCHE DE SAINT-DENISEn vente : à 29 km de Saint-Denis, à Chambly (60230), nous vous présentons cette maison de 5 pièces de plain-pied de 101 m² et de 500 m² de terrain.Elle inclut quatre chambres, une cuisine et une salle de bains. Cette maison est neuve.Plusieurs établissements scolaires (maternelle, élémentaire, primaire et collège) sont implantés à moins de 10 minutes à pied. Côté transports, on trouve la gare Chambly à quelques pas de la maison. L’autoroute A16 et la nationale N184 sont accessibles à moins de 8 km. Il y a une bibliothèque, un tennis, un bassin de natation, trois boulangeries, des commerces, deux épiceries, un bureau de poste et une boucherie-charcuterie à proximité du logement. Le marché Place de Gaulle anime les environs.Son prix de vente est de 266 000 €.Prenez contact avec Antoine FLIPPE (tél : (Numéro supprimé)) pour tout renseignement sur cette maison. Maisons Balency Pierrelaye est là pour vous accompagner dans tous vos projets immobiliers.Annonce proposée par un Agent Commercial Partenaire.
Méru
TERRAIN ET MAISONMéru : maison de 5 pièces (90 m²) en venteMAISON 5 PIÈCES NEUVE – PROCHE DE CERGYÀ vendre : à quelques kilomètres de Cergy, nous vous présentons cette maison de 5 pièces de 90 m² et de 520 m² de terrain à Méru (60110).Cette maison compte 2 niveaux. Son intérieur compte quatre chambres, une cuisine et deux salles de bains. Cette maison est neuve.Il y a des établissements scolaires de tous types (de la maternelle au lycée) à moins de 10 minutes à pied. Niveau transports, on trouve la gare Méru juste à côté. L’autoroute A16 est accessible à 3 km. Il y a un tennis, un bassin de natation, des commerces, des boulangeries, un bureau de poste, trois épiceries et trois boucheries-charcuteries dans les environs. Le marché Place de la Mairie anime les environs.Elle est à vendre pour la somme de 280 000 €.Contactez Antoine FLIPPE ((Numéro supprimé)) pour tout renseignement sur la propriété, sur les modalités de vente ou sur les démarches à suivre. Faites de vos projets immobiliers une réalité avec Maisons Balency Pierrelaye.Annonce proposée par un Agent Commercial Partenaire.
Ully-Saint-Georges
TERRAINTerrain viabilisé et plat idéalement situé:Écoles, bus, ramassage scolaire, boulangerie, Bar/Tabac,Super Market sur placeAccès rapide Nationale 1Nombreux commerces et GARE à proximitéÀ 10’min de NEUILLY EN THELLEÀ 15’min de CHAMBLYPrix : 90000 €.Sur ce terrain, réalisez votre projet de construction de maison RE 2020 avec PAVILLONS D'ÎLE-DE-FRANCE (constructeur de maisons de gamme et sur-mesure depuis plus de 50 ans) :- Plan sur-mesure et personnalisé de 2 à 5 chambres- Mode de chauffage au choix- Grands choix d'équipements et de prestations- Matériaux de qualité selon les normes en vigueur- Accompagnement dans le choix et l’acquisition du terrainDemandez une étude gratuite et personnalisée de votre projet de construction sur ce terrain !Contactez Olivier SAMSON au (Numéro supprimé) ou au (Numéro supprimé) (Pavillons d'Île-de-France – Agence de Meaux).Prix hors frais de notaire. Terrain sélectionné et vu pour vous sous réserve de disponibilité et au prix indiqué par notre partenaire foncier. Visuels non contractuels.Cette annonce a été créée et diffusée avec le logiciel VITAHOME.
Ully-Saint-Georges
TERRAIN ET MAISONRéalisez votre projet de construction de maison RE 2020 avec PAVILLONS D'ÎLE-DE-FRANCE (constructeur de maisons de gamme et sur-mesure depuis plus de 50 ans) :- Plan sur-mesure et personnalisé de 2 à 5 chambres- Mode de chauffage au choix- Grands choix d'équipements et de prestations- Matériaux de qualité selon les normes en vigueur- Accompagnement dans le choix et l’acquisition du terrainDemandez une étude gratuite et personnalisée de votre projet de construction !Contactez Véronique LEMOUTON au (Numéro supprimé)(Pavillons d'Île-de-France – Agence de Cauffry).Prix avec assurance dommages-ouvrage comprise, hors VRD, terrain non viabilisé, assainissement non compris, frais de notaire non compris, taxes non comprises, frais divers non compris. Terrain sélectionné et vu pour vous sous réserve de disponibilité et au prix indiqué par notre partenaire foncier. Visuels non contractuels.Cette annonce a été créée et diffusée avec le logiciel VITAHOME.
Ully-Saint-Georges
TERRAIN ET MAISONRéalisez votre projet de construction de maison RE 2020 avec PAVILLONS D'ÎLE-DE-FRANCE (constructeur de maisons de gamme et sur-mesure depuis plus de 50 ans) :- Plan sur-mesure et personnalisé de 2 à 5 chambres- Mode de chauffage au choix- Grands choix d'équipements et de prestations- Matériaux de qualité selon les normes en vigueur- Accompagnement dans le choix et l’acquisition du terrainInformations du terrain : A 5min, du centre ville de CAUFFRY et de ses commerces. Ecoles, bus, ramassage scolaire sur place. Gare à proximité.Demandez une étude gratuite et personnalisée de votre projet de construction !Contactez Kamel SELMI au (Numéro supprimé) ou au (Numéro supprimé) (Pavillons d'Île-de-France – Agence de Cauffry).Prix avec assurance dommages-ouvrage comprise, hors VRD, terrain viabilisé, assainissement non compris, frais de notaire non compris, taxes non comprises, frais divers non compris. Terrain sélectionné et vu pour vous sous réserve de disponibilité et au prix indiqué par notre partenaire foncier. Visuels non contractuels.Cette annonce a été créée et diffusée avec le logiciel VITAHOME.
L’actualité immobilière à Esches
27/11/2023
02/11/2023
30/10/2023
20/10/2023
16/10/2023
16/10/2023