Images
Description
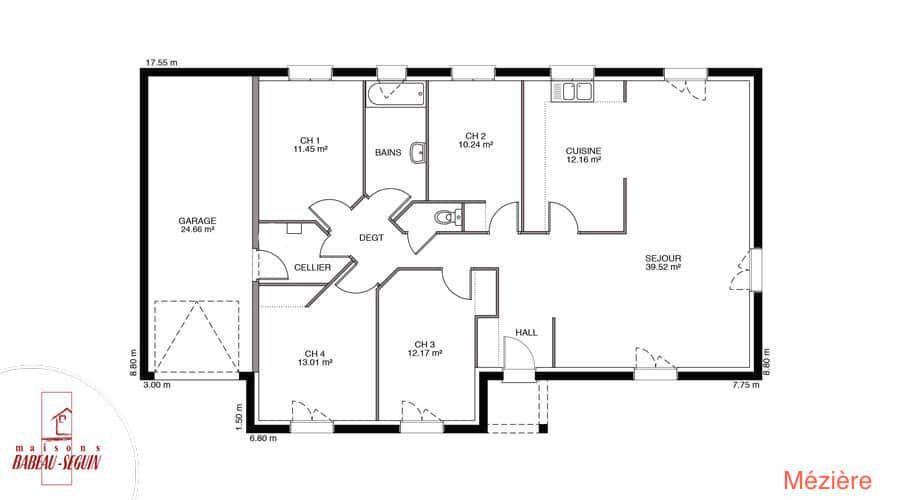
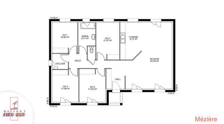
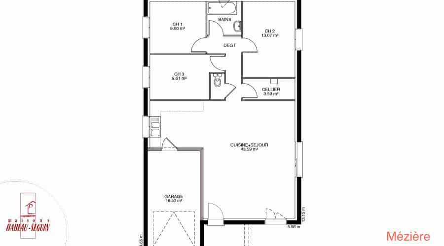
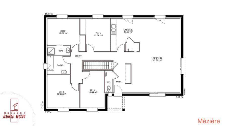
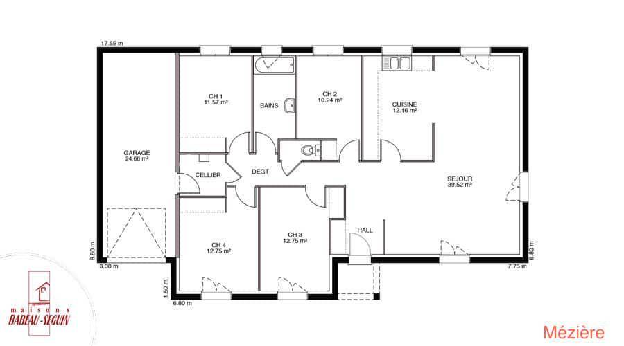
Sur ce terrain, nous vous proposons cette maison neuve, modèle Mézière, conçue par Babeau-Seguin, constructeur offrant le meilleur rapport qualité/prix du marché. Avec une surface de 108 m², cette maison basse consommation, conforme à la RE2020, saura répondre à toutes vos attentes.
La Mézière se distingue par son plan en L, disponible en version 2 pans ou 4 pans, et ses 4 chambres spacieuses réparties sur 4 pièces. Grâce à ses nombreuses versions, elle sait séduire et s’adapter aux besoins de chacun, ce qui fait de la Mézière une véritable maison sur mesure.
Les options les plus demandées par nos clients, telles que les menuiseries en aluminium, la domotique, ainsi que le garage ou le sous-sol, sont disponibles pour personnaliser votre maison selon vos envies et besoins.
Véritable coup de cœur pour de nombreux clients Babeau-Seguin, la Mézière est facilement modifiable, ce qui justifie pleinement son succès. Craquerez-vous aussi pour elle ?
N'attendez plus pour découvrir cette maison qui répondra aux besoins de nombreuses familles. Contactez-nous pour plus d'informations et pour organiser une visite.
Logement susceptibles de vous intéresser
Nous vous proposons de découvrir aussi cette sélection de logements situés à moins de 10km de Grandvilliers et qui seraient susceptibles de vous intéresser.

Équennes-Éramecourt
TERRAINNous sommes ravis de vous présenter un terrain exceptionnel à vendre, idéal pour la construction de votre future maison. Ce terrain non-viabilisé de 848 m² est situé dans la charmante commune d’Équennes-Éramecourt, au cœur de la Somme, dans la région des Hauts-de-France. Vous bénéficierez d’une vue dégagée et d’un environnement calme, tout en étant à proximité d’un axe routier important, facilitant vos déplacements. Ce bien rare est une opportunité à ne pas manquer! Ce terrain constitue une opportunité unique pour réaliser votre projet immobilier. N’attendez plus pour envisager cette vente qui pourrait concrétiser vos aspirations. À noter qu’en tant que constructeur, nous ne sommes pas mandatés pour réaliser la vente de ce terrain.

Équennes-Éramecourt
TERRAIN ET MAISONSur ce terrain, nous vous proposons cette maison neuve : la Focus EVO City, conçue par Babeau-Seguin, constructeur offrant le meilleur rapport qualité/prix du marché. Découvrez l’innovant concept de la Focus EVO City, une maison qui combine les atouts d’une maison neuve clé en main avec la flexibilité et l’avantage tarifaire du prêt à finir ! Cette maison de 100 m², conçue pour évoluer, vous offre à sa livraison, une vaste pièce de vie lumineuse, 4 chambres et une salle de bain, avec des performances énergétiques exceptionnelles et un coût de construction abordable. Surtout, cette maison est conçue dès le départ pour évoluer.Une maison prête à s’adapterQue votre famille s’agrandisse ou que vous ayez besoin d’une chambre d’amis, la Focus EVO City se distingue en tant que première maison Babeau-Seguin prête à évoluer. Elle intègre une trémie pour accueillir un futur escalier, ainsi que des chevêtres de toit prévus pour les fenêtres de vos futurs combles aménagés. Notre plan détaillé vous guide dans l’aménagement de vos combles, faisant passer votre maison de 100 m² à une surface encore plus généreuse avec des espaces supplémentaires, transformant la Focus EVO City en véritable maison familiale !Une maison qui évoluera avec vos besoinsQue vous soyez un jeune couple désirant savourer la vie à deux avant l’arrivée d’un heureux événement, ou bien un célibataire passionné de bricolage souhaitant sa salle de projection privée, la Focus EVO City est la maison qui saura évoluer au rythme de votre vie et de vos aspirations !Idéale pour ce terrain et pour les petits budgets, cette Focus EVO City est aussi bien équipée que l’ensemble de nos modèles. Cette dernière est une maison neuve écologique répondant aux standards stricts de la RE2020. Économie à la construction, économie à la consommation !Les caractéristiques principales de cette maison incluent des combles aménageables, un excellent rapport qualité/prix, une conception évolutive et un cellier. Les options les

Poix-de-Picardie
TERRAIN ET MAISONRéalisez votre projet de construction de maison RE 2020 avec PAVILLONS D'ÎLE-DE-FRANCE (constructeur de maisons de gamme et sur-mesure depuis plus de 50 ans) :- Plan sur-mesure et personnalisé de 2 à 5 chambres- Mode de chauffage au choix- Grands choix d'équipements et de prestations- Matériaux de qualité selon les normes en vigueur- Accompagnement dans le choix et l’acquisition du terrainInformations du terrain : Terrain à bâtir de 387m² à Poix-de-PicardieTerrain de 387m² situé dans un village calme avec gare et commerces, à seulement 25 minutes du CHU d'Amiens. Idéal pour votre projet de construction. À saisir pour 29 400€.Contactez-nous pour plus d'infos !Demandez une étude gratuite et personnalisée de votre projet de construction !Contactez Victor MAEGHT au (Numéro supprimé) ou au (Numéro supprimé) (Pavillons d'Île-de-France – Agence d'Amiens).Prix avec assurance dommages-ouvrage comprise, hors VRD, terrain viabilisé, assainissement non compris, frais de notaire non compris, taxes non comprises, frais divers non compris. Terrain sélectionné et vu pour vous sous réserve de disponibilité et au prix indiqué par notre partenaire foncier. Visuels non contractuels.Cette annonce a été créée et diffusée avec le logiciel VITAHOME.

Poix-de-Picardie
TERRAIN ET MAISONRéalisez votre projet de construction de maison RE 2020 avec PAVILLONS D'ÎLE-DE-FRANCE (constructeur de maisons de gamme et sur-mesure depuis plus de 50 ans) :- Plan sur-mesure et personnalisé de 2 à 5 chambres- Mode de chauffage au choix- Grands choix d'équipements et de prestations- Matériaux de qualité selon les normes en vigueur- Accompagnement dans le choix et l’acquisition du terrainInformations du terrain : Terrain à bâtir de 387m² à Poix-de-PicardieTerrain de 387m² situé dans un village calme avec gare et commerces, à seulement 25 minutes du CHU d'Amiens. Idéal pour votre projet de construction. À saisir pour 29 400€.Contactez-nous pour plus d'infos !Demandez une étude gratuite et personnalisée de votre projet de construction !Contactez Victor MAEGHT au (Numéro supprimé) ou au (Numéro supprimé) (Pavillons d'Île-de-France – Agence d'Amiens).Prix avec assurance dommages-ouvrage comprise, hors VRD, terrain viabilisé, assainissement non compris, frais de notaire non compris, taxes non comprises, frais divers non compris. Terrain sélectionné et vu pour vous sous réserve de disponibilité et au prix indiqué par notre partenaire foncier. Visuels non contractuels.Cette annonce a été créée et diffusée avec le logiciel VITAHOME.

Poix-de-Picardie
TERRAINTerrain à bâtir de 387m² à Poix-de-PicardieTerrain de 387m² situé dans un village calme avec gare et commerces, à seulement 25 minutes du CHU d'Amiens. Idéal pour votre projet de construction. À saisir pour 29 400€.Contactez-nous pour plus d'infos !Prix : 29400 €.Sur ce terrain, réalisez votre projet de construction de maison RE 2020 avec PAVILLONS D'ÎLE-DE-FRANCE (constructeur de maisons de gamme et sur-mesure depuis plus de 50 ans) :- Plan sur-mesure et personnalisé de 2 à 5 chambres- Mode de chauffage au choix- Grands choix d'équipements et de prestations- Matériaux de qualité selon les normes en vigueur- Accompagnement dans le choix et l’acquisition du terrainDemandez une étude gratuite et personnalisée de votre projet de construction sur ce terrain !Contactez Victor MAEGHT au (Numéro supprimé) ou au (Numéro supprimé) (Pavillons d'Île-de-France – Agence d'Amiens).Prix hors frais de notaire. Terrain sélectionné et vu pour vous sous réserve de disponibilité et au prix indiqué par notre partenaire foncier. Visuels non contractuels.Cette annonce a été créée et diffusée avec le logiciel VITAHOME.

Poix-de-Picardie
TERRAIN ET MAISONRéalisez votre projet de construction de maison RE 2020 avec PAVILLONS D'ÎLE-DE-FRANCE (constructeur de maisons de gamme et sur-mesure depuis plus de 50 ans) :- Plan sur-mesure et personnalisé de 2 à 5 chambres- Mode de chauffage au choix- Grands choix d'équipements et de prestations- Matériaux de qualité selon les normes en vigueur- Accompagnement dans le choix et l’acquisition du terrainInformations du terrain : Terrain à bâtir de 387m² à Poix-de-PicardieTerrain de 387m² situé dans un village calme avec gare et commerces, à seulement 25 minutes du CHU d'Amiens. Idéal pour votre projet de construction. À saisir pour 29 400€.Contactez-nous pour plus d'infos !Demandez une étude gratuite et personnalisée de votre projet de construction !Contactez Victor MAEGHT au (Numéro supprimé) ou au (Numéro supprimé) (Pavillons d'Île-de-France – Agence d'Amiens).Prix avec assurance dommages-ouvrage comprise, hors VRD, terrain viabilisé, assainissement non compris, frais de notaire non compris, taxes non comprises, frais divers non compris. Terrain sélectionné et vu pour vous sous réserve de disponibilité et au prix indiqué par notre partenaire foncier. Visuels non contractuels.Cette annonce a été créée et diffusée avec le logiciel VITAHOME.

Cempuis
TERRAINNous vous présentons une opportunité rare d’acquérir un terrain non viabilisé d’une superficie généreuse de 1259m², idéal pour le projet de construction de votre maison. Situé à Cempuis, cette parcelle se distingue par son potentiel exceptionnel et sa situation privilégiée, offrant un cadre paisible pour votre futur foyer. Ce terrain est parfait pour ceux qui recherchent à bâtir un lieu de vie qui allie confort et tranquillité et qui souhaitent s’épanouir dans un environnement naturel. À noter qu’en tant que constructeur, nous ne sommes pas mandatés pour réaliser la vente de ce terrain.

Cempuis
TERRAIN ET MAISONSur ce terrain, nous vous proposons Focus Flex, une maison neuve et flexible qui s’adapte à vos besoins actuels et futurs !Avec un espace de vie entièrement prêt à habiter de 50 m², cette maison moderne et économe en énergie, respectant la norme RE2020, vous offre tout le confort nécessaire à un prix exceptionnel.Le vrai plus ? Une extension aménageable de 45 m², prête à accueillir vos futurs projets ! Que votre famille s’agrandisse ou que vous ayez simplement besoin de plus d’espace, cette partie flexible, directement attenante à la maison principale, vous permet d’évoluer à votre rythme.Finis les travaux interminables et les trajets coûteux vers un chantier éloigné. Vous restez chez vous, tout en ajoutant des mètres carrés en fonction de vos envies. De plus, des options comme la dalle béton et l’extension des réseaux électriques et d’eau vous facilitent encore plus la tâche.Avec Focus Flex, vous choisissez une maison évolutive qui s’adapte à vos besoins tout en respectant votre style de vie. Profitez d’une maison neuve, immédiatement habitable, qui peut grandir avec vous ! Des conseils d’aménagement vous seront proposés pour vous accompagner dans cette aventure.

Grez
TERRAINDécouvrez ce terrain à vendre d’une surface généreuse de 600 m², idéal pour concrétiser votre projet de construction de maison dans un cadre enchanteur. Situé à Grez, dans le département de l’Oise, ce terrain non-viabilisé offre une vue dégagée et garantit une qualité de vie exceptionnelle grâce à son environnement calme et verdoyant. Profitez d’un emplacement de choix dans un quartier agréable, qui séduira les familles et les amateurs de tranquillité. Ce terrain constitue une opportunité rare sur le marché, invitant les acheteurs à envisager la réalisation de leur rêve immobilier. Ne laissez pas passer cette chance unique d’investir dans un cadre exceptionnel. À noter qu’en tant que constructeur, nous ne sommes pas mandatés pour réaliser la vente de ce terrain.
L’actualité immobilière à Grandvilliers





