Images
Description
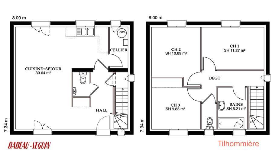
Sur ce terrain, nous vous proposons cette maison neuve, modèle Tilhommière, d'une surface de 91 m². Conçue par Babeau-Seguin, constructeur reconnu pour offrir le meilleur rapport qualité/prix du marché, cette demeure est une digne représentante de la gamme familiale.
Simplicité, beaux volumes et une façade rendue harmonieuse par sa symétrie résument ce modèle Tilhommière. La vie s'organise de la manière la plus simple dans cette maison neuve familiale : au rez-de-chaussée, les pièces de jour avec une cuisine ouverte sur une belle pièce de vie lumineuse et conviviale ; à l’étage, le coin nuit avec trois chambres spacieuses.
Cette belle demeure traditionnelle, tout simplement, est un R+1 avec dalle étage en béton, garantissant robustesse et durabilité. De plus, cette maison neuve est basse consommation et conforme à la RE2020, vous assurant des économies d'énergie et un confort optimal tout au long de l'année.
Ne manquez pas cette opportunité unique de construire la maison de vos rêves avec Babeau-Seguin, le constructeur qui allie qualité, confort et économies. Contactez-nous dès maintenant pour plus d'informations et pour organiser une visite du terrain.
Logement susceptibles de vous intéresser
Nous vous proposons de découvrir aussi cette sélection de logements situés à moins de 10km de Guignecourt et qui seraient susceptibles de vous intéresser.

Guignecourt
TERRAINNous vous présentons une opportunité exceptionnelle d’acquérir un terrain idéal pour la construction de votre future maison, s’étendant sur une généreuse surface de 1006 m². Ce terrain offre une vue dégagée ainsi qu’un cadre champêtre, sans vis-à-vis, vous garantissant un environnement paisible et de qualité. Situé à Guignecourt, dans le département de l’Oise, ce bien bénéficie d’un emplacement stratégique qui séduira tous ceux qui rêvent d’un espace de vie harmonieux en pleine nature. Nous vous invitons à considérer cette occasion unique d’investir dans un terrain au potentiel immense, où vous pourrez réaliser votre projet de vie. Informations complémentaires sur demande. À noter qu’en tant que constructeur, nous ne sommes pas mandatés pour réaliser la vente de ce terrain.

Guignecourt
TERRAIN ET MAISONSur ce terrain, nous vous proposons cette maison neuve, modèle Tilhommière, d’une surface de 91 m². Conçue par Babeau-Seguin, constructeur reconnu pour offrir le meilleur rapport qualité/prix du marché, cette demeure est une digne représentante de la gamme familiale.Simplicité, beaux volumes et une façade rendue harmonieuse par sa symétrie résument ce modèle Tilhommière. La vie s’organise de la manière la plus simple dans cette maison neuve familiale : au rez-de-chaussée, les pièces de jour avec une cuisine ouverte sur une belle pièce de vie lumineuse et conviviale ; à l’étage, le coin nuit avec trois chambres spacieuses.Cette belle demeure traditionnelle, tout simplement, est un R+1 avec dalle étage en béton, garantissant robustesse et durabilité. De plus, cette maison neuve est basse consommation et conforme à la RE2020, vous assurant des économies d’énergie et un confort optimal tout au long de l’année.Ne manquez pas cette opportunité unique de construire la maison de vos rêves avec Babeau-Seguin, le constructeur qui allie qualité, confort et économies. Contactez-nous dès maintenant pour plus d’informations et pour organiser une visite du terrain.

Fontaine-Saint-Lucien
TERRAINNous vous proposons un terrain d’une superficie de 933m², idéalement situé à Fontaine-Saint-Lucien, dans le département de l’Oise. Ce terrain offre une vue dégagée et se trouve dans un quartier recherché, parfait pour concrétiser votre projet de construction de maison. Avec des atouts distinctifs, ce bien est une opportunité à saisir dans un environnement privilégié. Ce terrain présente un réel potentiel pour ceux qui aspirent à construire la maison de leurs rêves. À noter qu’en tant que constructeur, nous ne sommes pas mandatés pour réaliser la vente de ce terrain.

Fontaine-Saint-Lucien
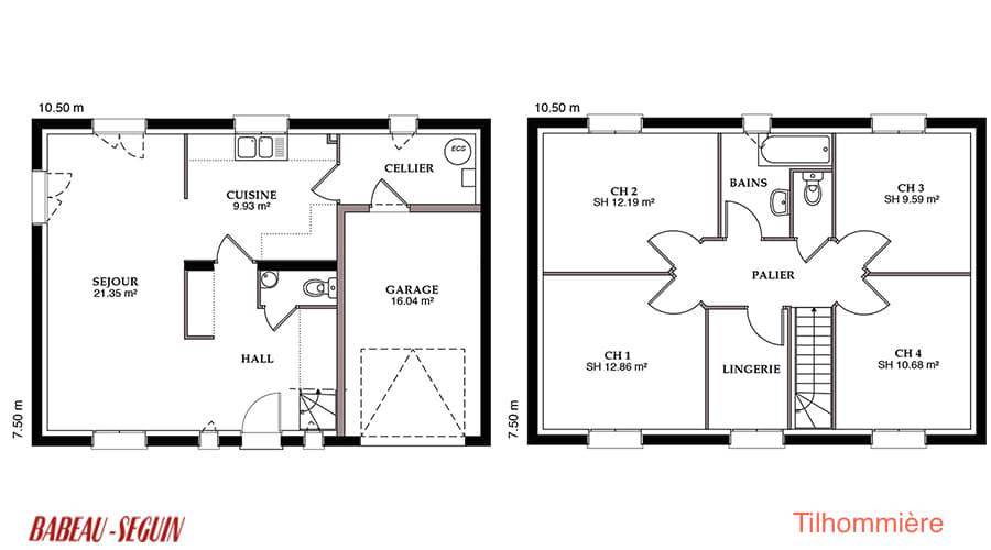
TERRAIN ET MAISONSur ce terrain, nous vous proposons cette maison neuve : la Focus EVO, un modèle unique de 110 m² conçu par Babeau-Seguin, constructeur offrant le meilleur rapport qualité/prix du marché. Cette maison basse consommation est conforme à la norme RE2020, garantissant des performances énergétiques exceptionnelles.La Focus EVO se distingue par son concept évolutif, alliant une maison neuve prête à vivre et une maison prête à finir. Livrée avec 73 m² habitables, elle est conçue pour évoluer avec vos besoins futurs. Grâce à ses combles aménageables, vous pouvez facilement augmenter votre surface habitable à 110 m², ajoutant ainsi deux chambres supplémentaires et une salle de bain, pour un total de 4 chambres et 2 salles de bains.Les caractéristiques principales de cette maison incluent un garage intégré, un cellier, et des combles aménageables. Les options les plus demandées par nos clients, telles que la version Investisseur et les prises USB murales, sont également disponibles.La Focus EVO est idéale pour tous ceux qui recherchent une maison complète à un prix compétitif. Elle comprend une grande pièce de jour traversante, 4 chambres, une salle de bain, et un garage de 15 m². Que vous soyez un jeune couple, un célibataire ou une famille en pleine expansion, cette maison saura s’adapter à vos besoins et à vos envies.Ne manquez pas cette occasion unique de devenir propriétaire d’une maison évolutive, économe en énergie et conforme aux dernières normes environnementales. Contactez-nous dès aujourd’hui pour plus d’informations et pour planifier une visite.

Troissereux
TERRAINMagnifique terrain à SAISIR au plus vite, situé dans une jolie rue et Calme garanti . Plat. Clos sur 3 cotés. Ensoleillement plein SUD. Possibilités R+1. Pas de contraintes ABF. Proche toutes commodités et à 10 mn de BeauvaisPrix : 79900 €.Sur ce terrain, réalisez votre projet de construction de maison RE 2020 avec PAVILLONS D'ÎLE-DE-FRANCE (constructeur de maisons de gamme et sur-mesure depuis plus de 50 ans) :- Plan sur-mesure et personnalisé de 2 à 5 chambres- Mode de chauffage au choix- Grands choix d'équipements et de prestations- Matériaux de qualité selon les normes en vigueur- Accompagnement dans le choix et l’acquisition du terrainDemandez une étude gratuite et personnalisée de votre projet de construction sur ce terrain !Contactez Véronique LEMOUTON au (Numéro supprimé) ou au (Numéro supprimé) (Pavillons d'Île-de-France – Agence de Cauffry).Prix hors frais de notaire. Terrain sélectionné et vu pour vous sous réserve de disponibilité et au prix indiqué par notre partenaire foncier. Visuels non contractuels.Cette annonce a été créée et diffusée avec le logiciel VITAHOME.

Troissereux
TERRAIN ET MAISONRéalisez votre projet de construction de maison RE 2020 avec PAVILLONS D'ÎLE-DE-FRANCE (constructeur de maisons de gamme et sur-mesure depuis plus de 50 ans) :- Plan sur-mesure et personnalisé de 2 à 5 chambres- Mode de chauffage au choix- Grands choix d'équipements et de prestations- Matériaux de qualité selon les normes en vigueur- Accompagnement dans le choix et l’acquisition du terrainInformations du terrain : Magnifique terrain à SAISIR au plus vite, situé dans une jolie rue et Calme garanti . Plat. Clos sur 3 cotés. Ensoleillement plein SUD. Possibilités R+1. Pas de contraintes ABF. Proche toutes commodités et à 10 mn de BeauvaisDemandez une étude gratuite et personnalisée de votre projet de construction !Contactez Véronique LEMOUTON au (Numéro supprimé) ou au (Numéro supprimé) (Pavillons d'Île-de-France – Agence de Cauffry).Prix avec assurance dommages-ouvrage comprise, hors VRD, terrain viabilisé, assainissement non compris, frais de notaire non compris, taxes non comprises, frais divers non compris. Terrain sélectionné et vu pour vous sous réserve de disponibilité et au prix indiqué par notre partenaire foncier. Visuels non contractuels.Cette annonce a été créée et diffusée avec le logiciel VITAHOME.

Troissereux
TERRAIN ET MAISONRéalisez votre projet de construction de maison RE 2020 avec PAVILLONS D'ÎLE-DE-FRANCE (constructeur de maisons de gamme et sur-mesure depuis plus de 50 ans) :- Plan sur-mesure et personnalisé de 2 à 5 chambres- Mode de chauffage au choix- Grands choix d'équipements et de prestations- Matériaux de qualité selon les normes en vigueur- Accompagnement dans le choix et l’acquisition du terrainInformations du terrain : Magnifique terrain à SAISIR au plus vite, situé dans une jolie rue et Calme garanti . Plat. Clos sur 3 cotés. Ensoleillement plein SUD. Possibilités R+1. Pas de contraintes ABF. Proche toutes commodités et à 10 mn de BeauvaisDemandez une étude gratuite et personnalisée de votre projet de construction !Contactez Véronique LEMOUTON au (Numéro supprimé) ou au (Numéro supprimé) (Pavillons d'Île-de-France – Agence de Cauffry).Prix avec assurance dommages-ouvrage comprise, hors VRD, terrain viabilisé, assainissement non compris, frais de notaire non compris, taxes non comprises, frais divers non compris. Terrain sélectionné et vu pour vous sous réserve de disponibilité et au prix indiqué par notre partenaire foncier. Visuels non contractuels.Cette annonce a été créée et diffusée avec le logiciel VITAHOME.

Troissereux
TERRAIN ET MAISONRéalisez votre projet de construction de maison RE 2020 avec PAVILLONS D'ÎLE-DE-FRANCE (constructeur de maisons de gamme et sur-mesure depuis plus de 50 ans) :- Plan sur-mesure et personnalisé de 2 à 5 chambres- Mode de chauffage au choix- Grands choix d'équipements et de prestations- Matériaux de qualité selon les normes en vigueur- Accompagnement dans le choix et l’acquisition du terrainInformations du terrain : Magnifique terrain à SAISIR au plus vite, situé dans une jolie rue et Calme garanti . Plat. Clos sur 3 cotés. Ensoleillement plein SUD. Possibilités R+1. Pas de contraintes ABF. Proche toutes commodités et à 10 mn de BeauvaisDemandez une étude gratuite et personnalisée de votre projet de construction !Contactez Véronique LEMOUTON au (Numéro supprimé) ou au (Numéro supprimé) (Pavillons d'Île-de-France – Agence de Cauffry).Prix avec assurance dommages-ouvrage comprise, hors VRD, terrain viabilisé, assainissement non compris, frais de notaire non compris, taxes non comprises, frais divers non compris. Terrain sélectionné et vu pour vous sous réserve de disponibilité et au prix indiqué par notre partenaire foncier. Visuels non contractuels.Cette annonce a été créée et diffusée avec le logiciel VITAHOME.

Troissereux
TERRAIN ET MAISONRéalisez votre projet de construction de maison RE 2020 avec PAVILLONS D'ÎLE-DE-FRANCE (constructeur de maisons de gamme et sur-mesure depuis plus de 50 ans) :- Plan sur-mesure et personnalisé de 2 à 5 chambres- Mode de chauffage au choix- Grands choix d'équipements et de prestations- Matériaux de qualité selon les normes en vigueur- Accompagnement dans le choix et l’acquisition du terrainDemandez une étude gratuite et personnalisée de votre projet de construction !Contactez Véronique LEMOUTON au (Numéro supprimé)(Pavillons d'Île-de-France – Agence de Cauffry).Prix avec assurance dommages-ouvrage comprise, hors VRD, terrain viabilisé, assainissement non compris, frais de notaire non compris, taxes non comprises, frais divers non compris. Terrain sélectionné et vu pour vous sous réserve de disponibilité et au prix indiqué par notre partenaire foncier. Visuels non contractuels.Cette annonce a été créée et diffusée avec le logiciel VITAHOME.
L’actualité immobilière à Guignecourt





