Maison à construire à Lachapelle-aux-Pots (60650)
Images
Description
Maison de 6 pièces (115 m²) en vente à Blacourt
EMPLACEMENT PRIVILÉGIÉ - MAISON 6 PIÈCES NEUVE
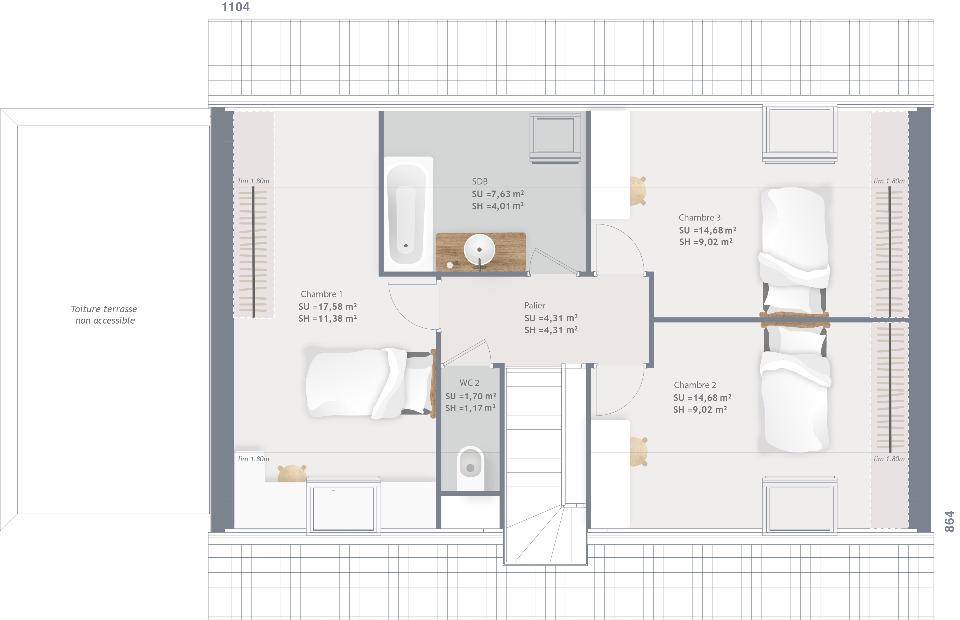
En vente : localisée à 16 km de Beauvais, découvrez, bénéficiant d'un emplacement privilégié dans Blacourt (60650), cette maison de 6 pièces de 115 m² et de 1 000 m² de terrain. Elle propose quatre chambres, une cuisine et deux salles de bains.
Cette maison possède 2 niveaux. Elle est neuve.
La maison se trouve dans un secteur convoité. L'École Élémentaire Michel Daniel est implantée à moins de 10 minutes à pied. Niveau transports, il y a la gare Gournay-Ferrières à moins de 10 minutes en voiture. L'autoroute A16 et la nationale N31 sont accessibles à moins de 20 km. On trouve une boulangerie et un commerce à proximité du bien.
Elle est à vendre pour la somme de 254 000 €.
Contactez notre agence (Fabrice BONELLO : (Numéro supprimé)) pour tout renseignement sur la maison ou sur les modalités de vente. Faites de vos projets immobiliers une réalité avec Maisons France Confort Beauvais.
Logement susceptibles de vous intéresser
Nous vous proposons de découvrir aussi cette sélection de logements situés à moins de 10km de Lachapelle-aux-Pots et qui seraient susceptibles de vous intéresser.
Savignies
TERRAIN ET MAISONRéalisez votre projet de construction de maison RE 2020 avec PAVILLONS D'ÎLE-DE-FRANCE (constructeur de maisons de gamme et sur-mesure depuis plus de 50 ans) :- Plan sur-mesure et personnalisé de 2 à 5 chambres- Mode de chauffage au choix- Grands choix d'équipements et de prestations- Matériaux de qualité selon les normes en vigueur- Accompagnement dans le choix et l’acquisition du terrainInformations du terrain : A la recherche du lieu parfait pour concrétiser votre vision ? Ne chercher plus, il est là ! Ce terrain spacieux, situé dans un quartier très rechercher, offre une belle opportunité unique pour réaliser le projet d’une vie. – Emplacement stratégique offrant un accès facile aux commodités locales et aux axes de transport. – Environnement calme et paisible, idéal pour ceux qui recherchent la tranquillité tout en restant connectés à la vie urbaine. – Proximité des écoles, commerces et autres services essentiels, garantissant une vie pratique et confortable. Ne manquez pas cette opportunité unique d’investir dans l’avenir et de réaliser vos aspirations. N’hésitez pas à me contacter dès maintenant pour plus d’informations et pour planifier une visite sur place ! Contactez Jason Guevel au (Numéro supprimé) ou par mail : (Email supprimé) . Pavillon d'Ile de France Constructeur de maison individuelle.Demandez une étude gratuite et personnalisée de votre projet de construction !Contactez Jason GUEVEL au (Numéro supprimé) ou au (Numéro supprimé) (Pavillons d'Île-de-France – Agence de Cauffry).Prix avec assurance dommages-ouvrage comprise, hors VRD, terrain viabilisé, assainissement non compris, frais de notaire non compris, taxes non comprises, frais divers non compris. Terrain sélectionné et vu pour vous sous réserve de disponibilité et au prix indiqué par notre partenaire foncier. Visuels non contractuels.Cette annonce a été créée et diffusée avec le logiciel VITAHOME.
Savignies
TERRAINA la recherche du lieu parfait pour concrétiser votre vision ? Ne chercher plus, il est là ! Ce terrain spacieux, situé dans un quartier très rechercher, offre une belle opportunité unique pour réaliser le projet d’une vie. – Emplacement stratégique offrant un accès facile aux commodités locales et aux axes de transport. – Environnement calme et paisible, idéal pour ceux qui recherchent la tranquillité tout en restant connectés à la vie urbaine. – Proximité des écoles, commerces et autres services essentiels, garantissant une vie pratique et confortable. Ne manquez pas cette opportunité unique d’investir dans l’avenir et de réaliser vos aspirations. N’hésitez pas à me contacter dès maintenant pour plus d’informations et pour planifier une visite sur place ! Contactez Jason Guevel au (Numéro supprimé) ou par mail : (Email supprimé) . Pavillon d'Ile de France Constructeur de maison individuelle.Prix : 39200 €.Sur ce terrain, réalisez votre projet de construction de maison RE 2020 avec PAVILLONS D'ÎLE-DE-FRANCE (constructeur de maisons de gamme et sur-mesure depuis plus de 50 ans) :- Plan sur-mesure et personnalisé de 2 à 5 chambres- Mode de chauffage au choix- Grands choix d'équipements et de prestations- Matériaux de qualité selon les normes en vigueur- Accompagnement dans le choix et l’acquisition du terrainDemandez une étude gratuite et personnalisée de votre projet de construction sur ce terrain !Contactez Jason GUEVEL au (Numéro supprimé) ou au (Numéro supprimé) (Pavillons d'Île-de-France – Agence de Cauffry).Prix hors frais de notaire. Terrain sélectionné et vu pour vous sous réserve de disponibilité et au prix indiqué par notre partenaire foncier. Visuels non contractuels.Cette annonce a été créée et diffusée avec le logiciel VITAHOME.
Savignies
TERRAIN*** Offre commerciale – 2 000 € valable jusqu’au 31 mars 2025 ! *** ( L'offre est déjà appliquer sur l'annonce )Vous êtes à la recherche d'un terrain qui saura concrétiser vos ambitions ? Ne cherchez plus ! Ce terrain généreusement dimensionné, situé dans un quartier prisé et recherché, représente une occasion rare de bâtir le projet de vos rêves. Caractéristiques : Emplacement privilégié, offrant une accessibilité facile aux principales commodités locales ainsi qu'aux principaux axes de transport. Cadre paisible et serein, parfait pour ceux qui souhaitent allier tranquillité et proximité avec l'animation urbaine. Proximité immédiate des écoles, commerces et services essentiels, offrant ainsi confort et praticité au quotidien. C'est l'opportunité parfaite pour investir dans un avenir prometteur. Ne laissez pas passer cette chance unique de donner vie à vos projets ! Pour plus d'informations ou pour organiser une visite, contactez-moi sans tarder.Prix : 60000 €.Sur ce terrain, réalisez votre projet de construction de maison RE 2020 avec PAVILLONS D'ÎLE-DE-FRANCE (constructeur de maisons de gamme et sur-mesure depuis plus de 50 ans) :- Plan sur-mesure et personnalisé de 2 à 5 chambres- Mode de chauffage au choix- Grands choix d'équipements et de prestations- Matériaux de qualité selon les normes en vigueur- Accompagnement dans le choix et l’acquisition du terrainDemandez une étude gratuite et personnalisée de votre projet de construction sur ce terrain !Contactez Jason GUEVEL au (Numéro supprimé) ou au (Numéro supprimé) (Pavillons d'Île-de-France – Agence de Cauffry).Prix hors frais de notaire. Terrain sélectionné et vu pour vous sous réserve de disponibilité et au prix indiqué par notre partenaire foncier. Visuels non contractuels.Cette annonce a été créée et diffusée avec le logiciel VITAHOME.
Ons-en-Bray
TERRAINÀ Vendre : Terrain Exceptionnel de 440 m² – Idéal pour Votre Future Maison ! ??Situé dans un environnement prisé, ce magnifique terrain de 440 m² offre un cadre naturel rare et recherché. Parfait pour les personnes souhaitant construire une maison confortable et entièrement sur mesure.- Projet de construction avec notre partenaireLa vente inclut la possibilité de construire votre future maison avec notre partenaire, entreprise reconnue pour la qualité de ses réalisations, son accompagnement sur mesure et son expertise dans l’habitat durable.Vous pourrez bénéficier :- D’un accompagnement complet (plans, permis, construction)- D’une maison personnalisée selon vos goûts et besoins- D’un projet clé en main en toute sérénité- Localisation :Environnement paisible, proche des commodités, écoles, commerces, axes routiers, tout en restant à l’écart de la foule.- Viabilités :Le terrain dispose des viabilités TAE déjà raccordéEau / Electricité / Telecom prêt à être raccordés? Une opportunité rare pour concrétiser votre projet de vie !Contactez Gérald AFONSO au 06 / 98 / 03 / 84 /87 dès maintenant pour plus d’informations, une visite ou une étude personnalisée. Les honoraires sont à la charge du vendeur.Les informations sur les risques auxquels ce bien est exposé sont disponibles sur le site Géorisques : www. georisques. gouv. fr.Contactez Gérald AFONSO Entrepreneur Individuel, Agent commercial OptimHome (RSAC N(Numéro supprimé) Greffe de COMPIEGNE) (Numéro supprimé) (réf. 598284 )
Savignies
TERRAIN ET MAISONRéalisez votre projet de construction de maison RE 2020 avec PAVILLONS D'ÎLE-DE-FRANCE (constructeur de maisons de gamme et sur-mesure depuis plus de 50 ans) :- Plan sur-mesure et personnalisé de 2 à 5 chambres- Mode de chauffage au choix- Grands choix d'équipements et de prestations- Matériaux de qualité selon les normes en vigueur- Accompagnement dans le choix et l’acquisition du terrainInformations du terrain : A la recherche du lieu parfait pour concrétiser votre vision ? Ne chercher plus, il est là ! Ce terrain spacieux, situé dans un quartier très rechercher, offre une belle opportunité unique pour réaliser le projet d’une vie. – Emplacement stratégique offrant un accès facile aux commodités locales et aux axes de transport. – Environnement calme et paisible, idéal pour ceux qui recherchent la tranquillité tout en restant connectés à la vie urbaine. – Proximité des écoles, commerces et autres services essentiels, garantissant une vie pratique et confortable. Ne manquez pas cette opportunité unique d’investir dans l’avenir et de réaliser vos aspirations. N’hésitez pas à me contacter dès maintenant pour plus d’informations et pour planifier une visite sur place ! Contactez Jason Guevel au (Numéro supprimé) ou par mail : (Email supprimé) . Pavillon d'Ile de France Constructeur de maison individuelle.Demandez une étude gratuite et personnalisée de votre projet de construction !Contactez Jason GUEVEL au (Numéro supprimé) ou au (Numéro supprimé) (Pavillons d'Île-de-France – Agence de Cauffry).Prix avec assurance dommages-ouvrage comprise, hors VRD, terrain viabilisé, assainissement non compris, frais de notaire non compris, taxes non comprises, frais divers non compris. Terrain sélectionné et vu pour vous sous réserve de disponibilité et au prix indiqué par notre partenaire foncier. Visuels non contractuels.Cette annonce a été créée et diffusée avec le logiciel VITAHOME.
Savignies
TERRAIN ET MAISONRéalisez votre projet de construction de maison RE 2020 avec PAVILLONS D'ÎLE-DE-FRANCE (constructeur de maisons de gamme et sur-mesure depuis plus de 50 ans) :- Plan sur-mesure et personnalisé de 2 à 5 chambres- Mode de chauffage au choix- Grands choix d'équipements et de prestations- Matériaux de qualité selon les normes en vigueur- Accompagnement dans le choix et l’acquisition du terrainInformations du terrain : A la recherche du lieu parfait pour concrétiser votre vision ? Ne chercher plus, il est là ! Ce terrain spacieux, situé dans un quartier très rechercher, offre une belle opportunité unique pour réaliser le projet d’une vie. – Emplacement stratégique offrant un accès facile aux commodités locales et aux axes de transport. – Environnement calme et paisible, idéal pour ceux qui recherchent la tranquillité tout en restant connectés à la vie urbaine. – Proximité des écoles, commerces et autres services essentiels, garantissant une vie pratique et confortable. Ne manquez pas cette opportunité unique d’investir dans l’avenir et de réaliser vos aspirations. N’hésitez pas à me contacter dès maintenant pour plus d’informations et pour planifier une visite sur place ! Contactez Jason Guevel au (Numéro supprimé) ou par mail : (Email supprimé) . Pavillon d'Ile de France Constructeur de maison individuelle.Demandez une étude gratuite et personnalisée de votre projet de construction !Contactez Jason GUEVEL au (Numéro supprimé) ou au (Numéro supprimé) (Pavillons d'Île-de-France – Agence de Cauffry).Prix avec assurance dommages-ouvrage comprise, hors VRD, terrain viabilisé, assainissement non compris, frais de notaire non compris, taxes non comprises, frais divers non compris. Terrain sélectionné et vu pour vous sous réserve de disponibilité et au prix indiqué par notre partenaire foncier. Visuels non contractuels.Cette annonce a été créée et diffusée avec le logiciel VITAHOME.
Savignies
TERRAIN ET MAISONSuperficie Maison : 160 m²Cette splendide demeure vous plaît ? Elle est la réelle promesse d’une immersion dans un univers verdoyant au cœur de ville ! Elle bénéficie d'un cadre paisible, lumineux et jouit d’une vue en plein sud, vous pourrez admirer de merveilleux lever et coucher de soleil.Ce logement principal de 160 m2 offrant en rez-de-chaussée un hall d'entrée spacieux menant à un vaste et lumineux séjour contemporain avec une cheminée ainsi que de grande baie vitrée.Vous hésitez entre une cuisine ouverte ou une cuisine fermée ? Cette maison vous offre la possibilité d'avoir une pièce à vivre de plus de 50 m² avec une belle hauteur sous plafond pour laisser passer la lumière du jour. De plus, l’arrière-cuisine comprend un cellier assez grand avec un espace dédié au rangement, un espace chaufferie, et votre inspiration laisse imager vos envies.Un escalier de deux quart tournant vous emmène à l’étage pour découvrir 5 chambres assez spacieuses se partagent une salle de bain équipé d’une douche italienne, suivie d’une double vasque. Une suite parentale avec un accès sur terrasse depuis la chambre offrant une vue époustouflante sur le jardin.Les finitions haut de gamme et personnalisées sont évidentes dans toute la maison, un espace dédié au rangement ainsi qu’une cloison intégrée dans les chambres peuvent être réalisé afin d’aménager au mieux votre dressing selon vos envies et d'optimiser un maximum d’espaces. N’hésitez pas à en parler au conseiller qui se chargera de votre projet.En complément, cette maison dispose d’une place de stationnement et d'un garage de 23 m²..La conception des plans intérieurs de votre maison se fait au gré de vos envies.Venez découvrir le partenaire idéal de votre construction qui donne le maximum pour un accompagnement personnalisé.Nous garantissons une architecture raffinée et nous avons l'œil pour chaque détail, alors, commencez à rêver en regardant quelques-unes de nos plus belles créations.Tous nos modèles sont fabriqués sur mesure et chaque réalisation est unique.Construction de maison individuelle sur mesure, nous nous adaptons à vos besoins et à vos envies !Construisez votre maison réglementée RE2020 grâce à Pavillons d'Ile de FranceContactez Jason GUEVEL au (Numéro supprimé) ou par mail (Email supprimé) (Pavillons d'Île-de-France – Agence de Saint-Prix).Prix avec assurance dommages-ouvrage comprise, hors VRD, terrain viabilisé, assainissement non compris, frais de notaire non compris, taxes non comprises, frais divers non compris. Terrain sélectionné et vu pour vous sous réserve de disponibilité et au prix indiqué par notre partenaire foncier. Visuels non contractuels.Cette annonce a été créée et diffusée avec le logiciel VITAHOME.
Savignies
TERRAIN ET MAISONCette splendide demeure vous plaît ? Elle est la réelle promesse d’une immersion dans un univers verdoyant au cœur de Cauffry !Elle bénéficie d'un cadre paisible, lumineux et jouit d’une vue en plein sud, vous pourrez admirer de merveilleux lever et coucher de soleil.Ce logement principal de 95 m2 offrant en rez-de-chaussée un hall d'entrée spacieux menant à un vaste et lumineux séjour.Cette maison vous offre la possibilité d'avoir une pièce à vivre de plus de 40 m² avec une belle hauteur sous plafond pour laisser passer la lumière du jour. De plus, l’arrière-cuisine comprend un cellier assez grand avec un espace dédié au rangement, un espace chaufferie, et votre inspiration laisse imager vos envies.Composez de 2 chambres assez spacieuses dont une suite parentale avec un accès sur terrasse depuis la chambre offrant une vue époustouflante sur le jardin. Une salle de bain équipé d’une douche italienne..Les finitions haut de gamme et personnalisées sont évidentes dans toute la maison, un espace dédié au rangement ainsi qu’une cloison intégrée dans les chambres peuvent être réalisé afin d’aménager au mieux votre dressing selon vos envies et d'optimiser un maximum d’espaces. N’hésitez pas à en parler au conseiller qui se chargera de votre projet.En complément, cette maison dispose d’une place de stationnement et d'un garage de 20 m².La conception des plans intérieurs de votre maison se fait au gré de vos envies.Venez découvrir le partenaire idéal de votre construction qui donne le maximum pour un accompagnement personnalisé.Nous garantissons une architecture raffinée et nous avons l'œil pour chaque détail, alors, commencez à rêver en regardant quelques-unes de nos plus belles créations.Tous nos modèles sont fabriqués sur mesure et chaque réalisation est unique.Construction de maison individuelle sur mesure, nous nous adaptons à vos besoins et à vos envies !Construisez votre maison réglementée RE2020 grâce à Pavillons d'Ile de FranceContactez Jason GUEVEL au (Numéro supprimé) ou par mail: (Email supprimé) (Pavillons d'Île-de-France – Agence de Saint-Prix).Prix avec assurance dommages-ouvrage comprise, hors VRD, terrain viabilisé, assainissement non compris, frais de notaire non compris, taxes non comprises, frais divers non compris. Terrain sélectionné et vu pour vous sous réserve de disponibilité et au prix indiqué par notre partenaire foncier. Visuels non contractuels.Cette annonce a été créée et diffusée avec le logiciel VITAHOME.
Ons-en-Bray
TERRAIN ET MAISONRéalisez votre projet de construction de maison RE 2020 avec PAVILLONS D'ÎLE-DE-FRANCE (constructeur de maisons de gamme et sur-mesure depuis plus de 50 ans) :- Plan sur-mesure et personnalisé de 2 à 5 chambres- Mode de chauffage au choix- Grands choix d'équipements et de prestations- Matériaux de qualité selon les normes en vigueur- Accompagnement dans le choix et l’acquisition du terrainInformations du terrain : Terrain viabilisé. 19 min de Beauvais, 25 min de gisors et Gournay en Bray. Ecole Primaire et élémentaire. Accès N31.Demandez une étude gratuite et personnalisée de votre projet de construction !Contactez Stéphane VERHAUVEN au (Numéro supprimé) ou au (Numéro supprimé) (Pavillons d'Île-de-France – Agence de Meaux).Prix avec assurance dommages-ouvrage comprise, hors VRD, terrain viabilisé, assainissement compris, frais de notaire compris, taxes non comprises, frais divers non compris. Terrain sélectionné et vu pour vous sous réserve de disponibilité et au prix indiqué par notre partenaire foncier. Visuels non contractuels.Cette annonce a été créée et diffusée avec le logiciel VITAHOME.
L’actualité immobilière à Lachapelle-aux-Pots
27/11/2023
02/11/2023
30/10/2023
20/10/2023
16/10/2023
16/10/2023