Images
Description
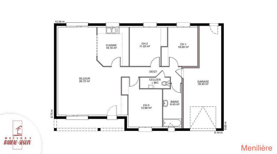
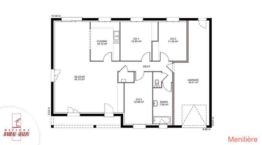
Sur ce terrain, nous vous proposons cette maison neuve, la Ménilière, un modèle plain-pied moderne qui saura répondre à toutes vos attentes. Avec une surface de 73 m², cette maison dispose de 3 pièces, dont 2 chambres, et intègre de base un garage ainsi qu'une longue galerie sur la face avant.
Véritable ""tout-en-un"" de la maison individuelle, la Ménilière est idéale pour votre projet de construction sur-mesure. Elle est disponible avec un toit à 2 pans ou 4 pans, selon vos préférences esthétiques. Le garage intégré et la galerie avant ajoutent une touche de praticité et de confort à votre quotidien.
Parmi les options les plus demandées par nos clients, vous pouvez opter pour des menuiseries en aluminium et un sous-sol, afin de personnaliser encore davantage votre future maison.
Cette maison neuve est basse consommation et conforme à la RE2020, garantissant ainsi des performances énergétiques optimales et un respect des normes environnementales actuelles.
Le constructeur Babeau-Seguin, reconnu pour offrir le meilleur rapport qualité/prix du marché, vous accompagne dans la réalisation de votre projet de vie. Avec un prix serré et une personnalisation facile, il n'est pas étonnant que la Ménilière soit dans le top 5 des ventes de Babeau-Seguin.
Ne manquez pas cette opportunité unique de devenir propriétaire d'une maison moderne, fonctionnelle et économe en énergie. Contactez-nous dès maintenant pour plus d'informations et pour visiter ce modèle sur notre terrain.
Logement susceptibles de vous intéresser
Nous vous proposons de découvrir aussi cette sélection de logements situés à moins de 10km de Le Plessier-sur-Bulles et qui seraient susceptibles de vous intéresser.

Bresles
TERRAINÀ la recherche d’un terrain idéal pour concrétiser votre projet de construction de maison ? Ne cherchez plus ! Découvrez ce terrain viabilisé de 522 m², situé dans un lotissement attrayant à Bresles. Avec un ensoleillement optimal et une situation géographique privilégiée, cet emplacement vous offre la possibilité de bâtir la maison de vos rêves dans un environnement calme et paisible, tout en étant connecté à la vie dynamique de la ville. Bresles, située dans le département de l’Oise, fait partie de la région des Hauts-de-France et se distingue par ses nombreuses attractions locales et commodités. Le quartier, très recherché, bénéficie d’un cœur de ville dynamique, où vous trouverez commerces, écoles et services à proximité. La convivialité et la sécurité de cet endroit en font un cadre de vie idéal pour les familles. Ne manquez pas cette occasion unique d’investir dans un terrain prometteur, au cœur de toutes les attentions. À noter qu’en tant que constructeur, nous ne sommes pas mandatés pour réaliser la vente de ce terrain.

Bresles
TERRAIN ET MAISONSur ce terrain, nous vous proposons la maison Focus Urban 80, un modèle à étage compact et moderne parfaitement adapté aux parcelles urbaines. Avec ses 80 m² habitables, cette maison neuve offre une belle pièce de vie ouverte et lumineuse au rez-de-chaussée, trois chambres bien agencées à l’étage, ainsi qu’un garage intégré pour plus de confort au quotidien.La distribution des pièces est pensée pour séparer harmonieusement les espaces jour et nuit, tout en maximisant la surface utile. Conforme à la réglementation environnementale RE2020, la Focus Urban garantit un excellent niveau de performance énergétique, avec un confort thermique optimal été comme hiver.C’est une solution idéale pour un premier achat, avec un prix accessible, un style sobre et contemporain, et la possibilité de vivre dans une maison neuve bien conçue, tout en maîtrisant votre budget.

Le Plessier-sur-Bulles
TERRAINterrain platacces facile a beauvais et clermontcommodités a proximitéPrix : 47500 €.Sur ce terrain, réalisez votre projet de construction de maison RE 2020 avec PAVILLONS D'ÎLE-DE-FRANCE (constructeur de maisons de gamme et sur-mesure depuis plus de 50 ans) :- Plan sur-mesure et personnalisé de 2 à 5 chambres- Mode de chauffage au choix- Grands choix d'équipements et de prestations- Matériaux de qualité selon les normes en vigueur- Accompagnement dans le choix et l’acquisition du terrainDemandez une étude gratuite et personnalisée de votre projet de construction sur ce terrain !Contactez Jean-Edouard DEFOIX au (Numéro supprimé) ou au (Numéro supprimé) (Pavillons d'Île-de-France – Agence de Beauvais).Prix hors frais de notaire. Terrain sélectionné et vu pour vous sous réserve de disponibilité et au prix indiqué par notre partenaire foncier. Visuels non contractuels.Cette annonce a été créée et diffusée avec le logiciel VITAHOME.

Montreuil-sur-Brêche
TERRAIN ET MAISONRéalisez votre projet de construction de maison RE 2020 avec PAVILLONS D'ÎLE-DE-FRANCE (constructeur de maisons de gamme et sur-mesure depuis plus de 50 ans) :- Plan sur-mesure et personnalisé de 2 à 5 chambres- Mode de chauffage au choix- Grands choix d'équipements et de prestations- Matériaux de qualité selon les normes en vigueur- Accompagnement dans le choix et l’acquisition du terrainInformations du terrain : superbe terrain clôturé en partieDemandez une étude gratuite et personnalisée de votre projet de construction !Contactez Jean-Edouard DEFOIX au (Numéro supprimé) ou au (Numéro supprimé) (Pavillons d'Île-de-France – Agence de Beauvais).Prix avec assurance dommages-ouvrage comprise, hors VRD, terrain non viabilisé, assainissement non compris, frais de notaire non compris, taxes non comprises, frais divers non compris. Terrain sélectionné et vu pour vous sous réserve de disponibilité et au prix indiqué par notre partenaire foncier. Visuels non contractuels.Cette annonce a été créée et diffusée avec le logiciel VITAHOME.

Le Plessier-sur-Bulles
TERRAIN ET MAISONRéalisez votre projet de construction de maison RE 2020 avec PAVILLONS D'ÎLE-DE-FRANCE (constructeur de maisons de gamme et sur-mesure depuis plus de 50 ans) :- Plan sur-mesure et personnalisé de 2 à 5 chambres- Mode de chauffage au choix- Grands choix d'équipements et de prestations- Matériaux de qualité selon les normes en vigueur- Accompagnement dans le choix et l’acquisition du terrainInformations du terrain : terrain platacces facile a beauvais et clermontcommodités a proximitéDemandez une étude gratuite et personnalisée de votre projet de construction !Contactez Jean-Edouard DEFOIX au (Numéro supprimé) ou au (Numéro supprimé) (Pavillons d'Île-de-France – Agence de Beauvais).Prix avec assurance dommages-ouvrage comprise, hors VRD, terrain non viabilisé, assainissement non compris, frais de notaire non compris, taxes non comprises, frais divers non compris. Terrain sélectionné et vu pour vous sous réserve de disponibilité et au prix indiqué par notre partenaire foncier. Visuels non contractuels.Cette annonce a été créée et diffusée avec le logiciel VITAHOME.

Montreuil-sur-Brêche
TERRAIN ET MAISONRéalisez votre projet de construction de maison RE 2020 avec PAVILLONS D'ÎLE-DE-FRANCE (constructeur de maisons de gamme et sur-mesure depuis plus de 50 ans) :- Plan sur-mesure et personnalisé de 2 à 5 chambres- Mode de chauffage au choix- Grands choix d'équipements et de prestations- Matériaux de qualité selon les normes en vigueur- Accompagnement dans le choix et l’acquisition du terrainInformations du terrain : superbe terrain clôturé en partieDemandez une étude gratuite et personnalisée de votre projet de construction !Contactez Jean-Edouard DEFOIX au (Numéro supprimé) ou au (Numéro supprimé) (Pavillons d'Île-de-France – Agence de Beauvais).Prix avec assurance dommages-ouvrage comprise, hors VRD, terrain non viabilisé, assainissement non compris, frais de notaire non compris, taxes non comprises, frais divers non compris. Terrain sélectionné et vu pour vous sous réserve de disponibilité et au prix indiqué par notre partenaire foncier. Visuels non contractuels.Cette annonce a été créée et diffusée avec le logiciel VITAHOME.

Le Plessier-sur-Bulles
TERRAIN ET MAISONRéalisez votre projet de construction de maison RE 2020 avec PAVILLONS D'ÎLE-DE-FRANCE (constructeur de maisons de gamme et sur-mesure depuis plus de 50 ans) :- Plan sur-mesure et personnalisé de 2 à 5 chambres- Mode de chauffage au choix- Grands choix d'équipements et de prestations- Matériaux de qualité selon les normes en vigueur- Accompagnement dans le choix et l’acquisition du terrainInformations du terrain : terrain platacces facile a beauvais et clermontcommodités a proximitéDemandez une étude gratuite et personnalisée de votre projet de construction !Contactez Jean-Edouard DEFOIX au (Numéro supprimé) ou au (Numéro supprimé) (Pavillons d'Île-de-France – Agence de Beauvais).Prix avec assurance dommages-ouvrage comprise, hors VRD, terrain non viabilisé, assainissement non compris, frais de notaire non compris, taxes non comprises, frais divers non compris. Terrain sélectionné et vu pour vous sous réserve de disponibilité et au prix indiqué par notre partenaire foncier. Visuels non contractuels.Cette annonce a été créée et diffusée avec le logiciel VITAHOME.

Montreuil-sur-Brêche
TERRAIN ET MAISONRéalisez votre projet de construction de maison RE 2020 avec PAVILLONS D'ÎLE-DE-FRANCE (constructeur de maisons de gamme et sur-mesure depuis plus de 50 ans) :- Plan sur-mesure et personnalisé de 2 à 5 chambres- Mode de chauffage au choix- Grands choix d'équipements et de prestations- Matériaux de qualité selon les normes en vigueur- Accompagnement dans le choix et l’acquisition du terrainInformations du terrain : superbe terrain clôturé en partieDemandez une étude gratuite et personnalisée de votre projet de construction !Contactez Jean-Edouard DEFOIX au (Numéro supprimé) ou au (Numéro supprimé) (Pavillons d'Île-de-France – Agence de Beauvais).Prix avec assurance dommages-ouvrage comprise, hors VRD, terrain non viabilisé, assainissement non compris, frais de notaire non compris, taxes non comprises, frais divers non compris. Terrain sélectionné et vu pour vous sous réserve de disponibilité et au prix indiqué par notre partenaire foncier. Visuels non contractuels.Cette annonce a été créée et diffusée avec le logiciel VITAHOME.

Le Plessier-sur-Bulles
TERRAIN ET MAISONRéalisez votre projet de construction de maison RE 2020 avec PAVILLONS D'ÎLE-DE-FRANCE (constructeur de maisons de gamme et sur-mesure depuis plus de 50 ans) :- Plan sur-mesure et personnalisé de 2 à 5 chambres- Mode de chauffage au choix- Grands choix d'équipements et de prestations- Matériaux de qualité selon les normes en vigueur- Accompagnement dans le choix et l’acquisition du terrainInformations du terrain : terrain platacces facile a beauvais et clermontcommodités a proximitéDemandez une étude gratuite et personnalisée de votre projet de construction !Contactez Jean-Edouard DEFOIX au (Numéro supprimé) ou au (Numéro supprimé) (Pavillons d'Île-de-France – Agence de Beauvais).Prix avec assurance dommages-ouvrage comprise, hors VRD, terrain non viabilisé, assainissement non compris, frais de notaire non compris, taxes non comprises, frais divers non compris. Terrain sélectionné et vu pour vous sous réserve de disponibilité et au prix indiqué par notre partenaire foncier. Visuels non contractuels.Cette annonce a été créée et diffusée avec le logiciel VITAHOME.
L’actualité immobilière à Le Plessier-sur-Bulles





