Images
Description
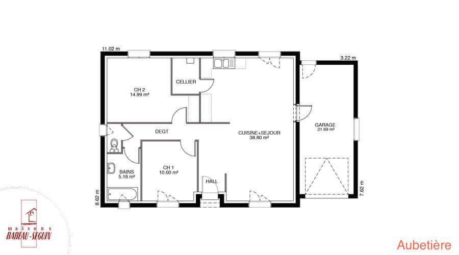
Sur ce terrain, nous vous proposons cette maison neuve Aubetière, un modèle traditionnel de la gamme Babeau-Seguin, constructeur reconnu pour offrir le meilleur rapport qualité/prix du marché. Avec une surface de 88 m², cette maison de plain-pied se compose de 4 pièces, dont 3 chambres spacieuses, idéales pour accueillir toute votre famille.
L'Aubetière se distingue par son excellent rapport qualité/prix et sa conformité aux normes RE2020, garantissant une basse consommation énergétique. Vous avez la possibilité de personnaliser votre maison en choisissant entre un toit à 2 pans ou à 4 pans, ainsi qu'en ajoutant un garage ou un sous-sol selon vos besoins.
Cette maison moderne et fonctionnelle est conçue pour s'adapter à vos envies et à votre mode de vie. Profitez de la flexibilité offerte par les nombreux plans et déclinaisons disponibles pour créer votre maison individuelle sur mesure.
Ne manquez pas cette opportunité de donner vie à votre projet de construction avec le modèle Aubetière, une maison neuve qui allie confort, économie d'énergie et personnalisation. Contactez-nous dès maintenant pour plus d'informations et pour découvrir toutes les options disponibles pour votre future maison.
Logement susceptibles de vous intéresser
Nous vous proposons de découvrir aussi cette sélection de logements situés à moins de 10km de Le Ployron et qui seraient susceptibles de vous intéresser.

Le Ployron
TERRAINDécouvrez ce terrain séduisant de 728 m², idéalement situé à Le Ployron, dans le département de l’Oise en Hauts-de-France. Ce terrain non-viabilisé présente des caractéristiques uniques, telles qu’une vue dégagée et un cadre champêtre arboré, parfaits pour concrétiser votre projet de construction de maison. Profitez d’un emplacement calme et privilégié où vous pourrez concevoir la maison de vos rêves dans un environnement attrayant et serein. N’attendez plus pour saisir l’opportunité d’acquérir ce terrain aux multiples atouts, propice à l’épanouissement de votre projet. Venez découvrir tout le potentiel qu’il a à offrir. À noter qu’en tant que constructeur, nous ne sommes pas mandatés pour réaliser la vente de ce terrain.

Le Ployron
TERRAIN ET MAISONSur ce terrain, nous vous proposons cette maison neuve Aubetière, un modèle traditionnel de la gamme Babeau-Seguin, constructeur reconnu pour offrir le meilleur rapport qualité/prix du marché. Avec une surface de 88 m², cette maison de plain-pied se compose de 4 pièces, dont 3 chambres spacieuses, idéales pour accueillir toute votre famille.L’Aubetière se distingue par son excellent rapport qualité/prix et sa conformité aux normes RE2020, garantissant une basse consommation énergétique. Vous avez la possibilité de personnaliser votre maison en choisissant entre un toit à 2 pans ou à 4 pans, ainsi qu’en ajoutant un garage ou un sous-sol selon vos besoins.Cette maison moderne et fonctionnelle est conçue pour s’adapter à vos envies et à votre mode de vie. Profitez de la flexibilité offerte par les nombreux plans et déclinaisons disponibles pour créer votre maison individuelle sur mesure.Ne manquez pas cette opportunité de donner vie à votre projet de construction avec le modèle Aubetière, une maison neuve qui allie confort, économie d’énergie et personnalisation. Contactez-nous dès maintenant pour plus d’informations et pour découvrir toutes les options disponibles pour votre future maison.

Mortemer
TERRAINDécouvrez ce magnifique terrain à vendre de 740m² situé dans la charmante commune de Mortemer, dans l’Oise, au cœur des Hauts-de-France. Ce terrain, non viabilisé, vous offre une vue dégagée et un environnement paisible, sans vis-à-vis, idéal pour concrétiser votre projet de construction de maison. Profitez de ce cadre naturel préservé pour imaginer votre futur chez-vous, tout en bénéficiant d’un espace généreux pour répondre à toutes vos envies. N’attendez plus pour saisir cette occasion unique d’acquérir un terrain avec un potentiel remarquable. À noter qu’en tant que constructeur, nous ne sommes pas mandatés pour réaliser la vente de ce terrain.

Mortemer
TERRAIN ET MAISONSur ce terrain, nous vous proposons cette maison neuve, modèle Mézière, conçue par Babeau-Seguin, constructeur offrant le meilleur rapport qualité/prix du marché. Avec une surface de 88 m², cette maison de plain-pied saura répondre aux attentes de nombreuses familles grâce à ses 3 chambres et ses 4 pièces.La Mézière se distingue par son plan en L, disponible en version 2 pans ou 4 pans, offrant ainsi une grande flexibilité pour s’adapter à vos besoins et à vos envies. Véritable maison sur mesure, elle séduit par ses nombreuses versions et options, permettant de créer un espace de vie unique et personnalisé.Parmi les options les plus demandées par nos clients, vous trouverez les menuiseries en aluminium, la domotique pour une maison connectée, ainsi que la possibilité d’ajouter un garage ou un sous-sol. Ces options vous permettront de profiter pleinement de votre nouvelle maison, tout en bénéficiant des dernières innovations en matière de confort et de sécurité.Cette maison neuve est également basse consommation et conforme à la réglementation environnementale RE2020, garantissant ainsi des performances énergétiques optimales et un impact réduit sur l’environnement. Vous pourrez ainsi réaliser des économies d’énergie tout en contribuant à la préservation de notre planète.Véritable coup de cœur pour de nombreux clients Babeau-Seguin, la Mézière est une maison facilement modifiable, ce qui justifie pleinement son succès. Craquerez-vous aussi pour elle ? N’attendez plus pour découvrir cette maison d’exception et contactez-nous dès maintenant pour plus d’informations.

Ménévillers
TERRAINDécouvrez ce terrain exceptionnel de 1500 m² situé dans la charmante commune de Ménévillers, dans le département de l’Oise. Cet espace non-viabilisé offre une vue dégagée et superbe, idéal pour la construction de votre future maison. Le cadre champêtre et la tranquillité du lieu sont des atouts indéniables, vous garantissant un environnement calme et reposant pour votre projet immobilier. Ne manquez pas cette opportunité unique de réaliser la maison de vos rêves dans un cadre authentique et rural. Ce terrain représente un véritable potentiel pour construire une maison dans un environnement verdoyant et paisible. N’attendez plus pour concrétiser votre projet immobilier dans ce lieu idyllique. À noter qu’en tant que constructeur, nous ne sommes pas mandatés pour réaliser la vente de ce terrain.

Ménévillers
TERRAIN ET MAISONSur ce terrain, nous vous proposons cette maison neuve : le modèle Focus Cosy city. Conçue par Babeau-Seguin, constructeur reconnu pour offrir le meilleur rapport qualité/prix du marché, cette maison de plain-pied traditionnelle offre une surface habitable de 79 m², parfaitement optimisée pour répondre aux besoins des familles.Idéale pour les petits budgets, la Focus Cosy city est une maison neuve écologique, conforme aux normes strictes de la RE2020. Elle garantit une basse consommation énergétique, ce qui se traduit par des coûts d’usage et d’entretien très faibles, notamment pour le chauffage.Cette maison se compose de 4 pièces, dont 3 chambres lumineuses, parfaites pour accueillir une famille. Le grand séjour de 33 m² est baigné de lumière naturelle grâce à une baie vitrée coulissante, créant un espace de vie convivial et chaleureux. La cuisine ouverte sur le séjour permet de partager des moments agréables en famille ou entre amis. Un cellier, situé dans le prolongement de la cuisine, offre un espace de rangement pratique pour les provisions.La maison dispose également d’une salle de bain avec des WC séparés, offrant un espace de vie fonctionnel et bien organisé pour toute la famille. Les options les plus demandées par les clients, telles que la domotique et l’enduit bi-ton, peuvent être intégrées pour personnaliser votre maison selon vos préférences.En résumé, le modèle Focus Cosy city est une maison neuve économique et écologique, qui combine une conception pratique avec une haute efficacité énergétique. Elle offre ainsi un cadre de vie confortable et abordable pour les familles à la recherche d’un logement durable et respectueux de l’environnement. Économie à la construction, économie à la consommation !

Tricot
TERRAINDécouvrez ce terrain spacieux de 700 m², un endroit idéal pour réaliser votre projet de construction de maison. Situé dans la commune de Tricot, ce bien offre une atmosphère paisible et sans vis-à-vis, permettant d’exprimer pleinement votre créativité architecturale tout en profitant d’un cadre champêtre et serein. Le terrain, bien orienté et niché au calme, constitue une opportunité unique pour ceux qui recherchent une excellente qualité de vie à un prix attractif. Tricot, située dans le département de l’Oise en région Hauts-de-France, est une ville charmante qui allie tranquillité et proximité avec les commodités modernes. À quelques minutes, vous trouverez des commerces, des écoles et des services essentiels pour le quotidien. À noter qu’en tant que constructeur, nous ne sommes pas mandatés pour réaliser la vente de ce terrain.

Tricot
TERRAIN ET MAISONSur ce terrain, nous vous proposons Focus Flex, une maison neuve et flexible qui s’adapte à vos besoins actuels et futurs !Avec un espace de vie entièrement prêt à habiter de 50 m², cette maison moderne et économe en énergie, respectant la norme RE2020, vous offre tout le confort nécessaire à un prix exceptionnel.Le vrai plus ? Une extension aménageable de 45 m², prête à accueillir vos futurs projets ! Que votre famille s’agrandisse ou que vous ayez simplement besoin de plus d’espace, cette partie flexible, directement attenante à la maison principale, vous permet d’évoluer à votre rythme.Finis les travaux interminables et les trajets coûteux vers un chantier éloigné. Vous restez chez vous, tout en ajoutant des mètres carrés en fonction de vos envies. De plus, des options comme la dalle béton et l’extension des réseaux électriques et d’eau vous facilitent encore plus la tâche.Avec Focus Flex, vous choisissez une maison évolutive qui s’adapte à vos besoins tout en respectant votre style de vie. Profitez d’une maison neuve, immédiatement habitable, qui peut grandir avec vous ! Des conseils d’aménagement vous seront proposés pour vous accompagner dans cette aventure.

Le Frestoy-Vaux
TERRAINDécouvrez ce terrain non-viabilisé de 800 m², situé dans la charmante commune de Le Frestoy-Vaux, dans l’Oise. Ce terrain offre un cadre champêtre sans vis-à-vis, propice à un projet de construction de maison. Profitez d’un environnement calme et paisible, où la qualité de vie est au cœur de chaque journée, et laissez libre cours à votre imagination pour bâtir la maison de vos rêves à un prix attractif. Le Frestoy-Vaux, un village pittoresque des Hauts-de-France, se distingue par ses paysages verdoyants et son atmosphère sereine. Ne manquez pas l’occasion de vous installer dans cette localité unique et attirante, où il fait bon vivre. Ce terrain possède un potentiel indéniable pour votre futur projet immobilier. N’attendez plus pour envisager cette opportunité d’achat exceptionnelle. À noter qu’en tant que constructeur, nous ne sommes pas mandatés pour réaliser la vente de ce terrain.
L’actualité immobilière à Le Ployron





