Maison à construire à Margny-lès-Compiègne (60280)
Images
Description
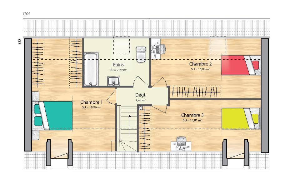
🏡 Projet Terrain + Maison - Monchy-Humières
Maison 105 m² Style traditionnel & moderne 4 chambres dont 1 suite parentale
Sur un terrain de 959 m² en impasse, découvrez ce projet mêlant charme traditionnel et lignes modernes :
105 m² habitables
4 chambres, dont 1 suite parentale au rez-de-chaussée
Belle pièce de vie lumineuse
Plan fonctionnel et personnalisable
Sans garage
Terrain non viabilisé - façade 25 ml.
Frais annexes inclus (étude de sol, raccordements, taxes...).
📞 Contactez XAVIER DOS SANTOS pour connaître le prix complet du projet, au (Numéro supprimé).
Logement susceptibles de vous intéresser
Nous vous proposons de découvrir aussi cette sélection de logements situés à moins de 10km de Margny-lès-Compiègne et qui seraient susceptibles de vous intéresser.
Arsy
TERRAIN ET MAISONRéalisez votre projet de construction de maison RE 2020 avec PAVILLONS D'ÎLE-DE-FRANCE (constructeur de maisons de gamme et sur-mesure depuis plus de 50 ans) :- Plan sur-mesure et personnalisé de 2 à 5 chambres- Mode de chauffage au choix- Grands choix d'équipements et de prestations- Matériaux de qualité selon les normes en vigueur- Accompagnement dans le choix et l’acquisition du terrainDemandez une étude gratuite et personnalisée de votre projet de construction !Contactez Norbert DE SA au (Numéro supprimé) ou au (Numéro supprimé) (Pavillons d'Île-de-France – Agence de Noyon).Prix avec assurance dommages-ouvrage comprise, hors VRD, terrain viabilisé, assainissement non compris, frais de notaire non compris, taxes non comprises, frais divers non compris. Terrain sélectionné et vu pour vous sous réserve de disponibilité et au prix indiqué par notre partenaire foncier. Visuels non contractuels.Cette annonce a été créée et diffusée avec le logiciel VITAHOME.
Arsy
TERRAINTerrain à vendre – Proche Compiègne avec accès direct A1À seulement 10 minutes de Compiègne, dans un environnement calme et recherché, venez découvrir ce terrain entièrement viabilisé (eau, électricité, tout-à-l’égout, fibre en bordure), prêt à accueillir votre projet de construction.Atouts du terrain :Proche Compiègne : Gare (Paris Gare du Nord en 45 min), commerces, centre commercial, collège, lycée, centre hospitalier.Écoles à proximité : École maternelle et primaire à 500 m.Commodités : Intermarché, boulangerie à seulement 3 km.Accès Autoroute A1 à 1 km :Roissy CDG en 35 minAulnay-sous-Bois en 45 minPrix : 82900 €.Sur ce terrain, réalisez votre projet de construction de maison RE 2020 avec PAVILLONS D'ÎLE-DE-FRANCE (constructeur de maisons de gamme et sur-mesure depuis plus de 50 ans) :- Plan sur-mesure et personnalisé de 2 à 5 chambres- Mode de chauffage au choix- Grands choix d'équipements et de prestations- Matériaux de qualité selon les normes en vigueur- Accompagnement dans le choix et l’acquisition du terrainDemandez une étude gratuite et personnalisée de votre projet de construction sur ce terrain !Contactez Anthony CALMELS au (Numéro supprimé) ou au (Numéro supprimé) (Pavillons d'Île-de-France – Agence de Noyon).Prix hors frais de notaire. Terrain sélectionné et vu pour vous sous réserve de disponibilité et au prix indiqué par notre partenaire foncier. Visuels non contractuels.Cette annonce a été créée et diffusée avec le logiciel VITAHOME.
Compiègne
TERRAIN ET MAISONVENTE : maison de 4 pièces (100 m²) à CompiègneÀ découvrir à Compiègne (60200) : maison neuve 4 pièces en vente. 2 niveaux, surface de 100 m² et 200 m² de terrain. Elle comporte quatre chambres, une cuisine et deux salles de bains.Proche gare (Compiègne), établissements scolaires, crèches, port de plaisance, commerces, boulangeries, supermarchés, poissonnerie et boucheries-charcuteries. Marché Place du Change hebdomadaire. Autoroute A1 et nationale N31 accessibles à 10 km.Le prix de vente de cette maison de 4 pièces est de 279 500 €.Contactez notre agence (BORDES Guillaume : (Numéro supprimé)) pour obtenir de plus amples renseignements sur la maison, sur les démarches à suivre ou sur les modalités de vente. Maisons Evolution Mareuil-lès-Meaux est là pour vous accompagner dans tous vos projets immobiliers.Annonce proposée par un Agent Commercial Partenaire.
Remy
TERRAIN ET MAISONRéalisez votre projet de construction de maison RE 2020 avec PAVILLONS D'ÎLE-DE-FRANCE (constructeur de maisons de gamme et sur-mesure depuis plus de 50 ans) :- Plan sur-mesure et personnalisé de 2 à 5 chambres- Mode de chauffage au choix- Grands choix d'équipements et de prestations- Matériaux de qualité selon les normes en vigueur- Accompagnement dans le choix et l’acquisition du terrainDemandez une étude gratuite et personnalisée de votre projet de construction !Contactez Anthony CALMELS au (Numéro supprimé) ou au (Numéro supprimé) (Pavillons d'Île-de-France – Agence de Noyon).Prix avec assurance dommages-ouvrage comprise, hors VRD, terrain non viabilisé, assainissement non compris, frais de notaire non compris, taxes non comprises, frais divers non compris. Terrain sélectionné et vu pour vous sous réserve de disponibilité et au prix indiqué par notre partenaire foncier. Visuels non contractuels.Cette annonce a été créée et diffusée avec le logiciel VITAHOME.
Arsy
TERRAINTerrain à vendre – Emplacement idéal à 10 min de CompiègneÀ seulement 10 minutes de Compiègne, dans un environnement calme et recherché, venez découvrir ce terrain entièrement viabilisé (eau, électricité, tout-à-l’égout, fibre en bordure), prêt à accueillir votre projet de construction.Accès Compiègne : Gare (Paris Gare du Nord en 45 min), centre commercial, commerces, collège, lycée, centre hospitalier.Écoles : École maternelle et primaire à 500 m.Commodités : Intermarché, boulangerie à 3 km.A1 à 1 km :Roissy CDG en 35 minAulnay-sous-Bois en 45 minPrix : 90900 €.Sur ce terrain, réalisez votre projet de construction de maison RE 2020 avec PAVILLONS D'ÎLE-DE-FRANCE (constructeur de maisons de gamme et sur-mesure depuis plus de 50 ans) :- Plan sur-mesure et personnalisé de 2 à 5 chambres- Mode de chauffage au choix- Grands choix d'équipements et de prestations- Matériaux de qualité selon les normes en vigueur- Accompagnement dans le choix et l’acquisition du terrainDemandez une étude gratuite et personnalisée de votre projet de construction sur ce terrain !Contactez Anthony CALMELS au (Numéro supprimé) ou au (Numéro supprimé) (Pavillons d'Île-de-France – Agence de Noyon).Prix hors frais de notaire. Terrain sélectionné et vu pour vous sous réserve de disponibilité et au prix indiqué par notre partenaire foncier. Visuels non contractuels.Cette annonce a été créée et diffusée avec le logiciel VITAHOME.
Remy
TERRAIN ET MAISONSuperficie Maison : 180 m²Cette splendide demeure vous plaît ? Elle est la réelle promesse d’une immersion dans un univers verdoyant au cœur de Remy ! Elle bénéficie d'un cadre paisible, lumineux et jouit d’une vue en plein sud, vous pourrez admirer de merveilleux lever et coucher de soleil.Ce logement principal de 180 m2 offrant en rez-de-chaussée un hall d'entrée spacieux menant à un vaste et lumineux séjour contemporain avec une cheminée ainsi que de grande baie vitrée.Vous hésitez entre une cuisine ouverte ou une cuisine fermée ? Cette maison vous offre la possibilité d'avoir une pièce à vivre de plus de 60 m² avec une belle hauteur sous plafond pour laisser passer la lumière du jour. De plus, l’arrière-cuisine comprend un cellier assez grand avec un espace dédié au rangement, un espace chaufferie, et votre inspiration laisse imager vos envies.Un escalier de deux quart tournant vous emmène à l’étage pour découvrir 6 chambres assez spacieuses se partagent une salle de bain équipé d’une douche italienne, suivie d’une double vasque. Une suite parentale avec un accès sur terrasse depuis la chambre offrant une vue époustouflante sur le jardin.Les finitions haut de gamme et personnalisées sont évidentes dans toute la maison, un espace dédié au rangement ainsi qu’une cloison intégrée dans les chambres peuvent être réalisé afin d’aménager au mieux votre dressing selon vos envies et d'optimiser un maximum d’espaces. N’hésitez pas à en parler au conseiller qui se chargera de votre projet.En complément, cette maison dispose d’une grande terrasse de 15 m et son spacieux jardin.Un parking privé couvert d’un carport pour deux véhicules.La conception des plans intérieurs de votre maison se fait au gré de vos envies.Venez découvrir le partenaire idéal de votre construction qui donne le maximum pour un accompagnement personnalisé.Nous garantissons une architecture raffinée et nous avons l'œil pour chaque détail, alors, commencez à rêver en regardant quelques-unes de nos plus belles créations.Tous nos modèles sont fabriqués sur mesure et chaque réalisation est unique.Construction de maison individuelle sur mesure, nous nous adaptons à vos besoins et à vos envies !Construisez votre maison réglementée RE2020 grâce à Pavillons d'Ile de FranceContactez Jason GUEVEL au (Numéro supprimé) ou par mail (Email supprimé) (Pavillons d'Île-de-France – Agence de Saint-Prix).Prix avec assurance dommages-ouvrage comprise, hors VRD, terrain viabilisé, assainissement non compris, frais de notaire non compris, taxes non comprises, frais divers non compris. Terrain sélectionné et vu pour vous sous réserve de disponibilité et au prix indiqué par notre partenaire foncier. Visuels non contractuels.Cette annonce a été créée et diffusée avec le logiciel VITAHOME.
Margny-lès-Compiègne
TERRAIN ET MAISON🏡 Projet Terrain + Maison – Monchy-HumièresMaison 105 m² Style traditionnel & moderne 4 chambres dont 1 suite parentaleSur un terrain de 959 m² en impasse, découvrez ce projet mêlant charme traditionnel et lignes modernes :105 m² habitables4 chambres, dont 1 suite parentale au rez-de-chausséeBelle pièce de vie lumineusePlan fonctionnel et personnalisableSans garageTerrain non viabilisé – façade 25 ml.Frais annexes inclus (étude de sol, raccordements, taxes…).📞 Contactez XAVIER DOS SANTOS pour connaître le prix complet du projet, au (Numéro supprimé).
Compiègne
TERRAIN ET MAISONDécouvrez ce projet de construction à CHOISY AU BAC.Proposé par JOACHIM REICH et IDEAL pour concrétiser votre rêve de maison neuve sur un terrain proche de toutes les commodités. Cette maison a votre image offre des prestations modernes, une conception économe en énergie conforme à la norme RE 2020. « UNE MAISON RE 2020 CONSOMME 30% DE MOINS Q’UNE MAISON RT2012 ET 70% DE MOINS Q’UNE MAISON RT2005 »Contactez-moi pour accéder aux informations dont vous avez besoin, mon implication ainsi que mon accompagnement dans votre projet jusqu’à la remise de vos clés, est aujourd’hui reconnu par plus de 300 clients en Picardie, qui m’ont confié le rêve d’une vie : devenir propriétaire de leur maison. N’hésitez pas à me contacter du lundi au samedi au (Numéro supprimé) Joachim REICH Maisons France Confort 1er constructeur national.Exemple pour ce projet de maison de plain-pied (de nombreux modèles de maisons sont également possible sur ce terrain)2 belles chambres, séjour ouvert sur la cuisine le tout accompagné d’un garage (en option) et de prestations prémiums haut de gamme pour un budget allant de 199000 euros à 209000euros.
Arsy
TERRAIN ET MAISONRéalisez votre projet de construction de maison RE 2020 avec PAVILLONS D'ÎLE-DE-FRANCE (constructeur de maisons de gamme et sur-mesure depuis plus de 50 ans) :- Plan sur-mesure et personnalisé de 2 à 5 chambres- Mode de chauffage au choix- Grands choix d'équipements et de prestations- Matériaux de qualité selon les normes en vigueur- Accompagnement dans le choix et l’acquisition du terrainDemandez une étude gratuite et personnalisée de votre projet de construction !Contactez Norbert DE SA au (Numéro supprimé) ou au (Numéro supprimé) (Pavillons d'Île-de-France – Agence de Noyon).Prix avec assurance dommages-ouvrage comprise, hors VRD, terrain viabilisé, assainissement non compris, frais de notaire non compris, taxes non comprises, frais divers non compris. Terrain sélectionné et vu pour vous sous réserve de disponibilité et au prix indiqué par notre partenaire foncier. Visuels non contractuels.Cette annonce a été créée et diffusée avec le logiciel VITAHOME.
L’actualité immobilière à Margny-lès-Compiègne
27/11/2023
02/11/2023
30/10/2023
20/10/2023
16/10/2023
16/10/2023