Maison à construire à Nanteuil-le-Haudouin (60440)
Images
Description
Péroy-les-Gombries : maison F7 (150 m²) à vendre
IDÉALEMENT SITUÉE - MAISON 7 PIÈCES NEUVE
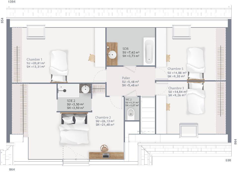
Proche du Transilien K (gare d'Ormoy-Villers, 50 min de Paris), en vente idéalement située dans Péroy-les-Gombries (60440), découvrez cette maison de 7 pièces de 150 m² et de 476 m² de terrain.
Cette maison possède 2 niveaux. Son intérieur dispose de cinq chambres, d'une cuisine et de deux salles de bains. Cette maison est neuve.
Ce bien est situé dans un quartier prisé. On y trouve une école primaire. Niveau transports en commun, on trouve trois gares (Ormoy-Villers, Nanteuil-le-Haudouin et Crépy-en-Valois) à moins de 10 minutes en voiture. Il y a un accès à la nationale N2 à 3 km et Meaux se situe à 23 km. Il y a une bibliothèque et une épicerie dans les environs.
Il est à vendre pour la somme de 440 000 €.
Contactez notre agence (Xavier DOS SANTOS : (Numéro supprimé)) pour tout renseignement sur la maison. Concrétisez vos projets immobiliers avec Maisons France Confort Compiègne.
Logement susceptibles de vous intéresser
Nous vous proposons de découvrir aussi cette sélection de logements situés à moins de 10km de Nanteuil-le-Haudouin et qui seraient susceptibles de vous intéresser.
Le Plessis-Belleville
TERRAINVENTE d’un terrain de 480 m² au Plessis-BellevillePROCHE D’AULNAY-SOUS-BOISProche du Transilien K (35 min de Paris) au Plessis-Belleville (60330), terrain de 480 m². Réalisez-y la maison de vos rêves. Le terrain est proche des commerces et des écoles. Des écoles maternelles et élémentaires sont implantées à moins de 10 minutes à pied, tout comme dont l’École Maternelle le Pré Au Lièvre et l’École Maternelle des Iris. Côté transports en commun, il y a la gare Le Plessis-Belleville dans un rayon de 1 km. La nationale N2 est accessible à 2 km et Aulnay-sous-Bois se situe à 26 km. On trouve une bibliothèque, un tennis, trois boulangeries, des commerces, un supermarché, une boucherie-charcuterie et un bureau de poste à quelques minutes à peine.Il est proposé à l’achat pour 110 000 €. Contactez Antoine FLIPPE ((Numéro supprimé)) pour toute information sur ce terrain ou sur les démarches à suivre.Annonce proposée par un Agent Commercial Partenaire.
Silly-le-Long
TERRAINVENTE d’un terrain de 480 m² à Silly-le-LongPROCHE D’AULNAY-SOUS-BOISTerrain de 480 m² à côté de la gare du Plessis-Belleville (Paris à 35 min avec le Transilien K). Ce terrain se situe dans Silly-le-Long (60330). Une école primaire est implantée dans le quartier. Niveau transports, il y a deux gares (Le Plessis-Belleville et Nanteuil-le-Haudouin) à moins de 10 minutes en voiture. La nationale N2 est accessible à 4 km et Aulnay-sous-Bois se situe à 28 km. On trouve une bibliothèque dans les environs.Il est à vendre pour la somme de 110 000 €. Contactez notre agence (Antoine FLIPPE : (Numéro supprimé)) pour obtenir de plus amples renseignements sur ce terrain, sur les modalités de vente ou sur les démarches à suivre. Maisons Balency Baillet-en-France vous accompagne à toutes les étapes de votre projet et dans tous vos projets immobiliers.Annonce proposée par un Agent Commercial Partenaire.
Le Plessis-Belleville
TERRAIN ET MAISONMaison de 6 pièces (109 m²) à vendre au Plessis-BellevilleIDÉALEMENT SITUÉE – MAISON 6 PIÈCES NEUVEÀ vendre : à proximité de la gare (Paris à 35 min par le Transilien K), idéalement située dans Le Plessis-Belleville (60330), nous sommes ravis de vous présenter cette maison de 6 pièces de 109 m².Cette maison comporte 2 niveaux. Son intérieur offre quatre chambres, une cuisine et deux salles de bains. Cette maison est neuve.Le terrain du bien est de 480 m².Le bien se trouve dans un quartier prisé. Des établissements scolaires maternelles et élémentaires sont implantés à moins de 10 minutes à pied, tout comme, comme l’École Maternelle le Pré Au Lièvre ou l’École Maternelle des Iris. Côté transports en commun, on trouve la gare Le Plessis-Belleville à quelques pas de la maison. On trouve un accès à la nationale N2 à 2 km et Aulnay-sous-Bois se situe à 26 km. Il y a une bibliothèque, un tennis, trois boulangeries, des commerces, un supermarché, une boucherie-charcuterie et une supérette à quelques minutes à peine.Il est proposé à l’achat pour 295 000 €.N’hésitez pas à prendre contact avec notre agence (Antoine FLIPPE : (Numéro supprimé)) pour tout renseignement sur la maison ou sur les modalités de vente.Annonce proposée par un Agent Commercial Partenaire.
Le Plessis-Belleville
TERRAIN ET MAISONVENTE d’une maison F7 (124 m²) au Plessis-BellevilleIDÉALEMENT SITUÉE – MAISON 7 PIÈCES NEUVEÀ vendre : à côté du Transilien K (35 min de Paris), idéalement située dans Le Plessis-Belleville (60330), ayez le coup de coeur pour cette maison de 7 pièces de 124 m².C’est une maison de 2 niveaux. Elle comporte cinq chambres, une cuisine et trois salles de bains. Cette maison est neuve.Le terrain de la propriété s’étend sur 480 m².Cette maison se situe dans un quartier attractif. Des écoles maternelles et élémentaires sont implantées à moins de 10 minutes à pied, tout comme, comme l’École Maternelle le Pré Au Lièvre ou l’École Maternelle des Iris. Niveau transports, on trouve la gare Le Plessis-Belleville à quelques pas de la maison. On trouve un accès à la nationale N2 à 2 km et Aulnay-sous-Bois est située à 26 km. Il y a une bibliothèque, un tennis, trois boulangeries, des commerces, un supermarché, une supérette et un bureau de poste à proximité.Son prix de vente est de 305 000 €.Contactez Antoine FLIPPE (tél : (Numéro supprimé)) pour plus de renseignements sur la maison ou sur les modalités de vente.Annonce proposée par un Agent Commercial Partenaire.
Le Plessis-Belleville
TERRAIN ET MAISONLe Plessis-Belleville : maison F7 (102 m²) à vendreIDÉALEMENT SITUÉE – MAISON 7 PIÈCES NEUVEEn vente : à proximité du Transilien K (35 min de Paris), nous vous proposons cette maison de 7 pièces de 102 m² idéalement située dans Le Plessis-Belleville (60330).Cette maison compte 2 niveaux. Elle dispose de cinq chambres, d’une cuisine et de deux salles de bains. Cette maison est neuve.Le terrain du bien est de 480 m².Cette maison se trouve dans un quartier prisé. Il y a des écoles primaires à moins de 10 minutes à pied et, parmi lesquelles l’École Maternelle le Pré Au Lièvre et l’École Maternelle des Iris. Niveau transports, on trouve la gare Le Plessis-Belleville dans les alentours. La nationale N2 est accessible à 2 km et Aulnay-sous-Bois est située à 26 km. On trouve une bibliothèque, un tennis, trois boulangeries, des commerces, un supermarché, une supérette et une boucherie-charcuterie à quelques minutes de la maison.Elle est proposée à l’achat pour 282 000 €.Prenez contact avec Antoine FLIPPE (tél : (Numéro supprimé)) pour obtenir de plus amples informations sur la propriété ou sur les démarches à suivre. Maisons Balency Baillet-en-France est là pour vous accompagner à toutes les étapes de votre projet.Annonce proposée par un Agent Commercial Partenaire.
Silly-le-Long
TERRAIN ET MAISONVENTE : maison de 7 pièces (124 m²) à Silly-le-LongPROCHE D’AULNAY-SOUS-BOIS – MAISON 7 PIÈCES NEUVEÀ quelques minutes de la gare du Plessis-Belleville (Paris à 35 min par le Transilien K), Maisons Balency Baillet-en-France vous propose à vendre à Silly-le-Long (60330), cette maison de 7 pièces de 124 m².Cette maison compte 2 niveaux. Elle offre cinq chambres, une cuisine et trois salles de bains. La maison est neuve.Le terrain du bien s’étend sur 480 m².Il y a une école primaire dans le quartier. Côté transports, on trouve deux gares (Le Plessis-Belleville et Nanteuil-le-Haudouin) à moins de 10 minutes en voiture. On trouve un accès à la nationale N2 à 4 km et Aulnay-sous-Bois est située à 28 km. On trouve une bibliothèque à proximité.Son prix de vente est de 304 000 €.Prenez contact avec Antoine FLIPPE ((Numéro supprimé)) pour tout renseignement sur le bien, sur les modalités de vente ou sur les démarches à suivre. Concrétisez vos projets immobiliers avec Maisons Balency Baillet-en-France.Annonce proposée par un Agent Commercial Partenaire.
Silly-le-Long
TERRAIN ET MAISONMaison de 7 pièces (102 m²) en vente à Silly-le-LongMAISON 7 PIÈCES NEUVE – PROCHE D’AULNAY-SOUS-BOISEn vente : à quelques minutes du Transilien K (gare du Plessis-Belleville, 35 min de Paris), à Silly-le-Long (60330), nous vous présentons cette maison de 7 pièces de 102 m² et de 480 m² de terrain.Cette maison comporte 2 niveaux. Son intérieur est composé de cinq chambres, d’une cuisine et de deux salles de bains. La maison est neuve.Une école primaire est implantée dans le quartier. Niveau transports en commun, il y a les gares Le Plessis-Belleville et Nanteuil-le-Haudouin à moins de 10 minutes en voiture. Il y a un accès à la nationale N2 à 4 km et Aulnay-sous-Bois est située à 28 km. On trouve une bibliothèque à quelques minutes à peine.Son prix de vente est de 280 000 €.Contactez notre agence (Antoine FLIPPE : (Numéro supprimé)) pour toute information sur cette maison. Maisons Balency Baillet-en-France est là pour vous accompagner dans tous vos projets immobiliers.Annonce proposée par un Agent Commercial Partenaire.
Silly-le-Long
TERRAIN ET MAISONMaison T6 (109 m²) à vendre à Silly-le-LongPROCHE D’AULNAY-SOUS-BOIS – MAISON 6 PIÈCES NEUVEÀ deux pas de la gare du Plessis-Belleville (Paris à 35 min par le Transilien K), à vendre à Silly-le-Long (60330), ayez le coup de coeur pour cette maison de 6 pièces de 109 m² et de 480 m² de terrain.Cette maison compte 2 niveaux. Son intérieur offre quatre chambres, une cuisine et deux salles de bains. Cette maison est neuve.Une école primaire est implantée dans le quartier. Côté transports en commun, il y a les gares Le Plessis-Belleville et Nanteuil-le-Haudouin à moins de 10 minutes en voiture. On trouve un accès à la nationale N2 à 4 km et Aulnay-sous-Bois est située à 28 km. On trouve une bibliothèque à proximité.Son prix de vente est de 295 000 €.Contactez Antoine FLIPPE ((Numéro supprimé)) pour plus de renseignements sur la maison ou sur les démarches à suivre.Annonce proposée par un Agent Commercial Partenaire.
Betz
TERRAINTerrain à vendre : emplacement idéal pour votre prochain projet.Description : A la recherche du lieu parfait pour concrétiser votre vision ? Ne chercher plus, il est là ! Ce terrain spacieux, situé dans un quartier très rechercher, offre une belle opportunité unique pour réaliser le projet d’une vie Caractéristiques : – Emplacement stratégique offrant un accès facile aux commodités locales et aux axes de transport. – Environnement calme et paisible, idéal pour ceux qui recherchent la tranquillité tout en restant connectés à la vie urbaine. – Proximité des écoles, commerces et autres services essentiels, garantissant une vie pratique et confortable. Ne manquez pas cette opportunité unique d’investir dans l’avenir et de réaliser vos aspirations. N’hésitez pas à me contacter dès maintenant pour plus d’informations et pour planifier une visite sur place !Prix : 76000 €.Sur ce terrain, réalisez votre projet de construction de maison RE 2020 avec PAVILLONS D'ÎLE-DE-FRANCE (constructeur de maisons de gamme et sur-mesure depuis plus de 50 ans) :- Plan sur-mesure et personnalisé de 2 à 5 chambres- Mode de chauffage au choix- Grands choix d'équipements et de prestations- Matériaux de qualité selon les normes en vigueur- Accompagnement dans le choix et l’acquisition du terrainDemandez une étude gratuite et personnalisée de votre projet de construction sur ce terrain !Contactez Jason GUEVEL au (Numéro supprimé) ou au (Numéro supprimé) (Pavillons d'Île-de-France – Agence de Cauffry).Prix hors frais de notaire. Terrain sélectionné et vu pour vous sous réserve de disponibilité et au prix indiqué par notre partenaire foncier. Visuels non contractuels.Cette annonce a été créée et diffusée avec le logiciel VITAHOME.
L’actualité immobilière à Nanteuil-le-Haudouin
27/11/2023
02/11/2023
30/10/2023
20/10/2023
16/10/2023
16/10/2023