Maison à construire à Ognes (60440)
Images
Description
Contactez Stéphanie SEBAG de l'agence Maisons Evolution de Mareuil-lès-Meaux au (Numéro supprimé) pour avoir plus d'informations sur ce projet.
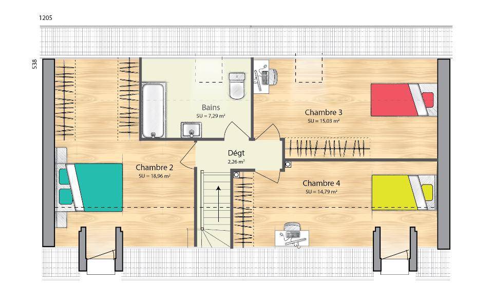
Jolie maison traditionnelle de 90 m² habitables avec garage intégré idéalement située sur la commune de OGNES
Elle est composée de 4 chambres dont une au rez-de-chaussée, d'une grande salle de bains, de deux WC et d'un salon-séjour lumineux avec cuisine ouverte donnant sur un cellier puis sur le garage.
Les plans sont modifiables selon vos souhaits, en agence ou visioconférence. Nous vous proposons un véritable accompagnement de qualité tout au long de votre projet.
Dessinons ensemble votre future maison !
Tel: (Numéro supprimé)
Annonce proposée par un Agent Commercial Partenaire.
Logement susceptibles de vous intéresser
Nous vous proposons de découvrir aussi cette sélection de logements situés à moins de 10km de Ognes et qui seraient susceptibles de vous intéresser.
Cuisy
TERRAIN ET MAISONVENTE : maison T5 (90 m²) à CuisyPROCHE DE MONTREUIL – MAISON 5 PIÈCES NEUVEÀ deux pas de la gare de Dammartin-Juilly-Saint-Mard (Paris à 30 min par le Transilien K), découvrez cette maison de 5 pièces de 90 m² à vendre à Cuisy (77165).Il s’agit d’une maison de 2 niveaux. Elle compte trois chambres, une cuisine et une salle de bains. Cette maison est neuve.Le terrain de la propriété s’étend sur 524 m².Une école élémentaire est implantée dans le quartier. Niveau transports, il y a quatre gares à moins de 10 minutes en voiture. On trouve un tennis dans les environs.Elle est à vendre pour la somme de 307 000 €.Contactez notre agence (RUBAL Alan : (Numéro supprimé)) pour toute question sur la maison, sur les modalités de vente ou sur les démarches à suivre. Maisons France Confort Magny-le-Hongre vous accompagne dans tous vos projets immobiliers et à toutes les étapes de l’achat.Annonce proposée par un Agent Commercial Partenaire.
Cuisy
TERRAIN ET MAISONVENTE d’une maison de 5 pièces (90 m²) à CuisyMAISON 5 PIÈCES NEUVE – PROCHE DE MONTREUILÀ vendre : à proximité du Transilien K (gare de Dammartin-Juilly-Saint-Mard, 30 min de Paris), à Cuisy (77165), nous sommes ravis de vous présenter cette maison de 5 pièces de 90 m² et de 524 m² de terrain.Il s’agit d’une maison de 2 niveaux. Elle inclut trois chambres, une cuisine et une salle de bains. Cette maison est neuve.Une école élémentaire est implantée dans le quartier. Niveau transports en commun, il y a quatre gares à moins de 10 minutes en voiture. On trouve un tennis à quelques minutes.Elle est à vendre pour la somme de 330 000 €.N’hésitez pas à prendre contact avec Alan RUBAL (tél : (Numéro supprimé)) pour obtenir de plus amples renseignements sur la maison, sur les modalités de vente ou sur les démarches à suivre. Maisons France Confort Magny-le-Hongre vous accompagne à toutes les étapes de votre projet et dans tous vos projets immobiliers.Annonce proposée par un Agent Commercial Partenaire.
Cuisy
TERRAIN ET MAISONVENTE : maison de 5 pièces (90 m²) à CuisyPROCHE DE MONTREUIL – MAISON 5 PIÈCES NEUVEEn vente : au pied du Transilien K (gare de Dammartin-Juilly-Saint-Mard, 30 min de Paris), découvrez à Cuisy (77165), cette maison de 5 pièces de plain-pied de 90 m². Son intérieur comporte trois chambres, une cuisine et deux salles de bains.Le terrain de la propriété est de 524 m².Cette maison est neuve.On trouve une école élémentaire dans le quartier. Niveau transports, il y a quatre gares à moins de 10 minutes en voiture. Il y a un tennis à proximité.Elle est à vendre pour la somme de 307 000 €.N’hésitez pas à prendre contact avec notre agence (Alan RUBAL : (Numéro supprimé)) pour tout renseignement sur la maison ou sur les démarches à suivre. Concrétisez vos projets immobiliers avec Maisons France Confort Magny-le-Hongre.Annonce proposée par un Agent Commercial Partenaire.
Cuisy
TERRAIN ET MAISONMaison T6 (90 m²) à vendre à CuisyPROCHE DE MONTREUIL – MAISON 6 PIÈCES NEUVEAu pied du Transilien K (gare de Dammartin-Juilly-Saint-Mard, 30 min de Paris), Maisons France Confort Magny-le-Hongre vous présente cette maison de 6 pièces de 90 m² à Cuisy (77165).C’est une maison de 2 niveaux. Son intérieur comporte trois chambres, une cuisine et deux salles de bains. Cette maison est neuve.Le terrain du bien est de 524 m².Il y a une école élémentaire dans le quartier. Côté transports en commun, on trouve quatre gares à moins de 10 minutes en voiture. On trouve un tennis dans les environs.Elle est proposée à l’achat pour 350 000 €.Contactez notre agence (RUBAL Alan : (Numéro supprimé)) pour toute information sur la maison, sur les modalités de vente ou sur les démarches à suivre.Annonce proposée par un Agent Commercial Partenaire.
Le Plessis-Belleville
TERRAINVENTE d’un terrain de 480 m² au Plessis-BellevillePROCHE D’AULNAY-SOUS-BOISProche du Transilien K (35 min de Paris) au Plessis-Belleville (60330), terrain de 480 m². Réalisez-y la maison de vos rêves. Le terrain est proche des commerces et des écoles. Des écoles maternelles et élémentaires sont implantées à moins de 10 minutes à pied, tout comme dont l’École Maternelle le Pré Au Lièvre et l’École Maternelle des Iris. Côté transports en commun, il y a la gare Le Plessis-Belleville dans un rayon de 1 km. La nationale N2 est accessible à 2 km et Aulnay-sous-Bois se situe à 26 km. On trouve une bibliothèque, un tennis, trois boulangeries, des commerces, un supermarché, une boucherie-charcuterie et un bureau de poste à quelques minutes à peine.Il est proposé à l’achat pour 110 000 €. Contactez Antoine FLIPPE ((Numéro supprimé)) pour toute information sur ce terrain ou sur les démarches à suivre.Annonce proposée par un Agent Commercial Partenaire.
Silly-le-Long
TERRAINVENTE d’un terrain de 480 m² à Silly-le-LongPROCHE D’AULNAY-SOUS-BOISTerrain de 480 m² à côté de la gare du Plessis-Belleville (Paris à 35 min avec le Transilien K). Ce terrain se situe dans Silly-le-Long (60330). Une école primaire est implantée dans le quartier. Niveau transports, il y a deux gares (Le Plessis-Belleville et Nanteuil-le-Haudouin) à moins de 10 minutes en voiture. La nationale N2 est accessible à 4 km et Aulnay-sous-Bois se situe à 28 km. On trouve une bibliothèque dans les environs.Il est à vendre pour la somme de 110 000 €. Contactez notre agence (Antoine FLIPPE : (Numéro supprimé)) pour obtenir de plus amples renseignements sur ce terrain, sur les modalités de vente ou sur les démarches à suivre. Maisons Balency Baillet-en-France vous accompagne à toutes les étapes de votre projet et dans tous vos projets immobiliers.Annonce proposée par un Agent Commercial Partenaire.
Le Plessis-Belleville
TERRAIN ET MAISONMaison de 6 pièces (109 m²) à vendre au Plessis-BellevilleIDÉALEMENT SITUÉE – MAISON 6 PIÈCES NEUVEÀ vendre : à proximité de la gare (Paris à 35 min par le Transilien K), idéalement située dans Le Plessis-Belleville (60330), nous sommes ravis de vous présenter cette maison de 6 pièces de 109 m².Cette maison comporte 2 niveaux. Son intérieur offre quatre chambres, une cuisine et deux salles de bains. Cette maison est neuve.Le terrain du bien est de 480 m².Le bien se trouve dans un quartier prisé. Des établissements scolaires maternelles et élémentaires sont implantés à moins de 10 minutes à pied, tout comme, comme l’École Maternelle le Pré Au Lièvre ou l’École Maternelle des Iris. Côté transports en commun, on trouve la gare Le Plessis-Belleville à quelques pas de la maison. On trouve un accès à la nationale N2 à 2 km et Aulnay-sous-Bois se situe à 26 km. Il y a une bibliothèque, un tennis, trois boulangeries, des commerces, un supermarché, une boucherie-charcuterie et une supérette à quelques minutes à peine.Il est proposé à l’achat pour 295 000 €.N’hésitez pas à prendre contact avec notre agence (Antoine FLIPPE : (Numéro supprimé)) pour tout renseignement sur la maison ou sur les modalités de vente.Annonce proposée par un Agent Commercial Partenaire.
Le Plessis-Belleville
TERRAIN ET MAISONVENTE d’une maison F7 (124 m²) au Plessis-BellevilleIDÉALEMENT SITUÉE – MAISON 7 PIÈCES NEUVEÀ vendre : à côté du Transilien K (35 min de Paris), idéalement située dans Le Plessis-Belleville (60330), ayez le coup de coeur pour cette maison de 7 pièces de 124 m².C’est une maison de 2 niveaux. Elle comporte cinq chambres, une cuisine et trois salles de bains. Cette maison est neuve.Le terrain de la propriété s’étend sur 480 m².Cette maison se situe dans un quartier attractif. Des écoles maternelles et élémentaires sont implantées à moins de 10 minutes à pied, tout comme, comme l’École Maternelle le Pré Au Lièvre ou l’École Maternelle des Iris. Niveau transports, on trouve la gare Le Plessis-Belleville à quelques pas de la maison. On trouve un accès à la nationale N2 à 2 km et Aulnay-sous-Bois est située à 26 km. Il y a une bibliothèque, un tennis, trois boulangeries, des commerces, un supermarché, une supérette et un bureau de poste à proximité.Son prix de vente est de 305 000 €.Contactez Antoine FLIPPE (tél : (Numéro supprimé)) pour plus de renseignements sur la maison ou sur les modalités de vente.Annonce proposée par un Agent Commercial Partenaire.
Le Plessis-Belleville
TERRAIN ET MAISONLe Plessis-Belleville : maison F7 (102 m²) à vendreIDÉALEMENT SITUÉE – MAISON 7 PIÈCES NEUVEEn vente : à proximité du Transilien K (35 min de Paris), nous vous proposons cette maison de 7 pièces de 102 m² idéalement située dans Le Plessis-Belleville (60330).Cette maison compte 2 niveaux. Elle dispose de cinq chambres, d’une cuisine et de deux salles de bains. Cette maison est neuve.Le terrain du bien est de 480 m².Cette maison se trouve dans un quartier prisé. Il y a des écoles primaires à moins de 10 minutes à pied et, parmi lesquelles l’École Maternelle le Pré Au Lièvre et l’École Maternelle des Iris. Niveau transports, on trouve la gare Le Plessis-Belleville dans les alentours. La nationale N2 est accessible à 2 km et Aulnay-sous-Bois est située à 26 km. On trouve une bibliothèque, un tennis, trois boulangeries, des commerces, un supermarché, une supérette et une boucherie-charcuterie à quelques minutes de la maison.Elle est proposée à l’achat pour 282 000 €.Prenez contact avec Antoine FLIPPE (tél : (Numéro supprimé)) pour obtenir de plus amples informations sur la propriété ou sur les démarches à suivre. Maisons Balency Baillet-en-France est là pour vous accompagner à toutes les étapes de votre projet.Annonce proposée par un Agent Commercial Partenaire.
L’actualité immobilière à Ognes
27/11/2023
02/11/2023
30/10/2023
20/10/2023
16/10/2023
16/10/2023