Images
Description
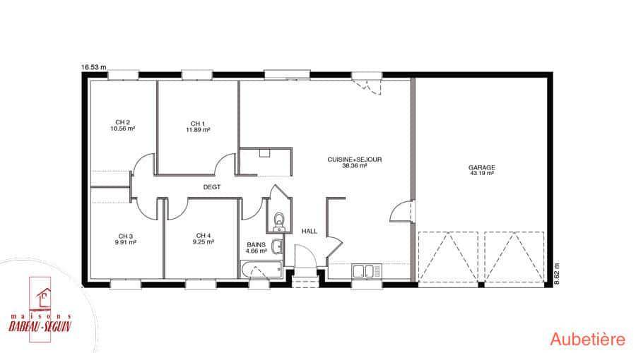
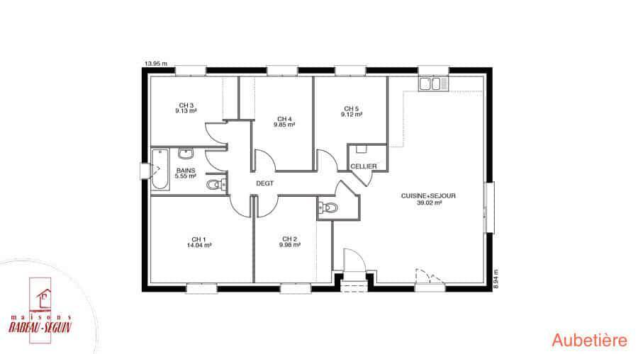
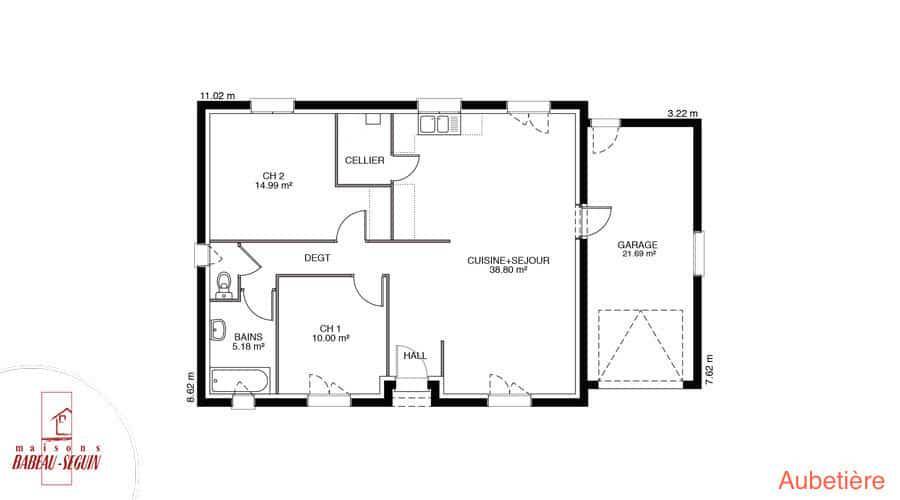
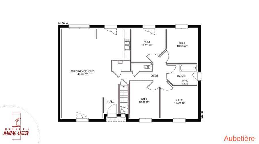
Sur ce terrain, nous vous proposons cette maison neuve Aubetière, un modèle traditionnel de la gamme Babeau-Seguin, constructeur reconnu pour offrir le meilleur rapport qualité/prix du marché. Avec une surface de 88 m², cette maison de plain-pied se compose de 4 pièces, dont 3 chambres spacieuses, idéales pour accueillir toute votre famille.
L'Aubetière se distingue par son excellent rapport qualité/prix et sa conformité aux normes RE2020, garantissant une basse consommation énergétique. Vous avez la possibilité de personnaliser votre maison en choisissant entre un toit à 2 pans ou à 4 pans, ainsi qu'en ajoutant un garage ou un sous-sol selon vos besoins.
Cette maison moderne et fonctionnelle est conçue pour s'adapter à vos envies et à votre mode de vie. Profitez de la flexibilité offerte par les nombreux plans et déclinaisons disponibles pour créer votre maison individuelle sur mesure.
Ne manquez pas cette opportunité de donner vie à votre projet de construction avec le modèle Aubetière, une maison neuve qui allie confort, économie d'énergie et personnalisation. Contactez-nous dès maintenant pour plus d'informations et pour découvrir toutes les options disponibles pour votre future maison.
Logement susceptibles de vous intéresser
Nous vous proposons de découvrir aussi cette sélection de logements situés à moins de 10km de Plessis-de-Roye et qui seraient susceptibles de vous intéresser.

Plessis-de-Roye
TERRAIN ET MAISONSur ce terrain, nous vous proposons cette maison neuve Aubetière, un modèle traditionnel de la gamme Babeau-Seguin, constructeur reconnu pour offrir le meilleur rapport qualité/prix du marché. Avec une surface de 88 m², cette maison de plain-pied se compose de 4 pièces, dont 3 chambres spacieuses, idéales pour accueillir toute votre famille.L’Aubetière se distingue par son excellent rapport qualité/prix et sa conformité aux normes RE2020, garantissant une basse consommation énergétique. Vous avez la possibilité de personnaliser votre maison en choisissant entre un toit à 2 pans ou à 4 pans, ainsi qu’en ajoutant un garage ou un sous-sol selon vos besoins.Cette maison moderne et fonctionnelle est conçue pour s’adapter à vos envies et à votre mode de vie. Profitez de la flexibilité offerte par les nombreux plans et déclinaisons disponibles pour créer votre maison individuelle sur mesure.Ne manquez pas cette opportunité de donner vie à votre projet de construction avec le modèle Aubetière, une maison neuve qui allie confort, économie d’énergie et personnalisation. Contactez-nous dès maintenant pour plus d’informations et pour découvrir toutes les options disponibles pour votre future maison.

Plessis-de-Roye
TERRAINNous avons le plaisir de vous présenter ce magnifique terrain à vendre situé à Plessis-de-Roye dans le département de l’Oise. Ce terrain non-viabilisé de 1132 m² offre une vue dégagée et se trouve dans un cadre champêtre, propice à la construction de votre future maison. Avec un accès facile aux axes routiers importants, ce lieu calme et paisible vous permettra de bénéficier d’un cadre de vie agréable tout en étant proche des commodités essentielles. La proximité des accès autoroute facilite également les déplacements vers les grandes villes environnantes. Ce terrain représente donc une opportunité unique pour les acheteurs qui souhaitent établir leur projet dans un environnement attractif. Ne manquez pas cette occasion en or d’acquérir un terrain au potentiel exceptionnel, où vous pourrez donner vie à votre projet de construction. À noter qu’en tant que constructeur, nous ne sommes pas mandatés pour réaliser la vente de ce terrain.

Canny-sur-Matz
TERRAIN ET MAISONSur ce terrain, nous vous proposons cette maison neuve : la Focus Family city. Conçue par Babeau-Seguin, constructeur reconnu pour offrir le meilleur rapport qualité/prix du marché, cette maison de 91 m² est idéale pour les familles à la recherche d’un logement confortable et économique.### Une surface généreuse pour une maison à petit prixLa Focus Family city est une maison lumineuse et écologique, offrant une belle surface habitable de 91 m². C’est l’option idéale pour les familles cherchant une maison de qualité avec une surface confortable pour un budget limité. Respectueuse de la règlementation RE2020 pour l’environnement, elle offre par conséquent un excellent rapport qualité-prix.### Un agencement parfaitement optimiséCette maison de plain-pied est parfaitement agencée avec ses quatre chambres de plus de 10 m² chacune, offrant ainsi un espace de vie confortable pour chaque membre de la famille. Une grande pièce de vie lumineuse traversante avec cuisine ouverte, un cellier en prolongement ainsi qu’une salle de bain avec baignoire et des WC séparés viennent compléter son aménagement. ### Caractéristiques principales- **Surface habitable** : 91 m²- **Nombre de chambres** : 4- **Nombre de pièces** : 4- **Cellier** : Oui- **Basse Consommation** : Oui, conforme à la RE2020### Options les plus demandéesPour répondre aux attentes des clients, cette maison peut être équipée de domotique pour un confort optimal et d’un enduit bi-ton pour une touche d’originalité sur la façade avant ou arrière.### Économie à la construction, économie à la consommationCette maison neuve écologique répond aux standards stricts de la RE2020, garantissant ainsi des économies à la construction et à la consommation. Ne manquez pas cette opportunité unique d’acquérir une maison neuve, basse consommation, et parfaitement adaptée aux besoins de votre famille. Contactez-nous dès maintenant pour plus d’informations et pour planifier une visite du terrain.

Canny-sur-Matz
TERRAINNous vous proposons un terrain non-viabilisé d’une superficie généreuse de 309 m², idéalement situé à Canny-sur-Matz au cœur de l’Oise. Ce terrain se distingue par sa vue dégagée et son environnement arboré, offrant un cadre paisible pour votre projet de construction de maison. Avec ses caractéristiques uniques, ce terrain est une opportunité à ne pas manquer pour réaliser la maison de vos rêves dans un cadre naturel et serein. Ne manquez pas cette occasion de réaliser un projet de construction au sein d’un environnement enchanteur. À noter qu’en tant que constructeur, nous ne sommes pas mandatés pour réaliser la vente de ce terrain.

Ressons-sur-Matz
TERRAIN ET MAISONRéalisez votre projet de construction de maison RE 2020 avec PAVILLONS D'ÎLE-DE-FRANCE (constructeur de maisons de gamme et sur-mesure depuis plus de 50 ans) :- Plan sur-mesure et personnalisé de 2 à 5 chambres- Mode de chauffage au choix- Grands choix d'équipements et de prestations- Matériaux de qualité selon les normes en vigueur- Accompagnement dans le choix et l’acquisition du terrainDemandez une étude gratuite et personnalisée de votre projet de construction !Contactez Norbert DE SA au (Numéro supprimé) ou au (Numéro supprimé) (Pavillons d'Île-de-France – Agence de Noyon).Prix avec assurance dommages-ouvrage comprise, hors VRD, terrain non viabilisé, assainissement non compris, frais de notaire non compris, taxes non comprises, frais divers non compris. Terrain sélectionné et vu pour vous sous réserve de disponibilité et au prix indiqué par notre partenaire foncier. Visuels non contractuels.Cette annonce a été créée et diffusée avec le logiciel VITAHOME.

Ribécourt-Dreslincourt
TERRAIN ET MAISONRéalisez votre projet de construction de maison RE 2020 avec PAVILLONS D'ÎLE-DE-FRANCE (constructeur de maisons de gamme et sur-mesure depuis plus de 50 ans) :- Plan sur-mesure et personnalisé de 2 à 5 chambres- Mode de chauffage au choix- Grands choix d'équipements et de prestations- Matériaux de qualité selon les normes en vigueur- Accompagnement dans le choix et l’acquisition du terrainInformations du terrain : Ribécourt-Dreslincourt, proche centre-ville et des commerces, 2 min de la voie rapide direction Compiègne et Noyon, dans une rue pavillonnaire au calme, magnifique terrain d'environ 600 m², plat et semi clôturé.Demandez une étude gratuite et personnalisée de votre projet de construction !Contactez Anthony CALMELS au (Numéro supprimé) ou au (Numéro supprimé) (Pavillons d'Île-de-France – Agence de Noyon).Prix avec assurance dommages-ouvrage comprise, hors VRD, terrain non viabilisé, assainissement non compris, frais de notaire non compris, taxes non comprises, frais divers non compris. Terrain sélectionné et vu pour vous sous réserve de disponibilité et au prix indiqué par notre partenaire foncier. Visuels non contractuels.Cette annonce a été créée et diffusée avec le logiciel VITAHOME.

Thiescourt
TERRAIN ET MAISONRéalisez votre projet de construction de maison RE 2020 avec PAVILLONS D'ÎLE-DE-FRANCE (constructeur de maisons de gamme et sur-mesure depuis plus de 50 ans) :- Plan sur-mesure et personnalisé de 2 à 5 chambres- Mode de chauffage au choix- Grands choix d'équipements et de prestations- Matériaux de qualité selon les normes en vigueur- Accompagnement dans le choix et l’acquisition du terrainDemandez une étude gratuite et personnalisée de votre projet de construction !Contactez Anthony CALMELS au (Numéro supprimé) ou au (Numéro supprimé) (Pavillons d'Île-de-France – Agence de Noyon).Prix avec assurance dommages-ouvrage comprise, hors VRD, terrain non viabilisé, assainissement non compris, frais de notaire non compris, taxes non comprises, frais divers non compris. Terrain sélectionné et vu pour vous sous réserve de disponibilité et au prix indiqué par notre partenaire foncier. Visuels non contractuels.Cette annonce a été créée et diffusée avec le logiciel VITAHOME.

Vignemont
TERRAIN ET MAISONRéalisez votre projet de construction de maison RE 2020 avec PAVILLONS D'ÎLE-DE-FRANCE (constructeur de maisons de gamme et sur-mesure depuis plus de 50 ans) :- Plan sur-mesure et personnalisé de 2 à 5 chambres- Mode de chauffage au choix- Grands choix d'équipements et de prestations- Matériaux de qualité selon les normes en vigueur- Accompagnement dans le choix et l’acquisition du terrainDemandez une étude gratuite et personnalisée de votre projet de construction !Contactez Anthony CALMELS au (Numéro supprimé) ou au (Numéro supprimé) (Pavillons d'Île-de-France – Agence de Noyon).Prix avec assurance dommages-ouvrage comprise, hors VRD, terrain non viabilisé, assainissement non compris, frais de notaire non compris, taxes non comprises, frais divers non compris. Terrain sélectionné et vu pour vous sous réserve de disponibilité et au prix indiqué par notre partenaire foncier. Visuels non contractuels.Cette annonce a été créée et diffusée avec le logiciel VITAHOME.

Ville
TERRAIN ET MAISONRéalisez votre projet de construction de maison RE 2020 avec PAVILLONS D'ÎLE-DE-FRANCE (constructeur de maisons de gamme et sur-mesure depuis plus de 50 ans) :- Plan sur-mesure et personnalisé de 2 à 5 chambres- Mode de chauffage au choix- Grands choix d'équipements et de prestations- Matériaux de qualité selon les normes en vigueur- Accompagnement dans le choix et l’acquisition du terrainInformations du terrain : Terrain à bâtir avec pâture sur l'arrière sans vis à vis au calme et belle vue, façade de 24 ml et longueur de 64 ml.Borné et viabilisé.Demandez une étude gratuite et personnalisée de votre projet de construction !Contactez Anthony CALMELS au (Numéro supprimé) ou au (Numéro supprimé) (Pavillons d'Île-de-France – Agence de Noyon).Prix avec assurance dommages-ouvrage comprise, hors VRD, terrain viabilisé, assainissement non compris, frais de notaire non compris, taxes non comprises, frais divers non compris. Terrain sélectionné et vu pour vous sous réserve de disponibilité et au prix indiqué par notre partenaire foncier. Visuels non contractuels.Cette annonce a été créée et diffusée avec le logiciel VITAHOME.
L’actualité immobilière à Plessis-de-Roye





