Maison à construire à Pont-Sainte-Maxence (60700)
Images
Description
VENTE : maison T7 (150 m²) à Saint-Martin-Longueau
EMPLACEMENT PRIVILÉGIÉ - MAISON 7 PIÈCES NEUVE
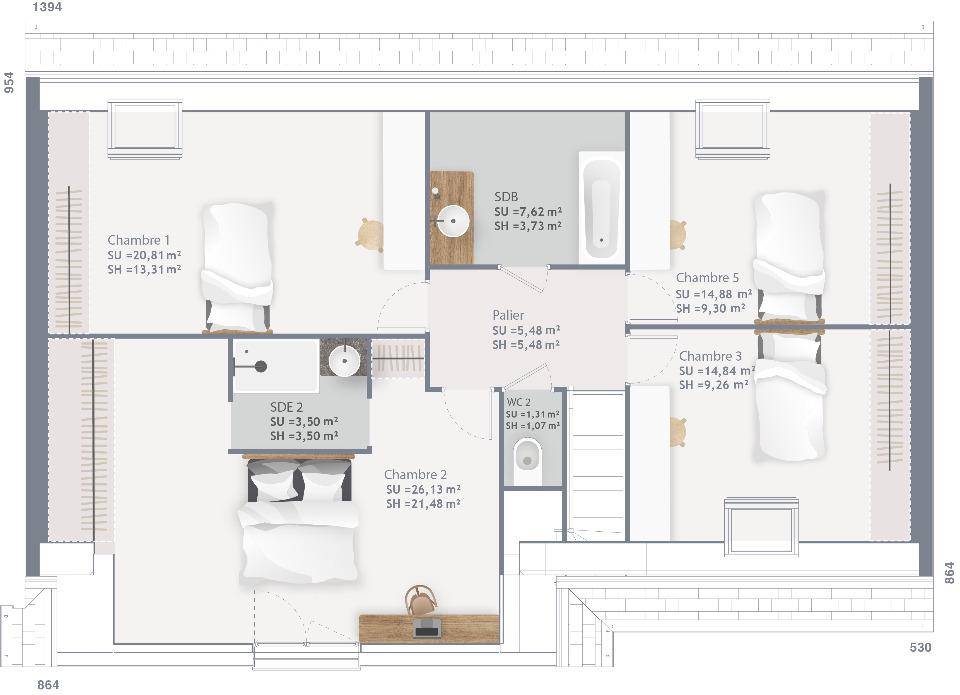
À deux pas de Compiègne, laissez vous charmer par cette maison de 7 pièces de 150 m² et de 540 m² de terrain bénéficiant d'un emplacement privilégié dans Saint-Martin-Longueau (60700).
Il s'agit d'une maison de 2 niveaux. Son intérieur inclut cinq chambres, une cuisine et deux salles de bains. La maison est neuve.
La maison se situe dans un secteur recherché. On trouve l'École Primaire Robert Personne à moins de 10 minutes à pied. Côté transports, il y a quatre gares à moins de 10 minutes en voiture. L'autoroute A1 et la nationale N31 sont accessibles à moins de 10 km. On trouve un tennis, une bibliothèque, trois commerces et une boulangerie à quelques minutes du bien.
Elle est à vendre pour la somme de 373 000 €.
Prenez contact avec notre agence (Fabrice BONELLO : (Numéro supprimé)) pour tout renseignement sur la maison ou sur les démarches à suivre.
Logement susceptibles de vous intéresser
Nous vous proposons de découvrir aussi cette sélection de logements situés à moins de 10km de Pont-Sainte-Maxence et qui seraient susceptibles de vous intéresser.
Saint-Martin-Longueau
TERRAIN ET MAISONRéalisez votre projet de construction de maison RE 2020 avec PAVILLONS D'ÎLE-DE-FRANCE (constructeur de maisons de gamme et sur-mesure depuis plus de 50 ans) :- Plan sur-mesure et personnalisé de 2 à 5 chambres- Mode de chauffage au choix- Grands choix d'équipements et de prestations- Matériaux de qualité selon les normes en vigueur- Accompagnement dans le choix et l’acquisition du terrainInformations du terrain : Terrain à vendre : emplacement idéal pour votre prochain projet. Description : A la recherche du lieu parfait pour concrétiser votre vision ? Ne chercher plus, il est là ! Ce terrain spacieux, situé dans un quartier très rechercher, offre une belle opportunité unique pour réaliser le projet d’une vie Caractéristiques : – Emplacement stratégique offrant un accès facile aux commodités locales et aux axes de transport. – Environnement calme et paisible, idéal pour ceux qui recherchent la tranquillité tout en restant connectés à la vie urbaine. – Proximité des écoles, commerces et autres services essentiels, garantissant une vie pratique et confortable. Ne manquez pas cette opportunité unique d’investir dans l’avenir et de réaliser vos aspirations. N’hésitez pas à me contacter dès maintenant pour plus d’informations et pour planifier une visite sur place !Demandez une étude gratuite et personnalisée de votre projet de construction !Contactez Jason GUEVEL au (Numéro supprimé) ou au (Numéro supprimé) (Pavillons d'Île-de-France – Agence de Cauffry).Prix avec assurance dommages-ouvrage comprise, hors VRD, terrain viabilisé, assainissement non compris, frais de notaire non compris, taxes non comprises, frais divers non compris. Terrain sélectionné et vu pour vous sous réserve de disponibilité et au prix indiqué par notre partenaire foncier. Visuels non contractuels.Cette annonce a été créée et diffusée avec le logiciel VITAHOME.
Verberie
TERRAIN ET MAISONVerberie : maison F6 (105 m²) en venteMAISON 6 PIÈCES NEUVE – PROCHE DE COMPIÈGNEÀ vendre : située à deux pas de Compiègne, Maisons Balency Baillet-en-France vous présente à Verberie (60410), cette maison de 6 pièces de 105 m² et de 900 m² de terrain.Cette maison comporte 2 niveaux. Son intérieur se divise en quatre chambres, une cuisine et deux salles de bains. Cette maison est neuve.L’École Élémentaire Groupe A est implantée à moins de 10 minutes à pied. Côté transports, il y a cinq gares à moins de 10 minutes en voiture. On trouve un accès à l’autoroute A1 à 4 km. On trouve une bibliothèque, quatre commerces, un supermarché, deux boulangeries, un bureau de poste et une boucherie-charcuterie à proximité.Son prix de vente est de 299 000 €.Contactez Antoine FLIPPE (tél : (Numéro supprimé)) pour toute information sur la maison, sur les modalités de vente ou sur les démarches à suivre. Donnez vie à vos projets immobiliers avec Maisons Balency Baillet-en-France.Annonce proposée par un Agent Commercial Partenaire.
Verberie
TERRAIN ET MAISONRéalisez votre projet de construction de maison RE 2020 avec PAVILLONS D'ÎLE-DE-FRANCE (constructeur de maisons de gamme et sur-mesure depuis plus de 50 ans) :- Plan sur-mesure et personnalisé de 2 à 5 chambres- Mode de chauffage au choix- Grands choix d'équipements et de prestations- Matériaux de qualité selon les normes en vigueur- Accompagnement dans le choix et l’acquisition du terrainInformations du terrain : À Verberie, dans un quartier calme à deux pas du centre-ville et de toutes les commodités, ce terrain à bâtir de 401m² vous offre l'opportunité de concrétiser votre projet dans un environnement prisé. Situé en zone UR2.3 du PLUi-H, il permet une construction jusqu'à 9 mètres au faîtage (R+C), avec une emprise au sol de 35 % et une façade confortable de 17 mètres. Le terrain est non viabilisé, mais tous les réseaux sont en bordure de parcelle, y compris le tout-à-l'égout. Une étude de sol a déjà été réalisée. En secteur ABF, le cadre est préservé et cohérent avec le bâti environnant. Libre de constructeur, il est vendu avec un certificat d'urbanisme opérationnel positif. Le plan de géomètre est disponible sur simple demande ou en téléchargement sur notre site. Un projet facile à lancer, dans un cadre de vie équilibré entre ville et natureDemandez une étude gratuite et personnalisée de votre projet de construction !Contactez Anthony CALMELS au (Numéro supprimé) ou au (Numéro supprimé) (Pavillons d'Île-de-France – Agence de Noyon).Prix avec assurance dommages-ouvrage comprise, hors VRD, terrain non viabilisé, assainissement non compris, frais de notaire non compris, taxes non comprises, frais divers non compris. Terrain sélectionné et vu pour vous sous réserve de disponibilité et au prix indiqué par notre partenaire foncier. Visuels non contractuels.Cette annonce a été créée et diffusée avec le logiciel VITAHOME.
Villers-Saint-Frambourg-Ognon
TERRAIN ET MAISONVenez concevoir votre maison.Exemple de projet maison (combles aménagés) de 105 m² loi Carrez.AU RDC : Bel espace de vie traversant de plus de 40 m², 1 chambre magnifique suite parentale de + de 16 m², 1 wc indépendant, à l’étage palier desservant 3 belles chambres (14, 15 et 18 m²), 1 salle de bain avec WC.Tous nos projets sont entièrement réalisés sur-mesure, de nombreuses prestations incluses: baies coulissantes en aluminium, volets roulants intégrés à la maçonnerie (non-apparents) motorisés.Entrée, cuisine, pièce de vie, cellier et pièces d’eau carrelés,Pompe à chaleur (classe énergétique A+), plancher chauffant RDC (et ETAGE), sèche-serviettes, plusieurs choix de menuiseries intérieures, construction en brique. RE 2020.Pour tout renseignement contacter XAVIER de l’agence Maisons France Confort au : (Numéro supprimé)
Saint-Martin-Longueau
TERRAIN ET MAISONRéalisez votre projet de construction de maison RE 2020 avec PAVILLONS D'ÎLE-DE-FRANCE (constructeur de maisons de gamme et sur-mesure depuis plus de 50 ans) :- Plan sur-mesure et personnalisé de 2 à 5 chambres- Mode de chauffage au choix- Grands choix d'équipements et de prestations- Matériaux de qualité selon les normes en vigueur- Accompagnement dans le choix et l’acquisition du terrainInformations du terrain : Terrain à vendre : emplacement idéal pour votre prochain projet. Description : A la recherche du lieu parfait pour concrétiser votre vision ? Ne chercher plus, il est là ! Ce terrain spacieux, situé dans un quartier très rechercher, offre une belle opportunité unique pour réaliser le projet d’une vie Caractéristiques : – Emplacement stratégique offrant un accès facile aux commodités locales et aux axes de transport. – Environnement calme et paisible, idéal pour ceux qui recherchent la tranquillité tout en restant connectés à la vie urbaine. – Proximité des écoles, commerces et autres services essentiels, garantissant une vie pratique et confortable. Ne manquez pas cette opportunité unique d’investir dans l’avenir et de réaliser vos aspirations. N’hésitez pas à me contacter dès maintenant pour plus d’informations et pour planifier une visite sur place !Demandez une étude gratuite et personnalisée de votre projet de construction !Contactez Jason GUEVEL au (Numéro supprimé) ou au (Numéro supprimé) (Pavillons d'Île-de-France – Agence de Cauffry).Prix avec assurance dommages-ouvrage comprise, hors VRD, terrain viabilisé, assainissement non compris, frais de notaire non compris, taxes non comprises, frais divers non compris. Terrain sélectionné et vu pour vous sous réserve de disponibilité et au prix indiqué par notre partenaire foncier. Visuels non contractuels.Cette annonce a été créée et diffusée avec le logiciel VITAHOME.
Rieux
TERRAINVous souhaitez devenir propriétaire, et vous êtes à la recherche DU terrain coup de coeur digne de recevoir le projet de vos rêves et voir ainsi votre famille s'épanouir dans la joie et la bonne humeur ? Vous voulez un secteur calme ou il fait bon vivre de nos jours ? Proche de toutes commodités que ce soient écoles, transports, axes à 35 mn de ROISSY CDG, 10 mn de Cauffry ou 5 mn de la Gare de Villers St Paul pour Paris Nord ? Alors ce terrain de 1249 m², viabilisé et TAEG existants, correspond à tous vos critères et n'attend plus que votre Maison. N'hésitez pas à me contacter pour convenir d'une visitePrix : 89000 €.Sur ce terrain, réalisez votre projet de construction de maison RE 2020 avec PAVILLONS D'ÎLE-DE-FRANCE (constructeur de maisons de gamme et sur-mesure depuis plus de 50 ans) :- Plan sur-mesure et personnalisé de 2 à 5 chambres- Mode de chauffage au choix- Grands choix d'équipements et de prestations- Matériaux de qualité selon les normes en vigueur- Accompagnement dans le choix et l’acquisition du terrainDemandez une étude gratuite et personnalisée de votre projet de construction sur ce terrain !Contactez Véronique LEMOUTON au (Numéro supprimé) ou au (Numéro supprimé) (Pavillons d'Île-de-France – Agence de Cauffry).Prix hors frais de notaire. Terrain sélectionné et vu pour vous sous réserve de disponibilité et au prix indiqué par notre partenaire foncier. Visuels non contractuels.Cette annonce a été créée et diffusée avec le logiciel VITAHOME.
Saint-Martin-Longueau
TERRAIN ET MAISONRéalisez votre projet de construction de maison RE 2020 avec PAVILLONS D'ÎLE-DE-FRANCE (constructeur de maisons de gamme et sur-mesure depuis plus de 50 ans) :- Plan sur-mesure et personnalisé de 2 à 5 chambres- Mode de chauffage au choix- Grands choix d'équipements et de prestations- Matériaux de qualité selon les normes en vigueur- Accompagnement dans le choix et l’acquisition du terrainInformations du terrain : Magnifique terrain plat de 1650 m² avec une façade de 18 ML. Clos sur 3 côtés, Portail coulissant en place et viabilisé en eau et TAEG. Bien exposé, il n'attend plus que votre Maison. Vous souhaitez devenir propriétaire, et vous êtes à la recherche DU terrain coup de coeur digne de recevoir le projet de vos rêves et voir ainsi votre famille s'épanouir dans la joie et la bonne humeur où il fait bon vivre de nos jours ? Proche de toutes commodités que ce soient écoles, transports, axes à 35 mn de ROISSY CDG, 25 mn Compiègne et 10 mn de Pont Ste Maxence (Gare Paris Nord) ? N'hésitez pas à me contacter pour convenir d'une visiteDemandez une étude gratuite et personnalisée de votre projet de construction !Contactez Véronique LEMOUTON au (Numéro supprimé) ou au (Numéro supprimé) (Pavillons d'Île-de-France – Agence de Cauffry).Prix avec assurance dommages-ouvrage comprise, hors VRD, terrain viabilisé, assainissement non compris, frais de notaire non compris, taxes non comprises, frais divers non compris. Terrain sélectionné et vu pour vous sous réserve de disponibilité et au prix indiqué par notre partenaire foncier. Visuels non contractuels.Cette annonce a été créée et diffusée avec le logiciel VITAHOME.
Saint-Vaast-de-Longmont
TERRAIN ET MAISONRéalisez votre projet de construction de maison RE 2020 avec PAVILLONS D'ÎLE-DE-FRANCE (constructeur de maisons de gamme et sur-mesure depuis plus de 50 ans) :- Plan sur-mesure et personnalisé de 2 à 5 chambres- Mode de chauffage au choix- Grands choix d'équipements et de prestations- Matériaux de qualité selon les normes en vigueur- Accompagnement dans le choix et l’acquisition du terrainDemandez une étude gratuite et personnalisée de votre projet de construction !Contactez Anthony CALMELS au (Numéro supprimé) ou au (Numéro supprimé) (Pavillons d'Île-de-France – Agence de Noyon).Prix avec assurance dommages-ouvrage comprise, hors VRD, terrain non viabilisé, assainissement non compris, frais de notaire non compris, taxes non comprises, frais divers non compris. Terrain sélectionné et vu pour vous sous réserve de disponibilité et au prix indiqué par notre partenaire foncier. Visuels non contractuels.Cette annonce a été créée et diffusée avec le logiciel VITAHOME.
Saint-Martin-Longueau
TERRAINTrès beau terrain Plat dans une commune calme et agréable à y vivre. Terrasse plein SUD. Viabilisé. TAEG. Hors ABF. R+1 possible; N'hésitez pas à me contacterPrix : 112000 €.Sur ce terrain, réalisez votre projet de construction de maison RE 2020 avec PAVILLONS D'ÎLE-DE-FRANCE (constructeur de maisons de gamme et sur-mesure depuis plus de 50 ans) :- Plan sur-mesure et personnalisé de 2 à 5 chambres- Mode de chauffage au choix- Grands choix d'équipements et de prestations- Matériaux de qualité selon les normes en vigueur- Accompagnement dans le choix et l’acquisition du terrainDemandez une étude gratuite et personnalisée de votre projet de construction sur ce terrain !Contactez Véronique LEMOUTON au (Numéro supprimé) ou au (Numéro supprimé) (Pavillons d'Île-de-France – Agence de Cauffry).Prix hors frais de notaire. Terrain sélectionné et vu pour vous sous réserve de disponibilité et au prix indiqué par notre partenaire foncier. Visuels non contractuels.Cette annonce a été créée et diffusée avec le logiciel VITAHOME.
L’actualité immobilière à Pont-Sainte-Maxence
27/11/2023
02/11/2023
30/10/2023
20/10/2023
16/10/2023
16/10/2023