Maison à construire à Pontpoint (60700)
Images
Description
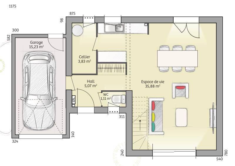
Maison de 5 pièces (90 m²) en vente à Pontpoint
PROCHE GARE - MAISON 5 PIÈCES NEUVE
En vente : à deux pas de Compiègne, nous vous proposons cette maison de 5 pièces de 90 m² proche de la gare de Pontpoint (60700). Elle dispose de trois chambres, d'une cuisine et d'une salle de bains.
Le terrain de la maison s'étend sur 510 m².
Cette maison possède 2 niveaux. Elle est neuve.
Il y a l'École Primaire Chadufaux-Massé, l'École Maternelle Pierre Masse et l'École Primaire Rostand-Lhermite à moins de 10 minutes à pied. Côté transports en commun, on trouve quatre gares à moins de 10 minutes en voiture. L'autoroute A1 est accessible à 4 km. Il y a deux boulangeries à quelques minutes du logement.
Il est à vendre pour la somme de 268 000 €.
Contactez Cedric YAHIAOUI (tél : (Numéro supprimé)) pour toute information sur la maison, sur les démarches à suivre ou sur les modalités de vente. Faites de vos projets immobiliers une réalité avec Maisons France Confort Magny-le-Hongre.
Annonce proposée par un Agent Commercial Partenaire.
Logement susceptibles de vous intéresser
Nous vous proposons de découvrir aussi cette sélection de logements situés à moins de 10km de Pontpoint et qui seraient susceptibles de vous intéresser.
Saintines
TERRAINTerrain à bâtir à SAINTINES (60) situé à 35 minutes de ROISSY EN FRANCE, d’une superficie de 440 m², façade de 19 ml, plat, en lot avant, secteur pavillonnaire recherché.À 8’min de la GARE Accès PARIS GARE DU NORDÀ 15’min de PONT STE MAXENCEÀ 15’min de CRÉPY-EN-VALOISÀ 25’min de SENLISÀ 35’min de ROISSY CDGProjet clé en main : Conception des plans sur-mesure, gestion administrative (permis, notaire), suivi travaux.FRAIS DE NOTAIRE OFFERTXAVIER de l’agence Maisons France Confort se fera un plaisir de vous recevoir pour plus de renseignements. tel : (Numéro supprimé)
Saintines
TERRAINTerrain à bâtir – SaintinesRègles : Pente 45° • Faîtage 9 m • Pignon 8,80 m • Tuiles 20 mini • PVC OK • Gouttière zinc • Corniche béton/pierreÉcoles & bus sur place, commerces proches8 min gare (Paris) • 15 min PSM • 15 min Crépy • 35 min CDG • 45 min Saint-DenisEmplacement recherché, idéal pour construire !Prix : 89900 €.Sur ce terrain, réalisez votre projet de construction de maison RE 2020 avec PAVILLONS D'ÎLE-DE-FRANCE (constructeur de maisons de gamme et sur-mesure depuis plus de 50 ans) :- Plan sur-mesure et personnalisé de 2 à 5 chambres- Mode de chauffage au choix- Grands choix d'équipements et de prestations- Matériaux de qualité selon les normes en vigueur- Accompagnement dans le choix et l’acquisition du terrainDemandez une étude gratuite et personnalisée de votre projet de construction sur ce terrain !Contactez Anthony CALMELS au (Numéro supprimé) ou au (Numéro supprimé) (Pavillons d'Île-de-France – Agence de Noyon).Prix hors frais de notaire. Terrain sélectionné et vu pour vous sous réserve de disponibilité et au prix indiqué par notre partenaire foncier. Visuels non contractuels.Cette annonce a été créée et diffusée avec le logiciel VITAHOME.
Saint-Martin-Longueau
TERRAIN ET MAISONRéalisez votre projet de construction de maison RE 2020 avec PAVILLONS D'ÎLE-DE-FRANCE (constructeur de maisons de gamme et sur-mesure depuis plus de 50 ans) :- Plan sur-mesure et personnalisé de 2 à 5 chambres- Mode de chauffage au choix- Grands choix d'équipements et de prestations- Matériaux de qualité selon les normes en vigueur- Accompagnement dans le choix et l’acquisition du terrainInformations du terrain : Terrain à vendre : emplacement idéal pour votre prochain projet. Description : A la recherche du lieu parfait pour concrétiser votre vision ? Ne chercher plus, il est là ! Ce terrain spacieux, situé dans un quartier très rechercher, offre une belle opportunité unique pour réaliser le projet d’une vie Caractéristiques : – Emplacement stratégique offrant un accès facile aux commodités locales et aux axes de transport. – Environnement calme et paisible, idéal pour ceux qui recherchent la tranquillité tout en restant connectés à la vie urbaine. – Proximité des écoles, commerces et autres services essentiels, garantissant une vie pratique et confortable. Ne manquez pas cette opportunité unique d’investir dans l’avenir et de réaliser vos aspirations. N’hésitez pas à me contacter dès maintenant pour plus d’informations et pour planifier une visite sur place !Demandez une étude gratuite et personnalisée de votre projet de construction !Contactez Jason GUEVEL au (Numéro supprimé) ou au (Numéro supprimé) (Pavillons d'Île-de-France – Agence de Cauffry).Prix avec assurance dommages-ouvrage comprise, hors VRD, terrain viabilisé, assainissement non compris, frais de notaire non compris, taxes non comprises, frais divers non compris. Terrain sélectionné et vu pour vous sous réserve de disponibilité et au prix indiqué par notre partenaire foncier. Visuels non contractuels.Cette annonce a été créée et diffusée avec le logiciel VITAHOME.
Rully
TERRAINMagnifique terrain dans un secteur calme et proche toutes commodités. A 15 mn de Senlis et Gare Direction Paris Nord. A 8 mn de l'Autoroute A1. A 35 mn de l'aéroport CDG. Vous cherchez LE TERRAIN pour y réaliser votre rêve et voir votre famille s'épanouir dans un cadre agréable ? Alors ne perdez plus de temps. Contactez moiPrix : 141500 €.Sur ce terrain, réalisez votre projet de construction de maison RE 2020 avec PAVILLONS D'ÎLE-DE-FRANCE (constructeur de maisons de gamme et sur-mesure depuis plus de 50 ans) :- Plan sur-mesure et personnalisé de 2 à 5 chambres- Mode de chauffage au choix- Grands choix d'équipements et de prestations- Matériaux de qualité selon les normes en vigueur- Accompagnement dans le choix et l’acquisition du terrainDemandez une étude gratuite et personnalisée de votre projet de construction sur ce terrain !Contactez Véronique LEMOUTON au (Numéro supprimé) ou au (Numéro supprimé) (Pavillons d'Île-de-France – Agence de Cauffry).Prix hors frais de notaire. Terrain sélectionné et vu pour vous sous réserve de disponibilité et au prix indiqué par notre partenaire foncier. Visuels non contractuels.Cette annonce a été créée et diffusée avec le logiciel VITAHOME.
Verberie
TERRAIN ET MAISONVerberie : maison F6 (105 m²) en venteMAISON 6 PIÈCES NEUVE – PROCHE DE COMPIÈGNEÀ vendre : située à deux pas de Compiègne, Maisons Balency Baillet-en-France vous présente à Verberie (60410), cette maison de 6 pièces de 105 m² et de 900 m² de terrain.Cette maison comporte 2 niveaux. Son intérieur se divise en quatre chambres, une cuisine et deux salles de bains. Cette maison est neuve.L’École Élémentaire Groupe A est implantée à moins de 10 minutes à pied. Côté transports, il y a cinq gares à moins de 10 minutes en voiture. On trouve un accès à l’autoroute A1 à 4 km. On trouve une bibliothèque, quatre commerces, un supermarché, deux boulangeries, un bureau de poste et une boucherie-charcuterie à proximité.Son prix de vente est de 299 000 €.Contactez Antoine FLIPPE (tél : (Numéro supprimé)) pour toute information sur la maison, sur les modalités de vente ou sur les démarches à suivre. Donnez vie à vos projets immobiliers avec Maisons Balency Baillet-en-France.Annonce proposée par un Agent Commercial Partenaire.
Verberie
TERRAIN ET MAISONRéalisez votre projet de construction de maison RE 2020 avec PAVILLONS D'ÎLE-DE-FRANCE (constructeur de maisons de gamme et sur-mesure depuis plus de 50 ans) :- Plan sur-mesure et personnalisé de 2 à 5 chambres- Mode de chauffage au choix- Grands choix d'équipements et de prestations- Matériaux de qualité selon les normes en vigueur- Accompagnement dans le choix et l’acquisition du terrainInformations du terrain : À Verberie, dans un quartier calme à deux pas du centre-ville et de toutes les commodités, ce terrain à bâtir de 401m² vous offre l'opportunité de concrétiser votre projet dans un environnement prisé. Situé en zone UR2.3 du PLUi-H, il permet une construction jusqu'à 9 mètres au faîtage (R+C), avec une emprise au sol de 35 % et une façade confortable de 17 mètres. Le terrain est non viabilisé, mais tous les réseaux sont en bordure de parcelle, y compris le tout-à-l'égout. Une étude de sol a déjà été réalisée. En secteur ABF, le cadre est préservé et cohérent avec le bâti environnant. Libre de constructeur, il est vendu avec un certificat d'urbanisme opérationnel positif. Le plan de géomètre est disponible sur simple demande ou en téléchargement sur notre site. Un projet facile à lancer, dans un cadre de vie équilibré entre ville et natureDemandez une étude gratuite et personnalisée de votre projet de construction !Contactez Anthony CALMELS au (Numéro supprimé) ou au (Numéro supprimé) (Pavillons d'Île-de-France – Agence de Noyon).Prix avec assurance dommages-ouvrage comprise, hors VRD, terrain non viabilisé, assainissement non compris, frais de notaire non compris, taxes non comprises, frais divers non compris. Terrain sélectionné et vu pour vous sous réserve de disponibilité et au prix indiqué par notre partenaire foncier. Visuels non contractuels.Cette annonce a été créée et diffusée avec le logiciel VITAHOME.
Saintines
TERRAINTerrain à bâtir de 521 m² environ, avec façade de 24 mètres, Rue Joliot Curie, lot 3 sur la photo 2.Plat, clos.Etude de sol faite avec fondation micros-pieux à prévoir 4 mètres.Prix : 42500 €.Sur ce terrain, réalisez votre projet de construction de maison RE 2020 avec PAVILLONS D'ÎLE-DE-FRANCE (constructeur de maisons de gamme et sur-mesure depuis plus de 50 ans) :- Plan sur-mesure et personnalisé de 2 à 5 chambres- Mode de chauffage au choix- Grands choix d'équipements et de prestations- Matériaux de qualité selon les normes en vigueur- Accompagnement dans le choix et l’acquisition du terrainDemandez une étude gratuite et personnalisée de votre projet de construction sur ce terrain !Contactez Anthony CALMELS au (Numéro supprimé) ou au (Numéro supprimé) (Pavillons d'Île-de-France – Agence de Noyon).Prix hors frais de notaire. Terrain sélectionné et vu pour vous sous réserve de disponibilité et au prix indiqué par notre partenaire foncier. Visuels non contractuels.Cette annonce a été créée et diffusée avec le logiciel VITAHOME.
Villers-Saint-Frambourg-Ognon
TERRAIN ET MAISONVenez concevoir votre maison.Exemple de projet maison (combles aménagés) de 105 m² loi Carrez.AU RDC : Bel espace de vie traversant de plus de 40 m², 1 chambre magnifique suite parentale de + de 16 m², 1 wc indépendant, à l’étage palier desservant 3 belles chambres (14, 15 et 18 m²), 1 salle de bain avec WC.Tous nos projets sont entièrement réalisés sur-mesure, de nombreuses prestations incluses: baies coulissantes en aluminium, volets roulants intégrés à la maçonnerie (non-apparents) motorisés.Entrée, cuisine, pièce de vie, cellier et pièces d’eau carrelés,Pompe à chaleur (classe énergétique A+), plancher chauffant RDC (et ETAGE), sèche-serviettes, plusieurs choix de menuiseries intérieures, construction en brique. RE 2020.Pour tout renseignement contacter XAVIER de l’agence Maisons France Confort au : (Numéro supprimé)
Rully
TERRAINÀ Vendre : Terrain Exceptionnel de 363 m² – Idéal pour Votre Future Maison ! ??Situé dans un environnement prisé, ce magnifique terrain de 363 m² offre un cadre naturel rare et recherché. Parfait pour les personnes souhaitant construire une maison confortable et entièrement sur mesure.- Projet de construction avec notre partenaireLa vente inclut la possibilité de construire votre future maison avec notre partenaire, entreprise reconnue pour la qualité de ses réalisations, son accompagnement sur mesure et son expertise dans l’habitat durable.Vous pourrez bénéficier :- D’un accompagnement complet (plans, permis, construction)- D’une maison personnalisée selon vos goûts et besoins- D’un projet clé en main en toute sérénité- Localisation :Environnement paisible, proche des commodités, écoles, commerces, axes routiers, tout en restant à l’écart de la foule.- Viabilités :Le terrain dispose des viabilités TAE déjà raccordéEau / Electricité / Telecom prêt à être raccordés? Une opportunité rare pour concrétiser votre projet de vie !Contactez Gérald AFONSO au 06 / 98 / 03 / 84 /87 dès maintenant pour plus d’informations, une visite ou une étude personnalisée. Les honoraires sont à la charge du vendeur.Les informations sur les risques auxquels ce bien est exposé sont disponibles sur le site Géorisques : www. georisques. gouv. fr.Contactez Gérald AFONSO Entrepreneur Individuel, Agent commercial OptimHome (RSAC N(Numéro supprimé) Greffe de COMPIEGNE) (Numéro supprimé) (réf. 598276 )
L’actualité immobilière à Pontpoint
27/11/2023
02/11/2023
30/10/2023
20/10/2023
16/10/2023
16/10/2023